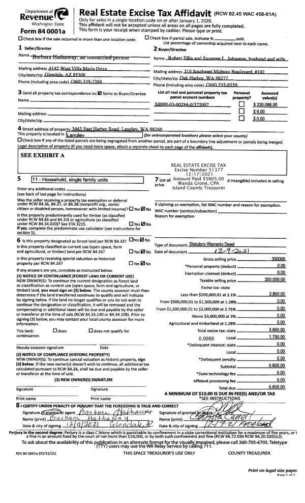
Property
Account |
| Property ID: | 213067 | Abbreviated Legal Description: | CCC 6 LOT 13 BLK 6 |
| Geographic ID: | S6250-06-06013-0 | Agent Code: | |
| Type: | Real | | |
| Tax Area: | 510 - APPRAISER-Stan/Cam Schl Dist, improved & 1 acre or less | Land Use Code | 11 |
| Open Space: | N | DFL | N |
| Historic Property: | N | Remodel Property: | N |
| Multi-Family Redevelopment: | N | | |
| Township: | | Section: | |
| Range: | |
Location |
| Address: | 1387 RAINBOW LN CAMANO ISLAND, WA 98282 | Mapsco: | |
| Neighborhood: | Cycle 5 | Map ID: | 931 |
| Neighborhood CD: | 5 |
Owner |
| Name: | WAKEFIELD, JOHN D | Owner ID: | 62812 |
| Mailing Address: | SU O WAKEFIELD 1387 RAINBOW LN CAMANO ISLAND, WA 98282-7694 | % Ownership: | 100.0000000000% |
| | | Exemptions: | |
Taxes and Assessment Details
Values
| (+) Improvement Homesite Value: | + | $0 | |
| (+) Improvement Non-Homesite Value: | + | $273,055 | |
| (+) Land Homesite Value: | + | $0 | |
| (+) Land Non-Homesite Value: | + | $390,000 | |
| (+) Curr Use (HS): | + | $0 | $0 |
| (+) Curr Use (NHS): | + | $0 | $0 |
| | | -------------------------- | |
| (=) Market Value: | = | $663,055 | |
| (–) Productivity Loss: | – | $0 | |
| | | -------------------------- | |
| (=) Subtotal: | = | $663,055 | |
| (+) Senior Appraised Value: | + | $0 | |
| (+) Non-Senior Appraised Value: | + | $663,055 | |
| | | -------------------------- | |
| (=) Total Appraised Value: | = | $663,055 | |
| (–) Senior Exemption Loss: | – | $0 | |
| (–) Exemption Loss: | – | $0 | |
| | | -------------------------- | |
| (=) Taxable Value: | = | $663,055 | |
Taxing Jurisdiction
| Owner: | WAKEFIELD, JOHN D | | |
| % Ownership: | 100.0000000000% | | |
| Total Value: | $663,055 | | |
| Tax Area: | 510 - APPRAISER-Stan/Cam Schl Dist, improved & 1 acre or less |
| CF | Conservation Futures | 0.0316035091 | $663,055 | $663,055 | $20.95 | | |
| EMS1 | Fire & Rescue Dist #1 Camano GEN (EMS) | 0.3677864386 | $663,055 | $663,055 | $243.86 | | |
| FIRE1 | Fire & Rescue Dist #1 Camano GEN | 1.2502910536 | $663,055 | $663,055 | $829.01 | | |
| FIRE1BOND | Fire & Rescue Dist #1 Camano BOND | 0.1570001679 | $663,055 | $663,055 | $104.10 | | |
| CE | County Current Expense | 0.3708482477 | $663,055 | $663,055 | $245.89 | | |
| CR | County Roads | 0.4584763726 | $663,055 | $663,055 | $304.00 | | |
| LCIB | Library Sno-Isle BOND (Camano Island) | 0.0396325772 | $663,055 | $663,055 | $26.28 | | |
| LIB | Library Sno-Isle GEN | 0.3153421757 | $663,055 | $663,055 | $209.09 | | |
| SCH205_401 | School 205-401 Enrichment | 1.2698420524 | $663,055 | $663,055 | $841.98 | | |
| SCH205BOND | School 205-401 BOND | 0.9396497583 | $663,055 | $663,055 | $623.04 | | |
| ST | State School | 1.3035497053 | $663,055 | $663,055 | $864.33 | | |
| ST2 | State School Part 2 | 0.8169543533 | $663,055 | $663,055 | $541.69 | | |
| | Total Tax Rate: | 7.3209764117 | | | | | |
| | | | | Taxes w/Current Exemptions: | $4,854.22 | | |
| | | | | Taxes w/o Exemptions: | $4,854.22 | | |
Improvement / Building
| Improvement #1: | RESIDENTIAL | State Code: | Y | 1407.5 sqft | Value: | $273,055 |
| Bathrooms: | 2 | Bedrooms: | 2 | | Ceiling: | DRYWALL PAINTED | Cooling: | HEAT PUMP/CONV/V | | Exterior Wall/Cover: | PLY/HARDBOARD T-111 | Floor Covering: | HARDWOOD/CARP 20-80 | | Floor Structure: | WOOD W/SUBFLOOR | Foundation: | CONCRETE | | Interior Finish: | DRYWALL PAINT | Plumbing Fixture Cnt: | 9 | | Roof Slope: | 5" IN 12" | Roof Structure/Cover: | CJ ASPHALT |
|
| | Type | Description | Class CD | Sub Class CD | Year Built | Area |
| | BAS | BASE/MAIN FLOOR | 3 | 0 | 1991 | 1407.5 |
| | OP3 | OPEN PORCH W/ROOF | 3 | 0 | 1991 | 35.0 |
| | AGR | ATTACHED GARAGE | 3 | 0 | 1991 | 288.0 |
| | OWP | OPEN WOOD PORCH W/STEPS | 3 | 0 | 1991 | 360.0 |
Sketch
Property Image
Land
| 1 | 14 | SQ (08001-12000) | 0.0000 | 0.00 | 0.00 | 0.00 | 1.00 | $390,000 | $0 |
Roll Value History
| 2026 | N/A | N/A | N/A | N/A | N/A |
| 2025 | $273,055 | $390,000 | $0 | $663,055 | $663,055 |
| 2024 | $276,415 | $360,000 | $0 | $636,415 | $636,415 |
| 2023 | $279,775 | $330,000 | $0 | $609,775 | $609,775 |
| 2022 | $256,376 | $300,000 | $0 | $556,376 | $556,376 |
| 2021 | $207,554 | $200,000 | $0 | $407,554 | $407,554 |
| 2020 | $202,253 | $180,000 | $0 | $382,253 | $382,253 |
| 2019 | $146,404 | $230,000 | $0 | $376,404 | $376,404 |
| 2018 | $146,855 | $200,000 | $0 | $346,855 | $346,855 |
| 2017 | $147,721 | $200,000 | $0 | $347,721 | $347,721 |
| 2016 | $149,522 | $110,000 | $0 | $259,522 | $259,522 |
| 2015 | $134,927 | $80,000 | $0 | $214,927 | $214,927 |
| 2014 | $136,679 | $80,000 | $0 | $216,679 | $216,679 |
| 2013 | $138,433 | $80,000 | $0 | $218,433 | $218,433 |
| 2012 | $140,184 | $86,304 | $0 | $226,488 | $226,488 |
| 2011 | $141,937 | $107,880 | $0 | $249,817 | $249,817 |
| 2010 | $135,340 | $107,880 | $0 | $243,220 | $243,220 |
| 2009 | $139,096 | $130,000 | $0 | $269,096 | $269,096 |
| 2008 | $136,999 | $125,000 | $0 | $261,999 | $261,999 |
| 2007 | $138,687 | $125,000 | $0 | $263,687 | $263,687 |
Deed and Sales History
| 1 | 10/01/1992 | WD | Warranty Deed | THOMAS, MABEL E | WAKEFIELD, JOHN D | | | $115,000.00 | 24158 | 92020141 |
| 2 | 11/01/1990 | WD | Warranty Deed | MACDONALD, A G | THOMAS, MABEL E | | | $34,000.00 | 6482 | 90022487 |
| 3 | 01/01/1900 | OTHER | Other - Misc. Documents | Unknown | MACDONALD, A G | | | $0.00 | 0 | 0 |
Payout Agreement
| No payout information available.. |