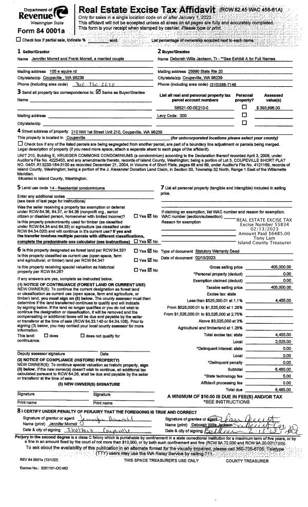
Property
Account |
| Property ID: | 213156 | Abbreviated Legal Description: | CCC 6 LOT 23 BLK 6 |
| Geographic ID: | S6250-06-06023-0 | Agent Code: | |
| Type: | Real | | |
| Tax Area: | 510 - APPRAISER-Stan/Cam Schl Dist, improved & 1 acre or less | Land Use Code | 11 |
| Open Space: | N | DFL | N |
| Historic Property: | N | Remodel Property: | N |
| Multi-Family Redevelopment: | N | | |
| Township: | | Section: | |
| Range: | |
Location |
| Address: | 1345 RAINBOW LN CAMANO ISLAND, WA 98282 | Mapsco: | |
| Neighborhood: | Cycle 5 | Map ID: | 931 |
| Neighborhood CD: | 5 |
Owner |
| Name: | WASHBURN, JENNIFER | Owner ID: | 310025 |
| Mailing Address: | ERIC WASHBURN 1345 RAINBOW LN CAMANO ISLAND, WA 98282 | % Ownership: | 100.0000000000% |
| | | Exemptions: | |
Taxes and Assessment Details
Values
| (+) Improvement Homesite Value: | + | $0 | |
| (+) Improvement Non-Homesite Value: | + | $243,812 | |
| (+) Land Homesite Value: | + | $0 | |
| (+) Land Non-Homesite Value: | + | $390,000 | |
| (+) Curr Use (HS): | + | $0 | $0 |
| (+) Curr Use (NHS): | + | $0 | $0 |
| | | -------------------------- | |
| (=) Market Value: | = | $633,812 | |
| (–) Productivity Loss: | – | $0 | |
| | | -------------------------- | |
| (=) Subtotal: | = | $633,812 | |
| (+) Senior Appraised Value: | + | $0 | |
| (+) Non-Senior Appraised Value: | + | $633,812 | |
| | | -------------------------- | |
| (=) Total Appraised Value: | = | $633,812 | |
| (–) Senior Exemption Loss: | – | $0 | |
| (–) Exemption Loss: | – | $0 | |
| | | -------------------------- | |
| (=) Taxable Value: | = | $633,812 | |
Taxing Jurisdiction
| Owner: | WASHBURN, JENNIFER | | |
| % Ownership: | 100.0000000000% | | |
| Total Value: | $633,812 | | |
| Tax Area: | 510 - APPRAISER-Stan/Cam Schl Dist, improved & 1 acre or less |
| CF | Conservation Futures | 0.0316035091 | $633,812 | $633,812 | $20.03 | | |
| EMS1 | Fire & Rescue Dist #1 Camano GEN (EMS) | 0.3677864386 | $633,812 | $633,812 | $233.11 | | |
| FIRE1 | Fire & Rescue Dist #1 Camano GEN | 1.2502910536 | $633,812 | $633,812 | $792.45 | | |
| FIRE1BOND | Fire & Rescue Dist #1 Camano BOND | 0.1570001679 | $633,812 | $633,812 | $99.51 | | |
| CE | County Current Expense | 0.3708482477 | $633,812 | $633,812 | $235.05 | | |
| CR | County Roads | 0.4584763726 | $633,812 | $633,812 | $290.59 | | |
| LCIB | Library Sno-Isle BOND (Camano Island) | 0.0396325772 | $633,812 | $633,812 | $25.12 | | |
| LIB | Library Sno-Isle GEN | 0.3153421757 | $633,812 | $633,812 | $199.87 | | |
| SCH205_401 | School 205-401 Enrichment | 1.2698420524 | $633,812 | $633,812 | $804.84 | | |
| SCH205BOND | School 205-401 BOND | 0.9396497583 | $633,812 | $633,812 | $595.56 | | |
| ST | State School | 1.3035497053 | $633,812 | $633,812 | $826.21 | | |
| ST2 | State School Part 2 | 0.8169543533 | $633,812 | $633,812 | $517.80 | | |
| | Total Tax Rate: | 7.3209764117 | | | | | |
| | | | | Taxes w/Current Exemptions: | $4,640.14 | | |
| | | | | Taxes w/o Exemptions: | $4,640.14 | | |
Improvement / Building
| Improvement #1: | RESIDENTIAL | State Code: | Y | 1768.0 sqft | Value: | $243,812 |
| Bathrooms: | 1.75 | Bedrooms: | 3 | | Ceiling: | DRYWALL PAINTED | Exterior Wall/Cover: | PLY/HARDBOARD T-111 | | Floor Covering: | CARPET/VINYL 80-20 | Floor Structure: | WOOD W/SUBFLOOR | | Foundation: | CONCRETE | Heating: | BASEBOARD ELECTRIC | | Interior Finish: | DRYWALL PAINT | Plumbing Fixture Cnt: | 9 | | Roof Slope: | 3" IN 12" | Roof Structure/Cover: | CJ ASPHALT |
|
| | Type | Description | Class CD | Sub Class CD | Year Built | Area |
| | BAS | BASE/MAIN FLOOR | 3 | 0 | 1970 | 880.0 |
| | DWN | DOWNSTAIRS LIVING AREA | 3 | 0 | 1970 | 888.0 |
| | AGR | ATTACHED GARAGE | 3 | 0 | 1970 | 468.0 |
| | BAW | BALCONY WOOD RAIL | 3 | 0 | 1970 | 54.0 |
| | OWP | OPEN WOOD PORCH W/STEPS | 3 | 0 | 1970 | 318.0 |
Sketch
Property Image
Land
| 1 | 14 | SQ (08001-12000) | 0.0000 | 0.00 | 0.00 | 0.00 | 1.00 | $390,000 | $0 |
Roll Value History
| 2026 | N/A | N/A | N/A | N/A | N/A |
| 2025 | $243,812 | $390,000 | $0 | $633,812 | $633,812 |
| 2024 | $252,215 | $360,000 | $0 | $612,215 | $612,215 |
| 2023 | $177,374 | $330,000 | $0 | $507,374 | $507,374 |
| 2022 | $163,320 | $300,000 | $0 | $463,320 | $463,320 |
| 2021 | $139,457 | $180,000 | $0 | $319,457 | $319,457 |
| 2020 | $136,662 | $150,000 | $0 | $286,662 | $286,662 |
| 2019 | $100,841 | $200,000 | $0 | $300,841 | $300,841 |
| 2018 | $101,251 | $170,000 | $0 | $271,251 | $271,251 |
| 2017 | $102,075 | $125,000 | $0 | $227,075 | $63,668 |
| 2016 | $103,722 | $90,000 | $0 | $193,722 | $63,668 |
| 2015 | $95,706 | $60,000 | $0 | $155,706 | $62,282 |
| 2014 | $97,438 | $60,000 | $0 | $157,438 | $62,975 |
| 2013 | $99,171 | $60,000 | $0 | $159,171 | $63,668 |
| 2012 | $100,904 | $60,000 | $0 | $160,904 | $64,362 |
| 2011 | $102,638 | $75,000 | $0 | $177,638 | $71,055 |
| 2010 | $116,626 | $75,000 | $0 | $191,626 | $76,650 |
| 2009 | $118,884 | $128,792 | $0 | $247,676 | $91,125 |
| 2008 | $119,750 | $124,638 | $0 | $244,388 | $91,125 |
| 2007 | $120,589 | $125,512 | $0 | $246,101 | $91,125 |
Deed and Sales History
| 1 | 09/06/2023 | WD | Warranty Deed | UBHI, SAPNA | WASHBURN, JENNIFER | | | $755,000.00 | 57945 | 4564549 |
| 2 | 12/02/2022 | WD | Warranty Deed | MATTHEWS, ROBERT L | UBHI, SAPNA | | | $315,000.00 | 55309 | 4554519 |
| 3 | 07/06/2018 | QCD | Quit Claim Deed | MATTHEWS TRUSTEE, ROBERT L | MATTHEWS, ROBERT L | | | $0.00 | 34946 | 4447766 |
| 4 | 03/15/2010 | OTHER | Other - Misc. Documents | HUGHES, MARY F | MARY F HUGHES TRUSTEE, | | | $0.00 | 81493 | 0 |
| 5 | 03/01/1996 | QCD | Quit Claim Deed | MATTHEWS, FRANCES L | HUGHES, MARY F | | | $0.00 | 61176 | 96006052 |
| 6 | 03/01/1996 | QCD | Quit Claim Deed | MATTHEWS, FRANCES L | MATTHEWS, FRANCES L | | | $0.00 | 63146 | 96015417 |
| 7 | 01/01/1900 | OTHER | Other - Misc. Documents | Unknown | MATTHEWS, FRANCES L | | | $0.00 | 0 | 0 |
Payout Agreement
| No payout information available.. |