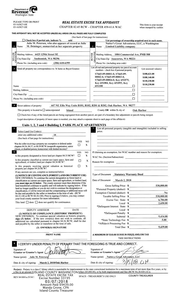
Property
Account |
| Property ID: | 213183 | Abbreviated Legal Description: | CCC 6 LOT 26 BLK 6 |
| Geographic ID: | S6250-06-06026-0 | Agent Code: | |
| Type: | Real | | |
| Tax Area: | 510 - APPRAISER-Stan/Cam Schl Dist, improved & 1 acre or less | Land Use Code | 11 |
| Open Space: | N | DFL | N |
| Historic Property: | N | Remodel Property: | N |
| Multi-Family Redevelopment: | N | | |
| Township: | | Section: | |
| Range: | |
Location |
| Address: | 1331 RAINBOW LN CAMANO ISLAND, WA 98282 | Mapsco: | |
| Neighborhood: | Cycle 5 | Map ID: | 931 |
| Neighborhood CD: | 5 |
Owner |
| Name: | WILKEN, DAVID | Owner ID: | 303900 |
| Mailing Address: | DENISE WILKEN 1331 RAINBOW LANE CAMANO ISLAND, WA 98282 | % Ownership: | 100.0000000000% |
| | | Exemptions: | SNR/DSBL |
Taxes and Assessment Details
Values
| (+) Improvement Homesite Value: | + | $446,861 | |
| (+) Improvement Non-Homesite Value: | + | $0 | |
| (+) Land Homesite Value: | + | $390,000 | |
| (+) Land Non-Homesite Value: | + | $0 | |
| (+) Curr Use (HS): | + | $0 | $0 |
| (+) Curr Use (NHS): | + | $0 | $0 |
| | | -------------------------- | |
| (=) Market Value: | = | $836,861 | |
| (–) Productivity Loss: | – | $0 | |
| | | -------------------------- | |
| (=) Subtotal: | = | $836,861 | |
| (+) Senior Appraised Value: | + | $774,443 | |
| (+) Non-Senior Appraised Value: | + | $0 | |
| | | -------------------------- | |
| (=) Total Appraised Value: | = | $774,443 | |
| (–) Senior Exemption Loss: | – | $70,000 | |
| (–) Exemption Loss: | – | $0 | |
| | | -------------------------- | |
| (=) Taxable Value: | = | $704,443 | |
Taxing Jurisdiction
| Owner: | WILKEN, DAVID | | |
| % Ownership: | 100.0000000000% | | |
| Total Value: | $836,861 | | |
| Tax Area: | 510 - APPRAISER-Stan/Cam Schl Dist, improved & 1 acre or less |
| CF | Conservation Futures | 0.0316035091 | $836,861 | $704,443 | $22.26 | | |
| EMS1 | Fire & Rescue Dist #1 Camano GEN (EMS) | 0.3677864386 | $836,861 | $704,443 | $259.08 | | |
| FIRE1 | Fire & Rescue Dist #1 Camano GEN | 1.2502910536 | $836,861 | $704,443 | $880.76 | | |
| FIRE1BOND | Fire & Rescue Dist #1 Camano BOND | 0.0000000000 | $836,861 | $0 | $0.00 | | |
| CE | County Current Expense | 0.3708482477 | $836,861 | $704,443 | $261.24 | | |
| CR | County Roads | 0.4584763726 | $836,861 | $704,443 | $322.97 | | |
| LCIB | Library Sno-Isle BOND (Camano Island) | 0.0000000000 | $836,861 | $0 | $0.00 | | |
| LIB | Library Sno-Isle GEN | 0.3153421757 | $836,861 | $704,443 | $222.14 | | |
| SCH205_401 | School 205-401 Enrichment | 0.0000000000 | $836,861 | $0 | $0.00 | | |
| SCH205BOND | School 205-401 BOND | 0.0000000000 | $836,861 | $0 | $0.00 | | |
| ST | State School | 1.3035497053 | $836,861 | $704,443 | $918.28 | | |
| ST2 | State School Part 2 | 0.0000000000 | $836,861 | $0 | $0.00 | | |
| | Total Tax Rate: | 4.0978975026 | | | | | |
| | | | | Taxes w/Current Exemptions: | $2,886.73 | | |
| | | | | Taxes w/o Exemptions: | $6,126.66 | | |
Improvement / Building
| Improvement #1: | RESIDENTIAL | State Code: | Y | 1840.0 sqft | Value: | $446,861 |
| Bathrooms: | 2 | Bedrooms: | 3 | | Ceiling: | DRYWALL PAINTED | Cooling: | HEAT PUMP/CONV/V | | Exterior Wall/Cover: | PLY/HARDBOARD T-111 | Floor Covering: | HARDWOOD 100% | | Floor Structure: | WOOD W/SUBFLOOR | Foundation: | CONCRETE | | Interior Finish: | DRYWALL PAINT | Plumbing Fixture Cnt: | 11 | | Roof Slope: | 5" IN 12" | Roof Structure/Cover: | CJ ASPHALT |
|
| | Type | Description | Class CD | Sub Class CD | Year Built | Area |
| | BAS | BASE/MAIN FLOOR | 4 | 0 | 2018 | 1840.0 |
| | AGR | ATTACHED GARAGE | 4 | 0 | 2018 | 400.0 |
| | OWC | OPEN WOOD PORCH W/STEPS/ROOF/C | 4 | 0 | 2018 | 312.0 |
| | OWP | OPEN WOOD PORCH W/STEPS | 4 | 0 | 2018 | 260.0 |
Sketch
Property Image
Land
| 1 | 14 | SQ (08001-12000) | 0.2000 | 8712.00 | 0.00 | 0.00 | 1.00 | $390,000 | $0 |
Roll Value History
| 2026 | N/A | N/A | N/A | N/A | N/A |
| 2025 | $446,861 | $390,000 | $0 | $836,861 | $704,443 |
| 2024 | $450,495 | $360,000 | $0 | $810,495 | $704,443 |
| 2023 | $437,621 | $330,000 | $0 | $767,621 | $697,621 |
| 2022 | $399,452 | $300,000 | $0 | $699,452 | $699,452 |
| 2021 | $350,109 | $200,000 | $0 | $550,109 | $550,109 |
| 2020 | $340,652 | $180,000 | $0 | $520,652 | $520,652 |
| 2019 | $255,781 | $230,000 | $0 | $485,781 | $485,781 |
| 2018 | $135,804 | $130,000 | $0 | $265,804 | $265,804 |
| 2017 | $0 | $130,000 | $0 | $130,000 | $130,000 |
| 2016 | $0 | $75,000 | $0 | $75,000 | $75,000 |
| 2015 | $0 | $75,000 | $0 | $75,000 | $75,000 |
| 2014 | $0 | $75,000 | $0 | $75,000 | $75,000 |
| 2013 | $0 | $75,000 | $0 | $75,000 | $75,000 |
| 2012 | $0 | $75,000 | $0 | $75,000 | $75,000 |
| 2011 | $0 | $75,000 | $0 | $75,000 | $75,000 |
| 2010 | $0 | $75,000 | $0 | $75,000 | $75,000 |
| 2009 | $0 | $80,000 | $0 | $80,000 | $80,000 |
| 2008 | $0 | $140,000 | $0 | $140,000 | $140,000 |
| 2007 | $0 | $105,000 | $0 | $105,000 | $105,000 |
Deed and Sales History
| 1 | 04/13/2022 | WD | Warranty Deed | NEWTON, DENNIS | WILKEN, DAVID | | | $930,000.00 | 52858 | 4544112 |
| 2 | 10/03/2018 | WD | Warranty Deed | BOOTS GENERAL CONTRACTING, INC | NEWTON, DENNIS | | | $430,000.00 | 36215 | 4453100 |
| 3 | 01/17/2018 | WD | Warranty Deed | WYLIE, CAMERON J | BOOTS GENERAL CONTRACTING, INC | | | $70,000.00 | 32645 | 4437644 |
| 4 | 10/01/1990 | WD | Warranty Deed | BAKER, RONALD A | WYLIE, CAMERON J | | | $30,000.00 | 5916 | 90020039 |
| 5 | 03/01/1990 | WD | Warranty Deed | LIE, H A | BAKER, RONALD A | | | $15,000.00 | 1402 | 90004539 |
| 6 | 01/01/1900 | OTHER | Other - Misc. Documents | Unknown | LIE, H A | | | $0.00 | 0 | 0 |
Payout Agreement
| No payout information available.. |