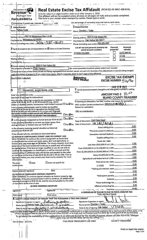
Property
Account |
| Property ID: | 213575 | Abbreviated Legal Description: | CCC 7 LOT 10 BLK 9 |
| Geographic ID: | S6250-07-09010-0 | Agent Code: | |
| Type: | Real | | |
| Tax Area: | 510 - APPRAISER-Stan/Cam Schl Dist, improved & 1 acre or less | Land Use Code | 11 |
| Open Space: | N | DFL | N |
| Historic Property: | N | Remodel Property: | N |
| Multi-Family Redevelopment: | N | | |
| Township: | | Section: | |
| Range: | |
Location |
| Address: | 1604 COUNTRY CLUB DR CAMANO ISLAND, WA 98282 | Mapsco: | |
| Neighborhood: | Cycle 5 | Map ID: | 939 |
| Neighborhood CD: | 5 |
Owner |
| Name: | PETROWSKI, MICHAEL E | Owner ID: | 145071 |
| Mailing Address: | 1604 COUNTRY CLUB DR CAMANO ISLAND, WA 98282-6326 | % Ownership: | 100.0000000000% |
| | | Exemptions: | |
Taxes and Assessment Details
Values
| (+) Improvement Homesite Value: | + | $0 | |
| (+) Improvement Non-Homesite Value: | + | $134,433 | |
| (+) Land Homesite Value: | + | $0 | |
| (+) Land Non-Homesite Value: | + | $250,000 | |
| (+) Curr Use (HS): | + | $0 | $0 |
| (+) Curr Use (NHS): | + | $0 | $0 |
| | | -------------------------- | |
| (=) Market Value: | = | $384,433 | |
| (–) Productivity Loss: | – | $0 | |
| | | -------------------------- | |
| (=) Subtotal: | = | $384,433 | |
| (+) Senior Appraised Value: | + | $0 | |
| (+) Non-Senior Appraised Value: | + | $384,433 | |
| | | -------------------------- | |
| (=) Total Appraised Value: | = | $384,433 | |
| (–) Senior Exemption Loss: | – | $0 | |
| (–) Exemption Loss: | – | $0 | |
| | | -------------------------- | |
| (=) Taxable Value: | = | $384,433 | |
Taxing Jurisdiction
| Owner: | PETROWSKI, MICHAEL E | | |
| % Ownership: | 100.0000000000% | | |
| Total Value: | $384,433 | | |
| Tax Area: | 510 - APPRAISER-Stan/Cam Schl Dist, improved & 1 acre or less |
| CF | Conservation Futures | 0.0316035091 | $384,433 | $384,433 | $12.15 | | |
| EMS1 | Fire & Rescue Dist #1 Camano GEN (EMS) | 0.3677864386 | $384,433 | $384,433 | $141.39 | | |
| FIRE1 | Fire & Rescue Dist #1 Camano GEN | 1.2502910536 | $384,433 | $384,433 | $480.65 | | |
| FIRE1BOND | Fire & Rescue Dist #1 Camano BOND | 0.1570001679 | $384,433 | $384,433 | $60.36 | | |
| CE | County Current Expense | 0.3708482477 | $384,433 | $384,433 | $142.57 | | |
| CR | County Roads | 0.4584763726 | $384,433 | $384,433 | $176.25 | | |
| LCIB | Library Sno-Isle BOND (Camano Island) | 0.0396325772 | $384,433 | $384,433 | $15.24 | | |
| LIB | Library Sno-Isle GEN | 0.3153421757 | $384,433 | $384,433 | $121.23 | | |
| SCH205_401 | School 205-401 Enrichment | 1.2698420524 | $384,433 | $384,433 | $488.17 | | |
| SCH205BOND | School 205-401 BOND | 0.9396497583 | $384,433 | $384,433 | $361.23 | | |
| ST | State School | 1.3035497053 | $384,433 | $384,433 | $501.13 | | |
| ST2 | State School Part 2 | 0.8169543533 | $384,433 | $384,433 | $314.06 | | |
| | Total Tax Rate: | 7.3209764117 | | | | | |
| | | | | Taxes w/Current Exemptions: | $2,814.43 | | |
| | | | | Taxes w/o Exemptions: | $2,814.43 | | |
Improvement / Building
| Improvement #1: | RESIDENTIAL | State Code: | Y | 816.0 sqft | Value: | $134,433 |
| Bathrooms: | 1 | Bedrooms: | 2 | | Ceiling: | BEAM PAINTED | Exterior Wall/Cover: | WOOD SIDING | | Floor Covering: | CARPET/VINYL 20-80 | Floor Structure: | WOOD W/SUBFLOOR | | Foundation: | CONCRETE | Heating: | BASEBOARD ELECTRIC | | Interior Finish: | DRYWALL PAINT | Plumbing Fixture Cnt: | 6 | | Roof Slope: | 3" IN 12" | Roof Structure/Cover: | BEAM BUILT-UP ROCK |
|
| | Type | Description | Class CD | Sub Class CD | Year Built | Area |
| | BAS | BASE/MAIN FLOOR | 3 | 0 | 1964 | 816.0 |
| | OP1 | OPEN PORCH SLAB | 3 | 0 | 1964 | 350.0 |
| | AGR | ATTACHED GARAGE | 3 | 0 | 1964 | 228.0 |
| | UTY | STORAGE/UTILITY | 3 | 0 | 1964 | 60.0 |
Sketch
Property Image
Land
| 1 | 13 | SQ (06001-08000) | 0.0000 | 0.00 | 0.00 | 0.00 | 1.00 | $250,000 | $0 |
Roll Value History
| 2026 | N/A | N/A | N/A | N/A | N/A |
| 2025 | $134,433 | $250,000 | $0 | $384,433 | $384,433 |
| 2024 | $136,773 | $250,000 | $0 | $386,773 | $386,773 |
| 2023 | $138,777 | $210,000 | $0 | $348,777 | $348,777 |
| 2022 | $127,478 | $200,000 | $0 | $327,478 | $327,478 |
| 2021 | $102,154 | $140,000 | $0 | $242,154 | $242,154 |
| 2020 | $99,699 | $120,000 | $0 | $219,699 | $219,699 |
| 2019 | $69,920 | $170,000 | $0 | $239,920 | $239,920 |
| 2018 | $70,180 | $140,000 | $0 | $210,180 | $210,180 |
| 2017 | $70,700 | $90,000 | $0 | $160,700 | $160,700 |
| 2016 | $71,740 | $65,000 | $0 | $136,740 | $136,740 |
| 2015 | $49,530 | $50,000 | $0 | $99,530 | $99,530 |
| 2014 | $50,369 | $50,000 | $0 | $100,369 | $100,369 |
| 2013 | $51,210 | $50,000 | $0 | $101,210 | $101,210 |
| 2012 | $52,047 | $56,000 | $0 | $108,047 | $108,047 |
| 2011 | $52,887 | $70,000 | $0 | $122,887 | $122,887 |
| 2010 | $59,075 | $70,000 | $0 | $129,075 | $129,075 |
| 2009 | $60,819 | $90,000 | $0 | $150,819 | $150,819 |
| 2008 | $61,663 | $125,000 | $0 | $186,663 | $186,663 |
| 2007 | $62,507 | $100,000 | $0 | $162,507 | $162,507 |
Deed and Sales History
| 1 | 02/23/2000 | WD | Warranty Deed | MILLER, JANE A | PETROWSKI, MICHAEL E | | | $117,000.00 | 677 | 20003533 |
| 2 | 09/01/1997 | WD | Warranty Deed | ROCHON, KAREN K | MILLER, JANE A | | | $95,500.00 | 73345 | 97015775 |
| 3 | 03/01/1989 | QCD | Quit Claim Deed | ROCHON, KAREN K | ROCHON, KAREN K | | | $0.00 | 91165 | 89004075 |
| 4 | 11/01/1988 | WD | Warranty Deed | KNAUB, FRED | ROCHON, KAREN K | | | $0.00 | 83814 | 88014211 |
| 5 | 01/01/1900 | OTHER | Other - Misc. Documents | Unknown | KNAUB, FRED | | | $0.00 | 0 | 0 |
Payout Agreement
| No payout information available.. |