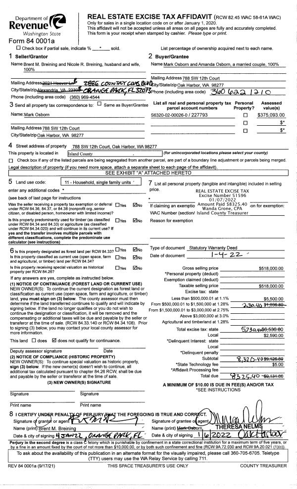
Property
Account |
| Property ID: | 213799 | Abbreviated Legal Description: | CCC 8 LOT 20 BLK 10 |
| Geographic ID: | S6250-08-10020-0 | Agent Code: | |
| Type: | Real | | |
| Tax Area: | 510 - APPRAISER-Stan/Cam Schl Dist, improved & 1 acre or less | Land Use Code | 11 |
| Open Space: | N | DFL | N |
| Historic Property: | N | Remodel Property: | N |
| Multi-Family Redevelopment: | N | | |
| Township: | | Section: | |
| Range: | |
Location |
| Address: | 1259 MOUNT BAKER AVE CAMANO ISLAND, WA 98282 | Mapsco: | |
| Neighborhood: | Cycle 5 | Map ID: | 931 |
| Neighborhood CD: | 5 |
Owner |
| Name: | FOWLER, ELIZABETH F | Owner ID: | 62883 |
| Mailing Address: | 1259 MT BAKER AVE CAMANO ISLAND, WA 98282-8439 | % Ownership: | 100.0000000000% |
| | | Exemptions: | SNR/DSBL |
Taxes and Assessment Details
Values
| (+) Improvement Homesite Value: | + | $146,287 | |
| (+) Improvement Non-Homesite Value: | + | $0 | |
| (+) Land Homesite Value: | + | $250,000 | |
| (+) Land Non-Homesite Value: | + | $0 | |
| (+) Curr Use (HS): | + | $0 | $0 |
| (+) Curr Use (NHS): | + | $0 | $0 |
| | | -------------------------- | |
| (=) Market Value: | = | $396,287 | |
| (–) Productivity Loss: | – | $0 | |
| | | -------------------------- | |
| (=) Subtotal: | = | $396,287 | |
| (+) Senior Appraised Value: | + | $161,986 | |
| (+) Non-Senior Appraised Value: | + | $0 | |
| | | -------------------------- | |
| (=) Total Appraised Value: | = | $161,986 | |
| (–) Senior Exemption Loss: | – | $97,192 | |
| (–) Exemption Loss: | – | $0 | |
| | | -------------------------- | |
| (=) Taxable Value: | = | $64,794 | |
Taxing Jurisdiction
| Owner: | FOWLER, ELIZABETH F | | |
| % Ownership: | 100.0000000000% | | |
| Total Value: | $396,287 | | |
| Tax Area: | 510 - APPRAISER-Stan/Cam Schl Dist, improved & 1 acre or less |
| CF | Conservation Futures | 0.0316035091 | $396,287 | $64,794 | $2.05 | | |
| EMS1 | Fire & Rescue Dist #1 Camano GEN (EMS) | 0.3677864386 | $396,287 | $64,794 | $23.83 | | |
| FIRE1 | Fire & Rescue Dist #1 Camano GEN | 1.2502910536 | $396,287 | $64,794 | $81.01 | | |
| FIRE1BOND | Fire & Rescue Dist #1 Camano BOND | 0.0000000000 | $396,287 | $0 | $0.00 | | |
| CE | County Current Expense | 0.3708482477 | $396,287 | $64,794 | $24.03 | | |
| CR | County Roads | 0.4584763726 | $396,287 | $64,794 | $29.71 | | |
| LCIB | Library Sno-Isle BOND (Camano Island) | 0.0000000000 | $396,287 | $0 | $0.00 | | |
| LIB | Library Sno-Isle GEN | 0.3153421757 | $396,287 | $64,794 | $20.43 | | |
| SCH205_401 | School 205-401 Enrichment | 0.0000000000 | $396,287 | $0 | $0.00 | | |
| SCH205BOND | School 205-401 BOND | 0.0000000000 | $396,287 | $0 | $0.00 | | |
| ST | State School | 1.3035497053 | $396,287 | $64,794 | $84.46 | | |
| ST2 | State School Part 2 | 0.0000000000 | $396,287 | $0 | $0.00 | | |
| | Total Tax Rate: | 4.0978975026 | | | | | |
| | | | | Taxes w/Current Exemptions: | $265.52 | | |
| | | | | Taxes w/o Exemptions: | $2,901.21 | | |
Improvement / Building
| Improvement #1: | RESIDENTIAL | State Code: | Y | 988.0 sqft | Value: | $146,287 |
| Bathrooms: | 1 | Bedrooms: | 2 | | Ceiling: | DRY WALL SPRAYED | Exterior Wall/Cover: | WOOD SIDING | | Floor Covering: | CARPET 100% | Floor Structure: | WOOD W/SUBFLOOR | | Foundation: | CONCRETE | Heating: | WALL HEAT ELECTRIC | | Interior Finish: | DRYWALL PAINT | Plumbing Fixture Cnt: | 6 | | Roof Slope: | 5" IN 12" | Roof Structure/Cover: | CJ ASPHALT |
|
| | Type | Description | Class CD | Sub Class CD | Year Built | Area |
| | BAS | BASE/MAIN FLOOR | 3 | 0 | 1975 | 988.0 |
| | OWP | OPEN WOOD PORCH W/STEPS | 3 | 0 | 1975 | 48.0 |
| | OWP | OPEN WOOD PORCH W/STEPS | 3 | 0 | 1975 | 304.0 |
| | AGR | ATTACHED GARAGE | 3 | 0 | 1975 | 692.0 |
Sketch
Property Image
Land
| 1 | 14 | SQ (08001-12000) | 0.0000 | 0.00 | 0.00 | 0.00 | 1.00 | $250,000 | $0 |
Roll Value History
| 2026 | N/A | N/A | N/A | N/A | N/A |
| 2025 | $146,287 | $250,000 | $0 | $396,287 | $64,794 |
| 2024 | $148,674 | $250,000 | $0 | $398,674 | $64,794 |
| 2023 | $151,064 | $210,000 | $0 | $361,064 | $64,794 |
| 2022 | $138,955 | $200,000 | $0 | $338,955 | $105,291 |
| 2021 | $124,422 | $140,000 | $0 | $264,422 | $105,291 |
| 2020 | $121,581 | $120,000 | $0 | $241,581 | $105,291 |
| 2019 | $86,559 | $170,000 | $0 | $256,559 | $64,794 |
| 2018 | $86,880 | $140,000 | $0 | $226,880 | $64,794 |
| 2017 | $87,525 | $90,000 | $0 | $177,525 | $64,794 |
| 2016 | $88,811 | $65,000 | $0 | $153,811 | $61,524 |
| 2015 | $87,515 | $50,000 | $0 | $137,515 | $55,006 |
| 2014 | $88,633 | $50,000 | $0 | $138,633 | $55,453 |
| 2013 | $89,751 | $50,000 | $0 | $139,751 | $55,900 |
| 2012 | $90,869 | $56,000 | $0 | $146,869 | $58,748 |
| 2011 | $91,986 | $70,000 | $0 | $161,986 | $161,986 |
| 2010 | $97,934 | $70,000 | $0 | $167,934 | $167,934 |
| 2009 | $101,821 | $90,000 | $0 | $191,821 | $191,821 |
| 2008 | $103,212 | $125,000 | $0 | $228,212 | $228,212 |
| 2007 | $104,603 | $118,000 | $0 | $222,603 | $222,603 |
Deed and Sales History
| 1 | 07/13/1999 | WD | Warranty Deed | MOWERY, JOHNNY C | FOWLER, ELIZABETH F | | | $129,000.00 | 92907 | 99017212 |
| 2 | 10/01/1994 | WD | Warranty Deed | JAPAR, ROBERT L | MOWERY, JOHNNY C | | | $94,000.00 | 44152 | 94021413 |
| 3 | 05/01/1990 | QCD | Quit Claim Deed | JAPAR, ROBERT L | JAPAR, ROBERT L | | | $0.00 | 5029 | 90016761 |
| 4 | 11/01/1989 | QCD | Quit Claim Deed | JAPAR, ROBERT L | JAPAR, ROBERT L | | | $0.00 | 95470 | 89017508 |
| 5 | 10/01/1989 | WD | Warranty Deed | MASON, MELVIN E | JAPAR, ROBERT L | | | $69,500.00 | 94932 | 89015956 |
| 6 | 12/01/1982 | WD | Warranty Deed | HAYES, WILLIAM E | MASON, MELVIN E | | | $47,000.00 | 23003 | 403770 |
| 7 | 05/01/1979 | OTHER | Other - Misc. Documents | Unknown | HAYES, WILLIAM E | | | $49,000.00 | 92409 | 352688 |
Payout Agreement
| No payout information available.. |