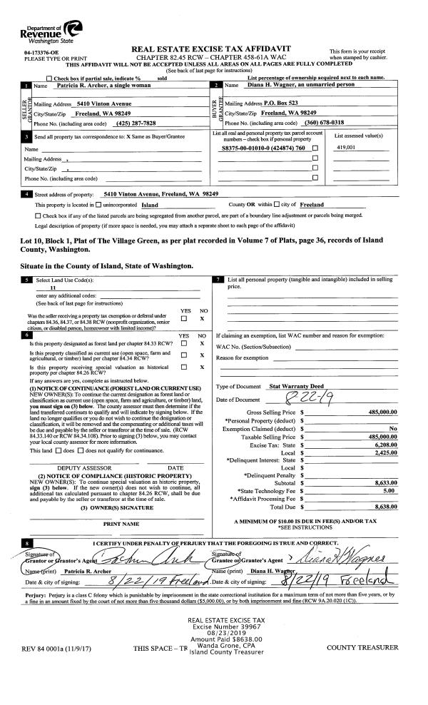
Property
Account |
| Property ID: | 213879 | Abbreviated Legal Description: | CCC 8 LOT 3 BLK 11 |
| Geographic ID: | S6250-08-11003-0 | Agent Code: | |
| Type: | Real | | |
| Tax Area: | 510 - APPRAISER-Stan/Cam Schl Dist, improved & 1 acre or less | Land Use Code | 11 |
| Open Space: | N | DFL | N |
| Historic Property: | N | Remodel Property: | N |
| Multi-Family Redevelopment: | N | | |
| Township: | | Section: | |
| Range: | |
Location |
| Address: | 1276 MT BAKER AVE CAMANO ISLAND, WA 98282 | Mapsco: | |
| Neighborhood: | Cycle 5 | Map ID: | 931 |
| Neighborhood CD: | 5 |
Owner |
| Name: | BUTLER, DAVID | Owner ID: | 295140 |
| Mailing Address: | KATHLEEN BUTLER 1276 MOUNT BAKER AVE CAMANO ISLAND, WA 98282 | % Ownership: | 100.0000000000% |
| | | Exemptions: | |
Taxes and Assessment Details
Values
| (+) Improvement Homesite Value: | + | $0 | |
| (+) Improvement Non-Homesite Value: | + | $308,929 | |
| (+) Land Homesite Value: | + | $0 | |
| (+) Land Non-Homesite Value: | + | $310,000 | |
| (+) Curr Use (HS): | + | $0 | $0 |
| (+) Curr Use (NHS): | + | $0 | $0 |
| | | -------------------------- | |
| (=) Market Value: | = | $618,929 | |
| (–) Productivity Loss: | – | $0 | |
| | | -------------------------- | |
| (=) Subtotal: | = | $618,929 | |
| (+) Senior Appraised Value: | + | $0 | |
| (+) Non-Senior Appraised Value: | + | $618,929 | |
| | | -------------------------- | |
| (=) Total Appraised Value: | = | $618,929 | |
| (–) Senior Exemption Loss: | – | $0 | |
| (–) Exemption Loss: | – | $0 | |
| | | -------------------------- | |
| (=) Taxable Value: | = | $618,929 | |
Taxing Jurisdiction
| Owner: | BUTLER, DAVID | | |
| % Ownership: | 100.0000000000% | | |
| Total Value: | $618,929 | | |
| Tax Area: | 510 - APPRAISER-Stan/Cam Schl Dist, improved & 1 acre or less |
| CF | Conservation Futures | 0.0316035091 | $618,929 | $618,929 | $19.56 | | |
| EMS1 | Fire & Rescue Dist #1 Camano GEN (EMS) | 0.3677864386 | $618,929 | $618,929 | $227.63 | | |
| FIRE1 | Fire & Rescue Dist #1 Camano GEN | 1.2502910536 | $618,929 | $618,929 | $773.84 | | |
| FIRE1BOND | Fire & Rescue Dist #1 Camano BOND | 0.1570001679 | $618,929 | $618,929 | $97.17 | | |
| CE | County Current Expense | 0.3708482477 | $618,929 | $618,929 | $229.53 | | |
| CR | County Roads | 0.4584763726 | $618,929 | $618,929 | $283.76 | | |
| LCIB | Library Sno-Isle BOND (Camano Island) | 0.0396325772 | $618,929 | $618,929 | $24.53 | | |
| LIB | Library Sno-Isle GEN | 0.3153421757 | $618,929 | $618,929 | $195.17 | | |
| SCH205_401 | School 205-401 Enrichment | 1.2698420524 | $618,929 | $618,929 | $785.94 | | |
| SCH205BOND | School 205-401 BOND | 0.9396497583 | $618,929 | $618,929 | $581.58 | | |
| ST | State School | 1.3035497053 | $618,929 | $618,929 | $806.80 | | |
| ST2 | State School Part 2 | 0.8169543533 | $618,929 | $618,929 | $505.64 | | |
| | Total Tax Rate: | 7.3209764117 | | | | | |
| | | | | Taxes w/Current Exemptions: | $4,531.15 | | |
| | | | | Taxes w/o Exemptions: | $4,531.15 | | |
Improvement / Building
| Improvement #1: | RESIDENTIAL | State Code: | Y | 1344.0 sqft | Value: | $308,929 |
| Bathrooms: | 2 | Bedrooms: | 3 | | Ceiling: | DRYWALL PAINTED | Exterior Wall/Cover: | CEMENT FIBER | | Floor Covering: | CARPET/VINYL 20-80 | Floor Structure: | WOOD W/SUBFLOOR | | Foundation: | CONCRETE | Heating: | FHA ELECTRIC | | Interior Finish: | DRYWALL PAINT | Plumbing Fixture Cnt: | 9 | | Roof Slope: | 5" IN 12" | Roof Structure/Cover: | CJ ASPHALT |
|
| | Type | Description | Class CD | Sub Class CD | Year Built | Area |
| | BAS | BASE/MAIN FLOOR | 3 | 0 | 2020 | 1344.0 |
| | AGR | ATTACHED GARAGE | 3 | 0 | 2020 | 440.0 |
| | OWP | OPEN WOOD PORCH W/STEPS | 3 | 0 | 2020 | 445.0 |
| | OWC | OPEN WOOD PORCH W/STEPS/ROOF/C | 3 | 0 | 2020 | 48.0 |
Sketch
Property Image
Land
| 1 | 14 | SQ (08001-12000) | 0.0000 | 0.00 | 0.00 | 0.00 | 1.00 | $310,000 | $0 |
Roll Value History
| 2026 | N/A | N/A | N/A | N/A | N/A |
| 2025 | $308,929 | $310,000 | $0 | $618,929 | $618,929 |
| 2024 | $311,400 | $280,000 | $0 | $591,400 | $591,400 |
| 2023 | $313,871 | $275,000 | $0 | $588,871 | $588,871 |
| 2022 | $287,191 | $250,000 | $0 | $537,191 | $537,191 |
| 2021 | $277,522 | $180,000 | $0 | $457,522 | $457,522 |
| 2020 | $272,237 | $150,000 | $0 | $422,237 | $422,237 |
| 2019 | $0 | $60,000 | $0 | $60,000 | $60,000 |
| 2018 | $1,341 | $140,000 | $0 | $141,341 | $141,341 |
| 2017 | $1,341 | $90,000 | $0 | $91,341 | $91,341 |
| 2016 | $1,341 | $65,000 | $0 | $66,341 | $66,341 |
| 2015 | $1,341 | $50,000 | $0 | $51,341 | $51,341 |
| 2014 | $1,341 | $50,000 | $0 | $51,341 | $51,341 |
| 2013 | $1,341 | $50,000 | $0 | $51,341 | $51,341 |
| 2012 | $1,341 | $56,000 | $0 | $57,341 | $57,341 |
| 2011 | $1,341 | $70,000 | $0 | $71,341 | $71,341 |
| 2010 | $1,341 | $70,000 | $0 | $71,341 | $71,341 |
| 2009 | $1,529 | $50,000 | $0 | $51,529 | $51,529 |
| 2008 | $1,716 | $85,000 | $0 | $86,716 | $86,716 |
| 2007 | $1,935 | $85,000 | $0 | $86,935 | $86,935 |
Deed and Sales History
| 1 | 07/09/2020 | WD | Warranty Deed | FLOORS & MORE, INC | BUTLER, DAVID | | | $499,000.00 | 43750 | 4490979 |
| 2 | 08/01/2019 | WD | Warranty Deed | KNIGHT, MARSHA R | FLOORS & MORE, INC | | | $87,500.00 | 39701 | 4468592 |
| 3 | 08/27/2004 | WD | Warranty Deed | LOOS, FRED | KNIGHT, MARSHA R | | | $100.00 | 45185 | 4117120 |
| 4 | 04/01/1990 | WD | Warranty Deed | PRESSLER, GOETZ I | LOOS, FRED | | | $18,000.00 | 3170 | 90010266 |
| 5 | 10/01/1978 | OTHER | Other - Misc. Documents | Unknown | PRESSLER, GOETZ I | | | $6,000.00 | 85227 | 341811 |
Payout Agreement
| No payout information available.. |