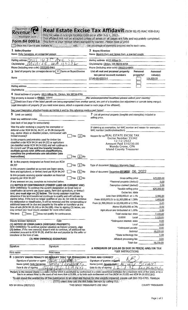
Property
Account |
| Property ID: | 214075 | Abbreviated Legal Description: | CCC 9 LOT 3 BLK 13 |
| Geographic ID: | S6250-09-13003-0 | Agent Code: | |
| Type: | Real | | |
| Tax Area: | 510 - APPRAISER-Stan/Cam Schl Dist, improved & 1 acre or less | Land Use Code | 11 |
| Open Space: | N | DFL | N |
| Historic Property: | N | Remodel Property: | N |
| Multi-Family Redevelopment: | N | | |
| Township: | | Section: | |
| Range: | |
Location |
| Address: | 1461 PROSPECT ST CAMANO ISLAND, WA 98282 | Mapsco: | |
| Neighborhood: | Cycle 5 | Map ID: | 930 |
| Neighborhood CD: | 5 |
Owner |
| Name: | ROEBER, KIMBERLY J | Owner ID: | 304157 |
| Mailing Address: | PO BOX 673 SNOQUALMIE, WA 98065 | % Ownership: | 100.0000000000% |
| | | Exemptions: | |
Taxes and Assessment Details
Values
| (+) Improvement Homesite Value: | + | $0 | |
| (+) Improvement Non-Homesite Value: | + | $149,504 | |
| (+) Land Homesite Value: | + | $0 | |
| (+) Land Non-Homesite Value: | + | $390,000 | |
| (+) Curr Use (HS): | + | $0 | $0 |
| (+) Curr Use (NHS): | + | $0 | $0 |
| | | -------------------------- | |
| (=) Market Value: | = | $539,504 | |
| (–) Productivity Loss: | – | $0 | |
| | | -------------------------- | |
| (=) Subtotal: | = | $539,504 | |
| (+) Senior Appraised Value: | + | $0 | |
| (+) Non-Senior Appraised Value: | + | $539,504 | |
| | | -------------------------- | |
| (=) Total Appraised Value: | = | $539,504 | |
| (–) Senior Exemption Loss: | – | $0 | |
| (–) Exemption Loss: | – | $0 | |
| | | -------------------------- | |
| (=) Taxable Value: | = | $539,504 | |
Taxing Jurisdiction
| Owner: | ROEBER, KIMBERLY J | | |
| % Ownership: | 100.0000000000% | | |
| Total Value: | $539,504 | | |
| Tax Area: | 510 - APPRAISER-Stan/Cam Schl Dist, improved & 1 acre or less |
| CF | Conservation Futures | 0.0316035091 | $539,504 | $539,504 | $17.05 | | |
| EMS1 | Fire & Rescue Dist #1 Camano GEN (EMS) | 0.3677864386 | $539,504 | $539,504 | $198.42 | | |
| FIRE1 | Fire & Rescue Dist #1 Camano GEN | 1.2502910536 | $539,504 | $539,504 | $674.54 | | |
| FIRE1BOND | Fire & Rescue Dist #1 Camano BOND | 0.1570001679 | $539,504 | $539,504 | $84.70 | | |
| CE | County Current Expense | 0.3708482477 | $539,504 | $539,504 | $200.07 | | |
| CR | County Roads | 0.4584763726 | $539,504 | $539,504 | $247.35 | | |
| LCIB | Library Sno-Isle BOND (Camano Island) | 0.0396325772 | $539,504 | $539,504 | $21.38 | | |
| LIB | Library Sno-Isle GEN | 0.3153421757 | $539,504 | $539,504 | $170.13 | | |
| SCH205_401 | School 205-401 Enrichment | 1.2698420524 | $539,504 | $539,504 | $685.08 | | |
| SCH205BOND | School 205-401 BOND | 0.9396497583 | $539,504 | $539,504 | $506.94 | | |
| ST | State School | 1.3035497053 | $539,504 | $539,504 | $703.27 | | |
| ST2 | State School Part 2 | 0.8169543533 | $539,504 | $539,504 | $440.75 | | |
| | Total Tax Rate: | 7.3209764117 | | | | | |
| | | | | Taxes w/Current Exemptions: | $3,949.68 | | |
| | | | | Taxes w/o Exemptions: | $3,949.68 | | |
Improvement / Building
| Improvement #1: | RESIDENTIAL | State Code: | Y | 792.0 sqft | Value: | $149,504 |
| Bathrooms: | 2 | Bedrooms: | 2 | | Ceiling: | BEAM PAINTED | Exterior Wall/Cover: | WOOD SIDING | | Floor Covering: | CARPET/VINYL 80-20 | Floor Structure: | WOOD W/SUBFLOOR | | Foundation: | CONCRETE BLOCKS | Heating: | BASEBOARD ELECTRIC | | Interior Finish: | DRYWALL PAINT | Plumbing Fixture Cnt: | 9 | | Roof Slope: | 3" IN 12" | Roof Structure/Cover: | BEAM ASPHALT |
|
| | Type | Description | Class CD | Sub Class CD | Year Built | Area |
| | BAS | BASE/MAIN FLOOR | 3 | 0 | 1963 | 792.0 |
| | UB6 | BASEMENT UNFINISHED 6" | 3 | 0 | 1963 | 792.1 |
| | OWP | OPEN WOOD PORCH W/STEPS | 3 | 0 | 1963 | 922.0 |
Sketch
Property Image
Land
| 1 | 15 | SQ (12001-21780) | 0.0000 | 0.00 | 86.00 | 0.00 | 1.00 | $390,000 | $0 |
Roll Value History
| 2026 | N/A | N/A | N/A | N/A | N/A |
| 2025 | $149,504 | $390,000 | $0 | $539,504 | $539,504 |
| 2024 | $152,387 | $360,000 | $0 | $512,387 | $512,387 |
| 2023 | $154,915 | $330,000 | $0 | $484,915 | $484,915 |
| 2022 | $142,571 | $300,000 | $0 | $442,571 | $442,571 |
| 2021 | $117,871 | $200,000 | $0 | $317,871 | $317,871 |
| 2020 | $114,820 | $180,000 | $0 | $294,820 | $294,820 |
| 2019 | $79,001 | $230,000 | $0 | $309,001 | $309,001 |
| 2018 | $79,314 | $200,000 | $0 | $279,314 | $279,314 |
| 2017 | $79,938 | $200,000 | $0 | $279,938 | $279,938 |
| 2016 | $81,188 | $200,000 | $0 | $281,188 | $281,188 |
| 2015 | $65,568 | $200,000 | $0 | $265,568 | $265,568 |
| 2014 | $66,783 | $200,000 | $0 | $266,783 | $266,783 |
| 2013 | $67,996 | $231,933 | $0 | $299,929 | $299,929 |
| 2012 | $69,211 | $231,933 | $0 | $301,144 | $301,144 |
| 2011 | $70,425 | $244,140 | $0 | $314,565 | $314,565 |
| 2010 | $76,813 | $244,140 | $0 | $320,953 | $320,953 |
| 2009 | $78,674 | $366,211 | $0 | $444,885 | $444,885 |
| 2008 | $79,872 | $397,283 | $0 | $477,155 | $477,155 |
| 2007 | $81,069 | $377,309 | $0 | $458,378 | $458,378 |
Deed and Sales History
| 1 | 05/05/2022 | WD | Warranty Deed | MCFADDEN, FRANCIS (FRANK) C | ROEBER, KIMBERLY J | | | $0.00 | 53029 | 4544814 |
| 2 | 10/22/2019 | PRD | Personal Representatives Deed | MCFADDEN, FRANCIS C | MCFADDEN, FRANCIS (FRANK) C | | | $0.00 | 41166 | 4476682 |
| 3 | 12/01/1986 | REC | Real Estate Contract | MCFADDEN, FRANCIS C | MCFADDEN, FRANCIS C | | | $83,000.00 | 63713 | 86016561 |
| 4 | 12/01/1986 | WD | Warranty Deed | JONES, WILLIAM H | MCFADDEN, FRANCIS C | | | $0.00 | 88 | 90000239 |
| 5 | 01/01/1900 | OTHER | Other - Misc. Documents | Unknown | JONES, WILLIAM H | | | $0.00 | 0 | 0 |
Payout Agreement
| No payout information available.. |