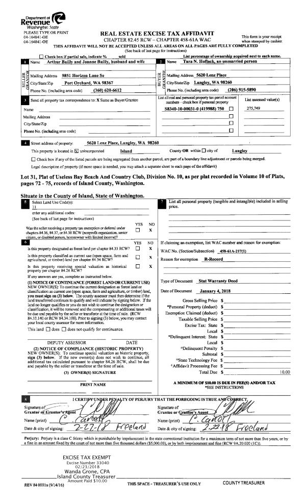
Property
Account |
| Property ID: | 214299 | Abbreviated Legal Description: | CCC 10 LOT 10 BLK 14 INCL ADJ TIDES |
| Geographic ID: | S6250-10-14010-0 | Agent Code: | |
| Type: | Real | | |
| Tax Area: | 510 - APPRAISER-Stan/Cam Schl Dist, improved & 1 acre or less | Land Use Code | 11 |
| Open Space: | N | DFL | N |
| Historic Property: | N | Remodel Property: | N |
| Multi-Family Redevelopment: | N | | |
| Township: | | Section: | |
| Range: | |
Location |
| Address: | 1339 BEACH DR CAMANO ISLAND, WA 98282 | Mapsco: | |
| Neighborhood: | Cycle 5 | Map ID: | 932 |
| Neighborhood CD: | 5 |
Owner |
| Name: | HAUSMANN CO-TTEE, KARL FRANCIS | Owner ID: | 283922 |
| Mailing Address: | MARTHA HAUSMANN FALVEY CO-TTEE 2605 VIEWCREST AVE EVERETT, WA 98203 | % Ownership: | 100.0000000000% |
| | | Exemptions: | |
Taxes and Assessment Details
Values
| (+) Improvement Homesite Value: | + | $0 | |
| (+) Improvement Non-Homesite Value: | + | $231,293 | |
| (+) Land Homesite Value: | + | $0 | |
| (+) Land Non-Homesite Value: | + | $1,025,600 | |
| (+) Curr Use (HS): | + | $0 | $0 |
| (+) Curr Use (NHS): | + | $0 | $0 |
| | | -------------------------- | |
| (=) Market Value: | = | $1,256,893 | |
| (–) Productivity Loss: | – | $0 | |
| | | -------------------------- | |
| (=) Subtotal: | = | $1,256,893 | |
| (+) Senior Appraised Value: | + | $0 | |
| (+) Non-Senior Appraised Value: | + | $1,256,893 | |
| | | -------------------------- | |
| (=) Total Appraised Value: | = | $1,256,893 | |
| (–) Senior Exemption Loss: | – | $0 | |
| (–) Exemption Loss: | – | $0 | |
| | | -------------------------- | |
| (=) Taxable Value: | = | $1,256,893 | |
Taxing Jurisdiction
| Owner: | HAUSMANN CO-TTEE, KARL FRANCIS | | |
| % Ownership: | 100.0000000000% | | |
| Total Value: | $1,256,893 | | |
| Tax Area: | 510 - APPRAISER-Stan/Cam Schl Dist, improved & 1 acre or less |
| CF | Conservation Futures | 0.0316035091 | $1,256,893 | $1,256,893 | $39.72 | | |
| EMS1 | Fire & Rescue Dist #1 Camano GEN (EMS) | 0.3677864386 | $1,256,893 | $1,256,893 | $462.27 | | |
| FIRE1 | Fire & Rescue Dist #1 Camano GEN | 1.2502910536 | $1,256,893 | $1,256,893 | $1,571.48 | | |
| FIRE1BOND | Fire & Rescue Dist #1 Camano BOND | 0.1570001679 | $1,256,893 | $1,256,893 | $197.33 | | |
| CE | County Current Expense | 0.3708482477 | $1,256,893 | $1,256,893 | $466.12 | | |
| CR | County Roads | 0.4584763726 | $1,256,893 | $1,256,893 | $576.26 | | |
| LCIB | Library Sno-Isle BOND (Camano Island) | 0.0396325772 | $1,256,893 | $1,256,893 | $49.81 | | |
| LIB | Library Sno-Isle GEN | 0.3153421757 | $1,256,893 | $1,256,893 | $396.35 | | |
| SCH205_401 | School 205-401 Enrichment | 1.2698420524 | $1,256,893 | $1,256,893 | $1,596.06 | | |
| SCH205BOND | School 205-401 BOND | 0.9396497583 | $1,256,893 | $1,256,893 | $1,181.04 | | |
| ST | State School | 1.3035497053 | $1,256,893 | $1,256,893 | $1,638.42 | | |
| ST2 | State School Part 2 | 0.8169543533 | $1,256,893 | $1,256,893 | $1,026.82 | | |
| | Total Tax Rate: | 7.3209764117 | | | | | |
| | | | | Taxes w/Current Exemptions: | $9,201.68 | | |
| | | | | Taxes w/o Exemptions: | $9,201.68 | | |
Improvement / Building
| Improvement #1: | RESIDENTIAL | State Code: | Y | 1784.0 sqft | Value: | $231,293 |
| Bathrooms: | 1 | Bedrooms: | 3 | | Ceiling: | DRYWALL PAINTED | Exterior Wall/Cover: | PLY/HARDBOARD T-111 | | Floor Covering: | CARPET/VINYL 80-20 | Floor Structure: | WOOD W/SUBFLOOR | | Foundation: | CONCRETE | Heating: | BASEBOARD ELECTRIC | | Interior Finish: | DRYWALL PAINT | Plumbing Fixture Cnt: | 7 | | Roof Slope: | 5" IN 12" | Roof Structure/Cover: | BEAM ASPHALT |
|
| | Type | Description | Class CD | Sub Class CD | Year Built | Area |
| | BAS | BASE/MAIN FLOOR | 3 | 0 | 1961 | 1784.0 |
| | OWP | OPEN WOOD PORCH W/STEPS | 3 | 0 | 1961 | 210.0 |
| | OWP | OPEN WOOD PORCH W/STEPS | 3 | 0 | 1961 | 240.0 |
| | OWR | OPEN WOOD PORCH W/STEPS/ROOF | 3 | 0 | 1961 | 150.0 |
| | OWC | OPEN WOOD PORCH W/STEPS/ROOF/C | 3 | 0 | 1961 | 319.0 |
| | OCP | OPEN CARPORT | 3 | 0 | 1961 | 200.0 |
| | UTY | STORAGE/UTILITY | 3 | 0 | 1961 | 35.0 |
Sketch
Property Image
Land
| 1 | LB | LOW BANK | 0.0000 | 0.00 | 64.00 | 0.00 | 1.00 | $1,025,000 | $0 |
| 2 | 55 | TIDES | 0.0000 | 0.00 | 68.00 | 0.00 | 1.00 | $600 | $0 |
Roll Value History
| 2026 | N/A | N/A | N/A | N/A | N/A |
| 2025 | $231,293 | $1,025,600 | $0 | $1,256,893 | $1,256,893 |
| 2024 | $240,019 | $1,025,600 | $0 | $1,265,619 | $1,265,619 |
| 2023 | $243,643 | $1,025,600 | $0 | $1,269,243 | $1,269,243 |
| 2022 | $223,903 | $1,000,600 | $0 | $1,224,503 | $1,224,503 |
| 2021 | $167,110 | $850,600 | $0 | $1,017,710 | $1,017,710 |
| 2020 | $163,921 | $825,600 | $0 | $989,521 | $989,521 |
| 2019 | $122,862 | $875,600 | $0 | $998,462 | $998,462 |
| 2018 | $123,326 | $475,600 | $0 | $598,926 | $598,926 |
| 2017 | $124,253 | $475,600 | $0 | $599,853 | $599,853 |
| 2016 | $126,107 | $400,600 | $0 | $526,707 | $526,707 |
| 2015 | $109,922 | $400,600 | $0 | $510,522 | $510,522 |
| 2014 | $111,695 | $400,600 | $0 | $512,295 | $512,295 |
| 2013 | $113,470 | $558,660 | $0 | $672,130 | $672,130 |
| 2012 | $115,242 | $558,660 | $0 | $673,902 | $673,902 |
| 2011 | $117,015 | $588,027 | $0 | $705,042 | $705,042 |
| 2010 | $128,589 | $588,027 | $0 | $716,616 | $716,616 |
| 2009 | $131,467 | $662,425 | $0 | $793,892 | $793,892 |
| 2008 | $133,339 | $799,472 | $0 | $932,811 | $932,811 |
| 2007 | $135,222 | $509,238 | $0 | $644,460 | $644,460 |
Deed and Sales History
| 1 | 02/01/2018 | QCD | Quit Claim Deed | HAUSMANN, MARJORIE A | HAUSMANN CO-TTEE, KARL FRANCIS | | | $0.00 | 32937 | 4439183 |
| 2 | 10/02/2013 | PRD | Personal Representatives Deed | HAUSMANN, BRYCE | HAUSMANN, MARJORIE A | | | $0.00 | 13467 | 4351516 |
Payout Agreement
| No payout information available.. |