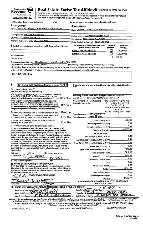
Property
Account |
| Property ID: | 214315 | Abbreviated Legal Description: | CCC 11 LOT 1 BLK 15 INCL ADJ TIDES |
| Geographic ID: | S6250-11-15001-0 | Agent Code: | |
| Type: | Real | | |
| Tax Area: | 510 - APPRAISER-Stan/Cam Schl Dist, improved & 1 acre or less | Land Use Code | 11 |
| Open Space: | N | DFL | N |
| Historic Property: | N | Remodel Property: | N |
| Multi-Family Redevelopment: | N | | |
| Township: | | Section: | |
| Range: | |
Location |
| Address: | 1743 HARTMAN PLACE CAMANO ISLAND, WA 98282 | Mapsco: | |
| Neighborhood: | Cycle 5 | Map ID: | 935 |
| Neighborhood CD: | 5 |
Owner |
| Name: | WASHBURN TTEE, ALLAN HOOOVER | Owner ID: | 311213 |
| Mailing Address: | GAYLE LONGSTRETH WASHBURN 1743 HARTMAN PL CAMANO ISLAND, WA 98282 | % Ownership: | 100.0000000000% |
| | | Exemptions: | |
Taxes and Assessment Details
Values
| (+) Improvement Homesite Value: | + | $0 | |
| (+) Improvement Non-Homesite Value: | + | $286,403 | |
| (+) Land Homesite Value: | + | $0 | |
| (+) Land Non-Homesite Value: | + | $525,730 | |
| (+) Curr Use (HS): | + | $0 | $0 |
| (+) Curr Use (NHS): | + | $0 | $0 |
| | | -------------------------- | |
| (=) Market Value: | = | $812,133 | |
| (–) Productivity Loss: | – | $0 | |
| | | -------------------------- | |
| (=) Subtotal: | = | $812,133 | |
| (+) Senior Appraised Value: | + | $0 | |
| (+) Non-Senior Appraised Value: | + | $812,133 | |
| | | -------------------------- | |
| (=) Total Appraised Value: | = | $812,133 | |
| (–) Senior Exemption Loss: | – | $0 | |
| (–) Exemption Loss: | – | $0 | |
| | | -------------------------- | |
| (=) Taxable Value: | = | $812,133 | |
Taxing Jurisdiction
| Owner: | WASHBURN TTEE, ALLAN HOOOVER | | |
| % Ownership: | 100.0000000000% | | |
| Total Value: | $812,133 | | |
| Tax Area: | 510 - APPRAISER-Stan/Cam Schl Dist, improved & 1 acre or less |
| CF | Conservation Futures | 0.0316035091 | $812,133 | $812,133 | $25.67 | | |
| EMS1 | Fire & Rescue Dist #1 Camano GEN (EMS) | 0.3677864386 | $812,133 | $812,133 | $298.69 | | |
| FIRE1 | Fire & Rescue Dist #1 Camano GEN | 1.2502910536 | $812,133 | $812,133 | $1,015.40 | | |
| FIRE1BOND | Fire & Rescue Dist #1 Camano BOND | 0.1570001679 | $812,133 | $812,133 | $127.51 | | |
| CE | County Current Expense | 0.3708482477 | $812,133 | $812,133 | $301.18 | | |
| CR | County Roads | 0.4584763726 | $812,133 | $812,133 | $372.34 | | |
| LCIB | Library Sno-Isle BOND (Camano Island) | 0.0396325772 | $812,133 | $812,133 | $32.19 | | |
| LIB | Library Sno-Isle GEN | 0.3153421757 | $812,133 | $812,133 | $256.10 | | |
| SCH205_401 | School 205-401 Enrichment | 1.2698420524 | $812,133 | $812,133 | $1,031.28 | | |
| SCH205BOND | School 205-401 BOND | 0.9396497583 | $812,133 | $812,133 | $763.12 | | |
| ST | State School | 1.3035497053 | $812,133 | $812,133 | $1,058.66 | | |
| ST2 | State School Part 2 | 0.8169543533 | $812,133 | $812,133 | $663.48 | | |
| | Total Tax Rate: | 7.3209764117 | | | | | |
| | | | | Taxes w/Current Exemptions: | $5,945.62 | | |
| | | | | Taxes w/o Exemptions: | $5,945.62 | | |
Improvement / Building
| Improvement #1: | RESIDENTIAL | State Code: | Y | 1618.0 sqft | Value: | $286,403 |
| Bathrooms: | 1.5 | Bedrooms: | 2 | | Ceiling: | DRY WALL SPRAYED | Cooling: | HEAT PUMP/CONV/V | | Exterior Wall/Cover: | WOOD SIDING | Floor Covering: | CARPET/VINYL 80-20 | | Floor Structure: | WOOD W/SUBFLOOR | Foundation: | CONCRETE | | Interior Finish: | DRYWALL PAINT | Plumbing Fixture Cnt: | 11 | | Roof Slope: | 5" IN 12" | Roof Structure/Cover: | CJ ASPHALT |
|
| | Type | Description | Class CD | Sub Class CD | Year Built | Area |
| | BAS | BASE/MAIN FLOOR | 3 | 0 | 1968 | 1618.0 |
| | OP4 | OPEN PORCH W/CEILING-ROOF | 3 | 0 | 1968 | 48.0 |
| | AGR | ATTACHED GARAGE | 3 | 0 | 1968 | 600.0 |
| | OP3 | OPEN PORCH W/ROOF | 3 | 0 | 1968 | 21.0 |
Sketch
Property Image
Land
| 1 | HB | HIGH BLUFF | 0.0000 | 0.00 | 72.00 | 0.00 | 1.00 | $525,000 | $0 |
| 2 | 55 | TIDES | 0.0000 | 0.00 | 73.00 | 0.00 | 1.00 | $730 | $0 |
Roll Value History
| 2026 | N/A | N/A | N/A | N/A | N/A |
| 2025 | $286,403 | $525,730 | $0 | $812,133 | $812,133 |
| 2024 | $290,313 | $525,730 | $0 | $816,043 | $816,043 |
| 2023 | $294,223 | $500,730 | $0 | $794,953 | $794,953 |
| 2022 | $269,963 | $550,730 | $0 | $820,693 | $820,693 |
| 2021 | $203,239 | $290,730 | $0 | $493,969 | $493,969 |
| 2020 | $198,310 | $290,730 | $0 | $489,040 | $489,040 |
| 2019 | $143,438 | $325,730 | $0 | $469,168 | $469,168 |
| 2018 | $143,957 | $300,730 | $0 | $444,687 | $444,687 |
| 2017 | $144,994 | $275,730 | $0 | $420,724 | $420,724 |
| 2016 | $147,064 | $200,730 | $0 | $347,794 | $347,794 |
| 2015 | $118,269 | $200,730 | $0 | $318,999 | $318,999 |
| 2014 | $120,258 | $200,730 | $0 | $320,988 | $320,988 |
| 2013 | $122,248 | $196,930 | $0 | $319,178 | $319,178 |
| 2012 | $124,238 | $196,930 | $0 | $321,168 | $321,168 |
| 2011 | $126,227 | $207,256 | $0 | $333,483 | $333,483 |
| 2010 | $139,806 | $207,256 | $0 | $347,062 | $347,062 |
| 2009 | $133,502 | $310,519 | $0 | $444,021 | $444,021 |
| 2008 | $135,531 | $336,804 | $0 | $472,335 | $472,335 |
| 2007 | $137,559 | $319,396 | $0 | $456,955 | $456,955 |
Deed and Sales History
| 1 | 01/08/2024 | WD | Warranty Deed | WASHBURN, ALLAN | WASHBURN TTEE, ALLAN HOOOVER | | | $0.00 | 59021 | 4568603 |
| 2 | 10/29/2015 | WD | Warranty Deed | KINNEAR, KENNETH E | WASHBURN, ALLAN | | | $420,000.00 | 22110 | 4389315 |
| 3 | 05/31/2002 | QCD | Quit Claim Deed | KINNEAR, MARGARET | KINNEAR, KENNETH E | | | $0.00 | 22169 | 4022143 |
| 4 | 09/21/1998 | OTHER | Other - Misc. Documents | Unknown | KINNEAR, MARGARET | | | $0.00 | 68010 | 0 |
Payout Agreement
| No payout information available.. |