Property
Account |
| Property ID: | 214654 | Abbreviated Legal Description: | CCC 13 LOT 13 BLK 17 |
| Geographic ID: | S6250-13-17013-0 | Agent Code: | |
| Type: | Real | | |
| Tax Area: | 510 - APPRAISER-Stan/Cam Schl Dist, improved & 1 acre or less | Land Use Code | 11 |
| Open Space: | N | DFL | N |
| Historic Property: | N | Remodel Property: | N |
| Multi-Family Redevelopment: | N | | |
| Township: | | Section: | |
| Range: | |
Location |
| Address: | 1819 CASCADE VIEW DR CAMANO ISLAND, WA 98282 | Mapsco: | |
| Neighborhood: | Cycle 5 | Map ID: | 933 |
| Neighborhood CD: | 5 |
Owner |
| Name: | KIM TTEE, JAE HOON | Owner ID: | 312432 |
| Mailing Address: | MYOUNG HO KIM TTEE 6001 167TH AVE SE BELLEVUE, WA 98006 | % Ownership: | 100.0000000000% |
| | | Exemptions: | |
Taxes and Assessment Details
Values
| (+) Improvement Homesite Value: | + | $0 | |
| (+) Improvement Non-Homesite Value: | + | $526,559 | |
| (+) Land Homesite Value: | + | $0 | |
| (+) Land Non-Homesite Value: | + | $525,000 | |
| (+) Curr Use (HS): | + | $0 | $0 |
| (+) Curr Use (NHS): | + | $0 | $0 |
| | | -------------------------- | |
| (=) Market Value: | = | $1,051,559 | |
| (–) Productivity Loss: | – | $0 | |
| | | -------------------------- | |
| (=) Subtotal: | = | $1,051,559 | |
| (+) Senior Appraised Value: | + | $0 | |
| (+) Non-Senior Appraised Value: | + | $1,051,559 | |
| | | -------------------------- | |
| (=) Total Appraised Value: | = | $1,051,559 | |
| (–) Senior Exemption Loss: | – | $0 | |
| (–) Exemption Loss: | – | $0 | |
| | | -------------------------- | |
| (=) Taxable Value: | = | $1,051,559 | |
Taxing Jurisdiction
| Owner: | KIM TTEE, JAE HOON | | |
| % Ownership: | 100.0000000000% | | |
| Total Value: | $1,051,559 | | |
| Tax Area: | 510 - APPRAISER-Stan/Cam Schl Dist, improved & 1 acre or less |
| CF | Conservation Futures | 0.0316035091 | $1,051,559 | $1,051,559 | $33.23 | | |
| EMS1 | Fire & Rescue Dist #1 Camano GEN (EMS) | 0.3677864386 | $1,051,559 | $1,051,559 | $386.75 | | |
| FIRE1 | Fire & Rescue Dist #1 Camano GEN | 1.2502910536 | $1,051,559 | $1,051,559 | $1,314.75 | | |
| FIRE1BOND | Fire & Rescue Dist #1 Camano BOND | 0.1570001679 | $1,051,559 | $1,051,559 | $165.09 | | |
| CE | County Current Expense | 0.3708482477 | $1,051,559 | $1,051,559 | $389.97 | | |
| CR | County Roads | 0.4584763726 | $1,051,559 | $1,051,559 | $482.11 | | |
| LCIB | Library Sno-Isle BOND (Camano Island) | 0.0396325772 | $1,051,559 | $1,051,559 | $41.68 | | |
| LIB | Library Sno-Isle GEN | 0.3153421757 | $1,051,559 | $1,051,559 | $331.60 | | |
| SCH205_401 | School 205-401 Enrichment | 1.2698420524 | $1,051,559 | $1,051,559 | $1,335.31 | | |
| SCH205BOND | School 205-401 BOND | 0.9396497583 | $1,051,559 | $1,051,559 | $988.10 | | |
| ST | State School | 1.3035497053 | $1,051,559 | $1,051,559 | $1,370.76 | | |
| ST2 | State School Part 2 | 0.8169543533 | $1,051,559 | $1,051,559 | $859.08 | | |
| | Total Tax Rate: | 7.3209764117 | | | | | |
| | | | | Taxes w/Current Exemptions: | $7,698.43 | | |
| | | | | Taxes w/o Exemptions: | $7,698.43 | | |
Improvement / Building
| Improvement #1: | RESIDENTIAL | State Code: | Y | 3183.6 sqft | Value: | $526,559 |
| Bathrooms: | 3 | Bedrooms: | 3 | | Ceiling: | DRYWALL PAINTED | Exterior Wall/Cover: | CEMENT FIBER | | Floor Covering: | HARDWOOD/CARP 20-80 | Floor Structure: | WOOD W/SUBFLOOR | | Foundation: | CONCRETE | Heating: | FHA GAS | | Interior Finish: | DRYWALL PAINT | Plumbing Fixture Cnt: | 14 | | Roof Slope: | 6" IN 12" | Roof Structure/Cover: | CJ ASPHALT |
|
| | Type | Description | Class CD | Sub Class CD | Year Built | Area |
| | BAS | BASE/MAIN FLOOR | 4 | 0 | 2004 | 2110.0 |
| | OP4 | OPEN PORCH W/CEILING-ROOF | 4 | 0 | 2004 | 77.4 |
| | AGR | ATTACHED GARAGE | 4 | 0 | 2004 | 718.1 |
| | OWP | OPEN WOOD PORCH W/STEPS | 4 | 0 | 2004 | 269.1 |
| | OWP | OPEN WOOD PORCH W/STEPS | 4 | 0 | 2004 | 72.0 |
| | OWC | OPEN WOOD PORCH W/STEPS/ROOF/C | 4 | 0 | 2004 | 120.0 |
| | DWN | DOWNSTAIRS LIVING AREA | 4 | 0 | 2004 | 1073.6 |
Sketch
Property Image
Land
| 1 | HB | HIGH BLUFF | 0.0000 | 0.00 | 74.00 | 0.00 | 1.00 | $525,000 | $0 |
Roll Value History
| 2026 | N/A | N/A | N/A | N/A | N/A |
| 2025 | $526,559 | $525,000 | $0 | $1,051,559 | $1,051,559 |
| 2024 | $532,593 | $525,000 | $0 | $1,057,593 | $1,057,593 |
| 2023 | $538,628 | $500,000 | $0 | $1,038,628 | $1,038,628 |
| 2022 | $491,831 | $550,000 | $0 | $1,041,831 | $1,041,831 |
| 2021 | $405,589 | $290,000 | $0 | $695,589 | $695,589 |
| 2020 | $395,652 | $290,000 | $0 | $685,652 | $685,652 |
| 2019 | $310,736 | $325,000 | $0 | $635,736 | $635,736 |
| 2018 | $311,627 | $300,000 | $0 | $611,627 | $611,627 |
| 2017 | $313,312 | $275,000 | $0 | $588,312 | $588,312 |
| 2016 | $316,871 | $200,000 | $0 | $516,871 | $516,871 |
| 2015 | $298,150 | $200,000 | $0 | $498,150 | $498,150 |
| 2014 | $301,451 | $200,000 | $0 | $501,451 | $501,451 |
| 2013 | $304,755 | $201,650 | $0 | $506,405 | $506,405 |
| 2012 | $308,058 | $201,650 | $0 | $509,708 | $509,708 |
| 2011 | $311,361 | $212,263 | $0 | $523,624 | $523,624 |
| 2010 | $315,698 | $212,263 | $0 | $527,961 | $527,961 |
| 2009 | $331,957 | $318,394 | $0 | $650,351 | $650,351 |
| 2008 | $332,175 | $345,410 | $0 | $677,585 | $677,585 |
| 2007 | $393,091 | $328,043 | $0 | $721,134 | $721,134 |
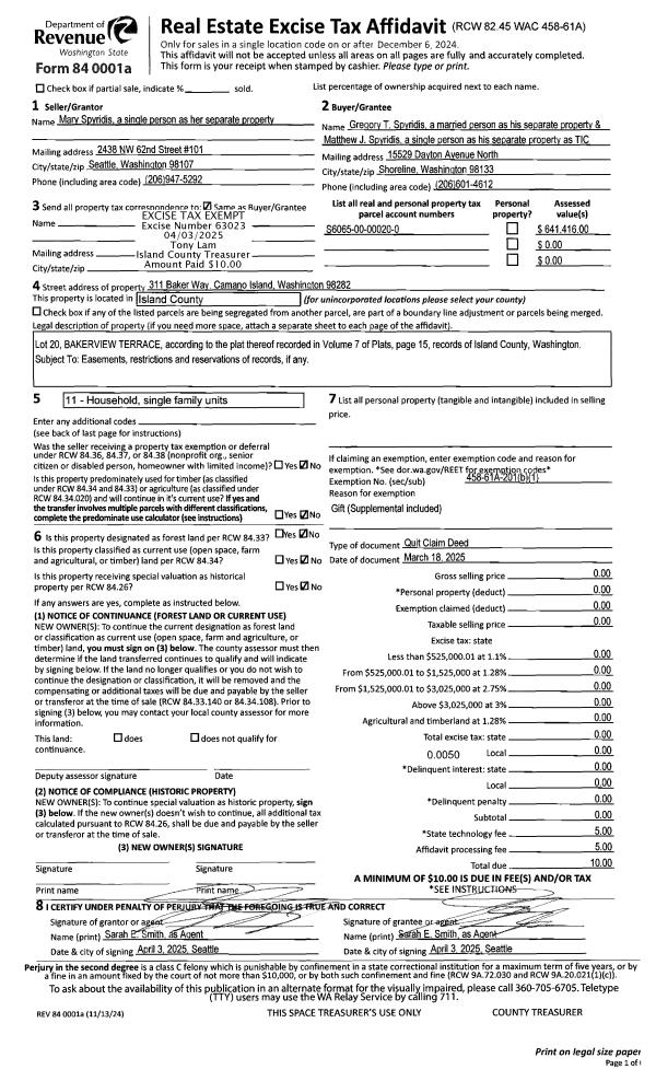
Deed and Sales History
| 1 | 05/21/2024 | QCD | Quit Claim Deed | KIM, JAE HOON | KIM TTEE, JAE HOON | | | $0.00 | 60016 | 4572529 |
| 2 | 07/15/2013 | WD | Warranty Deed | BRADY, MARGARET E | KIM, JAE HOON | | | $525,000.00 | 12032 | 4344211 |
| 3 | 03/25/2008 | WD | Warranty Deed | MELVILLE, KENNETH | BRADY, MARGARET E | | | $674,700.00 | 80746 | 4224980 |
| 4 | 12/02/2004 | WD | Warranty Deed | SEACREST CUSTOM HOMES INC, | MELVILLE, KENNETH | | | $459,000.00 | 45646 | 4119680 |
| 5 | 10/29/2003 | WD | Warranty Deed | LEVIN, LEO H | SEACREST CUSTOM HOMES INC, | | | $129,950.00 | 34957 | 4081356 |
| 6 | 04/01/1990 | WD | Warranty Deed | HUYNH, HAT T | LEVIN, LEO H | | | $89,000.00 | 2620 | 90008479 |
| 7 | 07/01/1989 | WD | Warranty Deed | SECKEL, DEAN C | HUYNH, HAT T | | | $33,000.00 | 92858 | 89009576 |
| 8 | 10/01/1980 | TRUSTEED | Trustee's Deed | OSTERGARD, DONALD E | SECKEL, DEAN C | | | $28,500.00 | 3421 | 375033 |
| 9 | 10/01/1980 | TRUSTEED | Trustee's Deed | JOHNSON, SARA B | OSTERGARD, DONALD E | | | $32,500.00 | 3420 | 375032 |
| 10 | 01/01/1900 | OTHER | Other - Misc. Documents | Unknown | JOHNSON, SARA B | | | $0.00 | 58797 | 0 |
Payout Agreement
| No payout information available.. |