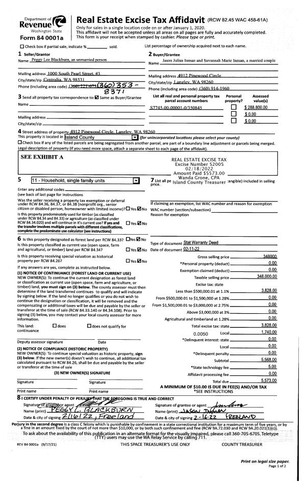
Property
Account |
| Property ID: | 214805 | Abbreviated Legal Description: | CCC 13 LOT 6 BLK 18 |
| Geographic ID: | S6250-13-18006-0 | Agent Code: | |
| Type: | Real | | |
| Tax Area: | 510 - APPRAISER-Stan/Cam Schl Dist, improved & 1 acre or less | Land Use Code | 11 |
| Open Space: | N | DFL | N |
| Historic Property: | N | Remodel Property: | N |
| Multi-Family Redevelopment: | N | | |
| Township: | | Section: | |
| Range: | |
Location |
| Address: | 1855 S EAST CAMANO DR CAMANO ISLAND, WA 98282 | Mapsco: | |
| Neighborhood: | Cycle 5 | Map ID: | 933 |
| Neighborhood CD: | 5 |
Owner |
| Name: | CASTO TTEE, HELGA | Owner ID: | 289955 |
| Mailing Address: | PO BOX 155 STANWOOD, WA 98292 | % Ownership: | 100.0000000000% |
| | | Exemptions: | |
Taxes and Assessment Details
Values
| (+) Improvement Homesite Value: | + | $0 | |
| (+) Improvement Non-Homesite Value: | + | $529,074 | |
| (+) Land Homesite Value: | + | $0 | |
| (+) Land Non-Homesite Value: | + | $390,000 | |
| (+) Curr Use (HS): | + | $0 | $0 |
| (+) Curr Use (NHS): | + | $0 | $0 |
| | | -------------------------- | |
| (=) Market Value: | = | $919,074 | |
| (–) Productivity Loss: | – | $0 | |
| | | -------------------------- | |
| (=) Subtotal: | = | $919,074 | |
| (+) Senior Appraised Value: | + | $0 | |
| (+) Non-Senior Appraised Value: | + | $919,074 | |
| | | -------------------------- | |
| (=) Total Appraised Value: | = | $919,074 | |
| (–) Senior Exemption Loss: | – | $0 | |
| (–) Exemption Loss: | – | $0 | |
| | | -------------------------- | |
| (=) Taxable Value: | = | $919,074 | |
Taxing Jurisdiction
| Owner: | CASTO TTEE, HELGA | | |
| % Ownership: | 100.0000000000% | | |
| Total Value: | $919,074 | | |
| Tax Area: | 510 - APPRAISER-Stan/Cam Schl Dist, improved & 1 acre or less |
| CF | Conservation Futures | 0.0316035091 | $919,074 | $919,074 | $29.05 | | |
| EMS1 | Fire & Rescue Dist #1 Camano GEN (EMS) | 0.3677864386 | $919,074 | $919,074 | $338.02 | | |
| FIRE1 | Fire & Rescue Dist #1 Camano GEN | 1.2502910536 | $919,074 | $919,074 | $1,149.11 | | |
| FIRE1BOND | Fire & Rescue Dist #1 Camano BOND | 0.1570001679 | $919,074 | $919,074 | $144.29 | | |
| CE | County Current Expense | 0.3708482477 | $919,074 | $919,074 | $340.84 | | |
| CR | County Roads | 0.4584763726 | $919,074 | $919,074 | $421.37 | | |
| LCIB | Library Sno-Isle BOND (Camano Island) | 0.0396325772 | $919,074 | $919,074 | $36.43 | | |
| LIB | Library Sno-Isle GEN | 0.3153421757 | $919,074 | $919,074 | $289.82 | | |
| SCH205_401 | School 205-401 Enrichment | 1.2698420524 | $919,074 | $919,074 | $1,167.08 | | |
| SCH205BOND | School 205-401 BOND | 0.9396497583 | $919,074 | $919,074 | $863.61 | | |
| ST | State School | 1.3035497053 | $919,074 | $919,074 | $1,198.06 | | |
| ST2 | State School Part 2 | 0.8169543533 | $919,074 | $919,074 | $750.84 | | |
| | Total Tax Rate: | 7.3209764117 | | | | | |
| | | | | Taxes w/Current Exemptions: | $6,728.52 | | |
| | | | | Taxes w/o Exemptions: | $6,728.52 | | |
Improvement / Building
| Improvement #1: | RESIDENTIAL | State Code: | Y | 2211.9 sqft | Value: | $529,074 |
| Bathrooms: | 2 | Bedrooms: | 2 | | Ceiling: | DRYWALL PAINTED | Exterior Wall/Cover: | CEMENT FIBER | | Floor Covering: | HARDWOOD 100% | Floor Structure: | WOOD W/SUBFLOOR | | Foundation: | CONCRETE | Heating: | FHA ELECTRIC | | Interior Finish: | DRYWALL PAINT | Plumbing Fixture Cnt: | 9 | | Roof Slope: | 6" IN 12" | Roof Structure/Cover: | CJ WOOD SHAKES |
|
| | Type | Description | Class CD | Sub Class CD | Year Built | Area |
| | BAS | BASE/MAIN FLOOR | 4 | 0 | 1991 | 2211.9 |
| | UB8 | BASEMENT UNFINISHED 8" | 4 | 0 | 1991 | 262.0 |
| | OP1 | OPEN PORCH SLAB | 4 | 0 | 1991 | 84.0 |
| | OP4 | OPEN PORCH W/CEILING-ROOF | 4 | 0 | 1991 | 56.0 |
| | AGR | ATTACHED GARAGE | 4 | 0 | 1991 | 704.0 |
| | OWP | OPEN WOOD PORCH W/STEPS | 4 | 0 | 1991 | 680.3 |
Sketch
Property Image
Land
| 1 | 15 | SQ (12001-21780) | 0.0000 | 0.00 | 0.00 | 0.00 | 1.00 | $390,000 | $0 |
Roll Value History
| 2026 | N/A | N/A | N/A | N/A | N/A |
| 2025 | $529,074 | $390,000 | $0 | $919,074 | $919,074 |
| 2024 | $535,584 | $360,000 | $0 | $895,584 | $895,584 |
| 2023 | $542,097 | $330,000 | $0 | $872,097 | $872,097 |
| 2022 | $496,784 | $300,000 | $0 | $796,784 | $796,784 |
| 2021 | $396,082 | $200,000 | $0 | $596,082 | $596,082 |
| 2020 | $387,210 | $180,000 | $0 | $567,210 | $567,210 |
| 2019 | $295,123 | $230,000 | $0 | $525,123 | $525,123 |
| 2018 | $296,055 | $200,000 | $0 | $496,055 | $496,055 |
| 2017 | $297,610 | $200,000 | $0 | $497,610 | $497,610 |
| 2016 | $301,329 | $110,000 | $0 | $411,329 | $411,329 |
| 2015 | $271,894 | $80,000 | $0 | $351,894 | $351,894 |
| 2014 | $275,413 | $80,000 | $0 | $355,413 | $355,413 |
| 2013 | $278,935 | $80,000 | $0 | $358,935 | $358,935 |
| 2012 | $282,456 | $86,304 | $0 | $368,760 | $368,760 |
| 2011 | $285,977 | $107,880 | $0 | $393,857 | $393,857 |
| 2010 | $294,818 | $107,880 | $0 | $402,698 | $402,698 |
| 2009 | $280,131 | $130,000 | $0 | $410,131 | $410,131 |
| 2008 | $283,661 | $230,000 | $0 | $513,661 | $513,661 |
| 2007 | $287,376 | $146,000 | $0 | $433,376 | $433,376 |
Deed and Sales History
| 1 | 05/05/2019 | QCD | Quit Claim Deed | CASTO, JOHN D | CASTO TTEE, HELGA | | | $0.00 | 38701 | 4464190 |
| 2 | 08/25/1999 | WD | Warranty Deed | BROWN, DEBORAH S | CASTO, JOHN D | | | $261,000.00 | 93674 | 99020796 |
| 3 | 02/01/1996 | WD | Warranty Deed | BROWN, DEBORAH S | BROWN, DEBORAH S | | | $252,500.00 | 60604 | 96003282 |
| 4 | 02/01/1996 | QCD | Quit Claim Deed | TELFORD, JACK F | BROWN, DEBORAH S | | | $0.00 | 60605 | 96003283 |
| 5 | 07/01/1991 | WD | Warranty Deed | GILBERG, JOHN A | TELFORD, JACK F | | | $63,000.00 | 12667 | 91011403 |
| 6 | 09/01/1989 | WD | Warranty Deed | TRUDEAU, SALLY I | GILBERG, JOHN A | | | $37,000.00 | 94202 | 89013834 |
| 7 | 03/01/1983 | WD | Warranty Deed | WILDER, GLENN C | TRUDEAU, SALLY I | | | $23,000.00 | 30717 | 407393 |
| 8 | 01/01/1900 | OTHER | Other - Misc. Documents | Unknown | WILDER, GLENN C | | | $0.00 | 0 | 0 |
Payout Agreement
| No payout information available.. |