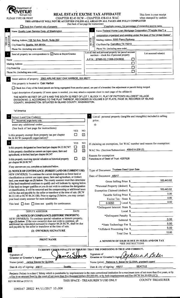
Property
Account |
| Property ID: | 214841 | Abbreviated Legal Description: | CCC 13 LOT 10 BLK 18 |
| Geographic ID: | S6250-13-18010-0 | Agent Code: | |
| Type: | Real | | |
| Tax Area: | 510 - APPRAISER-Stan/Cam Schl Dist, improved & 1 acre or less | Land Use Code | 11 |
| Open Space: | N | DFL | N |
| Historic Property: | N | Remodel Property: | N |
| Multi-Family Redevelopment: | N | | |
| Township: | | Section: | |
| Range: | |
Location |
| Address: | | Mapsco: | |
| Neighborhood: | Cycle 5 | Map ID: | 933 |
| Neighborhood CD: | 5 |
Owner |
| Name: | ALBERS TRUSTEE, GERALD E | Owner ID: | 279373 |
| Mailing Address: | REBECCA R ALBERS TRUSTEE 1837 S EAST CAMANO DR CAMANO ISLAND, WA 98282 | % Ownership: | 100.0000000000% |
| | | Exemptions: | |
Taxes and Assessment Details
Values
| (+) Improvement Homesite Value: | + | $0 | |
| (+) Improvement Non-Homesite Value: | + | $406,071 | |
| (+) Land Homesite Value: | + | $0 | |
| (+) Land Non-Homesite Value: | + | $390,000 | |
| (+) Curr Use (HS): | + | $0 | $0 |
| (+) Curr Use (NHS): | + | $0 | $0 |
| | | -------------------------- | |
| (=) Market Value: | = | $796,071 | |
| (–) Productivity Loss: | – | $0 | |
| | | -------------------------- | |
| (=) Subtotal: | = | $796,071 | |
| (+) Senior Appraised Value: | + | $0 | |
| (+) Non-Senior Appraised Value: | + | $796,071 | |
| | | -------------------------- | |
| (=) Total Appraised Value: | = | $796,071 | |
| (–) Senior Exemption Loss: | – | $0 | |
| (–) Exemption Loss: | – | $0 | |
| | | -------------------------- | |
| (=) Taxable Value: | = | $796,071 | |
Taxing Jurisdiction
| Owner: | ALBERS TRUSTEE, GERALD E | | |
| % Ownership: | 100.0000000000% | | |
| Total Value: | $796,071 | | |
| Tax Area: | 510 - APPRAISER-Stan/Cam Schl Dist, improved & 1 acre or less |
| CF | Conservation Futures | 0.0316035091 | $796,071 | $796,071 | $25.16 | | |
| EMS1 | Fire & Rescue Dist #1 Camano GEN (EMS) | 0.3677864386 | $796,071 | $796,071 | $292.78 | | |
| FIRE1 | Fire & Rescue Dist #1 Camano GEN | 1.2502910536 | $796,071 | $796,071 | $995.32 | | |
| FIRE1BOND | Fire & Rescue Dist #1 Camano BOND | 0.1570001679 | $796,071 | $796,071 | $124.98 | | |
| CE | County Current Expense | 0.3708482477 | $796,071 | $796,071 | $295.22 | | |
| CR | County Roads | 0.4584763726 | $796,071 | $796,071 | $364.98 | | |
| LCIB | Library Sno-Isle BOND (Camano Island) | 0.0396325772 | $796,071 | $796,071 | $31.55 | | |
| LIB | Library Sno-Isle GEN | 0.3153421757 | $796,071 | $796,071 | $251.03 | | |
| SCH205_401 | School 205-401 Enrichment | 1.2698420524 | $796,071 | $796,071 | $1,010.88 | | |
| SCH205BOND | School 205-401 BOND | 0.9396497583 | $796,071 | $796,071 | $748.03 | | |
| ST | State School | 1.3035497053 | $796,071 | $796,071 | $1,037.72 | | |
| ST2 | State School Part 2 | 0.8169543533 | $796,071 | $796,071 | $650.35 | | |
| | Total Tax Rate: | 7.3209764117 | | | | | |
| | | | | Taxes w/Current Exemptions: | $5,828.00 | | |
| | | | | Taxes w/o Exemptions: | $5,828.00 | | |
Improvement / Building
| Improvement #1: | RESIDENTIAL | State Code: | Y | 2514.0 sqft | Value: | $406,071 |
| Bathrooms: | 2 | Bedrooms: | 2 | | Ceiling: | DRYWALL PAINTED | Cooling: | FHA AND AC | | Exterior Wall/Cover: | CEMENT FIBER | Floor Covering: | HARDWOOD/CARP 20-80 | | Floor Structure: | WOOD W/SUBFLOOR | Foundation: | CONCRETE | | Heating: | FHA GAS | Interior Finish: | DRYWALL PAINT | | Plumbing Fixture Cnt: | 11 | Roof Slope: | 5" IN 12" | | Roof Structure/Cover: | CJ ASPHALT |   |   |
|
| | Type | Description | Class CD | Sub Class CD | Year Built | Area |
| | BAS | BASE/MAIN FLOOR | 3 | 0 | 1997 | 1454.0 |
| | UB8 | BASEMENT UNFINISHED 8" | 3 | 0 | 1997 | 330.0 |
| | DWN | DOWNSTAIRS LIVING AREA | 3 | 0 | 1997 | 1060.0 |
| | OP4 | OPEN PORCH W/CEILING-ROOF | 3 | 0 | 1997 | 20.0 |
| | AGR | ATTACHED GARAGE | 3 | 0 | 1997 | 624.0 |
| | OWP | OPEN WOOD PORCH W/STEPS | 3 | 0 | 1997 | 66.0 |
| | OWP | OPEN WOOD PORCH W/STEPS | 3 | 0 | 1997 | 389.0 |
Sketch
Property Image
Land
| 1 | 15 | SQ (12001-21780) | 0.0000 | 0.00 | 0.00 | 0.00 | 1.00 | $390,000 | $0 |
Roll Value History
| 2026 | N/A | N/A | N/A | N/A | N/A |
| 2025 | $406,071 | $390,000 | $0 | $796,071 | $796,071 |
| 2024 | $410,949 | $360,000 | $0 | $770,949 | $770,949 |
| 2023 | $415,826 | $330,000 | $0 | $745,826 | $745,826 |
| 2022 | $380,954 | $300,000 | $0 | $680,954 | $680,954 |
| 2021 | $312,056 | $200,000 | $0 | $512,056 | $512,056 |
| 2020 | $304,810 | $180,000 | $0 | $484,810 | $484,810 |
| 2019 | $238,110 | $230,000 | $0 | $468,110 | $468,110 |
| 2018 | $238,825 | $200,000 | $0 | $438,825 | $438,825 |
| 2017 | $240,255 | $200,000 | $0 | $440,255 | $440,255 |
| 2016 | $243,116 | $110,000 | $0 | $353,116 | $353,116 |
| 2015 | $230,437 | $80,000 | $0 | $310,437 | $310,437 |
| 2014 | $233,251 | $80,000 | $0 | $313,251 | $313,251 |
| 2013 | $236,067 | $80,000 | $0 | $316,067 | $316,067 |
| 2012 | $238,883 | $86,304 | $0 | $325,187 | $325,187 |
| 2011 | $241,699 | $107,880 | $0 | $349,579 | $349,579 |
| 2010 | $251,674 | $107,880 | $0 | $359,554 | $359,554 |
| 2009 | $267,482 | $130,000 | $0 | $397,482 | $397,482 |
| 2008 | $270,766 | $230,000 | $0 | $500,766 | $500,766 |
| 2007 | $274,035 | $146,000 | $0 | $420,035 | $420,035 |
Deed and Sales History
| 1 | 03/30/2017 | QCD | Quit Claim Deed | ALBERS, GERALD E / REBECCA R | ALBERS TRUSTEE, GERALD E | | | $0.00 | 28814 | 4420431 |
| 2 | 11/01/1996 | QCD | Quit Claim Deed | ALBERS, GERALD E | ALBERS, GERALD E | | | $0.00 | 64042 | 96019685 |
| 3 | 01/01/1900 | OTHER | Other - Misc. Documents | Unknown | ALBERS, GERALD E | | | $0.00 | 0 | 0 |
Payout Agreement
| No payout information available.. |