Property
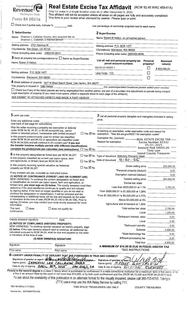
Account |
| Property ID: | 215 | Abbreviated Legal Description: | 15 - IN GL3: LOT 4 BLK 2 UNREC PLAT OCEAN VU GARDENS DESC: BG NECR GL3 S01*W667 .01' N88*W1182.92' TO CM WLN WEST BEACH RD N88*W140 .48' TO CM SECR LOT 1 BLK 2 N06*E205.05' TPB N06*E68.35 N73*W173.48' S09*W80' S77*E 176.49' TPB |
| Geographic ID: | R03213-223-3890 | Agent Code: | |
| Type: | Real | | |
| Tax Area: | 110 - APPRAISER-OH Schl Dist, outside OH, improved & 1 acre or less | Land Use Code | 11 |
| Open Space: | N | DFL | N |
| Historic Property: | N | Remodel Property: | N |
| Multi-Family Redevelopment: | N | | |
| Township: | 32 | Section: | 13 |
| Range: | R0 |
Location |
| Address: | 1369 CHATHAM LN OAK HARBOR, WA 98277 | Mapsco: | |
| Neighborhood: | Area 2 Waterfront Westside Res | Map ID: | 1 |
| Neighborhood CD: | 2WFTW01R |
Owner |
| Name: | BLANKENSHIP, STEVEN W | Owner ID: | 266146 |
| Mailing Address: | DENISE BLANKENSHIP 13812 LONG SHADOW DR MANOR, TX 78653 | % Ownership: | 100.0000000000% |
| | | Exemptions: | |
Taxes and Assessment Details
Values
| (+) Improvement Homesite Value: | + | $0 | |
| (+) Improvement Non-Homesite Value: | + | $274,763 | |
| (+) Land Homesite Value: | + | $0 | |
| (+) Land Non-Homesite Value: | + | $609,091 | |
| (+) Curr Use (HS): | + | $0 | $0 |
| (+) Curr Use (NHS): | + | $0 | $0 |
| | | -------------------------- | |
| (=) Market Value: | = | $883,854 | |
| (–) Productivity Loss: | – | $0 | |
| | | -------------------------- | |
| (=) Subtotal: | = | $883,854 | |
| (+) Senior Appraised Value: | + | $0 | |
| (+) Non-Senior Appraised Value: | + | $883,854 | |
| | | -------------------------- | |
| (=) Total Appraised Value: | = | $883,854 | |
| (–) Senior Exemption Loss: | – | $0 | |
| (–) Exemption Loss: | – | $0 | |
| | | -------------------------- | |
| (=) Taxable Value: | = | $883,854 | |
Taxing Jurisdiction
| Owner: | BLANKENSHIP, STEVEN W | | |
| % Ownership: | 100.0000000000% | | |
| Total Value: | $883,854 | | |
| Tax Area: | 110 - APPRAISER-OH Schl Dist, outside OH, improved & 1 acre or less |
| CF | Conservation Futures | 0.0316035091 | $883,854 | $883,854 | $27.93 | | |
| CEM1 | Cemetery #1 | 0.0040320932 | $883,854 | $883,854 | $3.56 | | |
| FIRE2 | Fire & Rescue Dist #2 N Whidbey GEN | 0.5475949600 | $883,854 | $883,854 | $483.99 | | |
| HOBOND | Hospital BOND | 0.1910887512 | $883,854 | $883,854 | $168.89 | | |
| HOGEN | Hospital GEN | 0.3902502903 | $883,854 | $883,854 | $344.92 | | |
| CE | County Current Expense | 0.3708482477 | $883,854 | $883,854 | $327.78 | | |
| CR | County Roads | 0.4584763726 | $883,854 | $883,854 | $405.23 | | |
| ISLANDEMS | Hospital GEN (EMS) | 0.5000000000 | $883,854 | $883,854 | $441.93 | | |
| LIB | Library Sno-Isle GEN | 0.3153421757 | $883,854 | $883,854 | $278.72 | | |
| NWHIDPRMT | P & R N Whidbey GEN | 0.2004466701 | $883,854 | $883,854 | $177.17 | | |
| SCH201MO | School 201 Enrichment | 1.8559231640 | $883,854 | $883,854 | $1,640.37 | | |
| ST | State School | 1.3035497053 | $883,854 | $883,854 | $1,152.15 | | |
| ST2 | State School Part 2 | 0.8169543533 | $883,854 | $883,854 | $722.07 | | |
| | Total Tax Rate: | 6.9861102925 | | | | | |
| | | | | Taxes w/Current Exemptions: | $6,174.71 | | |
| | | | | Taxes w/o Exemptions: | $6,174.71 | | |
Improvement / Building
| Improvement #1: | RESIDENTIAL | State Code: | Y | 1512.1 sqft | Value: | $274,763 |
| Bathrooms: | 2 | Bedrooms: | 3 | | Ceiling: | DRYWALL PAINTED | Exterior Wall/Cover: | SHINGLE | | Floor Covering: | HARDWOOD/CARP 60-40 | Floor Structure: | WOOD W/SUBFLOOR | | Foundation: | CONCRETE | Heating: | BASEBOARD ELECTRIC | | Interior Finish: | DRYWALL PAINT | Plumbing Fixture Cnt: | 9 | | Roof Slope: | 10" IN 12" | Roof Structure/Cover: | CJ ASPHALT |
|
| | Type | Description | Class CD | Sub Class CD | Year Built | Area |
| | BAS | BASE/MAIN FLOOR | 3 | 0 | 1974 | 840.0 |
| | UPS | UPPER STORY | 3 | 0 | 1974 | 672.1 |
| | OWP | OPEN WOOD PORCH W/STEPS | 3 | 0 | 1974 | 446.5 |
| | CPD | OPEN CARPORT DIRT FLOOR | 3 | 0 | 1974 | 440.0 |
| | UTY | STORAGE/UTILITY | 3 | 0 | 1974 | 72.0 |
Sketch
Property Image
Land
| 1 | HS | HOMESITE | 0.3000 | 13068.00 | 0.00 | 0.00 | 1.00 | $330,909 | $0 |
| 2 | HB | HIGH BLUFF | 0.0000 | 0.00 | 80.00 | 0.00 | 1.00 | $278,182 | $0 |
Roll Value History
| 2026 | N/A | N/A | N/A | N/A | N/A |
| 2025 | $274,763 | $609,091 | $0 | $883,854 | $883,854 |
| 2024 | $262,491 | $500,000 | $0 | $762,491 | $762,491 |
| 2023 | $266,027 | $330,000 | $0 | $596,027 | $596,027 |
| 2022 | $244,102 | $330,000 | $0 | $574,102 | $574,102 |
| 2021 | $187,200 | $275,000 | $0 | $462,200 | $462,200 |
| 2020 | $183,035 | $240,000 | $0 | $423,035 | $423,035 |
| 2019 | $134,086 | $250,000 | $0 | $384,086 | $384,086 |
| 2018 | $115,656 | $200,000 | $0 | $315,656 | $315,656 |
| 2017 | $116,460 | $200,000 | $0 | $316,460 | $316,460 |
| 2016 | $118,124 | $200,000 | $0 | $318,124 | $318,124 |
| 2015 | $119,787 | $200,000 | $0 | $319,787 | $319,787 |
| 2014 | $121,451 | $200,000 | $0 | $321,451 | $321,451 |
| 2013 | $113,161 | $174,550 | $0 | $287,711 | $287,711 |
| 2012 | $113,168 | $174,550 | $0 | $287,718 | $287,718 |
| 2011 | $114,722 | $174,550 | $0 | $289,272 | $289,272 |
| 2010 | $121,951 | $174,550 | $0 | $296,501 | $296,501 |
| 2009 | $127,235 | $247,401 | $0 | $374,636 | $374,636 |
| 2008 | $128,938 | $247,401 | $0 | $376,339 | $376,339 |
| 2007 | $129,086 | $247,401 | $0 | $376,487 | $376,487 |
Deed and Sales History
| 1 | 05/16/2014 | WD | Warranty Deed | GROUP LLC, THE CABIN | BLANKENSHIP, STEVEN W | | | $389,000.00 | 15411 | 4359964 |
| 2 | 10/14/2002 | TRUSTEED | Trustee's Deed | Unknown | GROUP LLC, THE CABIN | | | $266,000.00 | 24391 | 4036196 |
| 3 | 03/01/1993 | QCD | Quit Claim Deed | COMMERCE, BANK K | KEMPER, SUSANNE S | | | $0.00 | 30882 | 93004634 |
| 4 | 03/01/1993 | QCD | Quit Claim Deed | KEMPER, JAMES M | COMMERCE, BANK K | | | $0.00 | 30883 | 93004635 |
| 5 | 11/01/1992 | WD | Warranty Deed | PEDERSEN, GWYNETH O | KEMPER, JAMES M | | | $150,000.00 | 24600 | 92022547 |
| 6 | 04/01/1987 | OTHER | Other - Misc. Documents | PEDERSEN, GWYNETH O | PEDERSEN, GWYNETH O | | | $0.00 | 62137 | 85013922 |
| 7 | 11/01/1980 | REC | Real Estate Contract | PEDERSEN, PAUL H | PEDERSEN, GWYNETH O | | | $0.00 | 58955 | 0 |
| 8 | 01/01/1900 | OTHER | Other - Misc. Documents | Unknown | PEDERSEN, PAUL H | | | $0.00 | 0 | 0 |
Payout Agreement
| No payout information available.. |