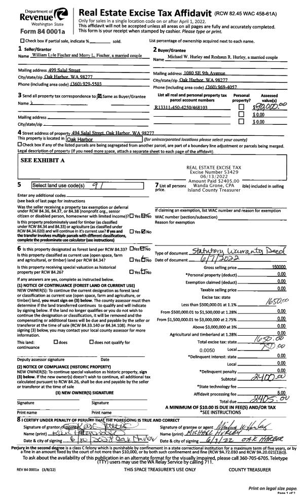
Property
Account |
| Property ID: | 215118 | Abbreviated Legal Description: | CCC 15 LOT 4 BLK 20 |
| Geographic ID: | S6250-15-20004-0 | Agent Code: | |
| Type: | Real | | |
| Tax Area: | 510 - APPRAISER-Stan/Cam Schl Dist, improved & 1 acre or less | Land Use Code | 11 |
| Open Space: | N | DFL | N |
| Historic Property: | N | Remodel Property: | N |
| Multi-Family Redevelopment: | N | | |
| Township: | | Section: | |
| Range: | |
Location |
| Address: | 1974 CASCADE VIEW DR CAMANO ISLAND, WA 98282 | Mapsco: | |
| Neighborhood: | Cycle 5 | Map ID: | 934 |
| Neighborhood CD: | 5 |
Owner |
| Name: | BARGER, DAVE | Owner ID: | 263809 |
| Mailing Address: | LYNN A BARGER 1974 CASCADE VIEW DR CAMANO ISLAND, WA 98282 | % Ownership: | 100.0000000000% |
| | | Exemptions: | |
Taxes and Assessment Details
Values
| (+) Improvement Homesite Value: | + | $0 | |
| (+) Improvement Non-Homesite Value: | + | $295,505 | |
| (+) Land Homesite Value: | + | $0 | |
| (+) Land Non-Homesite Value: | + | $250,000 | |
| (+) Curr Use (HS): | + | $0 | $0 |
| (+) Curr Use (NHS): | + | $0 | $0 |
| | | -------------------------- | |
| (=) Market Value: | = | $545,505 | |
| (–) Productivity Loss: | – | $0 | |
| | | -------------------------- | |
| (=) Subtotal: | = | $545,505 | |
| (+) Senior Appraised Value: | + | $0 | |
| (+) Non-Senior Appraised Value: | + | $545,505 | |
| | | -------------------------- | |
| (=) Total Appraised Value: | = | $545,505 | |
| (–) Senior Exemption Loss: | – | $0 | |
| (–) Exemption Loss: | – | $0 | |
| | | -------------------------- | |
| (=) Taxable Value: | = | $545,505 | |
Taxing Jurisdiction
| Owner: | BARGER, DAVE | | |
| % Ownership: | 100.0000000000% | | |
| Total Value: | $545,505 | | |
| Tax Area: | 510 - APPRAISER-Stan/Cam Schl Dist, improved & 1 acre or less |
| CF | Conservation Futures | 0.0316035091 | $545,505 | $545,505 | $17.24 | | |
| EMS1 | Fire & Rescue Dist #1 Camano GEN (EMS) | 0.3677864386 | $545,505 | $545,505 | $200.63 | | |
| FIRE1 | Fire & Rescue Dist #1 Camano GEN | 1.2502910536 | $545,505 | $545,505 | $682.04 | | |
| FIRE1BOND | Fire & Rescue Dist #1 Camano BOND | 0.1570001679 | $545,505 | $545,505 | $85.64 | | |
| CE | County Current Expense | 0.3708482477 | $545,505 | $545,505 | $202.30 | | |
| CR | County Roads | 0.4584763726 | $545,505 | $545,505 | $250.10 | | |
| LCIB | Library Sno-Isle BOND (Camano Island) | 0.0396325772 | $545,505 | $545,505 | $21.62 | | |
| LIB | Library Sno-Isle GEN | 0.3153421757 | $545,505 | $545,505 | $172.02 | | |
| SCH205_401 | School 205-401 Enrichment | 1.2698420524 | $545,505 | $545,505 | $692.71 | | |
| SCH205BOND | School 205-401 BOND | 0.9396497583 | $545,505 | $545,505 | $512.58 | | |
| ST | State School | 1.3035497053 | $545,505 | $545,505 | $711.09 | | |
| ST2 | State School Part 2 | 0.8169543533 | $545,505 | $545,505 | $445.65 | | |
| | Total Tax Rate: | 7.3209764117 | | | | | |
| | | | | Taxes w/Current Exemptions: | $3,993.62 | | |
| | | | | Taxes w/o Exemptions: | $3,993.62 | | |
Improvement / Building
| Improvement #1: | RESIDENTIAL | State Code: | Y | 1833.2 sqft | Value: | $295,505 |
| Bathrooms: | 1.75 | Bedrooms: | 2 | | Ceiling: | DRYWALL PAINTED | Exterior Wall/Cover: | CEMENT FIBER | | Floor Covering: | CARPET/VINYL 80-20 | Floor Structure: | WOOD W/SUBFLOOR | | Foundation: | CONCRETE | Heating: | WALL HEAT ELECTRIC | | Interior Finish: | DRYWALL PAINT | Plumbing Fixture Cnt: | 11 | | Roof Slope: | 4" IN 12" | Roof Structure/Cover: | CJ ASPHALT |
|
| | Type | Description | Class CD | Sub Class CD | Year Built | Area |
| | BAS | BASE/MAIN FLOOR | 3 | 0 | 1990 | 1833.2 |
| | OP4 | OPEN PORCH W/CEILING-ROOF | 3 | 0 | 1990 | 16.0 |
| | AGR | ATTACHED GARAGE | 3 | 0 | 1990 | 779.7 |
Sketch
| No sketches available for this property. |
Property Image
Land
| 1 | 15 | SQ (12001-21780) | 0.0000 | 0.00 | 0.00 | 0.00 | 1.00 | $250,000 | $0 |
Roll Value History
| 2026 | N/A | N/A | N/A | N/A | N/A |
| 2025 | $295,505 | $250,000 | $0 | $545,505 | $545,505 |
| 2024 | $299,142 | $250,000 | $0 | $549,142 | $549,142 |
| 2023 | $304,342 | $210,000 | $0 | $514,342 | $514,342 |
| 2022 | $278,894 | $200,000 | $0 | $478,894 | $478,894 |
| 2021 | $228,113 | $140,000 | $0 | $368,113 | $368,113 |
| 2020 | $222,434 | $120,000 | $0 | $342,434 | $342,434 |
| 2019 | $168,322 | $170,000 | $0 | $338,322 | $338,322 |
| 2018 | $168,839 | $140,000 | $0 | $308,839 | $308,839 |
| 2017 | $169,859 | $90,000 | $0 | $259,859 | $259,859 |
| 2016 | $171,932 | $65,000 | $0 | $236,932 | $145,671 |
| 2015 | $95,671 | $50,000 | $0 | $145,671 | $58,268 |
| 2014 | $96,945 | $50,000 | $0 | $146,945 | $146,945 |
| 2013 | $157,855 | $50,000 | $0 | $207,855 | $207,855 |
| 2012 | $159,793 | $56,000 | $0 | $215,793 | $215,793 |
| 2011 | $161,730 | $70,000 | $0 | $231,730 | $231,730 |
| 2010 | $169,173 | $70,000 | $0 | $239,173 | $239,173 |
| 2009 | $178,145 | $90,000 | $0 | $268,145 | $268,145 |
| 2008 | $180,456 | $125,000 | $0 | $305,456 | $305,456 |
| 2007 | $182,656 | $100,000 | $0 | $282,656 | $282,656 |
Deed and Sales History
| 1 | 09/25/2013 | WD | Warranty Deed | MAGEE, THOMAS | BARGER, DAVE | | | $140,000.00 | 12956 | 4348859 |
| 2 | 08/01/1989 | WD | Warranty Deed | BOERNER, WESLEY L | MAGEE, THOMAS | | | $10,500.00 | 93542 | 89011891 |
| 3 | 08/01/1984 | QCD | Quit Claim Deed | BOERNER, WESLEY L | BOERNER, WESLEY L | | | $0.00 | 42543 | 84002564 |
| 4 | 01/01/1900 | OTHER | Other - Misc. Documents | Unknown | BOERNER, WESLEY L | | | $0.00 | 0 | 0 |
Payout Agreement
| No payout information available.. |