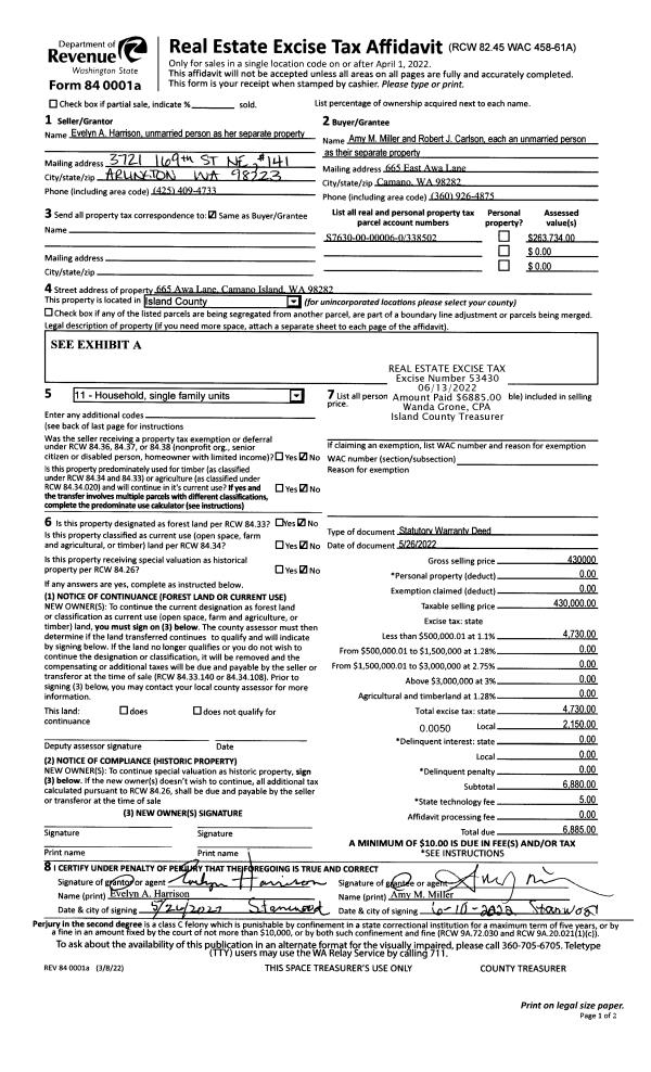
Property
Account |
| Property ID: | 215127 | Abbreviated Legal Description: | CCC 15 LOT 5 BLK 20 |
| Geographic ID: | S6250-15-20005-0 | Agent Code: | |
| Type: | Real | | |
| Tax Area: | 510 - APPRAISER-Stan/Cam Schl Dist, improved & 1 acre or less | Land Use Code | 11 |
| Open Space: | N | DFL | N |
| Historic Property: | N | Remodel Property: | N |
| Multi-Family Redevelopment: | N | | |
| Township: | | Section: | |
| Range: | |
Location |
| Address: | 1970 CASCADE VIEW DR CAMANO ISLAND, WA 98282 | Mapsco: | |
| Neighborhood: | Cycle 5 | Map ID: | 934 |
| Neighborhood CD: | 5 |
Owner |
| Name: | FREDERICK, DEAN E | Owner ID: | 266919 |
| Mailing Address: | 1970 CASCADE VIEW DR CAMANO ISLAND, WA 98282 | % Ownership: | 100.0000000000% |
| | | Exemptions: | |
Taxes and Assessment Details
Values
| (+) Improvement Homesite Value: | + | $0 | |
| (+) Improvement Non-Homesite Value: | + | $255,873 | |
| (+) Land Homesite Value: | + | $0 | |
| (+) Land Non-Homesite Value: | + | $250,000 | |
| (+) Curr Use (HS): | + | $0 | $0 |
| (+) Curr Use (NHS): | + | $0 | $0 |
| | | -------------------------- | |
| (=) Market Value: | = | $505,873 | |
| (–) Productivity Loss: | – | $0 | |
| | | -------------------------- | |
| (=) Subtotal: | = | $505,873 | |
| (+) Senior Appraised Value: | + | $0 | |
| (+) Non-Senior Appraised Value: | + | $505,873 | |
| | | -------------------------- | |
| (=) Total Appraised Value: | = | $505,873 | |
| (–) Senior Exemption Loss: | – | $0 | |
| (–) Exemption Loss: | – | $0 | |
| | | -------------------------- | |
| (=) Taxable Value: | = | $505,873 | |
Taxing Jurisdiction
| Owner: | FREDERICK, DEAN E | | |
| % Ownership: | 100.0000000000% | | |
| Total Value: | $505,873 | | |
| Tax Area: | 510 - APPRAISER-Stan/Cam Schl Dist, improved & 1 acre or less |
| CF | Conservation Futures | 0.0316035091 | $505,873 | $505,873 | $15.99 | | |
| EMS1 | Fire & Rescue Dist #1 Camano GEN (EMS) | 0.3677864386 | $505,873 | $505,873 | $186.05 | | |
| FIRE1 | Fire & Rescue Dist #1 Camano GEN | 1.2502910536 | $505,873 | $505,873 | $632.49 | | |
| FIRE1BOND | Fire & Rescue Dist #1 Camano BOND | 0.1570001679 | $505,873 | $505,873 | $79.42 | | |
| CE | County Current Expense | 0.3708482477 | $505,873 | $505,873 | $187.60 | | |
| CR | County Roads | 0.4584763726 | $505,873 | $505,873 | $231.93 | | |
| LCIB | Library Sno-Isle BOND (Camano Island) | 0.0396325772 | $505,873 | $505,873 | $20.05 | | |
| LIB | Library Sno-Isle GEN | 0.3153421757 | $505,873 | $505,873 | $159.52 | | |
| SCH205_401 | School 205-401 Enrichment | 1.2698420524 | $505,873 | $505,873 | $642.38 | | |
| SCH205BOND | School 205-401 BOND | 0.9396497583 | $505,873 | $505,873 | $475.34 | | |
| ST | State School | 1.3035497053 | $505,873 | $505,873 | $659.43 | | |
| ST2 | State School Part 2 | 0.8169543533 | $505,873 | $505,873 | $413.28 | | |
| | Total Tax Rate: | 7.3209764117 | | | | | |
| | | | | Taxes w/Current Exemptions: | $3,703.48 | | |
| | | | | Taxes w/o Exemptions: | $3,703.48 | | |
Improvement / Building
| Improvement #1: | RESIDENTIAL | State Code: | Y | 1522.0 sqft | Value: | $255,873 |
| Bathrooms: | 2 | Bedrooms: | 3 | | Ceiling: | DRYWALL PAINTED | Cooling: | HEAT PUMP/CONV/V | | Exterior Wall/Cover: | VINYL | Floor Covering: | HARDWOOD/CARP 20-80 | | Floor Structure: | WOOD W/SUBFLOOR | Foundation: | CONCRETE | | Interior Finish: | DRYWALL PAINT | Plumbing Fixture Cnt: | 9 | | Roof Slope: | 5" IN 12" | Roof Structure/Cover: | CJ ASPHALT |
|
| | Type | Description | Class CD | Sub Class CD | Year Built | Area |
| | BAS | BASE/MAIN FLOOR | 3 | 0 | 1994 | 1522.0 |
| | AGR | ATTACHED GARAGE | 3 | 0 | 1994 | 462.0 |
| | OWP | OPEN WOOD PORCH W/STEPS | 3 | 0 | 1994 | 230.0 |
| | OWC | OPEN WOOD PORCH W/STEPS/ROOF/C | 3 | 0 | 1994 | 24.0 |
Sketch
Property Image
Land
| 1 | 15 | SQ (12001-21780) | 0.0000 | 0.00 | 0.00 | 0.00 | 1.00 | $250,000 | $0 |
Roll Value History
| 2026 | N/A | N/A | N/A | N/A | N/A |
| 2025 | $255,873 | $250,000 | $0 | $505,873 | $505,873 |
| 2024 | $259,275 | $250,000 | $0 | $509,275 | $509,275 |
| 2023 | $262,675 | $210,000 | $0 | $472,675 | $472,675 |
| 2022 | $240,933 | $200,000 | $0 | $440,933 | $440,933 |
| 2021 | $206,838 | $140,000 | $0 | $346,838 | $346,838 |
| 2020 | $201,782 | $120,000 | $0 | $321,782 | $321,782 |
| 2019 | $147,331 | $170,000 | $0 | $317,331 | $317,331 |
| 2018 | $147,795 | $140,000 | $0 | $287,795 | $287,795 |
| 2017 | $148,725 | $90,000 | $0 | $238,725 | $238,725 |
| 2016 | $150,584 | $65,000 | $0 | $215,584 | $215,584 |
| 2015 | $144,421 | $50,000 | $0 | $194,421 | $194,421 |
| 2014 | $146,243 | $50,000 | $0 | $196,243 | $196,243 |
| 2013 | $148,064 | $50,000 | $0 | $198,064 | $198,064 |
| 2012 | $149,887 | $56,000 | $0 | $205,887 | $205,887 |
| 2011 | $151,707 | $70,000 | $0 | $221,707 | $221,707 |
| 2010 | $158,611 | $70,000 | $0 | $228,611 | $228,611 |
| 2009 | $165,630 | $90,000 | $0 | $255,630 | $255,630 |
| 2008 | $167,984 | $125,000 | $0 | $292,984 | $292,984 |
| 2007 | $170,406 | $100,080 | $0 | $270,486 | $270,486 |
Deed and Sales History
| 1 | 06/13/2014 | WD | Warranty Deed | HUNTER, FRANCES A | FREDERICK, DEAN E | | | $199,000.00 | 15680 | 4361053 |
| 2 | 06/08/2005 | WD | Warranty Deed | THORNE, JOHANNA L | HUNTER, FRANCES A | | | $231,150.00 | 52695 | 4137238 |
| 3 | 02/03/2002 | DECREE | Divorce Decree/Legal Separation | THORNE, ANDREW K | THORNE, JOHANNA L | | | $0.00 | 22080 | 4021630 |
| 4 | 08/01/1996 | WD | Warranty Deed | JOHNSON, DENNIS D | THORNE, ANDREW K | | | $129,000.00 | 63208 | 96015677 |
| 5 | 04/01/1994 | QCD | Quit Claim Deed | JOHNSON, TERRY | JOHNSON, DENNIS D | | | $25,000.00 | 41632 | 94009898 |
| 6 | 02/01/1994 | WD | Warranty Deed | LAMBERTSON, ROBERT F | JOHNSON, TERRY | | | $29,000.00 | 40571 | 94003691 |
| 7 | 05/01/1993 | QCD | Quit Claim Deed | PLATTER, DAVID | LAMBERTSON, ROBERT F | | | $0.00 | 31760 | 93009196 |
| 8 | 02/01/1993 | WD | Warranty Deed | PLATTER, DAVID | PLATTER, DAVID | | | $7,500.00 | 31152 | 93005996 |
| 9 | 02/01/1993 | QCD | Quit Claim Deed | CATE, HARRY R | PLATTER, DAVID | | | $0.00 | 31153 | 93005997 |
| 10 | 01/01/1900 | OTHER | Other - Misc. Documents | Unknown | CATE, HARRY R | | | $0.00 | 0 | 0 |
Payout Agreement
| No payout information available.. |