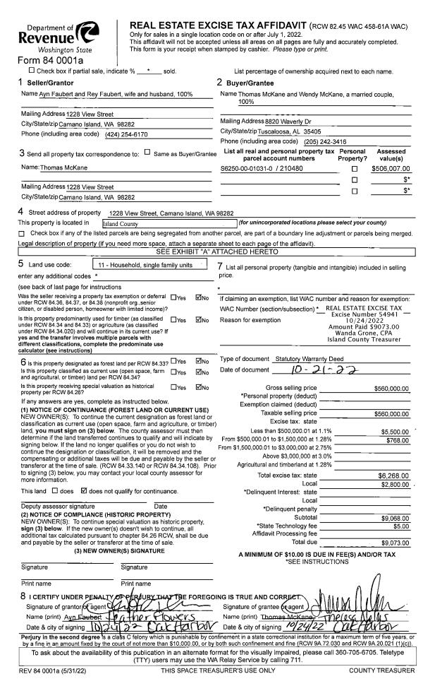
Property
Account |
| Property ID: | 215332 | Abbreviated Legal Description: | CCC 15 LOT 4 BLK 21 |
| Geographic ID: | S6250-15-21004-0 | Agent Code: | |
| Type: | Real | | |
| Tax Area: | 510 - APPRAISER-Stan/Cam Schl Dist, improved & 1 acre or less | Land Use Code | 11 |
| Open Space: | N | DFL | N |
| Historic Property: | N | Remodel Property: | N |
| Multi-Family Redevelopment: | N | | |
| Township: | | Section: | |
| Range: | |
Location |
| Address: | 1905 CASCADE VIEW DR CAMANO ISLAND, WA 98282 | Mapsco: | |
| Neighborhood: | Cycle 5 | Map ID: | 933 |
| Neighborhood CD: | 5 |
Owner |
| Name: | KINNEY TTEE, BRUCE PAUL | Owner ID: | 317526 |
| Mailing Address: | 1905 CASCADE VIEW DR CAMANO ISLAND, WA 98282 | % Ownership: | 100.0000000000% |
| | | Exemptions: | |
Taxes and Assessment Details
Values
| (+) Improvement Homesite Value: | + | $0 | |
| (+) Improvement Non-Homesite Value: | + | $541,431 | |
| (+) Land Homesite Value: | + | $0 | |
| (+) Land Non-Homesite Value: | + | $575,000 | |
| (+) Curr Use (HS): | + | $0 | $0 |
| (+) Curr Use (NHS): | + | $0 | $0 |
| | | -------------------------- | |
| (=) Market Value: | = | $1,116,431 | |
| (–) Productivity Loss: | – | $0 | |
| | | -------------------------- | |
| (=) Subtotal: | = | $1,116,431 | |
| (+) Senior Appraised Value: | + | $0 | |
| (+) Non-Senior Appraised Value: | + | $1,116,431 | |
| | | -------------------------- | |
| (=) Total Appraised Value: | = | $1,116,431 | |
| (–) Senior Exemption Loss: | – | $0 | |
| (–) Exemption Loss: | – | $0 | |
| | | -------------------------- | |
| (=) Taxable Value: | = | $1,116,431 | |
Taxing Jurisdiction
| Owner: | KINNEY TTEE, BRUCE PAUL | | |
| % Ownership: | 100.0000000000% | | |
| Total Value: | $1,116,431 | | |
| Tax Area: | 510 - APPRAISER-Stan/Cam Schl Dist, improved & 1 acre or less |
| CF | Conservation Futures | 0.0316035091 | $1,116,431 | $1,116,431 | $35.28 | | |
| EMS1 | Fire & Rescue Dist #1 Camano GEN (EMS) | 0.3677864386 | $1,116,431 | $1,116,431 | $410.61 | | |
| FIRE1 | Fire & Rescue Dist #1 Camano GEN | 1.2502910536 | $1,116,431 | $1,116,431 | $1,395.86 | | |
| FIRE1BOND | Fire & Rescue Dist #1 Camano BOND | 0.1570001679 | $1,116,431 | $1,116,431 | $175.28 | | |
| CE | County Current Expense | 0.3708482477 | $1,116,431 | $1,116,431 | $414.03 | | |
| CR | County Roads | 0.4584763726 | $1,116,431 | $1,116,431 | $511.86 | | |
| LCIB | Library Sno-Isle BOND (Camano Island) | 0.0396325772 | $1,116,431 | $1,116,431 | $44.25 | | |
| LIB | Library Sno-Isle GEN | 0.3153421757 | $1,116,431 | $1,116,431 | $352.06 | | |
| SCH205_401 | School 205-401 Enrichment | 1.2698420524 | $1,116,431 | $1,116,431 | $1,417.69 | | |
| SCH205BOND | School 205-401 BOND | 0.9396497583 | $1,116,431 | $1,116,431 | $1,049.05 | | |
| ST | State School | 1.3035497053 | $1,116,431 | $1,116,431 | $1,455.32 | | |
| ST2 | State School Part 2 | 0.8169543533 | $1,116,431 | $1,116,431 | $912.07 | | |
| | Total Tax Rate: | 7.3209764117 | | | | | |
| | | | | Taxes w/Current Exemptions: | $8,173.36 | | |
| | | | | Taxes w/o Exemptions: | $8,173.36 | | |
Improvement / Building
| Improvement #1: | RESIDENTIAL | State Code: | Y | 2019.8 sqft | Value: | $541,431 |
| Bathrooms: | 1.25 | Bedrooms: | 2 | | Ceiling: | BEAM PAINTED | Exterior Wall/Cover: | CEMENT FIBER | | Floor Covering: | VINYL 100% | Floor Structure: | WOOD W/SUBFLOOR | | Foundation: | CONCRETE | Heating: | FHA GAS | | Interior Finish: | DRYWALL PAINT | Plumbing Fixture Cnt: | 9 | | Roof Slope: | 3" IN 12" | Roof Structure/Cover: | CJ ALUMINIUM HEAVY |
|
| | Type | Description | Class CD | Sub Class CD | Year Built | Area |
| | BAS | BASE/MAIN FLOOR | 5 | 0 | 2022 | 2019.8 |
| | AGR | ATTACHED GARAGE | 5 | 0 | 2022 | 575.8 |
| | OWP | OPEN WOOD PORCH W/STEPS | 5 | 0 | 2022 | 336.0 |
Sketch
Property Image
Land
| 1 | HB | HIGH BLUFF | 0.0000 | 0.00 | 75.00 | 0.00 | 1.00 | $575,000 | $0 |
Roll Value History
| 2026 | N/A | N/A | N/A | N/A | N/A |
| 2025 | $541,431 | $575,000 | $0 | $1,116,431 | $1,116,431 |
| 2024 | $538,864 | $500,000 | $0 | $1,038,864 | $1,038,864 |
| 2023 | $367,181 | $250,000 | $0 | $617,181 | $617,181 |
| 2022 | $0 | $170,000 | $0 | $170,000 | $170,000 |
| 2021 | $0 | $130,000 | $0 | $130,000 | $130,000 |
| 2020 | $0 | $130,000 | $0 | $130,000 | $130,000 |
| 2019 | $0 | $60,000 | $0 | $60,000 | $60,000 |
| 2018 | $0 | $50,000 | $0 | $50,000 | $50,000 |
| 2017 | $0 | $50,000 | $0 | $50,000 | $50,000 |
| 2016 | $0 | $50,000 | $0 | $50,000 | $50,000 |
| 2015 | $0 | $69,379 | $0 | $69,379 | $69,379 |
| 2014 | $0 | $69,379 | $0 | $69,379 | $69,379 |
| 2013 | $0 | $69,379 | $0 | $69,379 | $69,379 |
| 2012 | $0 | $69,379 | $0 | $69,379 | $69,379 |
| 2011 | $0 | $69,379 | $0 | $69,379 | $69,379 |
| 2010 | $0 | $69,379 | $0 | $69,379 | $69,379 |
| 2009 | $0 | $74,600 | $0 | $74,600 | $74,600 |
Deed and Sales History
| 1 | 07/15/2025 | WD | Warranty Deed | KINNEY, BRUCE PAUL | KINNEY TTEE, BRUCE PAUL | | | $0.00 | 64281 | 458851 |
| 2 | 04/09/2024 | WD | Warranty Deed | CASTLE DWELLERS, INC | KINNEY, BRUCE PAUL | | | $1,175,000.00 | 59701 | 4571446 |
| 3 | 03/28/2022 | WD | Warranty Deed | TAYLOR, JUSTIN E | CASTLE DWELLERS, INC | | | $300,000.00 | 52544 | 4542560 |
| 4 | 11/17/2020 | WD | Warranty Deed | JADDI, AHMED M | TAYLOR, JUSTIN E | | | $160,000.00 | 45838 | 4503167 |
| 5 | 06/27/2019 | WD | Warranty Deed | KOLB, STEPHANIE V | JADDI, AHMED M | | | $155,000.00 | 39249 | 4466502 |
| 6 | 02/17/2009 | WD | Warranty Deed | BAKER, ALEX | KOLB, STEPHANIE V | | | $86,368.00 | 90345 | 4244988 |
| 7 | 06/28/2004 | WD | Warranty Deed | JOHNSON, KIRK V | BAKER, ALEX | | | $73,717.00 | 43172 | 4106915 |
| 8 | 06/14/2004 | WD | Warranty Deed | DAPPEN TRUST, MABEL M | JOHNSON, KIRK V | | | $40,000.00 | 42624 | 4103924 |
| 9 | 01/01/1900 | OTHER | Other - Misc. Documents | Unknown | DAPPEN TRUST, MABEL M | | | $0.00 | 0 | 0 |
Payout Agreement
| No payout information available.. |