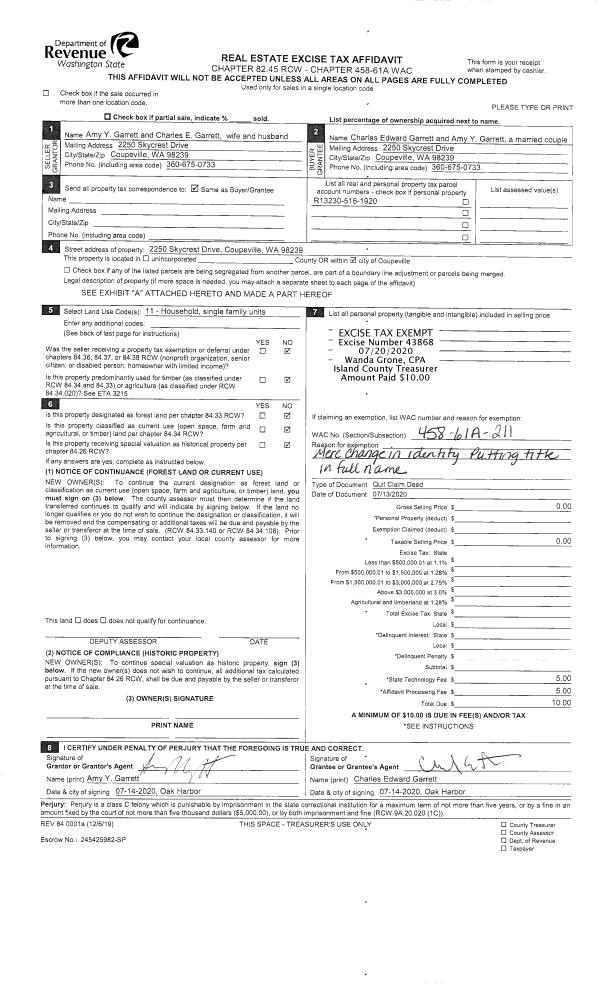
Property
Account |
| Property ID: | 215555 | Abbreviated Legal Description: | CCC 16 LOT 7 BLK 23 |
| Geographic ID: | S6250-16-23007-0 | Agent Code: | |
| Type: | Real | | |
| Tax Area: | 510 - APPRAISER-Stan/Cam Schl Dist, improved & 1 acre or less | Land Use Code | 11 |
| Open Space: | N | DFL | N |
| Historic Property: | N | Remodel Property: | N |
| Multi-Family Redevelopment: | N | | |
| Township: | | Section: | |
| Range: | |
Location |
| Address: | 1269 VERANDA VIEW PLACE CAMANO ISLAND, WA 98282 | Mapsco: | |
| Neighborhood: | Cycle 5 | Map ID: | 931 |
| Neighborhood CD: | 5 |
Owner |
| Name: | GORT, STUART | Owner ID: | 293075 |
| Mailing Address: | EMMA SMITH 1269 TERRACE PL CAMANO ISLAND, WA 98282 | % Ownership: | 100.0000000000% |
| | | Exemptions: | |
Taxes and Assessment Details
Values
| (+) Improvement Homesite Value: | + | $0 | |
| (+) Improvement Non-Homesite Value: | + | $295,071 | |
| (+) Land Homesite Value: | + | $0 | |
| (+) Land Non-Homesite Value: | + | $310,000 | |
| (+) Curr Use (HS): | + | $0 | $0 |
| (+) Curr Use (NHS): | + | $0 | $0 |
| | | -------------------------- | |
| (=) Market Value: | = | $605,071 | |
| (–) Productivity Loss: | – | $0 | |
| | | -------------------------- | |
| (=) Subtotal: | = | $605,071 | |
| (+) Senior Appraised Value: | + | $0 | |
| (+) Non-Senior Appraised Value: | + | $605,071 | |
| | | -------------------------- | |
| (=) Total Appraised Value: | = | $605,071 | |
| (–) Senior Exemption Loss: | – | $0 | |
| (–) Exemption Loss: | – | $0 | |
| | | -------------------------- | |
| (=) Taxable Value: | = | $605,071 | |
Taxing Jurisdiction
| Owner: | GORT, STUART | | |
| % Ownership: | 100.0000000000% | | |
| Total Value: | $605,071 | | |
| Tax Area: | 510 - APPRAISER-Stan/Cam Schl Dist, improved & 1 acre or less |
| CF | Conservation Futures | 0.0316035091 | $605,071 | $605,071 | $19.12 | | |
| EMS1 | Fire & Rescue Dist #1 Camano GEN (EMS) | 0.3677864386 | $605,071 | $605,071 | $222.54 | | |
| FIRE1 | Fire & Rescue Dist #1 Camano GEN | 1.2502910536 | $605,071 | $605,071 | $756.51 | | |
| FIRE1BOND | Fire & Rescue Dist #1 Camano BOND | 0.1570001679 | $605,071 | $605,071 | $95.00 | | |
| CE | County Current Expense | 0.3708482477 | $605,071 | $605,071 | $224.39 | | |
| CR | County Roads | 0.4584763726 | $605,071 | $605,071 | $277.41 | | |
| LCIB | Library Sno-Isle BOND (Camano Island) | 0.0396325772 | $605,071 | $605,071 | $23.98 | | |
| LIB | Library Sno-Isle GEN | 0.3153421757 | $605,071 | $605,071 | $190.80 | | |
| SCH205_401 | School 205-401 Enrichment | 1.2698420524 | $605,071 | $605,071 | $768.34 | | |
| SCH205BOND | School 205-401 BOND | 0.9396497583 | $605,071 | $605,071 | $568.55 | | |
| ST | State School | 1.3035497053 | $605,071 | $605,071 | $788.74 | | |
| ST2 | State School Part 2 | 0.8169543533 | $605,071 | $605,071 | $494.32 | | |
| | Total Tax Rate: | 7.3209764117 | | | | | |
| | | | | Taxes w/Current Exemptions: | $4,429.70 | | |
| | | | | Taxes w/o Exemptions: | $4,429.70 | | |
Improvement / Building
| Improvement #1: | RESIDENTIAL | State Code: | Y | 2220.0 sqft | Value: | $295,071 |
| Bathrooms: | 2 | Bedrooms: | 2 | | Ceiling: | BEAM PAINTED | Exterior Wall/Cover: | PLY/HARDBOARD T-111 | | Floor Covering: | HARDWOOD/CARP 20-80 | Floor Structure: | WOOD W/SUBFLOOR | | Foundation: | CONCRETE | Heating: | BASEBOARD ELECTRIC | | Interior Finish: | DRYWALL PAINT | Plumbing Fixture Cnt: | 9 | | Roof Slope: | 3" IN 12" | Roof Structure/Cover: | BEAM BUILT-UP ROCK |
|
| | Type | Description | Class CD | Sub Class CD | Year Built | Area |
| | BAS | BASE/MAIN FLOOR | 3 | 0 | 1973 | 1464.0 |
| | DWN | DOWNSTAIRS LIVING AREA | 3 | 0 | 1973 | 756.0 |
| | AGR | ATTACHED GARAGE | 3 | 0 | 1973 | 462.0 |
| | OWP | OPEN WOOD PORCH W/STEPS | 3 | 0 | 1973 | 266.0 |
| | ENP | ENCLOSED PORCH | 3 | 0 | 1973 | 144.0 |
| | ENP | ENCLOSED PORCH | 3 | 0 | 1973 | 112.0 |
| | DGR | DETACHED GARAGE | 3 | 0 | 1973 | 360.0 |
Sketch
Property Image
Land
| 1 | 14 | SQ (08001-12000) | 0.0000 | 0.00 | 0.00 | 0.00 | 1.00 | $310,000 | $0 |
Roll Value History
| 2026 | N/A | N/A | N/A | N/A | N/A |
| 2025 | $295,071 | $310,000 | $0 | $605,071 | $605,071 |
| 2024 | $300,085 | $280,000 | $0 | $580,085 | $580,085 |
| 2023 | $304,297 | $275,000 | $0 | $579,297 | $579,297 |
| 2022 | $279,363 | $250,000 | $0 | $529,363 | $529,363 |
| 2021 | $246,246 | $180,000 | $0 | $426,246 | $426,246 |
| 2020 | $240,833 | $150,000 | $0 | $390,833 | $390,833 |
| 2019 | $151,239 | $200,000 | $0 | $351,239 | $351,239 |
| 2018 | $151,818 | $170,000 | $0 | $321,818 | $321,818 |
| 2017 | $152,978 | $125,000 | $0 | $277,978 | $277,978 |
| 2016 | $155,295 | $90,000 | $0 | $245,295 | $245,295 |
| 2015 | $153,490 | $60,000 | $0 | $213,490 | $213,490 |
| 2014 | $155,743 | $60,000 | $0 | $215,743 | $215,743 |
| 2013 | $157,995 | $60,000 | $0 | $217,995 | $217,995 |
| 2012 | $160,246 | $60,000 | $0 | $220,246 | $220,246 |
| 2011 | $162,498 | $75,000 | $0 | $237,498 | $237,498 |
| 2010 | $174,686 | $75,000 | $0 | $249,686 | $249,686 |
| 2009 | $178,275 | $130,000 | $0 | $308,275 | $308,275 |
| 2008 | $180,671 | $146,000 | $0 | $326,671 | $326,671 |
| 2007 | $183,067 | $125,000 | $0 | $308,067 | $308,067 |
Deed and Sales History
| 1 | 12/20/2019 | WD | Warranty Deed | BRASCH, ROBERT M | GORT, STUART | | | $415,000.00 | 41681 | 4478512 |
| 2 | 04/12/2017 | QCD | Quit Claim Deed | BRASCH, ROBERT | BRASCH, ROBERT M | | | $0.00 | 29298 | 4422576 |
| 3 | 08/24/2007 | WD | Warranty Deed | BUTTLE, JOHN W | BRASCH, ROBERT | | | $334,000.00 | 72998 | 4210968 |
| 4 | 10/01/1993 | WD | Warranty Deed | JEFFCOAT, ROBERT | BUTTLE, JOHN W | | | $142,500.00 | 34180 | 93021807 |
| 5 | 01/01/1900 | OTHER | Other - Misc. Documents | Unknown | JEFFCOAT, ROBERT | | | $0.00 | 0 | 0 |
Payout Agreement
| No payout information available.. |