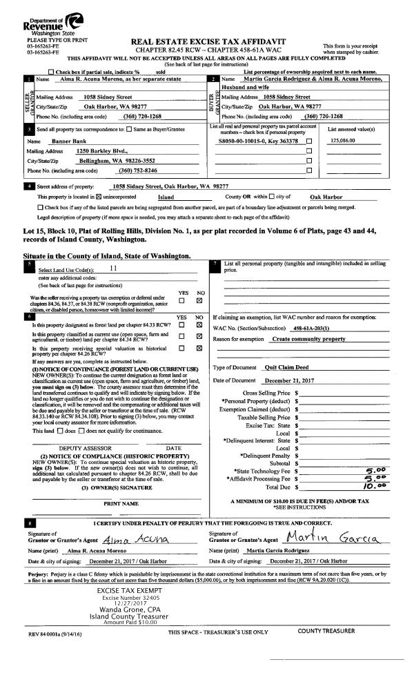
Property
Account |
| Property ID: | 215699 | Abbreviated Legal Description: | CCC 16 LOT 10 BLK 24 |
| Geographic ID: | S6250-16-24010-0 | Agent Code: | |
| Type: | Real | | |
| Tax Area: | 510 - APPRAISER-Stan/Cam Schl Dist, improved & 1 acre or less | Land Use Code | 11 |
| Open Space: | N | DFL | N |
| Historic Property: | N | Remodel Property: | N |
| Multi-Family Redevelopment: | N | | |
| Township: | | Section: | |
| Range: | |
Location |
| Address: | 1258 TERRACE PLACE CAMANO ISLAND, WA 98282 | Mapsco: | |
| Neighborhood: | Cycle 5 | Map ID: | 931 |
| Neighborhood CD: | 5 |
Owner |
| Name: | WISE, ANTHONY | Owner ID: | 290549 |
| Mailing Address: | DARCEE WISE 1258 TERRACE PL CAMANO ISLAND, WA 98282 | % Ownership: | 100.0000000000% |
| | | Exemptions: | |
Taxes and Assessment Details
Values
| (+) Improvement Homesite Value: | + | $0 | |
| (+) Improvement Non-Homesite Value: | + | $261,018 | |
| (+) Land Homesite Value: | + | $0 | |
| (+) Land Non-Homesite Value: | + | $250,000 | |
| (+) Curr Use (HS): | + | $0 | $0 |
| (+) Curr Use (NHS): | + | $0 | $0 |
| | | -------------------------- | |
| (=) Market Value: | = | $511,018 | |
| (–) Productivity Loss: | – | $0 | |
| | | -------------------------- | |
| (=) Subtotal: | = | $511,018 | |
| (+) Senior Appraised Value: | + | $0 | |
| (+) Non-Senior Appraised Value: | + | $511,018 | |
| | | -------------------------- | |
| (=) Total Appraised Value: | = | $511,018 | |
| (–) Senior Exemption Loss: | – | $0 | |
| (–) Exemption Loss: | – | $0 | |
| | | -------------------------- | |
| (=) Taxable Value: | = | $511,018 | |
Taxing Jurisdiction
| Owner: | WISE, ANTHONY | | |
| % Ownership: | 100.0000000000% | | |
| Total Value: | $511,018 | | |
| Tax Area: | 510 - APPRAISER-Stan/Cam Schl Dist, improved & 1 acre or less |
| CF | Conservation Futures | 0.0316035091 | $511,018 | $511,018 | $16.15 | | |
| EMS1 | Fire & Rescue Dist #1 Camano GEN (EMS) | 0.3677864386 | $511,018 | $511,018 | $187.95 | | |
| FIRE1 | Fire & Rescue Dist #1 Camano GEN | 1.2502910536 | $511,018 | $511,018 | $638.92 | | |
| FIRE1BOND | Fire & Rescue Dist #1 Camano BOND | 0.1570001679 | $511,018 | $511,018 | $80.23 | | |
| CE | County Current Expense | 0.3708482477 | $511,018 | $511,018 | $189.51 | | |
| CR | County Roads | 0.4584763726 | $511,018 | $511,018 | $234.29 | | |
| LCIB | Library Sno-Isle BOND (Camano Island) | 0.0396325772 | $511,018 | $511,018 | $20.25 | | |
| LIB | Library Sno-Isle GEN | 0.3153421757 | $511,018 | $511,018 | $161.15 | | |
| SCH205_401 | School 205-401 Enrichment | 1.2698420524 | $511,018 | $511,018 | $648.91 | | |
| SCH205BOND | School 205-401 BOND | 0.9396497583 | $511,018 | $511,018 | $480.18 | | |
| ST | State School | 1.3035497053 | $511,018 | $511,018 | $666.14 | | |
| ST2 | State School Part 2 | 0.8169543533 | $511,018 | $511,018 | $417.48 | | |
| | Total Tax Rate: | 7.3209764117 | | | | | |
| | | | | Taxes w/Current Exemptions: | $3,741.16 | | |
| | | | | Taxes w/o Exemptions: | $3,741.16 | | |
Improvement / Building
| Improvement #1: | RESIDENTIAL | State Code: | Y | 1428.6 sqft | Value: | $261,018 |
| Bathrooms: | 2 | Bedrooms: | 2 | | Ceiling: | DRYWALL PAINTED | Cooling: | HEAT PUMP/CONV/V | | Exterior Wall/Cover: | PLY/HARDBOARD T-111 | Floor Covering: | CARPET/VINYL 80-20 | | Floor Structure: | WOOD W/SUBFLOOR | Foundation: | CONCRETE | | Interior Finish: | DRYWALL PAINT | Plumbing Fixture Cnt: | 9 | | Roof Slope: | 4" IN 12" | Roof Structure/Cover: | CJ ASPHALT |
|
| | Type | Description | Class CD | Sub Class CD | Year Built | Area |
| | BAS | BASE/MAIN FLOOR | 3 | 0 | 1996 | 1428.6 |
| | AGR | ATTACHED GARAGE | 3 | 0 | 1996 | 452.0 |
| | OWP | OPEN WOOD PORCH W/STEPS | 3 | 0 | 1996 | 156.7 |
| | OWP | OPEN WOOD PORCH W/STEPS | 3 | 0 | 1996 | 80.0 |
Sketch
Property Image
Land
| 1 | 14 | SQ (08001-12000) | 0.0000 | 0.00 | 0.00 | 0.00 | 1.00 | $250,000 | $0 |
Roll Value History
| 2026 | N/A | N/A | N/A | N/A | N/A |
| 2025 | $261,018 | $250,000 | $0 | $511,018 | $511,018 |
| 2024 | $264,153 | $250,000 | $0 | $514,153 | $514,153 |
| 2023 | $267,289 | $210,000 | $0 | $477,289 | $477,289 |
| 2022 | $244,877 | $200,000 | $0 | $444,877 | $444,877 |
| 2021 | $210,467 | $140,000 | $0 | $350,467 | $350,467 |
| 2020 | $204,900 | $120,000 | $0 | $324,900 | $324,900 |
| 2019 | $137,985 | $170,000 | $0 | $307,985 | $307,985 |
| 2018 | $138,410 | $140,000 | $0 | $278,410 | $278,410 |
| 2017 | $139,251 | $90,000 | $0 | $229,251 | $229,251 |
| 2016 | $140,950 | $65,000 | $0 | $205,950 | $205,950 |
| 2015 | $139,797 | $50,000 | $0 | $189,797 | $189,797 |
| 2014 | $141,512 | $50,000 | $0 | $191,512 | $191,512 |
| 2013 | $143,228 | $50,000 | $0 | $193,228 | $193,228 |
| 2012 | $144,944 | $56,000 | $0 | $200,944 | $200,944 |
| 2011 | $146,659 | $70,000 | $0 | $216,659 | $216,659 |
| 2010 | $152,271 | $70,000 | $0 | $222,271 | $222,271 |
| 2009 | $157,922 | $90,000 | $0 | $247,922 | $247,922 |
| 2008 | $159,823 | $125,000 | $0 | $284,823 | $284,823 |
| 2007 | $161,725 | $118,000 | $0 | $279,725 | $279,725 |
Deed and Sales History
| 1 | 06/25/2019 | WD | Warranty Deed | PATTERSON, DOUGLAS I | WISE, ANTHONY | | | $330,000.00 | 39154 | 4466174 |
| 2 | 01/23/2018 | QCD | Quit Claim Deed | PATTERSON, DOUGLAS I | PATTERSON, DOUGLAS I | | | $0.00 | 32780 | 4438351 |
| 3 | 01/22/2018 | WD | Warranty Deed | BEEM TRUSTEE, DEBORAH ANN | PATTERSON, DOUGLAS I | | | $285,000.00 | 32779 | 4438350 |
| 4 | 10/26/2017 | QCD | Quit Claim Deed | UPTAGRAFFT, BURNELL K | BEEM TRUSTEE, DEBORAH ANN | | | $0.00 | 32128 | 4435055 |
| 5 | 06/23/1999 | WD | Warranty Deed | PARIS, BRENDA | UPTAGRAFFT, BURNELL K | | | $143,500.00 | 92523 | 99015262 |
| 6 | 08/01/1996 | WD | Warranty Deed | BRADLEY, WILLIAM J | PARIS, BRENDA | | | $123,500.00 | 63070 | 96015039 |
| 7 | 01/01/1994 | WD | Warranty Deed | LYDEN, ROBERT J | BRADLEY, WILLIAM J | | | $26,950.00 | 40185 | 94001051 |
| 8 | 05/01/1978 | OTHER | Other - Misc. Documents | Unknown | LYDEN, ROBERT J | | | $6,000.00 | 82792 | 334590 |
Payout Agreement
| No payout information available.. |