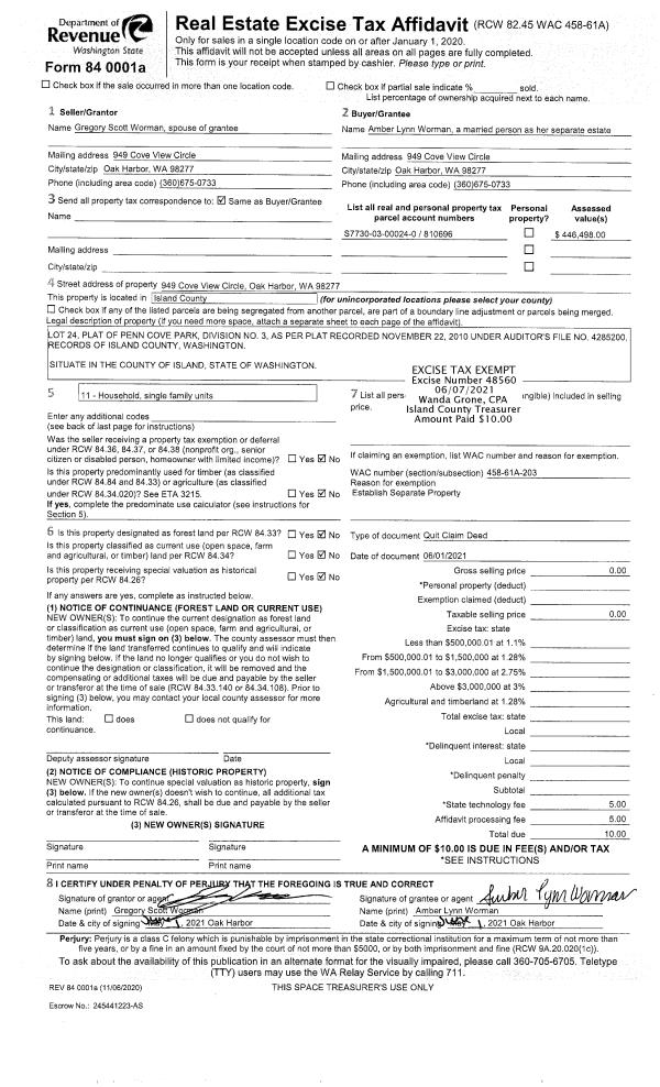
Property
Account |
| Property ID: | 215760 | Abbreviated Legal Description: | CCC 16 LOT 17 BLK 24 |
| Geographic ID: | S6250-16-24017-0 | Agent Code: | |
| Type: | Real | | |
| Tax Area: | 510 - APPRAISER-Stan/Cam Schl Dist, improved & 1 acre or less | Land Use Code | 11 |
| Open Space: | N | DFL | N |
| Historic Property: | N | Remodel Property: | N |
| Multi-Family Redevelopment: | N | | |
| Township: | | Section: | |
| Range: | |
Location |
| Address: | 1285 UPLANDS DR CAMANO ISLAND, WA 98282 | Mapsco: | |
| Neighborhood: | Cycle 5 | Map ID: | 931 |
| Neighborhood CD: | 5 |
Owner |
| Name: | URBANO, DANIKA MARIE | Owner ID: | 304464 |
| Mailing Address: | TYSON RICHARD ORTLOFF 1285 UPLANDS DR CAMANO ISLAND, WA 98282-8311 | % Ownership: | 100.0000000000% |
| | | Exemptions: | |
Taxes and Assessment Details
Values
| (+) Improvement Homesite Value: | + | $0 | |
| (+) Improvement Non-Homesite Value: | + | $278,007 | |
| (+) Land Homesite Value: | + | $0 | |
| (+) Land Non-Homesite Value: | + | $250,000 | |
| (+) Curr Use (HS): | + | $0 | $0 |
| (+) Curr Use (NHS): | + | $0 | $0 |
| | | -------------------------- | |
| (=) Market Value: | = | $528,007 | |
| (–) Productivity Loss: | – | $0 | |
| | | -------------------------- | |
| (=) Subtotal: | = | $528,007 | |
| (+) Senior Appraised Value: | + | $0 | |
| (+) Non-Senior Appraised Value: | + | $528,007 | |
| | | -------------------------- | |
| (=) Total Appraised Value: | = | $528,007 | |
| (–) Senior Exemption Loss: | – | $0 | |
| (–) Exemption Loss: | – | $0 | |
| | | -------------------------- | |
| (=) Taxable Value: | = | $528,007 | |
Taxing Jurisdiction
| Owner: | URBANO, DANIKA MARIE | | |
| % Ownership: | 100.0000000000% | | |
| Total Value: | $528,007 | | |
| Tax Area: | 510 - APPRAISER-Stan/Cam Schl Dist, improved & 1 acre or less |
| CF | Conservation Futures | 0.0316035091 | $528,007 | $528,007 | $16.69 | | |
| EMS1 | Fire & Rescue Dist #1 Camano GEN (EMS) | 0.3677864386 | $528,007 | $528,007 | $194.19 | | |
| FIRE1 | Fire & Rescue Dist #1 Camano GEN | 1.2502910536 | $528,007 | $528,007 | $660.16 | | |
| FIRE1BOND | Fire & Rescue Dist #1 Camano BOND | 0.1570001679 | $528,007 | $528,007 | $82.90 | | |
| CE | County Current Expense | 0.3708482477 | $528,007 | $528,007 | $195.81 | | |
| CR | County Roads | 0.4584763726 | $528,007 | $528,007 | $242.08 | | |
| LCIB | Library Sno-Isle BOND (Camano Island) | 0.0396325772 | $528,007 | $528,007 | $20.93 | | |
| LIB | Library Sno-Isle GEN | 0.3153421757 | $528,007 | $528,007 | $166.50 | | |
| SCH205_401 | School 205-401 Enrichment | 1.2698420524 | $528,007 | $528,007 | $670.49 | | |
| SCH205BOND | School 205-401 BOND | 0.9396497583 | $528,007 | $528,007 | $496.14 | | |
| ST | State School | 1.3035497053 | $528,007 | $528,007 | $688.28 | | |
| ST2 | State School Part 2 | 0.8169543533 | $528,007 | $528,007 | $431.36 | | |
| | Total Tax Rate: | 7.3209764117 | | | | | |
| | | | | Taxes w/Current Exemptions: | $3,865.53 | | |
| | | | | Taxes w/o Exemptions: | $3,865.53 | | |
Improvement / Building
| Improvement #1: | RESIDENTIAL | State Code: | Y | 1700.8 sqft | Value: | $278,007 |
| Bathrooms: | 2 | Bedrooms: | 3 | | Ceiling: | DRY WALL SPRAYED | Exterior Wall/Cover: | WOOD SIDING | | Floor Covering: | CARPET/VINYL 20-80 | Floor Structure: | WOOD W/SUBFLOOR | | Foundation: | CONCRETE | Heating: | WALL HEAT ELECTRIC | | Interior Finish: | DRYWALL PAINT | Plumbing Fixture Cnt: | 9 | | Roof Slope: | 6" IN 12" | Roof Structure/Cover: | CJ ASPHALT |
|
| | Type | Description | Class CD | Sub Class CD | Year Built | Area |
| | BAS | BASE/MAIN FLOOR | 3 | 0 | 2001 | 1700.8 |
| | AGR | ATTACHED GARAGE | 3 | 0 | 2001 | 348.5 |
| | OWP | OPEN WOOD PORCH W/STEPS | 3 | 0 | 2001 | 232.0 |
Sketch
Property Image
Land
| 1 | 14 | SQ (08001-12000) | 0.0000 | 0.00 | 0.00 | 0.00 | 1.00 | $250,000 | $0 |
Roll Value History
| 2026 | N/A | N/A | N/A | N/A | N/A |
| 2025 | $278,007 | $250,000 | $0 | $528,007 | $528,007 |
| 2024 | $281,429 | $250,000 | $0 | $531,429 | $531,429 |
| 2023 | $284,851 | $210,000 | $0 | $494,851 | $494,851 |
| 2022 | $261,771 | $200,000 | $0 | $461,771 | $461,771 |
| 2021 | $230,325 | $140,000 | $0 | $370,325 | $370,325 |
| 2020 | $224,511 | $120,000 | $0 | $344,511 | $344,511 |
| 2019 | $165,095 | $170,000 | $0 | $335,095 | $335,095 |
| 2018 | $165,567 | $140,000 | $0 | $305,567 | $305,567 |
| 2017 | $166,514 | $90,000 | $0 | $256,514 | $256,514 |
| 2016 | $168,407 | $65,000 | $0 | $233,407 | $233,407 |
| 2015 | $159,905 | $50,000 | $0 | $209,905 | $209,905 |
| 2014 | $161,764 | $50,000 | $0 | $211,764 | $211,764 |
| 2013 | $163,623 | $50,000 | $0 | $213,623 | $213,623 |
| 2012 | $165,484 | $56,000 | $0 | $221,484 | $221,484 |
| 2011 | $167,343 | $70,000 | $0 | $237,343 | $80,980 |
| 2010 | $172,875 | $70,000 | $0 | $242,875 | $80,980 |
| 2009 | $177,263 | $90,000 | $0 | $267,263 | $80,980 |
| 2008 | $179,509 | $124,744 | $0 | $304,253 | $202,450 |
| 2007 | $156,586 | $118,127 | $0 | $274,713 | $178,233 |
Deed and Sales History
| 1 | 05/24/2022 | WD | Warranty Deed | MAKOWSKI, TARA G | URBANO, DANIKA MARIE | | | $560,000.00 | 53255 | 4545862 |
| 2 | 01/13/2021 | WD | Warranty Deed | SKAHAN, JASON | MAKOWSKI, TARA G | | | $400,000.00 | 46764 | 4509498 |
| 3 | 10/25/2018 | WD | Warranty Deed | HEBERT, JOSEPH | SKAHAN, JASON | | | $305,000.00 | 36484 | 4454357 |
| 4 | 08/28/2015 | WD | Warranty Deed | FRITZ, SHEILA J | HEBERT, JOSEPH | | | $234,000.00 | 21193 | 4385219 |
| 5 | 04/28/2015 | TOD | Transfer On Death Deed | FRITZ, DONALD L | FRITZ, SHEILA J | | | $0.00 | 20373 | 4381776 |
| 6 | 04/22/2004 | WD | Warranty Deed | Unknown | FRITZ, DONALD L | | | $179,950.00 | 41725 | 4098787 |
| 7 | 07/20/2001 | WD | Warranty Deed | WITHERS, JAYSON W | BAUMGART, NICHOLAS ALLEN | | | $161,000.00 | 12915 | 20038786 |
| 8 | 03/29/2001 | WD | Warranty Deed | ANDERSON, WILLIAM | WITHERS, JAYSON W | | | $45,000.00 | 11141 | 20027181 |
| 9 | 10/01/1978 | OTHER | Other - Misc. Documents | FRITZ, DONALD L | ANDERSON, WILLIAM | | | $5,995.00 | 85443 | 342520 |
Payout Agreement
| No payout information available.. |