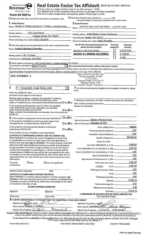
Property
Account |
| Property ID: | 215797 | Abbreviated Legal Description: | CCC 16 LOT 20 BLK 24 |
| Geographic ID: | S6250-16-24020-0 | Agent Code: | |
| Type: | Real | | |
| Tax Area: | 510 - APPRAISER-Stan/Cam Schl Dist, improved & 1 acre or less | Land Use Code | 11 |
| Open Space: | N | DFL | N |
| Historic Property: | N | Remodel Property: | N |
| Multi-Family Redevelopment: | N | | |
| Township: | | Section: | |
| Range: | |
Location |
| Address: | 1297 UPLANDS DR CAMANO ISLAND, WA 98282 | Mapsco: | |
| Neighborhood: | Cycle 5 | Map ID: | 931 |
| Neighborhood CD: | 5 |
Owner |
| Name: | GRANDY, JAIME STE JOAN | Owner ID: | 292967 |
| Mailing Address: | 1297 UPLANDS DR CAMANO ISLAND, WA 98282 | % Ownership: | 100.0000000000% |
| | | Exemptions: | SNR/DSBL |
Taxes and Assessment Details
Values
| (+) Improvement Homesite Value: | + | $265,863 | |
| (+) Improvement Non-Homesite Value: | + | $0 | |
| (+) Land Homesite Value: | + | $250,000 | |
| (+) Land Non-Homesite Value: | + | $0 | |
| (+) Curr Use (HS): | + | $0 | $0 |
| (+) Curr Use (NHS): | + | $0 | $0 |
| | | -------------------------- | |
| (=) Market Value: | = | $515,863 | |
| (–) Productivity Loss: | – | $0 | |
| | | -------------------------- | |
| (=) Subtotal: | = | $515,863 | |
| (+) Senior Appraised Value: | + | $515,863 | |
| (+) Non-Senior Appraised Value: | + | $0 | |
| | | -------------------------- | |
| (=) Total Appraised Value: | = | $515,863 | |
| (–) Senior Exemption Loss: | – | $70,000 | |
| (–) Exemption Loss: | – | $0 | |
| | | -------------------------- | |
| (=) Taxable Value: | = | $445,863 | |
Taxing Jurisdiction
| Owner: | GRANDY, JAIME STE JOAN | | |
| % Ownership: | 100.0000000000% | | |
| Total Value: | $515,863 | | |
| Tax Area: | 510 - APPRAISER-Stan/Cam Schl Dist, improved & 1 acre or less |
| CF | Conservation Futures | 0.0316035091 | $515,863 | $445,863 | $14.09 | | |
| EMS1 | Fire & Rescue Dist #1 Camano GEN (EMS) | 0.3677864386 | $515,863 | $445,863 | $163.98 | | |
| FIRE1 | Fire & Rescue Dist #1 Camano GEN | 1.2502910536 | $515,863 | $445,863 | $557.46 | | |
| FIRE1BOND | Fire & Rescue Dist #1 Camano BOND | 0.0000000000 | $515,863 | $0 | $0.00 | | |
| CE | County Current Expense | 0.3708482477 | $515,863 | $445,863 | $165.35 | | |
| CR | County Roads | 0.4584763726 | $515,863 | $445,863 | $204.42 | | |
| LCIB | Library Sno-Isle BOND (Camano Island) | 0.0000000000 | $515,863 | $0 | $0.00 | | |
| LIB | Library Sno-Isle GEN | 0.3153421757 | $515,863 | $445,863 | $140.60 | | |
| SCH205_401 | School 205-401 Enrichment | 0.0000000000 | $515,863 | $0 | $0.00 | | |
| SCH205BOND | School 205-401 BOND | 0.0000000000 | $515,863 | $0 | $0.00 | | |
| ST | State School | 1.3035497053 | $515,863 | $445,863 | $581.20 | | |
| ST2 | State School Part 2 | 0.0000000000 | $515,863 | $0 | $0.00 | | |
| | Total Tax Rate: | 4.0978975026 | | | | | |
| | | | | Taxes w/Current Exemptions: | $1,827.10 | | |
| | | | | Taxes w/o Exemptions: | $3,776.61 | | |
Improvement / Building
| Improvement #1: | RESIDENTIAL | State Code: | Y | 1244.9 sqft | Value: | $265,863 |
| Bathrooms: | 2 | Bedrooms: | 3 | | Ceiling: | DRYWALL PAINTED | Cooling: | HEAT PUMP/CONV/V | | Exterior Wall/Cover: | PLY/HARDBOARD T-111 | Floor Covering: | CARPET/VINYL 80-20 | | Floor Structure: | WOOD W/SUBFLOOR | Foundation: | CONCRETE | | Interior Finish: | DRYWALL PAINT | Plumbing Fixture Cnt: | 9 | | Roof Slope: | 5" IN 12" | Roof Structure/Cover: | CJ ASPHALT |
|
| | Type | Description | Class CD | Sub Class CD | Year Built | Area |
| | BAS | BASE/MAIN FLOOR | 3 | 0 | 1995 | 1244.9 |
| | AGR | ATTACHED GARAGE | 3 | 0 | 1995 | 504.0 |
| | OWC | OPEN WOOD PORCH W/STEPS/ROOF/C | 3 | 0 | 1995 | 238.5 |
| | CPD | OPEN CARPORT DIRT FLOOR | 3 | 0 | 1995 | 360.0 |
| | OWR | OPEN WOOD PORCH W/STEPS/ROOF | 3 | 0 | 1995 | 169.0 |
Sketch
Property Image
Land
| 1 | 14 | SQ (08001-12000) | 0.0000 | 0.00 | 0.00 | 0.00 | 1.00 | $250,000 | $0 |
Roll Value History
| 2026 | N/A | N/A | N/A | N/A | N/A |
| 2025 | $265,863 | $250,000 | $0 | $515,863 | $445,863 |
| 2024 | $269,057 | $250,000 | $0 | $519,057 | $449,057 |
| 2023 | $272,250 | $210,000 | $0 | $482,250 | $482,250 |
| 2022 | $249,415 | $200,000 | $0 | $449,415 | $449,415 |
| 2021 | $213,769 | $140,000 | $0 | $353,769 | $353,769 |
| 2020 | $207,843 | $120,000 | $0 | $327,843 | $327,843 |
| 2019 | $138,591 | $170,000 | $0 | $308,591 | $308,591 |
| 2018 | $139,007 | $140,000 | $0 | $279,007 | $279,007 |
| 2017 | $139,770 | $90,000 | $0 | $229,770 | $229,770 |
| 2016 | $141,435 | $65,000 | $0 | $206,435 | $206,435 |
| 2015 | $128,986 | $50,000 | $0 | $178,986 | $178,986 |
| 2014 | $130,547 | $50,000 | $0 | $180,547 | $180,547 |
| 2013 | $132,109 | $50,000 | $0 | $182,109 | $182,109 |
| 2012 | $133,671 | $56,000 | $0 | $189,671 | $189,671 |
| 2011 | $135,234 | $70,000 | $0 | $205,234 | $205,234 |
| 2010 | $139,476 | $70,000 | $0 | $209,476 | $209,476 |
| 2009 | $149,179 | $90,000 | $0 | $239,179 | $239,179 |
| 2008 | $150,901 | $125,000 | $0 | $275,901 | $275,901 |
| 2007 | $152,624 | $100,000 | $0 | $252,624 | $252,624 |
Deed and Sales History
| 1 | 12/16/2019 | QCD | Quit Claim Deed | GRANDY, CLAUDIA JO | GRANDY, JAIME STE JOAN | | | $0.00 | 41552 | 4477911 |
| 2 | 12/15/2019 | WD | Warranty Deed | OSBORN, MATHEW W | GRANDY, JAIME STE JOAN | | | $340,400.00 | 41551 | 4477910 |
| 3 | 09/16/2015 | ESTSEPPROP | Establish Separate Property | OSBORN, MATHEW W | OSBORN, MATHEW W | | | $0.00 | 21425 | 4386257 |
| 4 | 09/16/2015 | WD | Warranty Deed | OSBORN, CHARLES | OSBORN, MATHEW W | | | $195,000.00 | 21424 | 43862556 |
| 5 | 07/06/2005 | QCD | Quit Claim Deed | SERR, DONALD L | OSBORN, CHARLES | | | $135,000.00 | 53574 | 4142020 |
| 6 | 01/25/2005 | WD | Warranty Deed | SERR, DONALD L | SERR, DONALD L | | | $0.00 | 51752 | 4132359 |
| 7 | 01/25/2005 | QCD | Quit Claim Deed | OSBORN, MATHEW W | SERR, DONALD L | | | $150,000.00 | 51480 | 4130796 |
| 8 | 02/01/1996 | WD | Warranty Deed | WITHERS, JAYSON | OSBORN, MATHEW W | | | $121,950.00 | 60674 | 96003610 |
| 9 | 03/01/1995 | WD | Warranty Deed | FIVE, STAR H | WITHERS, JAYSON | | | $28,500.00 | 50800 | 95003884 |
| 10 | 02/01/1992 | WD | Warranty Deed | HANSON, ERWIN M | FIVE, STAR H | | | $23,000.00 | 20798 | 92004051 |
| 11 | 01/01/1900 | OTHER | Other - Misc. Documents | Unknown | HANSON, ERWIN M | | | $0.00 | 0 | 0 |
Payout Agreement
| No payout information available.. |