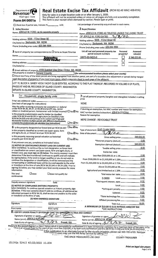
Property
Account |
| Property ID: | 216046 | Abbreviated Legal Description: | CCC 17 LOT 12 BLK 16 TGW SLY 15'OF LOT 11 BLK 16 |
| Geographic ID: | S6250-17-16012-0 | Agent Code: | |
| Type: | Real | | |
| Tax Area: | 510 - APPRAISER-Stan/Cam Schl Dist, improved & 1 acre or less | Land Use Code | 11 |
| Open Space: | N | DFL | N |
| Historic Property: | N | Remodel Property: | N |
| Multi-Family Redevelopment: | N | | |
| Township: | | Section: | |
| Range: | |
Location |
| Address: | 1403 CRESTVIEW DR CAMANO ISLAND, WA 98282 | Mapsco: | |
| Neighborhood: | Cycle 5 | Map ID: | 929 |
| Neighborhood CD: | 5 |
Owner |
| Name: | HARRIS TTEE, JOHN F | Owner ID: | 300219 |
| Mailing Address: | 7621 NE 10TH ST MEDINA, WA 98036 | % Ownership: | 100.0000000000% |
| | | Exemptions: | |
Taxes and Assessment Details
Values
| (+) Improvement Homesite Value: | + | $0 | |
| (+) Improvement Non-Homesite Value: | + | $648,064 | |
| (+) Land Homesite Value: | + | $0 | |
| (+) Land Non-Homesite Value: | + | $390,000 | |
| (+) Curr Use (HS): | + | $0 | $0 |
| (+) Curr Use (NHS): | + | $0 | $0 |
| | | -------------------------- | |
| (=) Market Value: | = | $1,038,064 | |
| (–) Productivity Loss: | – | $0 | |
| | | -------------------------- | |
| (=) Subtotal: | = | $1,038,064 | |
| (+) Senior Appraised Value: | + | $0 | |
| (+) Non-Senior Appraised Value: | + | $1,038,064 | |
| | | -------------------------- | |
| (=) Total Appraised Value: | = | $1,038,064 | |
| (–) Senior Exemption Loss: | – | $0 | |
| (–) Exemption Loss: | – | $0 | |
| | | -------------------------- | |
| (=) Taxable Value: | = | $1,038,064 | |
Taxing Jurisdiction
| Owner: | HARRIS TTEE, JOHN F | | |
| % Ownership: | 100.0000000000% | | |
| Total Value: | $1,038,064 | | |
| Tax Area: | 510 - APPRAISER-Stan/Cam Schl Dist, improved & 1 acre or less |
| CF | Conservation Futures | 0.0316035091 | $1,038,064 | $1,038,064 | $32.81 | | |
| EMS1 | Fire & Rescue Dist #1 Camano GEN (EMS) | 0.3677864386 | $1,038,064 | $1,038,064 | $381.79 | | |
| FIRE1 | Fire & Rescue Dist #1 Camano GEN | 1.2502910536 | $1,038,064 | $1,038,064 | $1,297.88 | | |
| FIRE1BOND | Fire & Rescue Dist #1 Camano BOND | 0.1570001679 | $1,038,064 | $1,038,064 | $162.98 | | |
| CE | County Current Expense | 0.3708482477 | $1,038,064 | $1,038,064 | $384.96 | | |
| CR | County Roads | 0.4584763726 | $1,038,064 | $1,038,064 | $475.93 | | |
| LCIB | Library Sno-Isle BOND (Camano Island) | 0.0396325772 | $1,038,064 | $1,038,064 | $41.14 | | |
| LIB | Library Sno-Isle GEN | 0.3153421757 | $1,038,064 | $1,038,064 | $327.35 | | |
| SCH205_401 | School 205-401 Enrichment | 1.2698420524 | $1,038,064 | $1,038,064 | $1,318.18 | | |
| SCH205BOND | School 205-401 BOND | 0.9396497583 | $1,038,064 | $1,038,064 | $975.42 | | |
| ST | State School | 1.3035497053 | $1,038,064 | $1,038,064 | $1,353.17 | | |
| ST2 | State School Part 2 | 0.8169543533 | $1,038,064 | $1,038,064 | $848.05 | | |
| | Total Tax Rate: | 7.3209764117 | | | | | |
| | | | | Taxes w/Current Exemptions: | $7,599.66 | | |
| | | | | Taxes w/o Exemptions: | $7,599.66 | | |
Improvement / Building
| Improvement #1: | RESIDENTIAL | State Code: | Y | 3839.8 sqft | Value: | $648,064 |
| Bathrooms: | 4 | Bedrooms: | 3 | | Ceiling: | DRYWALL PAINTED | Cooling: | HEAT PUMP/CONV/V | | Exterior Wall/Cover: | COMMON BRICK VENEER | Floor Covering: | HARDWOOD/CARP 60-40 | | Floor Structure: | WOOD W/SUBFLOOR | Foundation: | CONCRETE | | Interior Finish: | DRYWALL PAINT | Plumbing Fixture Cnt: | 14 | | Roof Slope: | 8" IN 12" | Roof Structure/Cover: | CJ ASPHALT |
|
| | Type | Description | Class CD | Sub Class CD | Year Built | Area |
| | BAS | BASE/MAIN FLOOR | 4 | 0 | 1983 | 1598.8 |
| | DWN | DOWNSTAIRS LIVING AREA | 4 | 0 | 1983 | 1680.0 |
| | OP1 | OPEN PORCH SLAB | 4 | 0 | 1983 | 480.0 |
| | OP2 | OPEN PORCH W/STEPS | 4 | 0 | 1983 | 32.0 |
| | AGR | ATTACHED GARAGE | 4 | 0 | 1983 | 294.0 |
| | AGR | ATTACHED GARAGE | 4 | 0 | 1983 | 1067.0 |
| | OWC | OPEN WOOD PORCH W/STEPS/ROOF/C | 4 | 0 | 1983 | 412.0 |
| | OWC | OPEN WOOD PORCH W/STEPS/ROOF/C | 4 | 0 | 1983 | 252.0 |
| | UPS | UPPER STORY | 4 | 0 | 1983 | 561.0 |
Sketch
Property Image
Land
| 1 | 15 | SQ (12001-21780) | 0.0000 | 0.00 | 0.00 | 0.00 | 1.00 | $390,000 | $0 |
Roll Value History
| 2026 | N/A | N/A | N/A | N/A | N/A |
| 2025 | $648,064 | $390,000 | $0 | $1,038,064 | $1,038,064 |
| 2024 | $656,040 | $360,000 | $0 | $1,016,040 | $1,016,040 |
| 2023 | $664,017 | $330,000 | $0 | $994,017 | $994,017 |
| 2022 | $608,516 | $300,000 | $0 | $908,516 | $908,516 |
| 2021 | $398,524 | $200,000 | $0 | $598,524 | $598,524 |
| 2020 | $389,811 | $180,000 | $0 | $569,811 | $569,811 |
| 2019 | $309,384 | $230,000 | $0 | $539,384 | $539,384 |
| 2018 | $310,412 | $200,000 | $0 | $510,412 | $510,412 |
| 2017 | $312,415 | $200,000 | $0 | $512,415 | $512,415 |
| 2016 | $316,526 | $130,000 | $0 | $446,526 | $446,526 |
| 2015 | $283,091 | $130,000 | $0 | $413,091 | $413,091 |
| 2014 | $286,851 | $130,000 | $0 | $416,851 | $416,851 |
| 2013 | $290,610 | $130,000 | $0 | $420,610 | $420,610 |
| 2012 | $294,370 | $138,384 | $0 | $432,754 | $432,754 |
| 2011 | $298,130 | $172,980 | $0 | $471,110 | $471,110 |
| 2010 | $311,271 | $172,980 | $0 | $484,251 | $484,251 |
| 2009 | $322,871 | $200,000 | $0 | $522,871 | $522,871 |
| 2008 | $335,375 | $230,000 | $0 | $565,375 | $565,375 |
| 2007 | $339,855 | $146,000 | $0 | $485,855 | $485,855 |
Deed and Sales History
| 1 | 07/14/2021 | WD | Warranty Deed | SWOBODA, ALLAN | HARRIS TTEE, JOHN F | | | $950,000.00 | 49171 | 4524509 |
| 2 | 07/24/2000 | WD | Warranty Deed | HUFFERD, CHARLES W | SWOBODA, ALLAN | | | $262,500.00 | 2809 | 20013253 |
| 3 | 04/01/1988 | OTHER | Other - Misc. Documents | HUFFERD, CHARLES W | HUFFERD, CHARLES W | | | $0.00 | 62580 | 88003924 |
| 4 | 08/01/1986 | OTHER | Other - Misc. Documents | HUFFERD, CHARLES W | HUFFERD, CHARLES W | | | $0.00 | 61786 | 86002148 |
| 5 | 03/01/1986 | WD | Warranty Deed | MIKLAUTSCH, JOSEF | HUFFERD, CHARLES W | | | $130,000.00 | 60567 | 86002818 |
| 6 | 10/01/1980 | EXECUTORD | Executor Deed | SPENCE, ROBERT C | MIKLAUTSCH, JOSEF | | | $23,000.00 | 3592 | 375607 |
| 7 | 04/01/1979 | OTHER | Other - Misc. Documents | PE, | SPENCE, ROBERT C | | | $22,000.00 | 92448 | 352764 |
| 8 | 12/01/1978 | OTHER | Other - Misc. Documents | Unknown | PE, | | | $7,000.00 | 901260 | 3462460 |
Payout Agreement
| No payout information available.. |