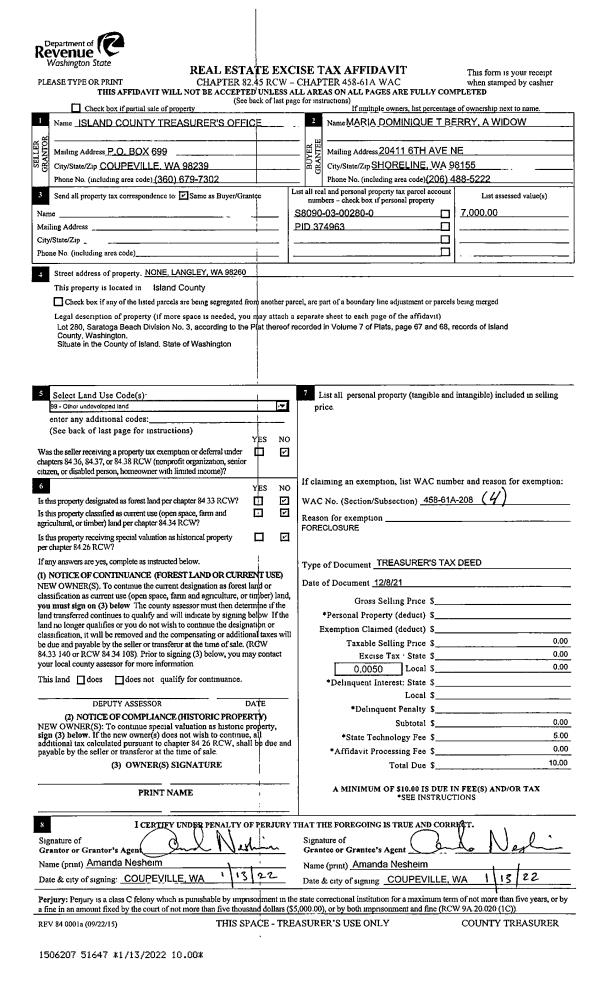
Property
Account |
| Property ID: | 216091 | Abbreviated Legal Description: | CCC 17 LOT 17 BLK 16 |
| Geographic ID: | S6250-17-16017-0 | Agent Code: | |
| Type: | Real | | |
| Tax Area: | 510 - APPRAISER-Stan/Cam Schl Dist, improved & 1 acre or less | Land Use Code | 11 |
| Open Space: | N | DFL | N |
| Historic Property: | N | Remodel Property: | N |
| Multi-Family Redevelopment: | N | | |
| Township: | | Section: | |
| Range: | |
Location |
| Address: | 1433 CRESTVIEW DR CAMANO ISLAND, WA 98282 | Mapsco: | |
| Neighborhood: | Cycle 5 | Map ID: | 929 |
| Neighborhood CD: | 5 |
Owner |
| Name: | SMALL, ROBERT M & ANNE L | Owner ID: | 63108 |
| Mailing Address: | 1433 CRESTVIEW DR CAMANO ISLAND, WA 98282-8308 | % Ownership: | 100.0000000000% |
| | | Exemptions: | |
Taxes and Assessment Details
Values
| (+) Improvement Homesite Value: | + | $0 | |
| (+) Improvement Non-Homesite Value: | + | $557,969 | |
| (+) Land Homesite Value: | + | $0 | |
| (+) Land Non-Homesite Value: | + | $390,000 | |
| (+) Curr Use (HS): | + | $0 | $0 |
| (+) Curr Use (NHS): | + | $0 | $0 |
| | | -------------------------- | |
| (=) Market Value: | = | $947,969 | |
| (–) Productivity Loss: | – | $0 | |
| | | -------------------------- | |
| (=) Subtotal: | = | $947,969 | |
| (+) Senior Appraised Value: | + | $0 | |
| (+) Non-Senior Appraised Value: | + | $947,969 | |
| | | -------------------------- | |
| (=) Total Appraised Value: | = | $947,969 | |
| (–) Senior Exemption Loss: | – | $0 | |
| (–) Exemption Loss: | – | $0 | |
| | | -------------------------- | |
| (=) Taxable Value: | = | $947,969 | |
Taxing Jurisdiction
| Owner: | SMALL, ROBERT M & ANNE L | | |
| % Ownership: | 100.0000000000% | | |
| Total Value: | $947,969 | | |
| Tax Area: | 510 - APPRAISER-Stan/Cam Schl Dist, improved & 1 acre or less |
| CF | Conservation Futures | 0.0316035091 | $947,969 | $947,969 | $29.96 | | |
| EMS1 | Fire & Rescue Dist #1 Camano GEN (EMS) | 0.3677864386 | $947,969 | $947,969 | $348.65 | | |
| FIRE1 | Fire & Rescue Dist #1 Camano GEN | 1.2502910536 | $947,969 | $947,969 | $1,185.24 | | |
| FIRE1BOND | Fire & Rescue Dist #1 Camano BOND | 0.1570001679 | $947,969 | $947,969 | $148.83 | | |
| CE | County Current Expense | 0.3708482477 | $947,969 | $947,969 | $351.55 | | |
| CR | County Roads | 0.4584763726 | $947,969 | $947,969 | $434.62 | | |
| LCIB | Library Sno-Isle BOND (Camano Island) | 0.0396325772 | $947,969 | $947,969 | $37.57 | | |
| LIB | Library Sno-Isle GEN | 0.3153421757 | $947,969 | $947,969 | $298.93 | | |
| SCH205_401 | School 205-401 Enrichment | 1.2698420524 | $947,969 | $947,969 | $1,203.77 | | |
| SCH205BOND | School 205-401 BOND | 0.9396497583 | $947,969 | $947,969 | $890.76 | | |
| ST | State School | 1.3035497053 | $947,969 | $947,969 | $1,235.72 | | |
| ST2 | State School Part 2 | 0.8169543533 | $947,969 | $947,969 | $774.45 | | |
| | Total Tax Rate: | 7.3209764117 | | | | | |
| | | | | Taxes w/Current Exemptions: | $6,940.05 | | |
| | | | | Taxes w/o Exemptions: | $6,940.05 | | |
Improvement / Building
| Improvement #1: | RESIDENTIAL | State Code: | Y | 3485.2 sqft | Value: | $557,969 |
| Bathrooms: | 3.5 | Bedrooms: | 2 | | Ceiling: | DRY WALL SPRAYED | Cooling: | HEAT PUMP/CONV/V | | Exterior Wall/Cover: | VINYL | Floor Covering: | VINYL TILE/CARP 20-80 | | Floor Structure: | WOOD W/SUBFLOOR | Foundation: | CONCRETE | | Interior Finish: | DRYWALL PAINT | Plumbing Fixture Cnt: | 15 | | Roof Slope: | 4" IN 12" | Roof Structure/Cover: | CJ ASPHALT |
|
| | Type | Description | Class CD | Sub Class CD | Year Built | Area |
| | BAS | BASE/MAIN FLOOR | 4 | 0 | 2000 | 2479.2 |
| | OP1 | OPEN PORCH SLAB | 4 | 0 | 2000 | 482.0 |
| | OP2 | OPEN PORCH W/STEPS | 4 | 0 | 2000 | 60.0 |
| | AGR | ATTACHED GARAGE | 4 | 0 | 2000 | 780.0 |
| | DWN | DOWNSTAIRS LIVING AREA | 4 | 0 | 2000 | 1006.0 |
| | OWP | OPEN WOOD PORCH W/STEPS | 4 | 0 | 2000 | 348.0 |
Sketch
Property Image
Land
| 1 | 15 | SQ (12001-21780) | 0.0000 | 0.00 | 0.00 | 0.00 | 1.00 | $390,000 | $0 |
Roll Value History
| 2026 | N/A | N/A | N/A | N/A | N/A |
| 2025 | $557,969 | $390,000 | $0 | $947,969 | $947,969 |
| 2024 | $564,836 | $360,000 | $0 | $924,836 | $924,836 |
| 2023 | $571,704 | $330,000 | $0 | $901,704 | $901,704 |
| 2022 | $523,877 | $300,000 | $0 | $823,877 | $823,877 |
| 2021 | $432,775 | $200,000 | $0 | $632,775 | $632,775 |
| 2020 | $422,947 | $180,000 | $0 | $602,947 | $602,947 |
| 2019 | $342,766 | $230,000 | $0 | $572,766 | $572,766 |
| 2018 | $343,795 | $200,000 | $0 | $543,795 | $543,795 |
| 2017 | $345,855 | $200,000 | $0 | $545,855 | $545,855 |
| 2016 | $349,971 | $130,000 | $0 | $479,971 | $479,971 |
| 2015 | $343,307 | $130,000 | $0 | $473,307 | $473,307 |
| 2014 | $347,370 | $130,000 | $0 | $477,370 | $477,370 |
| 2013 | $351,435 | $130,000 | $0 | $481,435 | $481,435 |
| 2012 | $355,499 | $138,384 | $0 | $493,883 | $493,883 |
| 2011 | $359,562 | $172,980 | $0 | $532,542 | $532,542 |
| 2010 | $372,918 | $172,980 | $0 | $545,898 | $545,898 |
| 2009 | $430,951 | $200,000 | $0 | $630,951 | $630,951 |
| 2008 | $446,189 | $230,000 | $0 | $676,189 | $676,189 |
| 2007 | $446,401 | $146,000 | $0 | $592,401 | $592,401 |
Deed and Sales History
| 1 | 01/01/1995 | WD | Warranty Deed | GARRISON, LAURA J | SMALL, ROBERT M | | | $66,500.00 | 50265 | 95001252 |
| 2 | 05/01/1992 | WD | Warranty Deed | CHRISTIAN, CURTIS G | GARRISON, LAURA J | | | $15,000.00 | 21864 | 92008862 |
| 3 | 01/01/1900 | OTHER | Other - Misc. Documents | Unknown | CHRISTIAN, CURTIS G | | | $0.00 | 0 | 0 |
Payout Agreement
| No payout information available.. |