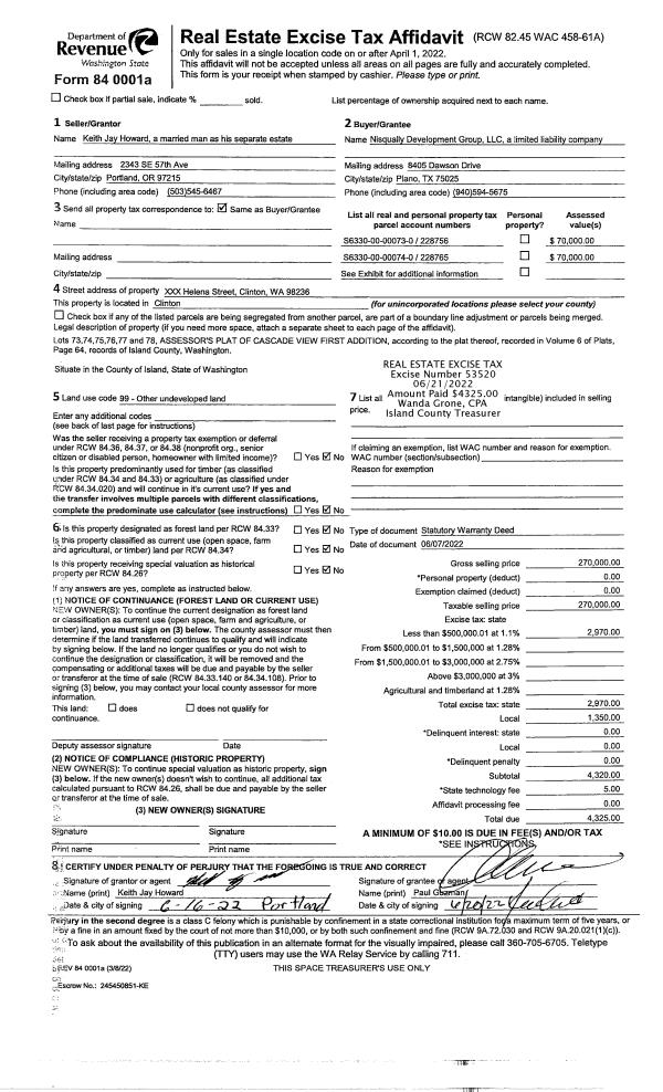
Property
Account |
| Property ID: | 216171 | Abbreviated Legal Description: | CCC 18 LOT 7 BLK 27 |
| Geographic ID: | S6250-18-27007-0 | Agent Code: | |
| Type: | Real | | |
| Tax Area: | 510 - APPRAISER-Stan/Cam Schl Dist, improved & 1 acre or less | Land Use Code | 11 |
| Open Space: | N | DFL | N |
| Historic Property: | N | Remodel Property: | N |
| Multi-Family Redevelopment: | N | | |
| Township: | | Section: | |
| Range: | |
Location |
| Address: | 1946 S EAST CAMANO DR CAMANO ISLAND, WA 98282 | Mapsco: | |
| Neighborhood: | Cycle 5 | Map ID: | 933 |
| Neighborhood CD: | 5 |
Owner |
| Name: | GREEN, SUSAN J | Owner ID: | 280461 |
| Mailing Address: | 1946 SE CAMANO DR CAMANO ISLAND, WA 98282 | % Ownership: | 100.0000000000% |
| | | Exemptions: | |
Taxes and Assessment Details
Values
| (+) Improvement Homesite Value: | + | $0 | |
| (+) Improvement Non-Homesite Value: | + | $369,066 | |
| (+) Land Homesite Value: | + | $0 | |
| (+) Land Non-Homesite Value: | + | $250,000 | |
| (+) Curr Use (HS): | + | $0 | $0 |
| (+) Curr Use (NHS): | + | $0 | $0 |
| | | -------------------------- | |
| (=) Market Value: | = | $619,066 | |
| (–) Productivity Loss: | – | $0 | |
| | | -------------------------- | |
| (=) Subtotal: | = | $619,066 | |
| (+) Senior Appraised Value: | + | $0 | |
| (+) Non-Senior Appraised Value: | + | $619,066 | |
| | | -------------------------- | |
| (=) Total Appraised Value: | = | $619,066 | |
| (–) Senior Exemption Loss: | – | $0 | |
| (–) Exemption Loss: | – | $0 | |
| | | -------------------------- | |
| (=) Taxable Value: | = | $619,066 | |
Taxing Jurisdiction
| Owner: | GREEN, SUSAN J | | |
| % Ownership: | 100.0000000000% | | |
| Total Value: | $619,066 | | |
| Tax Area: | 510 - APPRAISER-Stan/Cam Schl Dist, improved & 1 acre or less |
| CF | Conservation Futures | 0.0316035091 | $619,066 | $619,066 | $19.56 | | |
| EMS1 | Fire & Rescue Dist #1 Camano GEN (EMS) | 0.3677864386 | $619,066 | $619,066 | $227.68 | | |
| FIRE1 | Fire & Rescue Dist #1 Camano GEN | 1.2502910536 | $619,066 | $619,066 | $774.01 | | |
| FIRE1BOND | Fire & Rescue Dist #1 Camano BOND | 0.1570001679 | $619,066 | $619,066 | $97.19 | | |
| CE | County Current Expense | 0.3708482477 | $619,066 | $619,066 | $229.58 | | |
| CR | County Roads | 0.4584763726 | $619,066 | $619,066 | $283.83 | | |
| LCIB | Library Sno-Isle BOND (Camano Island) | 0.0396325772 | $619,066 | $619,066 | $24.54 | | |
| LIB | Library Sno-Isle GEN | 0.3153421757 | $619,066 | $619,066 | $195.22 | | |
| SCH205_401 | School 205-401 Enrichment | 1.2698420524 | $619,066 | $619,066 | $786.12 | | |
| SCH205BOND | School 205-401 BOND | 0.9396497583 | $619,066 | $619,066 | $581.71 | | |
| ST | State School | 1.3035497053 | $619,066 | $619,066 | $806.98 | | |
| ST2 | State School Part 2 | 0.8169543533 | $619,066 | $619,066 | $505.75 | | |
| | Total Tax Rate: | 7.3209764117 | | | | | |
| | | | | Taxes w/Current Exemptions: | $4,532.17 | | |
| | | | | Taxes w/o Exemptions: | $4,532.17 | | |
Improvement / Building
| Improvement #1: | RESIDENTIAL | State Code: | Y | 1571.0 sqft | Value: | $369,066 |
| Bathrooms: | 2 | Bedrooms: | 2 | | Ceiling: | DRYWALL PAINTED | Cooling: | HEAT PUMP/CONV/V | | Exterior Wall/Cover: | CEMENT FIBER | Floor Covering: | CARPET/VINYL 20-80 | | Floor Structure: | WOOD W/SUBFLOOR | Foundation: | CONCRETE | | Interior Finish: | DRYWALL PAINT | Plumbing Fixture Cnt: | 10 | | Roof Slope: | 6" IN 12" | Roof Structure/Cover: | CJ ASPHALT |
|
| | Type | Description | Class CD | Sub Class CD | Year Built | Area |
| | BAS | BASE/MAIN FLOOR | 4 | 0 | 2017 | 1571.0 |
| | AGR | ATTACHED GARAGE | 4 | 0 | 2017 | 480.0 |
| | OWC | OPEN WOOD PORCH W/STEPS/ROOF/C | 4 | 0 | 2017 | 125.0 |
Sketch
Property Image
Land
| 1 | 14 | SQ (08001-12000) | 0.0000 | 0.00 | 0.00 | 0.00 | 1.00 | $250,000 | $0 |
Roll Value History
| 2026 | N/A | N/A | N/A | N/A | N/A |
| 2025 | $369,066 | $250,000 | $0 | $619,066 | $619,066 |
| 2024 | $372,067 | $250,000 | $0 | $622,067 | $622,067 |
| 2023 | $375,066 | $210,000 | $0 | $585,066 | $585,066 |
| 2022 | $342,346 | $200,000 | $0 | $542,346 | $542,346 |
| 2021 | $297,685 | $140,000 | $0 | $437,685 | $437,685 |
| 2020 | $288,639 | $120,000 | $0 | $408,639 | $408,639 |
| 2019 | $214,293 | $170,000 | $0 | $384,293 | $384,293 |
| 2018 | $214,838 | $140,000 | $0 | $354,838 | $354,838 |
| 2017 | $218,110 | $50,000 | $0 | $268,110 | $268,110 |
| 2016 | $0 | $45,000 | $0 | $45,000 | $45,000 |
| 2015 | $0 | $2,000 | $0 | $2,000 | $2,000 |
| 2014 | $0 | $5,000 | $0 | $5,000 | $5,000 |
| 2013 | $0 | $5,000 | $0 | $5,000 | $5,000 |
| 2012 | $0 | $3,000 | $0 | $3,000 | $3,000 |
| 2011 | $0 | $3,000 | $0 | $3,000 | $3,000 |
| 2010 | $0 | $3,000 | $0 | $3,000 | $3,000 |
| 2009 | $0 | $4,000 | $0 | $4,000 | $4,000 |
| 2008 | $0 | $6,800 | $0 | $6,800 | $6,800 |
| 2007 | $0 | $7,000 | $0 | $7,000 | $7,000 |
Deed and Sales History
| 1 | 06/08/2017 | WD | Warranty Deed | CARPE NOCTEM LLC | GREEN, SUSAN J | | | $329,000.00 | 29805 | 4424533 |
| 2 | 06/10/2016 | WD | Warranty Deed | DUDDER, MICHAEL | CARPE NOCTEM LLC | | | $32,500.00 | 24786 | 4401267 |
| 3 | 06/10/2016 | CCOMPROP | Create Community Property | DUDDER, MICHAEL P | DUDDER, MICHAEL | | | $0.00 | 24779 | 4401266 |
Payout Agreement
| No payout information available.. |