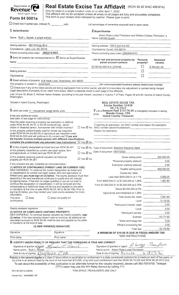
Property
Account |
| Property ID: | 216411 | Abbreviated Legal Description: | CCC 18 LOT 31 BLK 27 |
| Geographic ID: | S6250-18-27031-0 | Agent Code: | |
| Type: | Real | | |
| Tax Area: | 510 - APPRAISER-Stan/Cam Schl Dist, improved & 1 acre or less | Land Use Code | 11 |
| Open Space: | N | DFL | N |
| Historic Property: | N | Remodel Property: | N |
| Multi-Family Redevelopment: | N | | |
| Township: | | Section: | |
| Range: | |
Location |
| Address: | 1969 EDGEWOOD DR CAMANO ISLAND, WA 98282 | Mapsco: | |
| Neighborhood: | Cycle 5 | Map ID: | 933 |
| Neighborhood CD: | 5 |
Owner |
| Name: | COMER, JOSHUA | Owner ID: | 285525 |
| Mailing Address: | ASHLEY COMER 1969 EDGEWOOD DR CAMANO ISLAND, WA 98282 | % Ownership: | 100.0000000000% |
| | | Exemptions: | |
Taxes and Assessment Details
Values
| (+) Improvement Homesite Value: | + | $416,143 | |
| (+) Improvement Non-Homesite Value: | + | $0 | |
| (+) Land Homesite Value: | + | $250,000 | |
| (+) Land Non-Homesite Value: | + | $0 | |
| (+) Curr Use (HS): | + | $0 | $0 |
| (+) Curr Use (NHS): | + | $0 | $0 |
| | | -------------------------- | |
| (=) Market Value: | = | $666,143 | |
| (–) Productivity Loss: | – | $0 | |
| | | -------------------------- | |
| (=) Subtotal: | = | $666,143 | |
| (+) Senior Appraised Value: | + | $0 | |
| (+) Non-Senior Appraised Value: | + | $666,143 | |
| | | -------------------------- | |
| (=) Total Appraised Value: | = | $666,143 | |
| (–) Senior Exemption Loss: | – | $0 | |
| (–) Exemption Loss: | – | $0 | |
| | | -------------------------- | |
| (=) Taxable Value: | = | $666,143 | |
Taxing Jurisdiction
| Owner: | COMER, JOSHUA | | |
| % Ownership: | 100.0000000000% | | |
| Total Value: | $666,143 | | |
| Tax Area: | 510 - APPRAISER-Stan/Cam Schl Dist, improved & 1 acre or less |
| CF | Conservation Futures | 0.0316035091 | $666,143 | $666,143 | $21.05 | | |
| EMS1 | Fire & Rescue Dist #1 Camano GEN (EMS) | 0.3677864386 | $666,143 | $666,143 | $245.00 | | |
| FIRE1 | Fire & Rescue Dist #1 Camano GEN | 1.2502910536 | $666,143 | $666,143 | $832.87 | | |
| FIRE1BOND | Fire & Rescue Dist #1 Camano BOND | 0.1570001679 | $666,143 | $666,143 | $104.58 | | |
| CE | County Current Expense | 0.3708482477 | $666,143 | $666,143 | $247.04 | | |
| CR | County Roads | 0.4584763726 | $666,143 | $666,143 | $305.41 | | |
| LCIB | Library Sno-Isle BOND (Camano Island) | 0.0396325772 | $666,143 | $666,143 | $26.40 | | |
| LIB | Library Sno-Isle GEN | 0.3153421757 | $666,143 | $666,143 | $210.06 | | |
| SCH205_401 | School 205-401 Enrichment | 1.2698420524 | $666,143 | $666,143 | $845.90 | | |
| SCH205BOND | School 205-401 BOND | 0.9396497583 | $666,143 | $666,143 | $625.94 | | |
| ST | State School | 1.3035497053 | $666,143 | $666,143 | $868.35 | | |
| ST2 | State School Part 2 | 0.8169543533 | $666,143 | $666,143 | $544.21 | | |
| | Total Tax Rate: | 7.3209764117 | | | | | |
| | | | | Taxes w/Current Exemptions: | $4,876.81 | | |
| | | | | Taxes w/o Exemptions: | $4,876.81 | | |
Improvement / Building
| Improvement #1: | RESIDENTIAL | State Code: | Y | 3236.8 sqft | Value: | $416,143 |
| Bathrooms: | 2.5 | Bedrooms: | 3 | | Ceiling: | DRYWALL PAINTED | Cooling: | HEAT PUMP/CONV/V | | Exterior Wall/Cover: | WOOD SIDING | Floor Covering: | CARPET/VINYL 20-80 | | Floor Structure: | WOOD W/SUBFLOOR | Foundation: | CONCRETE | | Interior Finish: | DRYWALL PAINT | Plumbing Fixture Cnt: | 13 | | Roof Slope: | 5" IN 12" | Roof Structure/Cover: | CJ ASPHALT |
|
| | Type | Description | Class CD | Sub Class CD | Year Built | Area |
| | BAS | BASE/MAIN FLOOR | 3 | 0 | 1991 | 1697.8 |
| | DWN | DOWNSTAIRS LIVING AREA | 3 | 0 | 1991 | 1539.0 |
| | AGR | ATTACHED GARAGE | 3 | 0 | 1991 | 286.0 |
| | OWP | OPEN WOOD PORCH W/STEPS | 3 | 0 | 1991 | 88.0 |
| | OWP | OPEN WOOD PORCH W/STEPS | 3 | 0 | 1991 | 360.0 |
| | OP4 | OPEN PORCH W/CEILING-ROOF | 3 | 0 | 1991 | 24.0 |
Sketch
Property Image
Land
| 1 | 14 | SQ (08001-12000) | 0.0000 | 0.00 | 0.00 | 0.00 | 1.00 | $250,000 | $0 |
Roll Value History
| 2026 | N/A | N/A | N/A | N/A | N/A |
| 2025 | $416,143 | $250,000 | $0 | $666,143 | $666,143 |
| 2024 | $420,911 | $250,000 | $0 | $670,911 | $670,911 |
| 2023 | $425,679 | $210,000 | $0 | $635,679 | $635,679 |
| 2022 | $388,707 | $200,000 | $0 | $588,707 | $588,707 |
| 2021 | $340,993 | $140,000 | $0 | $480,993 | $480,993 |
| 2020 | $323,564 | $120,000 | $0 | $443,564 | $443,564 |
| 2019 | $262,381 | $170,000 | $0 | $432,381 | $432,381 |
| 2018 | $186,797 | $140,000 | $0 | $326,797 | $326,797 |
| 2017 | $148,008 | $90,000 | $0 | $238,008 | $238,008 |
| 2016 | $170,447 | $65,000 | $0 | $235,447 | $235,447 |
| 2015 | $176,980 | $50,000 | $0 | $226,980 | $226,980 |
| 2014 | $179,275 | $50,000 | $0 | $229,275 | $91,710 |
| 2013 | $181,572 | $50,000 | $0 | $231,572 | $92,629 |
| 2012 | $183,867 | $56,000 | $0 | $239,867 | $95,947 |
| 2011 | $186,164 | $70,000 | $0 | $256,164 | $102,466 |
| 2010 | $191,398 | $70,000 | $0 | $261,398 | $261,398 |
| 2009 | $188,930 | $90,000 | $0 | $278,930 | $278,930 |
| 2008 | $191,144 | $100,000 | $0 | $291,144 | $291,144 |
| 2007 | $193,415 | $100,000 | $0 | $293,415 | $293,415 |
Deed and Sales History
| 1 | 06/20/2018 | WD | Warranty Deed | HYTTE HOMES LLC | COMER, JOSHUA | | | $400,000.00 | 34631 | 4446634 |
| 2 | 12/15/2016 | TRUSTEED | Trustee's Deed | D'ENACHE, VALI | HYTTE HOMES LLC | | | $0.00 | 27433 | 4413704 |
| 3 | 07/27/2004 | ESTSEPPROP | Establish Separate Property | ENACHE, PETRE | D'ENACHE, VALI | | | $0.00 | 43921 | 4110891 |
| 4 | 03/01/1990 | WD | Warranty Deed | VIANCOUR, ALBERT D | ENACHE, PETRE | | | $10,000.00 | 1768 | 90005677 |
Payout Agreement
| No payout information available.. |