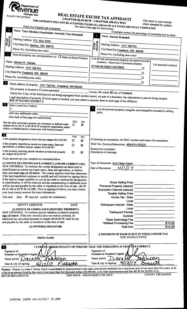
Property
Account |
| Property ID: | 216420 | Abbreviated Legal Description: | CCC 18 LOT 32 BLK 27 |
| Geographic ID: | S6250-18-27032-0 | Agent Code: | |
| Type: | Real | | |
| Tax Area: | 510 - APPRAISER-Stan/Cam Schl Dist, improved & 1 acre or less | Land Use Code | 11 |
| Open Space: | N | DFL | N |
| Historic Property: | N | Remodel Property: | N |
| Multi-Family Redevelopment: | N | | |
| Township: | | Section: | |
| Range: | |
Location |
| Address: | 1975 EDGEWOOD DR CAMANO ISLAND, WA 98282 | Mapsco: | |
| Neighborhood: | Cycle 5 | Map ID: | 933 |
| Neighborhood CD: | 5 |
Owner |
| Name: | ARNETT, PATRICIA | Owner ID: | 279713 |
| Mailing Address: | JAMES M SMITH 1975 EDGEWOOD DR CAMANO ISLAND, WA 98282 | % Ownership: | 100.0000000000% |
| | | Exemptions: | |
Taxes and Assessment Details
Values
| (+) Improvement Homesite Value: | + | $0 | |
| (+) Improvement Non-Homesite Value: | + | $198,640 | |
| (+) Land Homesite Value: | + | $0 | |
| (+) Land Non-Homesite Value: | + | $250,000 | |
| (+) Curr Use (HS): | + | $0 | $0 |
| (+) Curr Use (NHS): | + | $0 | $0 |
| | | -------------------------- | |
| (=) Market Value: | = | $448,640 | |
| (–) Productivity Loss: | – | $0 | |
| | | -------------------------- | |
| (=) Subtotal: | = | $448,640 | |
| (+) Senior Appraised Value: | + | $0 | |
| (+) Non-Senior Appraised Value: | + | $448,640 | |
| | | -------------------------- | |
| (=) Total Appraised Value: | = | $448,640 | |
| (–) Senior Exemption Loss: | – | $0 | |
| (–) Exemption Loss: | – | $0 | |
| | | -------------------------- | |
| (=) Taxable Value: | = | $448,640 | |
Taxing Jurisdiction
| Owner: | ARNETT, PATRICIA | | |
| % Ownership: | 100.0000000000% | | |
| Total Value: | $448,640 | | |
| Tax Area: | 510 - APPRAISER-Stan/Cam Schl Dist, improved & 1 acre or less |
| CF | Conservation Futures | 0.0316035091 | $448,640 | $448,640 | $14.18 | | |
| EMS1 | Fire & Rescue Dist #1 Camano GEN (EMS) | 0.3677864386 | $448,640 | $448,640 | $165.00 | | |
| FIRE1 | Fire & Rescue Dist #1 Camano GEN | 1.2502910536 | $448,640 | $448,640 | $560.93 | | |
| FIRE1BOND | Fire & Rescue Dist #1 Camano BOND | 0.1570001679 | $448,640 | $448,640 | $70.44 | | |
| CE | County Current Expense | 0.3708482477 | $448,640 | $448,640 | $166.38 | | |
| CR | County Roads | 0.4584763726 | $448,640 | $448,640 | $205.69 | | |
| LCIB | Library Sno-Isle BOND (Camano Island) | 0.0396325772 | $448,640 | $448,640 | $17.78 | | |
| LIB | Library Sno-Isle GEN | 0.3153421757 | $448,640 | $448,640 | $141.48 | | |
| SCH205_401 | School 205-401 Enrichment | 1.2698420524 | $448,640 | $448,640 | $569.70 | | |
| SCH205BOND | School 205-401 BOND | 0.9396497583 | $448,640 | $448,640 | $421.56 | | |
| ST | State School | 1.3035497053 | $448,640 | $448,640 | $584.82 | | |
| ST2 | State School Part 2 | 0.8169543533 | $448,640 | $448,640 | $366.52 | | |
| | Total Tax Rate: | 7.3209764117 | | | | | |
| | | | | Taxes w/Current Exemptions: | $3,284.48 | | |
| | | | | Taxes w/o Exemptions: | $3,284.48 | | |
Improvement / Building
| Improvement #1: | RESIDENTIAL | State Code: | Y | 1008.0 sqft | Value: | $198,640 |
| Bathrooms: | 1 | Bedrooms: | 2 | | Ceiling: | DRYWALL PAINTED | Exterior Wall/Cover: | PLY/HARDBOARD T-111 | | Floor Covering: | CARPET/VINYL 80-20 | Floor Structure: | WOOD W/SUBFLOOR | | Foundation: | CONCRETE | Heating: | WALL HEAT ELECTRIC | | Interior Finish: | DRYWALL PAINT | Plumbing Fixture Cnt: | 7 | | Roof Slope: | 4" IN 12" | Roof Structure/Cover: | CJ ASPHALT |
|
| | Type | Description | Class CD | Sub Class CD | Year Built | Area |
| | BAS | BASE/MAIN FLOOR | 3 | 0 | 1991 | 1008.0 |
| | AGR | ATTACHED GARAGE | 3 | 0 | 1991 | 440.0 |
| | OWP | OPEN WOOD PORCH W/STEPS | 3 | 0 | 1991 | 108.0 |
Sketch
Property Image
Land
| 1 | 14 | SQ (08001-12000) | 0.0000 | 0.00 | 0.00 | 0.00 | 1.00 | $250,000 | $0 |
Roll Value History
| 2026 | N/A | N/A | N/A | N/A | N/A |
| 2025 | $198,640 | $250,000 | $0 | $448,640 | $448,640 |
| 2024 | $201,027 | $250,000 | $0 | $451,027 | $451,027 |
| 2023 | $203,413 | $210,000 | $0 | $413,413 | $413,413 |
| 2022 | $186,355 | $200,000 | $0 | $386,355 | $386,355 |
| 2021 | $152,652 | $140,000 | $0 | $292,652 | $292,652 |
| 2020 | $148,531 | $120,000 | $0 | $268,531 | $268,531 |
| 2019 | $105,702 | $170,000 | $0 | $275,702 | $275,702 |
| 2018 | $106,020 | $140,000 | $0 | $246,020 | $246,020 |
| 2017 | $104,116 | $90,000 | $0 | $194,116 | $194,116 |
| 2016 | $105,386 | $65,000 | $0 | $170,386 | $170,386 |
| 2015 | $100,293 | $50,000 | $0 | $150,293 | $150,293 |
| 2014 | $101,562 | $50,000 | $0 | $151,562 | $151,562 |
| 2013 | $102,833 | $50,000 | $0 | $152,833 | $152,833 |
| 2012 | $104,102 | $56,000 | $0 | $160,102 | $160,102 |
| 2011 | $105,372 | $70,000 | $0 | $175,372 | $175,372 |
| 2010 | $108,094 | $70,000 | $0 | $178,094 | $178,094 |
| 2009 | $111,457 | $90,000 | $0 | $201,457 | $201,457 |
| 2008 | $113,219 | $100,000 | $0 | $213,219 | $213,219 |
| 2007 | $115,014 | $100,000 | $0 | $215,014 | $215,014 |
Deed and Sales History
| 1 | 04/20/2017 | WD | Warranty Deed | SOWA, JULIE ANNE | ARNETT, PATRICIA | | | $229,000.00 | 29122 | 4421753 |
| 2 | 04/14/2017 | QCD | Quit Claim Deed | SOWA, JULIE | SOWA, JULIE ANNE | | | $0.00 | 29121 | 4421752 |
| 3 | 09/21/2004 | WD | Warranty Deed | STERLING, JULIE M | SOWA, JULIE | | | $155,000.00 | 44527 | 4114040 |
| 4 | 07/31/1998 | WD | Warranty Deed | HOLLENBECK, JEFFREY G | STERLING, JULIE M | | | $115,950.00 | 83011 | 98015708 |
| 5 | 09/01/1995 | WD | Warranty Deed | SPOONER, MICHAEL B | HOLLENBECK, JEFFREY G | | | $98,000.00 | 53336 | 95015324 |
| 6 | 08/01/1992 | WD | Warranty Deed | JOHNSON, DAVID B | SPOONER, MICHAEL B | | | $92,225.00 | 23107 | 92015057 |
| 7 | 03/01/1992 | WD | Warranty Deed | DE, BOARD, P | JOHNSON, DAVID B | | | $20,000.00 | 20752 | 92003840 |
| 8 | 03/01/1990 | WD | Warranty Deed | VIANCOUR, ALBERT D | DE, BOARD, P | | | $11,000.00 | 1754 | 90005655 |
| 9 | 01/01/1900 | OTHER | Other - Misc. Documents | Unknown | STERLING, JULIE M | | | $0.00 | 83011 | 98015708 |
| 10 | 01/01/1900 | OTHER | Other - Misc. Documents | STERLING, JULIE M | VIANCOUR, ALBERT D | | | $0.00 | 0 | 0 |
Payout Agreement
| No payout information available.. |