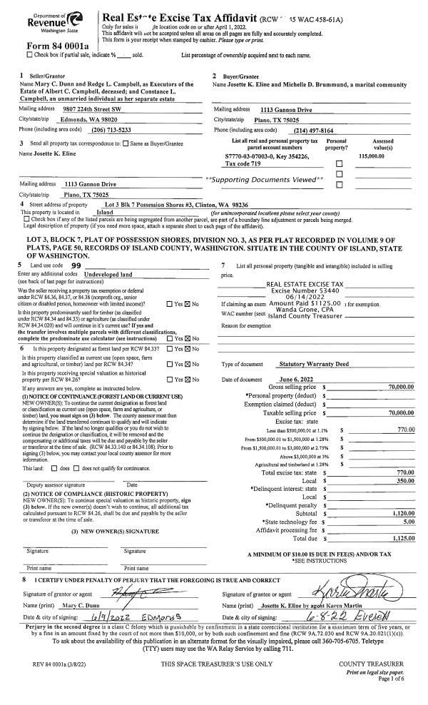
Property
Account |
| Property ID: | 216439 | Abbreviated Legal Description: | CCC 18 LOT 33 BLK 27 |
| Geographic ID: | S6250-18-27033-0 | Agent Code: | |
| Type: | Real | | |
| Tax Area: | 510 - APPRAISER-Stan/Cam Schl Dist, improved & 1 acre or less | Land Use Code | 11 |
| Open Space: | N | DFL | N |
| Historic Property: | N | Remodel Property: | N |
| Multi-Family Redevelopment: | N | | |
| Township: | | Section: | |
| Range: | |
Location |
| Address: | 1981 EDGEWOOD DR CAMANO ISLAND, WA 98282 | Mapsco: | |
| Neighborhood: | Cycle 5 | Map ID: | 933 |
| Neighborhood CD: | 5 |
Owner |
| Name: | ATWELL, ROGER | Owner ID: | 63139 |
| Mailing Address: | 1981 EDGEWOOD DR CAMANO ISLAND, WA 98282-7697 | % Ownership: | 100.0000000000% |
| | | Exemptions: | |
Taxes and Assessment Details
Values
| (+) Improvement Homesite Value: | + | $0 | |
| (+) Improvement Non-Homesite Value: | + | $198,753 | |
| (+) Land Homesite Value: | + | $0 | |
| (+) Land Non-Homesite Value: | + | $250,000 | |
| (+) Curr Use (HS): | + | $0 | $0 |
| (+) Curr Use (NHS): | + | $0 | $0 |
| | | -------------------------- | |
| (=) Market Value: | = | $448,753 | |
| (–) Productivity Loss: | – | $0 | |
| | | -------------------------- | |
| (=) Subtotal: | = | $448,753 | |
| (+) Senior Appraised Value: | + | $0 | |
| (+) Non-Senior Appraised Value: | + | $448,753 | |
| | | -------------------------- | |
| (=) Total Appraised Value: | = | $448,753 | |
| (–) Senior Exemption Loss: | – | $0 | |
| (–) Exemption Loss: | – | $0 | |
| | | -------------------------- | |
| (=) Taxable Value: | = | $448,753 | |
Taxing Jurisdiction
| Owner: | ATWELL, ROGER | | |
| % Ownership: | 100.0000000000% | | |
| Total Value: | $448,753 | | |
| Tax Area: | 510 - APPRAISER-Stan/Cam Schl Dist, improved & 1 acre or less |
| CF | Conservation Futures | 0.0316035091 | $448,753 | $448,753 | $14.18 | | |
| EMS1 | Fire & Rescue Dist #1 Camano GEN (EMS) | 0.3677864386 | $448,753 | $448,753 | $165.05 | | |
| FIRE1 | Fire & Rescue Dist #1 Camano GEN | 1.2502910536 | $448,753 | $448,753 | $561.07 | | |
| FIRE1BOND | Fire & Rescue Dist #1 Camano BOND | 0.1570001679 | $448,753 | $448,753 | $70.45 | | |
| CE | County Current Expense | 0.3708482477 | $448,753 | $448,753 | $166.42 | | |
| CR | County Roads | 0.4584763726 | $448,753 | $448,753 | $205.74 | | |
| LCIB | Library Sno-Isle BOND (Camano Island) | 0.0396325772 | $448,753 | $448,753 | $17.79 | | |
| LIB | Library Sno-Isle GEN | 0.3153421757 | $448,753 | $448,753 | $141.51 | | |
| SCH205_401 | School 205-401 Enrichment | 1.2698420524 | $448,753 | $448,753 | $569.85 | | |
| SCH205BOND | School 205-401 BOND | 0.9396497583 | $448,753 | $448,753 | $421.67 | | |
| ST | State School | 1.3035497053 | $448,753 | $448,753 | $584.97 | | |
| ST2 | State School Part 2 | 0.8169543533 | $448,753 | $448,753 | $366.61 | | |
| | Total Tax Rate: | 7.3209764117 | | | | | |
| | | | | Taxes w/Current Exemptions: | $3,285.31 | | |
| | | | | Taxes w/o Exemptions: | $3,285.31 | | |
Improvement / Building
| Improvement #1: | RESIDENTIAL | State Code: | Y | 1008.0 sqft | Value: | $198,753 |
| Bathrooms: | 1 | Bedrooms: | 2 | | Ceiling: | DRYWALL PAINTED | Exterior Wall/Cover: | PLY/HARDBOARD T-111 | | Floor Covering: | CARPET/VINYL 80-20 | Floor Structure: | WOOD W/SUBFLOOR | | Foundation: | CONCRETE | Heating: | WALL HEAT ELECTRIC | | Interior Finish: | DRYWALL PAINT | Plumbing Fixture Cnt: | 9 | | Roof Slope: | 4" IN 12" | Roof Structure/Cover: | CJ ASPHALT |
|
| | Type | Description | Class CD | Sub Class CD | Year Built | Area |
| | BAS | BASE/MAIN FLOOR | 3 | 0 | 1996 | 1008.0 |
| | OP4 | OPEN PORCH W/CEILING-ROOF | 3 | 0 | 1996 | 16.0 |
| | AGR | ATTACHED GARAGE | 3 | 0 | 1996 | 440.0 |
| | OWP | OPEN WOOD PORCH W/STEPS | 3 | 0 | 1996 | 96.0 |
Sketch
Property Image
Land
| 1 | 14 | SQ (08001-12000) | 0.0000 | 0.00 | 0.00 | 0.00 | 1.00 | $250,000 | $0 |
Roll Value History
| 2026 | N/A | N/A | N/A | N/A | N/A |
| 2025 | $198,753 | $250,000 | $0 | $448,753 | $448,753 |
| 2024 | $201,261 | $250,000 | $0 | $451,261 | $451,261 |
| 2023 | $203,771 | $210,000 | $0 | $413,771 | $413,771 |
| 2022 | $186,788 | $200,000 | $0 | $386,788 | $386,788 |
| 2021 | $156,499 | $140,000 | $0 | $296,499 | $296,499 |
| 2020 | $151,995 | $120,000 | $0 | $271,995 | $271,995 |
| 2019 | $106,567 | $170,000 | $0 | $276,567 | $276,567 |
| 2018 | $106,895 | $140,000 | $0 | $246,895 | $246,895 |
| 2017 | $107,551 | $90,000 | $0 | $197,551 | $197,551 |
| 2016 | $108,862 | $65,000 | $0 | $173,862 | $173,862 |
| 2015 | $104,926 | $50,000 | $0 | $154,926 | $154,926 |
| 2014 | $106,240 | $50,000 | $0 | $156,240 | $156,240 |
| 2013 | $107,551 | $50,000 | $0 | $157,551 | $157,551 |
| 2012 | $108,862 | $56,000 | $0 | $164,862 | $164,862 |
| 2011 | $110,173 | $70,000 | $0 | $180,173 | $180,173 |
| 2010 | $110,041 | $70,000 | $0 | $180,041 | $180,041 |
| 2009 | $114,788 | $90,000 | $0 | $204,788 | $204,788 |
| 2008 | $116,111 | $100,000 | $0 | $216,111 | $216,111 |
| 2007 | $117,432 | $100,000 | $0 | $217,432 | $217,432 |
Deed and Sales History
| 1 | 08/14/2008 | WD | Warranty Deed | JONES, DARRYL R | ATWELL, ROGER | | | $214,950.00 | 82170 | 4235191 |
| 2 | 04/15/2008 | TRUSTEED | Trustee's Deed | JONES, ERIN L | JONES, DARRYL R | | | $155,025.00 | 82043 | 4234389 |
| 3 | 06/20/2005 | WD | Warranty Deed | TRACY, DEBRA | JONES, ERIN L | | | $175,000.00 | 59251 | 4138605 |
| 4 | 04/30/2003 | WD | Warranty Deed | RELOCATION INC, PRUDENTIAL | TRACY, DEBRA | | | $131,000.00 | 31882 | 4057757 |
| 5 | 11/21/2002 | WD | Warranty Deed | EVANS, MORRIS E | RELOCATION INC, PRUDENTIAL | | | $137,000.00 | 30536 | 4047362 |
| 6 | 06/01/1997 | WD | Warranty Deed | EVANS, MORRIS E | EVANS, MORRIS E | | | $0.00 | 72029 | 97009494 |
| 7 | 04/01/1997 | WD | Warranty Deed | D, B J | EVANS, MORRIS E | | | $109,450.00 | 71210 | 97005438 |
| 8 | 04/01/1996 | WD | Warranty Deed | D, B J | D, B J | | | $24,000.00 | 61228 | 96006204 |
| 9 | 04/01/1996 | WD | Warranty Deed | NICHOLS, JAMES M | D, B J | | | $0.00 | 62111 | 96010465 |
| 10 | 09/01/1995 | WD | Warranty Deed | MORAN, WILLIAM M | NICHOLS, JAMES M | | | $12,000.00 | 53221 | 95014858 |
| 11 | 01/01/1900 | OTHER | Other - Misc. Documents | Unknown | MORAN, WILLIAM M | | | $0.00 | 0 | 0 |
Payout Agreement
| No payout information available.. |