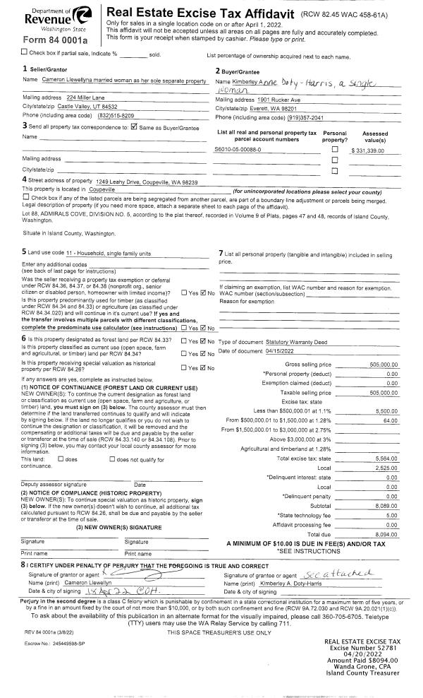
Property
Account |
| Property ID: | 216607 | Abbreviated Legal Description: | CCC 18 LOT 4 BLK 29 |
| Geographic ID: | S6250-18-29004-0 | Agent Code: | |
| Type: | Real | | |
| Tax Area: | 510 - APPRAISER-Stan/Cam Schl Dist, improved & 1 acre or less | Land Use Code | 11 |
| Open Space: | N | DFL | N |
| Historic Property: | N | Remodel Property: | N |
| Multi-Family Redevelopment: | N | | |
| Township: | | Section: | |
| Range: | |
Location |
| Address: | 1882 EDGEWOOD DR CAMANO ISLAND, WA 98282 | Mapsco: | |
| Neighborhood: | Cycle 5 | Map ID: | 933 |
| Neighborhood CD: | 5 |
Owner |
| Name: | O'CONNOR, GLEN | Owner ID: | 316356 |
| Mailing Address: | RAELYNN O'CONNOR 551 PASCO AVE NE RENTON, WA 98059 | % Ownership: | 100.0000000000% |
| | | Exemptions: | |
Taxes and Assessment Details
Values
| (+) Improvement Homesite Value: | + | $0 | |
| (+) Improvement Non-Homesite Value: | + | $259,495 | |
| (+) Land Homesite Value: | + | $0 | |
| (+) Land Non-Homesite Value: | + | $250,000 | |
| (+) Curr Use (HS): | + | $0 | $0 |
| (+) Curr Use (NHS): | + | $0 | $0 |
| | | -------------------------- | |
| (=) Market Value: | = | $509,495 | |
| (–) Productivity Loss: | – | $0 | |
| | | -------------------------- | |
| (=) Subtotal: | = | $509,495 | |
| (+) Senior Appraised Value: | + | $0 | |
| (+) Non-Senior Appraised Value: | + | $509,495 | |
| | | -------------------------- | |
| (=) Total Appraised Value: | = | $509,495 | |
| (–) Senior Exemption Loss: | – | $0 | |
| (–) Exemption Loss: | – | $0 | |
| | | -------------------------- | |
| (=) Taxable Value: | = | $509,495 | |
Taxing Jurisdiction
| Owner: | O'CONNOR, GLEN | | |
| % Ownership: | 100.0000000000% | | |
| Total Value: | $509,495 | | |
| Tax Area: | 510 - APPRAISER-Stan/Cam Schl Dist, improved & 1 acre or less |
| CF | Conservation Futures | 0.0316035091 | $509,495 | $509,495 | $16.10 | | |
| EMS1 | Fire & Rescue Dist #1 Camano GEN (EMS) | 0.3677864386 | $509,495 | $509,495 | $187.39 | | |
| FIRE1 | Fire & Rescue Dist #1 Camano GEN | 1.2502910536 | $509,495 | $509,495 | $637.02 | | |
| FIRE1BOND | Fire & Rescue Dist #1 Camano BOND | 0.1570001679 | $509,495 | $509,495 | $79.99 | | |
| CE | County Current Expense | 0.3708482477 | $509,495 | $509,495 | $188.95 | | |
| CR | County Roads | 0.4584763726 | $509,495 | $509,495 | $233.59 | | |
| LCIB | Library Sno-Isle BOND (Camano Island) | 0.0396325772 | $509,495 | $509,495 | $20.19 | | |
| LIB | Library Sno-Isle GEN | 0.3153421757 | $509,495 | $509,495 | $160.67 | | |
| SCH205_401 | School 205-401 Enrichment | 1.2698420524 | $509,495 | $509,495 | $646.98 | | |
| SCH205BOND | School 205-401 BOND | 0.9396497583 | $509,495 | $509,495 | $478.75 | | |
| ST | State School | 1.3035497053 | $509,495 | $509,495 | $664.15 | | |
| ST2 | State School Part 2 | 0.8169543533 | $509,495 | $509,495 | $416.23 | | |
| | Total Tax Rate: | 7.3209764117 | | | | | |
| | | | | Taxes w/Current Exemptions: | $3,730.01 | | |
| | | | | Taxes w/o Exemptions: | $3,730.01 | | |
Improvement / Building
| Improvement #1: | RESIDENTIAL | State Code: | Y | 1365.0 sqft | Value: | $259,495 |
| Bathrooms: | 2 | Bedrooms: | 3 | | Ceiling: | DRYWALL PAINTED | Cooling: | HEAT PUMP/CONV/V | | Exterior Wall/Cover: | PLY/HARDBOARD T-111 | Floor Covering: | CARPET/VINYL 80-20 | | Floor Structure: | WOOD W/SUBFLOOR | Foundation: | CONCRETE | | Interior Finish: | DRYWALL PAINT | Plumbing Fixture Cnt: | 9 | | Roof Slope: | 5" IN 12" | Roof Structure/Cover: | CJ ASPHALT |
|
| | Type | Description | Class CD | Sub Class CD | Year Built | Area |
| | BAS | BASE/MAIN FLOOR | 3 | 0 | 1997 | 1365.0 |
| | OP1 | OPEN PORCH SLAB | 3 | 0 | 1997 | 138.0 |
| | AGR | ATTACHED GARAGE | 3 | 0 | 1997 | 424.0 |
| | OWC | OPEN WOOD PORCH W/STEPS/ROOF/C | 3 | 0 | 1997 | 90.0 |
Sketch
Property Image
Land
| 1 | 14 | SQ (08001-12000) | 0.0000 | 0.00 | 0.00 | 0.00 | 1.00 | $250,000 | $0 |
Roll Value History
| 2026 | N/A | N/A | N/A | N/A | N/A |
| 2025 | $259,495 | $250,000 | $0 | $509,495 | $509,495 |
| 2024 | $277,344 | $250,000 | $0 | $527,344 | $527,344 |
| 2023 | $280,635 | $210,000 | $0 | $490,635 | $490,635 |
| 2022 | $257,104 | $200,000 | $0 | $457,104 | $457,104 |
| 2021 | $226,149 | $140,000 | $0 | $366,149 | $366,149 |
| 2020 | $194,217 | $120,000 | $0 | $314,217 | $314,217 |
| 2019 | $139,868 | $170,000 | $0 | $309,868 | $309,868 |
| 2018 | $140,287 | $140,000 | $0 | $280,287 | $280,287 |
| 2017 | $141,126 | $90,000 | $0 | $231,126 | $231,126 |
| 2016 | $142,807 | $65,000 | $0 | $207,807 | $207,807 |
| 2015 | $127,648 | $50,000 | $0 | $177,648 | $177,648 |
| 2014 | $129,214 | $50,000 | $0 | $179,214 | $179,214 |
| 2013 | $130,780 | $50,000 | $0 | $180,780 | $180,780 |
| 2012 | $132,347 | $56,000 | $0 | $188,347 | $188,347 |
| 2011 | $133,914 | $70,000 | $0 | $203,914 | $203,914 |
| 2010 | $142,214 | $70,000 | $0 | $212,214 | $212,214 |
| 2009 | $163,174 | $90,000 | $0 | $253,174 | $253,174 |
| 2008 | $165,418 | $100,000 | $0 | $265,418 | $265,418 |
| 2007 | $167,649 | $100,000 | $0 | $267,649 | $267,649 |
Deed and Sales History
| 1 | 04/29/2025 | WD | Warranty Deed | WILSON, JOHN DAVID | O'CONNOR, GLEN | | | $449,000.00 | 63343 | 4585276 |
| 2 | 07/15/2020 | QCD | Quit Claim Deed | WILSON, TERESA | WILSON, JOHN DAVID | | | $0.00 | 43855 | 4491535 |
| 3 | 07/15/2020 | WD | Warranty Deed | HALL, SUZANNE K | WILSON, JOHN DAVID | | | $412,000.00 | 43854 | 4491534 |
| 4 | 02/22/2010 | ESTSEPPROP | Establish Separate Property | HALL, SUZANNE K | HALL, SUZANNE K | | | $0.00 | 655 | 4270884 |
| 5 | 02/22/2010 | WD | Warranty Deed | HILLS, GREG G | HALL, SUZANNE K | | | $225,000.00 | 607 | 4270578 |
| 6 | 05/13/1998 | QCD | Quit Claim Deed | HILLS, GREG G | HILLS, GREG G | | | $0.00 | 81775 | 98009482 |
| 7 | 07/01/1996 | WD | Warranty Deed | HAZELTON, ROBERT M | HILLS, GREG G | | | $22,000.00 | 62475 | 96012303 |
| 8 | 01/01/1900 | OTHER | Other - Misc. Documents | Unknown | HAZELTON, ROBERT M | | | $0.00 | 0 | 0 |
Payout Agreement
| No payout information available.. |