Property
Account |
| Property ID: | 216616 | Abbreviated Legal Description: | CCC 18 LOT 5 BLK 29 |
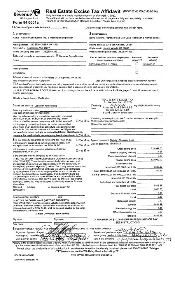
| Geographic ID: | S6250-18-29005-0 | Agent Code: | |
| Type: | Real | | |
| Tax Area: | 510 - APPRAISER-Stan/Cam Schl Dist, improved & 1 acre or less | Land Use Code | 11 |
| Open Space: | N | DFL | N |
| Historic Property: | N | Remodel Property: | N |
| Multi-Family Redevelopment: | N | | |
| Township: | | Section: | |
| Range: | |
Location |
| Address: | 1878 EDGEWOOD DR CAMANO ISLAND, WA 98282 | Mapsco: | |
| Neighborhood: | Cycle 5 | Map ID: | 933 |
| Neighborhood CD: | 5 |
Owner |
| Name: | SWANSON, GREGORY W & LISA | Owner ID: | 63001 |
| Mailing Address: | 1374 BEACH DR CAMANO ISLAND, WA 98282-7601 | % Ownership: | 100.0000000000% |
| | | Exemptions: | |
Taxes and Assessment Details
Values
| (+) Improvement Homesite Value: | + | $0 | |
| (+) Improvement Non-Homesite Value: | + | $287,995 | |
| (+) Land Homesite Value: | + | $0 | |
| (+) Land Non-Homesite Value: | + | $250,000 | |
| (+) Curr Use (HS): | + | $0 | $0 |
| (+) Curr Use (NHS): | + | $0 | $0 |
| | | -------------------------- | |
| (=) Market Value: | = | $537,995 | |
| (–) Productivity Loss: | – | $0 | |
| | | -------------------------- | |
| (=) Subtotal: | = | $537,995 | |
| (+) Senior Appraised Value: | + | $0 | |
| (+) Non-Senior Appraised Value: | + | $537,995 | |
| | | -------------------------- | |
| (=) Total Appraised Value: | = | $537,995 | |
| (–) Senior Exemption Loss: | – | $0 | |
| (–) Exemption Loss: | – | $0 | |
| | | -------------------------- | |
| (=) Taxable Value: | = | $537,995 | |
Taxing Jurisdiction
| Owner: | SWANSON, GREGORY W & LISA | | |
| % Ownership: | 100.0000000000% | | |
| Total Value: | $537,995 | | |
| Tax Area: | 510 - APPRAISER-Stan/Cam Schl Dist, improved & 1 acre or less |
| CF | Conservation Futures | 0.0316035091 | $537,995 | $537,995 | $17.00 | | |
| EMS1 | Fire & Rescue Dist #1 Camano GEN (EMS) | 0.3677864386 | $537,995 | $537,995 | $197.87 | | |
| FIRE1 | Fire & Rescue Dist #1 Camano GEN | 1.2502910536 | $537,995 | $537,995 | $672.65 | | |
| FIRE1BOND | Fire & Rescue Dist #1 Camano BOND | 0.1570001679 | $537,995 | $537,995 | $84.47 | | |
| CE | County Current Expense | 0.3708482477 | $537,995 | $537,995 | $199.51 | | |
| CR | County Roads | 0.4584763726 | $537,995 | $537,995 | $246.66 | | |
| LCIB | Library Sno-Isle BOND (Camano Island) | 0.0396325772 | $537,995 | $537,995 | $21.32 | | |
| LIB | Library Sno-Isle GEN | 0.3153421757 | $537,995 | $537,995 | $169.65 | | |
| SCH205_401 | School 205-401 Enrichment | 1.2698420524 | $537,995 | $537,995 | $683.17 | | |
| SCH205BOND | School 205-401 BOND | 0.9396497583 | $537,995 | $537,995 | $505.53 | | |
| ST | State School | 1.3035497053 | $537,995 | $537,995 | $701.30 | | |
| ST2 | State School Part 2 | 0.8169543533 | $537,995 | $537,995 | $439.52 | | |
| | Total Tax Rate: | 7.3209764117 | | | | | |
| | | | | Taxes w/Current Exemptions: | $3,938.65 | | |
| | | | | Taxes w/o Exemptions: | $3,938.65 | | |
Improvement / Building
| Improvement #1: | RESIDENTIAL | State Code: | Y | 1491.0 sqft | Value: | $287,995 |
| Bathrooms: | 2 | Bedrooms: | 3 | | Ceiling: | DRYWALL PAINTED | Exterior Wall/Cover: | CEMENT FIBER | | Floor Covering: | CARPET/VINYL 80-20 | Floor Structure: | WOOD W/SUBFLOOR | | Foundation: | CONCRETE | Heating: | WALL HEAT ELECTRIC | | Interior Finish: | DRYWALL PAINT | Plumbing Fixture Cnt: | 10 | | Roof Slope: | 5" IN 12" | Roof Structure/Cover: | CJ ASPHALT |
|
| | Type | Description | Class CD | Sub Class CD | Year Built | Area |
| | BAS | BASE/MAIN FLOOR | 3 | 0 | 1996 | 1491.0 |
| | AGR | ATTACHED GARAGE | 3 | 0 | 1996 | 483.0 |
| | OWP | OPEN WOOD PORCH W/STEPS | 3 | 0 | 1996 | 240.0 |
| | OWC | OPEN WOOD PORCH W/STEPS/ROOF/C | 3 | 0 | 1996 | 200.0 |
Sketch
Property Image
Land
| 1 | 14 | SQ (08001-12000) | 0.0000 | 0.00 | 0.00 | 0.00 | 1.00 | $250,000 | $0 |
Roll Value History
| 2026 | N/A | N/A | N/A | N/A | N/A |
| 2025 | $287,995 | $250,000 | $0 | $537,995 | $537,995 |
| 2024 | $291,455 | $250,000 | $0 | $541,455 | $541,455 |
| 2023 | $294,914 | $210,000 | $0 | $504,914 | $504,914 |
| 2022 | $270,185 | $200,000 | $0 | $470,185 | $470,185 |
| 2021 | $217,636 | $140,000 | $0 | $357,636 | $357,636 |
| 2020 | $212,013 | $120,000 | $0 | $332,013 | $332,013 |
| 2019 | $153,840 | $170,000 | $0 | $323,840 | $323,840 |
| 2018 | $154,302 | $140,000 | $0 | $294,302 | $294,302 |
| 2017 | $155,227 | $90,000 | $0 | $245,227 | $245,227 |
| 2016 | $157,074 | $65,000 | $0 | $222,074 | $222,074 |
| 2015 | $150,054 | $50,000 | $0 | $200,054 | $200,054 |
| 2014 | $151,901 | $50,000 | $0 | $201,901 | $201,901 |
| 2013 | $153,750 | $50,000 | $0 | $203,750 | $203,750 |
| 2012 | $155,596 | $56,000 | $0 | $211,596 | $211,596 |
| 2011 | $157,446 | $70,000 | $0 | $227,446 | $227,446 |
| 2010 | $165,129 | $70,000 | $0 | $235,129 | $235,129 |
| 2009 | $174,833 | $90,000 | $0 | $264,833 | $264,833 |
| 2008 | $177,044 | $100,000 | $0 | $277,044 | $277,044 |
| 2007 | $179,253 | $100,000 | $0 | $279,253 | $279,253 |
Deed and Sales History
| 1 | 11/29/2021 | WD | Warranty Deed | HUBBARD, WYLIE M | SWANSON, GREGORY W & LISA | | | $456,500.00 | 51170 | 4535057 |
| 2 | 04/17/2003 | WD | Warranty Deed | WICKSTROM, ROBERT A | HUBBARD, WYLIE M | | | $180,000.00 | 31690 | 4056248 |
| 3 | 01/01/1997 | WD | Warranty Deed | WITHERS, JAYSON W | WICKSTROM, ROBERT A | | | $131,000.00 | 70290 | 97001259 |
| 4 | 10/01/1996 | WD | Warranty Deed | MOELLER, JOHN T | WITHERS, JAYSON W | | | $26,000.00 | 63662 | 96017801 |
| 5 | 01/01/1900 | OTHER | Other - Misc. Documents | Unknown | MOELLER, JOHN T | | | $0.00 | 0 | 0 |
Payout Agreement
| No payout information available.. |