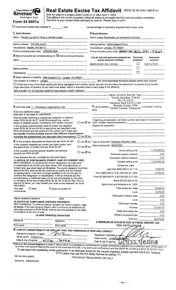
Property
Account |
| Property ID: | 216723 | Abbreviated Legal Description: | CAMANO COUNTRY CLUB #18 LOTS 10 & 11 BLK 30 |
| Geographic ID: | S6250-18-30010-0 | Agent Code: | |
| Type: | Real | | |
| Tax Area: | 510 - APPRAISER-Stan/Cam Schl Dist, improved & 1 acre or less | Land Use Code | 11 |
| Open Space: | N | DFL | N |
| Historic Property: | N | Remodel Property: | N |
| Multi-Family Redevelopment: | N | | |
| Township: | | Section: | |
| Range: | |
Location |
| Address: | 1944 EDGEWOOD DR CAMANO ISLAND, WA 98282 | Mapsco: | |
| Neighborhood: | Cycle 5 | Map ID: | 933 |
| Neighborhood CD: | 5 |
Owner |
| Name: | BRANCA, ANDREW A | Owner ID: | 271340 |
| Mailing Address: | GAIL M BRANCA 1944 EDGEWOOD DR CAMANO ISLAND, WA 98282 | % Ownership: | 100.0000000000% |
| | | Exemptions: | |
Taxes and Assessment Details
Values
| (+) Improvement Homesite Value: | + | $0 | |
| (+) Improvement Non-Homesite Value: | + | $245,312 | |
| (+) Land Homesite Value: | + | $0 | |
| (+) Land Non-Homesite Value: | + | $250,000 | |
| (+) Curr Use (HS): | + | $0 | $0 |
| (+) Curr Use (NHS): | + | $0 | $0 |
| | | -------------------------- | |
| (=) Market Value: | = | $495,312 | |
| (–) Productivity Loss: | – | $0 | |
| | | -------------------------- | |
| (=) Subtotal: | = | $495,312 | |
| (+) Senior Appraised Value: | + | $0 | |
| (+) Non-Senior Appraised Value: | + | $495,312 | |
| | | -------------------------- | |
| (=) Total Appraised Value: | = | $495,312 | |
| (–) Senior Exemption Loss: | – | $0 | |
| (–) Exemption Loss: | – | $0 | |
| | | -------------------------- | |
| (=) Taxable Value: | = | $495,312 | |
Taxing Jurisdiction
| Owner: | BRANCA, ANDREW A | | |
| % Ownership: | 100.0000000000% | | |
| Total Value: | $495,312 | | |
| Tax Area: | 510 - APPRAISER-Stan/Cam Schl Dist, improved & 1 acre or less |
| CF | Conservation Futures | 0.0316035091 | $495,312 | $495,312 | $15.65 | | |
| EMS1 | Fire & Rescue Dist #1 Camano GEN (EMS) | 0.3677864386 | $495,312 | $495,312 | $182.17 | | |
| FIRE1 | Fire & Rescue Dist #1 Camano GEN | 1.2502910536 | $495,312 | $495,312 | $619.28 | | |
| FIRE1BOND | Fire & Rescue Dist #1 Camano BOND | 0.1570001679 | $495,312 | $495,312 | $77.76 | | |
| CE | County Current Expense | 0.3708482477 | $495,312 | $495,312 | $183.69 | | |
| CR | County Roads | 0.4584763726 | $495,312 | $495,312 | $227.09 | | |
| LCIB | Library Sno-Isle BOND (Camano Island) | 0.0396325772 | $495,312 | $495,312 | $19.63 | | |
| LIB | Library Sno-Isle GEN | 0.3153421757 | $495,312 | $495,312 | $156.19 | | |
| SCH205_401 | School 205-401 Enrichment | 1.2698420524 | $495,312 | $495,312 | $628.97 | | |
| SCH205BOND | School 205-401 BOND | 0.9396497583 | $495,312 | $495,312 | $465.42 | | |
| ST | State School | 1.3035497053 | $495,312 | $495,312 | $645.66 | | |
| ST2 | State School Part 2 | 0.8169543533 | $495,312 | $495,312 | $404.65 | | |
| | Total Tax Rate: | 7.3209764117 | | | | | |
| | | | | Taxes w/Current Exemptions: | $3,626.16 | | |
| | | | | Taxes w/o Exemptions: | $3,626.16 | | |
Improvement / Building
| Improvement #1: | RESIDENTIAL | State Code: | Y | 1205.8 sqft | Value: | $245,312 |
| Bathrooms: | 2 | Bedrooms: | 3 | | Ceiling: | DRYWALL PAINTED | Exterior Wall/Cover: | PLY/HARDBOARD T-111 | | Floor Covering: | CARPET/VINYL 80-20 | Floor Structure: | WOOD W/SUBFLOOR | | Foundation: | CONCRETE | Heating: | FHA GAS | | Interior Finish: | DRYWALL PAINT | Plumbing Fixture Cnt: | 9 | | Roof Slope: | 4" IN 12" | Roof Structure/Cover: | CJ ASPHALT |
|
| | Type | Description | Class CD | Sub Class CD | Year Built | Area |
| | BAS | BASE/MAIN FLOOR | 3 | 0 | 1994 | 1205.8 |
| | AGR | ATTACHED GARAGE | 3 | 0 | 1994 | 504.0 |
| | OWP | OPEN WOOD PORCH W/STEPS | 3 | 0 | 1994 | 64.0 |
| | OWC | OPEN WOOD PORCH W/STEPS/ROOF/C | 3 | 0 | 1994 | 77.3 |
Sketch
Property Image
Land
| 1 | 15 | SQ (12001-21780) | 0.0000 | 0.00 | 0.00 | 0.00 | 1.00 | $250,000 | $0 |
Roll Value History
| 2026 | N/A | N/A | N/A | N/A | N/A |
| 2025 | $245,312 | $250,000 | $0 | $495,312 | $495,312 |
| 2024 | $248,259 | $250,000 | $0 | $498,259 | $498,259 |
| 2023 | $251,205 | $210,000 | $0 | $461,205 | $461,205 |
| 2022 | $230,135 | $200,000 | $0 | $430,135 | $430,135 |
| 2021 | $188,518 | $140,000 | $0 | $328,518 | $328,518 |
| 2020 | $183,377 | $120,000 | $0 | $303,377 | $303,377 |
| 2019 | $130,078 | $170,000 | $0 | $300,078 | $300,078 |
| 2018 | $130,469 | $140,000 | $0 | $270,469 | $270,469 |
| 2017 | $131,243 | $90,000 | $0 | $221,243 | $221,243 |
| 2016 | $132,805 | $65,000 | $0 | $197,805 | $197,805 |
| 2015 | $123,566 | $50,000 | $0 | $173,566 | $173,566 |
| 2014 | $125,130 | $50,000 | $0 | $175,130 | $175,130 |
| 2013 | $126,695 | $50,000 | $0 | $176,695 | $176,695 |
| 2012 | $128,259 | $56,000 | $0 | $184,259 | $184,259 |
| 2011 | $129,823 | $70,000 | $0 | $199,823 | $199,823 |
| 2010 | $132,759 | $70,000 | $0 | $202,759 | $202,759 |
| 2009 | $141,264 | $90,000 | $0 | $231,264 | $231,264 |
| 2008 | $142,992 | $125,000 | $0 | $267,992 | $267,992 |
| 2007 | $144,720 | $100,000 | $0 | $244,720 | $244,720 |
Deed and Sales History
| 1 | 07/07/2015 | SPWARDEED | Special Warranty Deed | SECRETARY OF HOUSING & URBAN DEVELOPMENT | BRANCA, ANDREW A | | | $196,044.00 | 20371 | 4381753 |
| 2 | 12/18/2014 | WD | Warranty Deed | FEDERAL NATIONAL MORTGAGE ASSOCIATION | SECRETARY OF HOUSING & URBAN DEVELOPMENT | | | $0.00 | 19049 | 4376166 |
| 3 | 12/02/2014 | TRUSTEED | Trustee's Deed | DAWSON, WARD J | FEDERAL NATIONAL MORTGAGE ASSOCIATION | | | $0.00 | 17759 | 4369596 |
| 4 | 12/10/2003 | WD | Warranty Deed | HORNE, CHRISTOPHER H | DAWSON, WARD J | | | $164,900.00 | 35563 | 4085742 |
| 5 | 04/24/1998 | ESTSEPPROP | Establish Separate Property | HORNE, CHRISTOPHER H | HORNE, CHRISTOPHER H | | | $0.00 | 81595 | 98008535 |
| 6 | 03/01/1995 | WD | Warranty Deed | RYSER, RON B | HORNE, CHRISTOPHER H | | | $121,500.00 | 50811 | 95003986 |
| 7 | 08/01/1994 | WD | Warranty Deed | WILLMS, HENRY | RYSER, RON B | | | $30,000.00 | 43504 | 94018615 |
| 8 | 10/01/1989 | WD | Warranty Deed | RUSSE, WILLIAM H | WILLMS, HENRY | | | $13,240.00 | 94789 | 89015573 |
| 9 | 06/01/1982 | OTHER | Other - Misc. Documents | RUSSE, WILLIAM H | RUSSE, WILLIAM H | | | $0.00 | 59580 | 0 |
Payout Agreement
| No payout information available.. |