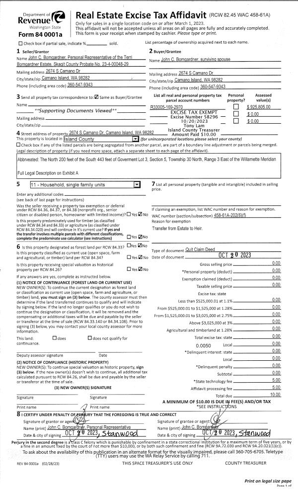
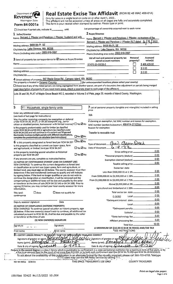
Property
Account |
| Property ID: | 216750 | Abbreviated Legal Description: | CCC 18 LOT 13 BLK 30 |
| Geographic ID: | S6250-18-30013-0 | Agent Code: | |
| Type: | Real | | |
| Tax Area: | 510 - APPRAISER-Stan/Cam Schl Dist, improved & 1 acre or less | Land Use Code | 11 |
| Open Space: | N | DFL | N |
| Historic Property: | N | Remodel Property: | N |
| Multi-Family Redevelopment: | N | | |
| Township: | | Section: | |
| Range: | |
Location |
| Address: | 1930 EDGEWOOD DR CAMANO ISLAND, WA 98282 | Mapsco: | |
| Neighborhood: | Cycle 5 | Map ID: | 933 |
| Neighborhood CD: | 5 |
Owner |
| Name: | AZURE, NOEL JOSEPH | Owner ID: | 311002 |
| Mailing Address: | KATHRYN LEE PALMER 1930 EDGEWOOD DR CAMANO ISLAND, WA 98282 | % Ownership: | 100.0000000000% |
| | | Exemptions: | |
Taxes and Assessment Details
Values
| (+) Improvement Homesite Value: | + | $0 | |
| (+) Improvement Non-Homesite Value: | + | $192,995 | |
| (+) Land Homesite Value: | + | $0 | |
| (+) Land Non-Homesite Value: | + | $250,000 | |
| (+) Curr Use (HS): | + | $0 | $0 |
| (+) Curr Use (NHS): | + | $0 | $0 |
| | | -------------------------- | |
| (=) Market Value: | = | $442,995 | |
| (–) Productivity Loss: | – | $0 | |
| | | -------------------------- | |
| (=) Subtotal: | = | $442,995 | |
| (+) Senior Appraised Value: | + | $0 | |
| (+) Non-Senior Appraised Value: | + | $442,995 | |
| | | -------------------------- | |
| (=) Total Appraised Value: | = | $442,995 | |
| (–) Senior Exemption Loss: | – | $0 | |
| (–) Exemption Loss: | – | $0 | |
| | | -------------------------- | |
| (=) Taxable Value: | = | $442,995 | |
Taxing Jurisdiction
| Owner: | AZURE, NOEL JOSEPH | | |
| % Ownership: | 100.0000000000% | | |
| Total Value: | $442,995 | | |
| Tax Area: | 510 - APPRAISER-Stan/Cam Schl Dist, improved & 1 acre or less |
| CF | Conservation Futures | 0.0316035091 | $442,995 | $442,995 | $14.00 | | |
| EMS1 | Fire & Rescue Dist #1 Camano GEN (EMS) | 0.3677864386 | $442,995 | $442,995 | $162.93 | | |
| FIRE1 | Fire & Rescue Dist #1 Camano GEN | 1.2502910536 | $442,995 | $442,995 | $553.87 | | |
| FIRE1BOND | Fire & Rescue Dist #1 Camano BOND | 0.1570001679 | $442,995 | $442,995 | $69.55 | | |
| CE | County Current Expense | 0.3708482477 | $442,995 | $442,995 | $164.28 | | |
| CR | County Roads | 0.4584763726 | $442,995 | $442,995 | $203.10 | | |
| LCIB | Library Sno-Isle BOND (Camano Island) | 0.0396325772 | $442,995 | $442,995 | $17.56 | | |
| LIB | Library Sno-Isle GEN | 0.3153421757 | $442,995 | $442,995 | $139.70 | | |
| SCH205_401 | School 205-401 Enrichment | 1.2698420524 | $442,995 | $442,995 | $562.53 | | |
| SCH205BOND | School 205-401 BOND | 0.9396497583 | $442,995 | $442,995 | $416.26 | | |
| ST | State School | 1.3035497053 | $442,995 | $442,995 | $577.47 | | |
| ST2 | State School Part 2 | 0.8169543533 | $442,995 | $442,995 | $361.91 | | |
| | Total Tax Rate: | 7.3209764117 | | | | | |
| | | | | Taxes w/Current Exemptions: | $3,243.16 | | |
| | | | | Taxes w/o Exemptions: | $3,243.16 | | |
Improvement / Building
| Improvement #1: | RESIDENTIAL | State Code: | Y | 1008.0 sqft | Value: | $192,995 |
| Bathrooms: | 1.5 | Bedrooms: | 3 | | Ceiling: | DRYWALL PAINTED | Exterior Wall/Cover: | PLY/HARDBOARD T-111 | | Floor Covering: | CARPET/VINYL 80-20 | Floor Structure: | WOOD W/SUBFLOOR | | Foundation: | CONCRETE | Heating: | WALL HEAT ELECTRIC | | Interior Finish: | DRYWALL PAINT | Plumbing Fixture Cnt: | 8 | | Roof Slope: | 4" IN 12" | Roof Structure/Cover: | CJ ASPHALT |
|
| | Type | Description | Class CD | Sub Class CD | Year Built | Area |
| | BAS | BASE/MAIN FLOOR | 3 | 0 | 1995 | 1008.0 |
| | OP1 | OPEN PORCH SLAB | 3 | 0 | 1995 | 100.0 |
| | OP4 | OPEN PORCH W/CEILING-ROOF | 3 | 0 | 1995 | 16.0 |
| | AGR | ATTACHED GARAGE | 3 | 0 | 1995 | 440.0 |
Sketch
Property Image
Land
| 1 | 14 | SQ (08001-12000) | 0.0000 | 0.00 | 0.00 | 0.00 | 1.00 | $250,000 | $0 |
Roll Value History
| 2026 | N/A | N/A | N/A | N/A | N/A |
| 2025 | $192,995 | $250,000 | $0 | $442,995 | $442,995 |
| 2024 | $195,430 | $250,000 | $0 | $445,430 | $445,430 |
| 2023 | $188,381 | $210,000 | $0 | $398,381 | $398,381 |
| 2022 | $172,683 | $200,000 | $0 | $372,683 | $372,683 |
| 2021 | $151,983 | $140,000 | $0 | $291,983 | $291,983 |
| 2020 | $148,022 | $120,000 | $0 | $268,022 | $268,022 |
| 2019 | $106,158 | $170,000 | $0 | $276,158 | $276,158 |
| 2018 | $106,471 | $140,000 | $0 | $246,471 | $246,471 |
| 2017 | $104,602 | $90,000 | $0 | $194,602 | $194,602 |
| 2016 | $105,848 | $65,000 | $0 | $170,848 | $170,848 |
| 2015 | $100,025 | $50,000 | $0 | $150,025 | $150,025 |
| 2014 | $101,289 | $50,000 | $0 | $151,289 | $151,289 |
| 2013 | $102,557 | $50,000 | $0 | $152,557 | $152,557 |
| 2012 | $103,823 | $56,000 | $0 | $159,823 | $159,823 |
| 2011 | $105,088 | $70,000 | $0 | $175,088 | $175,088 |
| 2010 | $106,953 | $70,000 | $0 | $176,953 | $176,953 |
| 2009 | $111,541 | $90,000 | $0 | $201,541 | $201,541 |
| 2008 | $112,841 | $100,000 | $0 | $212,841 | $212,841 |
| 2007 | $114,141 | $100,000 | $0 | $214,141 | $214,141 |
Deed and Sales History
| 1 | 12/18/2023 | WD | Warranty Deed | TUFFEY, MARGARET J | AZURE, NOEL JOSEPH | | | $475,000.00 | 58825 | 4567890 |
| 2 | 07/25/2017 | WD | Warranty Deed | JONES, TODD W | TUFFEY, MARGARET J | | | $239,950.00 | 30406 | 4427172 |
| 3 | 06/22/2012 | BARGSLD | Bargain And Sale Deed | FEDERAL HOME LOAN MORTGAGE CORPORATION | JONES, TODD W | | | $129,500.00 | 8109 | 4318243 |
| 4 | 03/22/2012 | TRUSTEED | Trustee's Deed | VENTURO JR, JOSEPH JOHN | FEDERAL HOME LOAN MORTGAGE CORPORATION | | | $189,372.00 | 7189 | 4312218 |
| 5 | 01/09/2007 | ESTSEPPROP | Establish Separate Property | VENTURO JR, JOSEPH JOHN | VENTURO JR, JOSEPH JOHN | | | $0.00 | 70170 | 4191918 |
| 6 | 01/09/2007 | WD | Warranty Deed | ARCHER, DAVID A | VENTURO JR, JOSEPH JOHN | | | $185,000.00 | 70169 | 4191917 |
| 7 | 12/01/1995 | WD | Warranty Deed | JOHNSON, DAVID B | ARCHER, DAVID A | | | $110,950.00 | 54275 | 95019769 |
| 8 | 01/01/1995 | WD | Warranty Deed | STURZA, LINDA S | JOHNSON, DAVID B | | | $22,950.00 | 50217 | 95001150 |
| 9 | 12/01/1992 | TTAXD | Treasurer's Tax Deed | MACDONALD, S & | STURZA, LINDA S | | | $0.00 | 65155 | 92023874 |
| 10 | 01/01/1900 | OTHER | Other - Misc. Documents | Unknown | MACDONALD, S & | | | $0.00 | 0 | 0 |
Payout Agreement
| No payout information available.. |