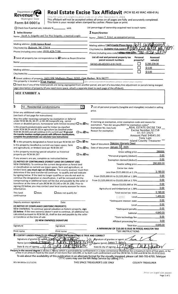
Property
Account |
| Property ID: | 216830 | Abbreviated Legal Description: | CCC 19 LOT 3 BLK 31 |
| Geographic ID: | S6250-19-31003-0 | Agent Code: | |
| Type: | Real | | |
| Tax Area: | 510 - APPRAISER-Stan/Cam Schl Dist, improved & 1 acre or less | Land Use Code | 11 |
| Open Space: | N | DFL | N |
| Historic Property: | N | Remodel Property: | N |
| Multi-Family Redevelopment: | N | | |
| Township: | | Section: | |
| Range: | |
Location |
| Address: | 436 MARINE VIEW PLACE CAMANO ISLAND, WA 98282 | Mapsco: | |
| Neighborhood: | Cycle 5 | Map ID: | 933 |
| Neighborhood CD: | 5 |
Owner |
| Name: | DAIGAN, TERRI RAE | Owner ID: | 311772 |
| Mailing Address: | 436 MARINEM VIEW PL CAMANO ISLAND, WA 98282 | % Ownership: | 100.0000000000% |
| | | Exemptions: | |
Taxes and Assessment Details
Values
| (+) Improvement Homesite Value: | + | $0 | |
| (+) Improvement Non-Homesite Value: | + | $189,861 | |
| (+) Land Homesite Value: | + | $0 | |
| (+) Land Non-Homesite Value: | + | $250,000 | |
| (+) Curr Use (HS): | + | $0 | $0 |
| (+) Curr Use (NHS): | + | $0 | $0 |
| | | -------------------------- | |
| (=) Market Value: | = | $439,861 | |
| (–) Productivity Loss: | – | $0 | |
| | | -------------------------- | |
| (=) Subtotal: | = | $439,861 | |
| (+) Senior Appraised Value: | + | $0 | |
| (+) Non-Senior Appraised Value: | + | $439,861 | |
| | | -------------------------- | |
| (=) Total Appraised Value: | = | $439,861 | |
| (–) Senior Exemption Loss: | – | $0 | |
| (–) Exemption Loss: | – | $0 | |
| | | -------------------------- | |
| (=) Taxable Value: | = | $439,861 | |
Taxing Jurisdiction
| Owner: | DAIGAN, TERRI RAE | | |
| % Ownership: | 100.0000000000% | | |
| Total Value: | $439,861 | | |
| Tax Area: | 510 - APPRAISER-Stan/Cam Schl Dist, improved & 1 acre or less |
| CF | Conservation Futures | 0.0316035091 | $439,861 | $439,861 | $13.90 | | |
| EMS1 | Fire & Rescue Dist #1 Camano GEN (EMS) | 0.3677864386 | $439,861 | $439,861 | $161.77 | | |
| FIRE1 | Fire & Rescue Dist #1 Camano GEN | 1.2502910536 | $439,861 | $439,861 | $549.95 | | |
| FIRE1BOND | Fire & Rescue Dist #1 Camano BOND | 0.1570001679 | $439,861 | $439,861 | $69.06 | | |
| CE | County Current Expense | 0.3708482477 | $439,861 | $439,861 | $163.12 | | |
| CR | County Roads | 0.4584763726 | $439,861 | $439,861 | $201.67 | | |
| LCIB | Library Sno-Isle BOND (Camano Island) | 0.0396325772 | $439,861 | $439,861 | $17.43 | | |
| LIB | Library Sno-Isle GEN | 0.3153421757 | $439,861 | $439,861 | $138.71 | | |
| SCH205_401 | School 205-401 Enrichment | 1.2698420524 | $439,861 | $439,861 | $558.55 | | |
| SCH205BOND | School 205-401 BOND | 0.9396497583 | $439,861 | $439,861 | $413.32 | | |
| ST | State School | 1.3035497053 | $439,861 | $439,861 | $573.38 | | |
| ST2 | State School Part 2 | 0.8169543533 | $439,861 | $439,861 | $359.35 | | |
| | Total Tax Rate: | 7.3209764117 | | | | | |
| | | | | Taxes w/Current Exemptions: | $3,220.21 | | |
| | | | | Taxes w/o Exemptions: | $3,220.21 | | |
Improvement / Building
| Improvement #1: | RESIDENTIAL | State Code: | Y | 1104.0 sqft | Value: | $189,861 |
| Bathrooms: | 2 | Bedrooms: | 3 | | Ceiling: | DRYWALL PAINTED | Exterior Wall/Cover: | PLY/HARDBOARD T-111 | | Floor Covering: | CARPET/VINYL 60-40 | Floor Structure: | WOOD W/SUBFLOOR | | Foundation: | CONCRETE | Heating: | WALL HEAT ELECTRIC | | Interior Finish: | DRYWALL PAINT | Plumbing Fixture Cnt: | 9 | | Roof Slope: | 4" IN 12" | Roof Structure/Cover: | CJ ASPHALT |
|
| | Type | Description | Class CD | Sub Class CD | Year Built | Area |
| | BAS | BASE/MAIN FLOOR | 3 | 0 | 1996 | 1104.0 |
| | OP1 | OPEN PORCH SLAB | 3 | 0 | 1996 | 24.0 |
| | OP1 | OPEN PORCH SLAB | 3 | 0 | 1996 | 64.0 |
| | AGR | ATTACHED GARAGE | 3 | 0 | 1996 | 480.0 |
Sketch
Property Image
Land
| 1 | 14 | SQ (08001-12000) | 0.0000 | 0.00 | 0.00 | 0.00 | 1.00 | $250,000 | $0 |
Roll Value History
| 2026 | N/A | N/A | N/A | N/A | N/A |
| 2025 | $189,861 | $250,000 | $0 | $439,861 | $439,861 |
| 2024 | $192,384 | $250,000 | $0 | $442,384 | $442,384 |
| 2023 | $194,907 | $210,000 | $0 | $404,907 | $404,907 |
| 2022 | $178,781 | $200,000 | $0 | $378,781 | $378,781 |
| 2021 | $157,440 | $140,000 | $0 | $297,440 | $297,440 |
| 2020 | $153,037 | $120,000 | $0 | $273,037 | $273,037 |
| 2019 | $106,783 | $170,000 | $0 | $276,783 | $276,783 |
| 2018 | $107,112 | $140,000 | $0 | $247,112 | $247,112 |
| 2017 | $107,769 | $90,000 | $0 | $197,769 | $197,769 |
| 2016 | $109,082 | $65,000 | $0 | $174,082 | $174,082 |
| 2015 | $105,601 | $50,000 | $0 | $155,601 | $155,601 |
| 2014 | $106,906 | $50,000 | $0 | $156,906 | $156,906 |
| 2013 | $108,211 | $50,000 | $0 | $158,211 | $158,211 |
| 2012 | $109,518 | $56,000 | $0 | $165,518 | $165,518 |
| 2011 | $110,823 | $70,000 | $0 | $180,823 | $180,823 |
| 2010 | $115,656 | $70,000 | $0 | $185,656 | $185,656 |
| 2009 | $125,657 | $90,000 | $0 | $215,657 | $215,657 |
| 2008 | $127,272 | $100,000 | $0 | $227,272 | $227,272 |
| 2007 | $128,878 | $100,000 | $0 | $228,878 | $228,878 |
Deed and Sales History
| 1 | 03/26/2024 | QCD | Quit Claim Deed | RHODES, LINDA LOU | DAIGAN, TERRI RAE | | | $0.00 | 59488 | 4570606 |
| 2 | 09/08/2015 | WD | Warranty Deed | CLISE, RICHARD | RHODES, LINDA LOU | | | $150,000.00 | 21324 | 4385851 |
| 3 | 09/23/2007 | WD | Warranty Deed | HOOPER, STACEY MAE | CLISE, RICHARD | | | $230,000.00 | 73221 | 4212788 |
| 4 | 03/24/2004 | WD | Warranty Deed | DAVIDSON, GREGORY W | HOOPER, STACEY MAE | | | $155,000.00 | 41221 | 4095706 |
| 5 | 11/01/1996 | WD | Warranty Deed | D, B J | DAVIDSON, GREGORY W | | | $115,450.00 | 64207 | 96020487 |
| 6 | 05/01/1996 | WD | Warranty Deed | WARTELLE, EDWARD C | D, B J | | | $23,000.00 | 61633 | 96008238 |
| 7 | 01/01/1900 | OTHER | Other - Misc. Documents | Unknown | WARTELLE, EDWARD C | | | $0.00 | 0 | 0 |
Payout Agreement
| No payout information available.. |