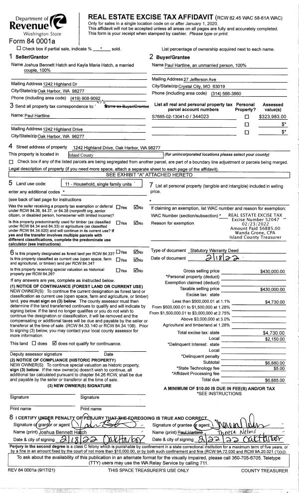
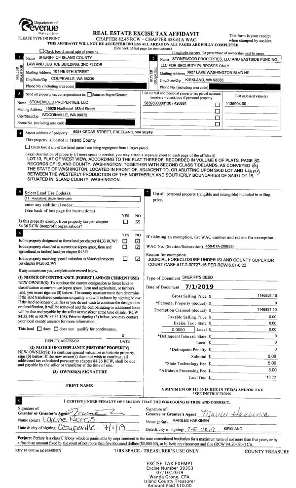
Property
Account |
| Property ID: | 216849 | Abbreviated Legal Description: | Camano Country Club - 19,s Lot 004,s Blk 31;s LOT B BLC AF#4467107s |
| Geographic ID: | S6250-19-31004-0 | Agent Code: | |
| Type: | Real | | |
| Tax Area: | 510 - APPRAISER-Stan/Cam Schl Dist, improved & 1 acre or less | Land Use Code | 11 |
| Open Space: | N | DFL | N |
| Historic Property: | N | Remodel Property: | N |
| Multi-Family Redevelopment: | N | | |
| Township: | | Section: | |
| Range: | |
Location |
| Address: | 440 MARINE VIEW PLACE CAMANO ISLAND, WA 98282 | Mapsco: | |
| Neighborhood: | Cycle 5 | Map ID: | 933 |
| Neighborhood CD: | 5 |
Owner |
| Name: | ASPDEN, MARLANEA | Owner ID: | 295750 |
| Mailing Address: | 440 MARINE VIEW PL CAMANO ISLAND, WA 98282 | % Ownership: | 100.0000000000% |
| | | Exemptions: | |
Taxes and Assessment Details
Values
| (+) Improvement Homesite Value: | + | $0 | |
| (+) Improvement Non-Homesite Value: | + | $206,529 | |
| (+) Land Homesite Value: | + | $0 | |
| (+) Land Non-Homesite Value: | + | $250,000 | |
| (+) Curr Use (HS): | + | $0 | $0 |
| (+) Curr Use (NHS): | + | $0 | $0 |
| | | -------------------------- | |
| (=) Market Value: | = | $456,529 | |
| (–) Productivity Loss: | – | $0 | |
| | | -------------------------- | |
| (=) Subtotal: | = | $456,529 | |
| (+) Senior Appraised Value: | + | $0 | |
| (+) Non-Senior Appraised Value: | + | $456,529 | |
| | | -------------------------- | |
| (=) Total Appraised Value: | = | $456,529 | |
| (–) Senior Exemption Loss: | – | $0 | |
| (–) Exemption Loss: | – | $0 | |
| | | -------------------------- | |
| (=) Taxable Value: | = | $456,529 | |
Taxing Jurisdiction
| Owner: | ASPDEN, MARLANEA | | |
| % Ownership: | 100.0000000000% | | |
| Total Value: | $456,529 | | |
| Tax Area: | 510 - APPRAISER-Stan/Cam Schl Dist, improved & 1 acre or less |
| CF | Conservation Futures | 0.0316035091 | $456,529 | $456,529 | $14.43 | | |
| EMS1 | Fire & Rescue Dist #1 Camano GEN (EMS) | 0.3677864386 | $456,529 | $456,529 | $167.91 | | |
| FIRE1 | Fire & Rescue Dist #1 Camano GEN | 1.2502910536 | $456,529 | $456,529 | $570.79 | | |
| FIRE1BOND | Fire & Rescue Dist #1 Camano BOND | 0.1570001679 | $456,529 | $456,529 | $71.68 | | |
| CE | County Current Expense | 0.3708482477 | $456,529 | $456,529 | $169.30 | | |
| CR | County Roads | 0.4584763726 | $456,529 | $456,529 | $209.31 | | |
| LCIB | Library Sno-Isle BOND (Camano Island) | 0.0396325772 | $456,529 | $456,529 | $18.09 | | |
| LIB | Library Sno-Isle GEN | 0.3153421757 | $456,529 | $456,529 | $143.96 | | |
| SCH205_401 | School 205-401 Enrichment | 1.2698420524 | $456,529 | $456,529 | $579.72 | | |
| SCH205BOND | School 205-401 BOND | 0.9396497583 | $456,529 | $456,529 | $428.98 | | |
| ST | State School | 1.3035497053 | $456,529 | $456,529 | $595.11 | | |
| ST2 | State School Part 2 | 0.8169543533 | $456,529 | $456,529 | $372.96 | | |
| | Total Tax Rate: | 7.3209764117 | | | | | |
| | | | | Taxes w/Current Exemptions: | $3,342.24 | | |
| | | | | Taxes w/o Exemptions: | $3,342.24 | | |
Improvement / Building
| Improvement #1: | RESIDENTIAL | State Code: | Y | 1088.0 sqft | Value: | $206,529 |
| Bathrooms: | 2 | Bedrooms: | 3 | | Ceiling: | DRYWALL PAINTED | Exterior Wall/Cover: | PLY/HARDBOARD T-111 | | Floor Covering: | CARPET/VINYL 80-20 | Floor Structure: | WOOD W/SUBFLOOR | | Foundation: | CONCRETE | Heating: | WALL HEAT ELECTRIC | | Interior Finish: | DRYWALL PAINT | Plumbing Fixture Cnt: | 9 | | Roof Slope: | 4" IN 12" | Roof Structure/Cover: | CJ ASPHALT |
|
| | Type | Description | Class CD | Sub Class CD | Year Built | Area |
| | BAS | BASE/MAIN FLOOR | 3 | 0 | 1990 | 1088.0 |
| | OP1 | OPEN PORCH SLAB | 3 | 0 | 1990 | 64.0 |
| | AGR | ATTACHED GARAGE | 3 | 0 | 1990 | 440.0 |
| | OWP | OPEN WOOD PORCH W/STEPS | 3 | 0 | 1990 | 120.0 |
| | OWR | OPEN WOOD PORCH W/STEPS/ROOF | 3 | 0 | 1990 | 24.0 |
| | CPD | OPEN CARPORT DIRT FLOOR | 3 | 0 | 1990 | 240.0 |
Sketch
Property Image
Land
| 1 | 15 | SQ (12001-21780) | 0.2800 | 12196.80 | 0.00 | 0.00 | 1.00 | $250,000 | $0 |
Roll Value History
| 2026 | N/A | N/A | N/A | N/A | N/A |
| 2025 | $206,529 | $250,000 | $0 | $456,529 | $456,529 |
| 2024 | $209,203 | $250,000 | $0 | $459,203 | $459,203 |
| 2023 | $211,876 | $210,000 | $0 | $421,876 | $421,876 |
| 2022 | $194,272 | $200,000 | $0 | $394,272 | $394,272 |
| 2021 | $158,406 | $140,000 | $0 | $298,406 | $298,406 |
| 2020 | $154,059 | $120,000 | $0 | $274,059 | $274,059 |
| 2019 | $108,553 | $170,000 | $0 | $278,553 | $278,553 |
| 2018 | $108,905 | $140,000 | $0 | $248,905 | $248,905 |
| 2017 | $109,608 | $90,000 | $0 | $199,608 | $199,608 |
| 2016 | $111,014 | $65,000 | $0 | $176,014 | $176,014 |
| 2015 | $107,976 | $50,000 | $0 | $157,976 | $157,976 |
| 2014 | $109,392 | $50,000 | $0 | $159,392 | $159,392 |
| 2013 | $110,806 | $50,000 | $0 | $160,806 | $160,806 |
| 2012 | $112,222 | $56,000 | $0 | $168,222 | $168,222 |
| 2011 | $113,638 | $70,000 | $0 | $183,638 | $183,638 |
| 2010 | $116,520 | $70,000 | $0 | $186,520 | $186,520 |
| 2009 | $114,711 | $90,000 | $0 | $204,711 | $204,711 |
| 2008 | $116,271 | $125,000 | $0 | $241,271 | $241,271 |
| 2007 | $117,852 | $100,000 | $0 | $217,852 | $217,852 |
Deed and Sales History
| 1 | 08/17/2020 | QCD | Quit Claim Deed | ASPDEN, JARROD P | ASPDEN, MARLANEA | | | $0.00 | 44367 | 4494496 |
| 2 | 07/11/2019 | QCD | Quit Claim Deed | WILLIAMS, RHANDA L | ASPDEN, JARROD P | | | $0.00 | 39378 | |
| 3 | 08/28/2012 | WD | Warranty Deed | DARROW, JACOB | ASPDEN, JARROD P | | | $137,000.00 | 8760 | 4322463 |
| 4 | 06/09/2004 | DECREE | Divorce Decree/Legal Separation | DARROW, JACOB | DARROW, JACOB | | | $0.00 | 42568 | 4103673 |
| 5 | 04/29/2002 | WD | Warranty Deed | CORBETT, TIMOTHY R | DARROW, JACOB | | | $128,810.00 | 21607 | 4018488 |
| 6 | 09/01/1997 | WD | Warranty Deed | SPOELSTRA, RICHARD/SHARON | CORBETT, TIMOTHY R | | | $110,500.00 | 73360 | 97015804 |
| 7 | 10/01/1991 | WD | Warranty Deed | TRIGNY, CORP | SPOELSTRA, RICHARD/SHARON | | | $89,950.00 | 13694 | 91015814 |
| 8 | 09/01/1991 | OTHER | Other - Misc. Documents | TRIGNY, CORP | TRIGNY, CORP | | | $0.00 | 64426 | 91012679 |
| 9 | 07/01/1990 | WD | Warranty Deed | LAMBERTSON, ROBERT F | TRIGNY, CORP | | | $24,700.00 | 4313 | 90014246 |
| 10 | 04/01/1990 | WD | Warranty Deed | BREAZEALE, RUSSELL E | LAMBERTSON, ROBERT F | | | $10,000.00 | 2340 | 90007637 |
| 11 | 01/01/1900 | OTHER | Other - Misc. Documents | Unknown | BREAZEALE, RUSSELL E | | | $0.00 | 0 | 0 |
Payout Agreement
| No payout information available.. |