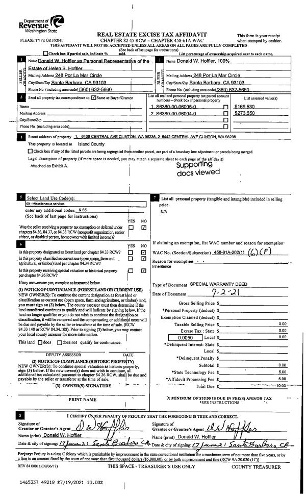
Property
Account |
| Property ID: | 217143 | Abbreviated Legal Description: | CCC 19 LOT 10 BLK 33 |
| Geographic ID: | S6250-19-33010-0 | Agent Code: | |
| Type: | Real | | |
| Tax Area: | 510 - APPRAISER-Stan/Cam Schl Dist, improved & 1 acre or less | Land Use Code | 11 |
| Open Space: | N | DFL | N |
| Historic Property: | N | Remodel Property: | N |
| Multi-Family Redevelopment: | N | | |
| Township: | | Section: | |
| Range: | |
Location |
| Address: | 475 MARINE VIEW PL CAMANO IS, WA 98282 | Mapsco: | |
| Neighborhood: | Cycle 5 | Map ID: | 933 |
| Neighborhood CD: | 5 |
Owner |
| Name: | LINK, YVONNE | Owner ID: | 301752 |
| Mailing Address: | 3023 LOCH NESS LP MOUNT VERNON, WA 98273 | % Ownership: | 100.0000000000% |
| | | Exemptions: | |
Taxes and Assessment Details
Values
| (+) Improvement Homesite Value: | + | $0 | |
| (+) Improvement Non-Homesite Value: | + | $443,578 | |
| (+) Land Homesite Value: | + | $0 | |
| (+) Land Non-Homesite Value: | + | $250,000 | |
| (+) Curr Use (HS): | + | $0 | $0 |
| (+) Curr Use (NHS): | + | $0 | $0 |
| | | -------------------------- | |
| (=) Market Value: | = | $693,578 | |
| (–) Productivity Loss: | – | $0 | |
| | | -------------------------- | |
| (=) Subtotal: | = | $693,578 | |
| (+) Senior Appraised Value: | + | $0 | |
| (+) Non-Senior Appraised Value: | + | $693,578 | |
| | | -------------------------- | |
| (=) Total Appraised Value: | = | $693,578 | |
| (–) Senior Exemption Loss: | – | $0 | |
| (–) Exemption Loss: | – | $0 | |
| | | -------------------------- | |
| (=) Taxable Value: | = | $693,578 | |
Taxing Jurisdiction
| Owner: | LINK, YVONNE | | |
| % Ownership: | 100.0000000000% | | |
| Total Value: | $693,578 | | |
| Tax Area: | 510 - APPRAISER-Stan/Cam Schl Dist, improved & 1 acre or less |
| CF | Conservation Futures | 0.0316035091 | $693,578 | $693,578 | $21.92 | | |
| EMS1 | Fire & Rescue Dist #1 Camano GEN (EMS) | 0.3677864386 | $693,578 | $693,578 | $255.09 | | |
| FIRE1 | Fire & Rescue Dist #1 Camano GEN | 1.2502910536 | $693,578 | $693,578 | $867.17 | | |
| FIRE1BOND | Fire & Rescue Dist #1 Camano BOND | 0.1570001679 | $693,578 | $693,578 | $108.89 | | |
| CE | County Current Expense | 0.3708482477 | $693,578 | $693,578 | $257.21 | | |
| CR | County Roads | 0.4584763726 | $693,578 | $693,578 | $317.99 | | |
| LCIB | Library Sno-Isle BOND (Camano Island) | 0.0396325772 | $693,578 | $693,578 | $27.49 | | |
| LIB | Library Sno-Isle GEN | 0.3153421757 | $693,578 | $693,578 | $218.71 | | |
| SCH205_401 | School 205-401 Enrichment | 1.2698420524 | $693,578 | $693,578 | $880.73 | | |
| SCH205BOND | School 205-401 BOND | 0.9396497583 | $693,578 | $693,578 | $651.72 | | |
| ST | State School | 1.3035497053 | $693,578 | $693,578 | $904.11 | | |
| ST2 | State School Part 2 | 0.8169543533 | $693,578 | $693,578 | $566.62 | | |
| | Total Tax Rate: | 7.3209764117 | | | | | |
| | | | | Taxes w/Current Exemptions: | $5,077.65 | | |
| | | | | Taxes w/o Exemptions: | $5,077.65 | | |
Improvement / Building
| Improvement #1: | RESIDENTIAL | State Code: | Y | 1871.8 sqft | Value: | $443,578 |
| Bathrooms: | 2 | Bedrooms: | 2 | | Ceiling: | DRYWALL PAINTED | Cooling: | HEAT PUMP/CONV/V | | Exterior Wall/Cover: | CEMENT FIBER | Floor Covering: | VINYL 100% | | Floor Structure: | WOOD W/SUBFLOOR | Foundation: | CONCRETE | | Interior Finish: | DRYWALL PAINT | Plumbing Fixture Cnt: | 9 | | Roof Slope: | 5" IN 12" | Roof Structure/Cover: | CJ ASPHALT |
|
| | Type | Description | Class CD | Sub Class CD | Year Built | Area |
| | BAS | BASE/MAIN FLOOR | 4 | 0 | 2022 | 1871.8 |
| | AGR | ATTACHED GARAGE | 4 | 0 | 2022 | 625.0 |
| | OWC | OPEN WOOD PORCH W/STEPS/ROOF/C | 4 | 0 | 2022 | 200.0 |
Sketch
Property Image
Land
| 1 | 14 | SQ (08001-12000) | 0.0000 | 0.00 | 0.00 | 0.00 | 1.00 | $250,000 | $0 |
Roll Value History
| 2026 | N/A | N/A | N/A | N/A | N/A |
| 2025 | $443,578 | $250,000 | $0 | $693,578 | $693,578 |
| 2024 | $451,643 | $250,000 | $0 | $701,643 | $701,643 |
| 2023 | $460,860 | $210,000 | $0 | $670,860 | $670,860 |
| 2022 | $222,511 | $100,000 | $0 | $322,511 | $322,511 |
| 2021 | $0 | $80,000 | $0 | $80,000 | $80,000 |
| 2020 | $0 | $80,000 | $0 | $80,000 | $80,000 |
| 2019 | $0 | $60,000 | $0 | $60,000 | $60,000 |
| 2018 | $0 | $50,000 | $0 | $50,000 | $50,000 |
| 2017 | $0 | $50,000 | $0 | $50,000 | $50,000 |
| 2016 | $0 | $45,000 | $0 | $45,000 | $45,000 |
| 2015 | $0 | $45,000 | $0 | $45,000 | $45,000 |
| 2014 | $0 | $45,000 | $0 | $45,000 | $45,000 |
| 2013 | $0 | $46,000 | $0 | $46,000 | $46,000 |
| 2012 | $0 | $46,000 | $0 | $46,000 | $46,000 |
| 2011 | $0 | $46,000 | $0 | $46,000 | $46,000 |
| 2010 | $0 | $46,000 | $0 | $46,000 | $46,000 |
| 2009 | $0 | $70,000 | $0 | $70,000 | $70,000 |
| 2008 | $0 | $85,000 | $0 | $85,000 | $85,000 |
| 2007 | $0 | $85,000 | $0 | $85,000 | $85,000 |
Deed and Sales History
| 1 | 08/31/2022 | WD | Warranty Deed | ISLAND LIFE HOMES, LLC | LINK, YVONNE | | | $845,000.00 | 54480 | 4550964 |
| 2 | 03/20/2021 | WD | Warranty Deed | PAPKE, ROBERT | ISLAND LIFE HOMES, LLC | | | $137,000.00 | 47445 | 4514319 |
| 3 | 12/10/2020 | QCD | Quit Claim Deed | PAPKE, HERMANN | PAPKE, ROBERT | | | $0.00 | 46957 | 4511078 |
| 4 | 04/13/1999 | QCD | Quit Claim Deed | Unknown | PAPKE, HERM | | | $28,500.00 | 91346 | 99008950 |
Payout Agreement
| No payout information available.. |