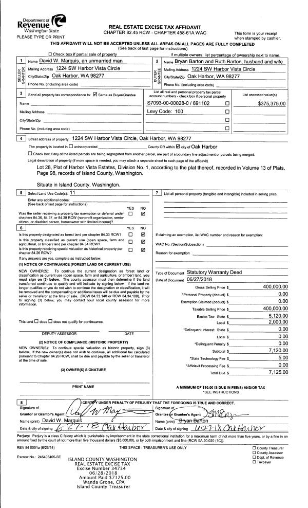
Property
Account |
| Property ID: | 217205 | Abbreviated Legal Description: | CCC 19 LOT 16 BLK 33 |
| Geographic ID: | S6250-19-33016-0 | Agent Code: | |
| Type: | Real | | |
| Tax Area: | 510 - APPRAISER-Stan/Cam Schl Dist, improved & 1 acre or less | Land Use Code | 11 |
| Open Space: | N | DFL | N |
| Historic Property: | N | Remodel Property: | N |
| Multi-Family Redevelopment: | N | | |
| Township: | | Section: | |
| Range: | |
Location |
| Address: | 1832 EDGEWOOD DR CAMANO ISLAND, WA 98282 | Mapsco: | |
| Neighborhood: | Cycle 5 | Map ID: | 933 |
| Neighborhood CD: | 5 |
Owner |
| Name: | MEDEMA, JANELLE L | Owner ID: | 286162 |
| Mailing Address: | KATHY G MEDEMA 1832 EDGEWOOD DR CAMANO ISLAND, WA 98282 | % Ownership: | 100.0000000000% |
| | | Exemptions: | |
Taxes and Assessment Details
Values
| (+) Improvement Homesite Value: | + | $0 | |
| (+) Improvement Non-Homesite Value: | + | $326,473 | |
| (+) Land Homesite Value: | + | $0 | |
| (+) Land Non-Homesite Value: | + | $390,000 | |
| (+) Curr Use (HS): | + | $0 | $0 |
| (+) Curr Use (NHS): | + | $0 | $0 |
| | | -------------------------- | |
| (=) Market Value: | = | $716,473 | |
| (–) Productivity Loss: | – | $0 | |
| | | -------------------------- | |
| (=) Subtotal: | = | $716,473 | |
| (+) Senior Appraised Value: | + | $0 | |
| (+) Non-Senior Appraised Value: | + | $716,473 | |
| | | -------------------------- | |
| (=) Total Appraised Value: | = | $716,473 | |
| (–) Senior Exemption Loss: | – | $0 | |
| (–) Exemption Loss: | – | $0 | |
| | | -------------------------- | |
| (=) Taxable Value: | = | $716,473 | |
Taxing Jurisdiction
| Owner: | MEDEMA, JANELLE L | | |
| % Ownership: | 100.0000000000% | | |
| Total Value: | $716,473 | | |
| Tax Area: | 510 - APPRAISER-Stan/Cam Schl Dist, improved & 1 acre or less |
| CF | Conservation Futures | 0.0316035091 | $716,473 | $716,473 | $22.64 | | |
| EMS1 | Fire & Rescue Dist #1 Camano GEN (EMS) | 0.3677864386 | $716,473 | $716,473 | $263.51 | | |
| FIRE1 | Fire & Rescue Dist #1 Camano GEN | 1.2502910536 | $716,473 | $716,473 | $895.80 | | |
| FIRE1BOND | Fire & Rescue Dist #1 Camano BOND | 0.1570001679 | $716,473 | $716,473 | $112.49 | | |
| CE | County Current Expense | 0.3708482477 | $716,473 | $716,473 | $265.70 | | |
| CR | County Roads | 0.4584763726 | $716,473 | $716,473 | $328.49 | | |
| LCIB | Library Sno-Isle BOND (Camano Island) | 0.0396325772 | $716,473 | $716,473 | $28.40 | | |
| LIB | Library Sno-Isle GEN | 0.3153421757 | $716,473 | $716,473 | $225.93 | | |
| SCH205_401 | School 205-401 Enrichment | 1.2698420524 | $716,473 | $716,473 | $909.81 | | |
| SCH205BOND | School 205-401 BOND | 0.9396497583 | $716,473 | $716,473 | $673.23 | | |
| ST | State School | 1.3035497053 | $716,473 | $716,473 | $933.96 | | |
| ST2 | State School Part 2 | 0.8169543533 | $716,473 | $716,473 | $585.33 | | |
| | Total Tax Rate: | 7.3209764117 | | | | | |
| | | | | Taxes w/Current Exemptions: | $5,245.29 | | |
| | | | | Taxes w/o Exemptions: | $5,245.29 | | |
Improvement / Building
| Improvement #1: | RESIDENTIAL | State Code: | Y | 1739.0 sqft | Value: | $326,473 |
| Bathrooms: | 2.75 | Bedrooms: | 3 | | Ceiling: | DRYWALL PAINTED | Exterior Wall/Cover: | CEMENT FIBER | | Floor Covering: | VINYL 100% | Floor Structure: | WOOD W/SUBFLOOR | | Foundation: | CONCRETE | Heating: | WALL HEAT ELECTRIC | | Interior Finish: | DRYWALL PAINT | Plumbing Fixture Cnt: | 12 | | Roof Slope: | 5" IN 12" | Roof Structure/Cover: | CJ ASPHALT |
|
| | Type | Description | Class CD | Sub Class CD | Year Built | Area |
| | BAS | BASE/MAIN FLOOR | 3 | 0 | 1998 | 1235.0 |
| | BIG | BUILT IN GARAGE | 3 | 0 | 1998 | 572.0 |
| | OWP | OPEN WOOD PORCH W/STEPS | 3 | 0 | 1998 | 30.0 |
| | OWP | OPEN WOOD PORCH W/STEPS | 3 | 0 | 1998 | 232.0 |
| | DWN | DOWNSTAIRS LIVING AREA | 3 | 0 | 1998 | 504.0 |
| | OWR | OPEN WOOD PORCH W/STEPS/ROOF | 3 | 0 | 1998 | 384.0 |
Sketch
Property Image
Land
| 1 | 14 | SQ (08001-12000) | 0.0000 | 0.00 | 0.00 | 0.00 | 1.00 | $390,000 | $0 |
Roll Value History
| 2026 | N/A | N/A | N/A | N/A | N/A |
| 2025 | $326,473 | $390,000 | $0 | $716,473 | $716,473 |
| 2024 | $330,216 | $360,000 | $0 | $690,216 | $690,216 |
| 2023 | $333,957 | $330,000 | $0 | $663,957 | $663,957 |
| 2022 | $304,940 | $300,000 | $0 | $604,940 | $604,940 |
| 2021 | $234,366 | $200,000 | $0 | $434,366 | $434,366 |
| 2020 | $228,029 | $180,000 | $0 | $408,029 | $408,029 |
| 2019 | $166,137 | $230,000 | $0 | $396,137 | $396,137 |
| 2018 | $166,623 | $200,000 | $0 | $366,623 | $366,623 |
| 2017 | $167,598 | $200,000 | $0 | $367,598 | $367,598 |
| 2016 | $169,547 | $110,000 | $0 | $279,547 | $279,547 |
| 2015 | $147,286 | $80,000 | $0 | $227,286 | $227,286 |
| 2014 | $149,059 | $80,000 | $0 | $229,059 | $229,059 |
| 2013 | $150,830 | $80,000 | $0 | $230,830 | $230,830 |
| 2012 | $152,606 | $86,304 | $0 | $238,910 | $238,910 |
| 2011 | $154,378 | $107,880 | $0 | $262,258 | $262,258 |
| 2010 | $162,320 | $107,880 | $0 | $270,200 | $270,200 |
| 2009 | $158,813 | $130,000 | $0 | $288,813 | $288,813 |
| 2008 | $148,362 | $146,000 | $0 | $294,362 | $294,362 |
| 2007 | $150,091 | $146,000 | $0 | $296,091 | $296,091 |
Deed and Sales History
| 1 | 07/18/2018 | WD | Warranty Deed | DELLINGER, TAMRA L | MEDEMA, JANELLE L | | | $365,000.00 | 35158 | 4448670 |
| 2 | 10/11/2016 | MARRCERT | DNU - Marriage Certificate | GREER, TAMRA L | DELLINGER, TAMRA L | | | | 87458 | |
| 3 | 09/11/2015 | WD | Warranty Deed | SLEDGE, JERRY D | GREER, TAMRA L | | | $269,950.00 | 21417 | 4386251 |
| 4 | 08/19/2005 | WD | Warranty Deed | SMITH, WAYNE A | SLEDGE, JERRY D | | | $239,950.00 | 45080 | 4144656 |
| 5 | 06/18/2002 | QCD | Quit Claim Deed | SMITH, WAYNE | SMITH, WAYNE A | | | $0.00 | 22430 | 4023849 |
| 6 | 08/28/1998 | ESTSEPPROP | Establish Separate Property | SMITH, WAYNE | SMITH, WAYNE | | | $0.00 | 83440 | 98017886 |
| 7 | 08/25/1998 | WD | Warranty Deed | NW BUILDERS INC, | SMITH, WAYNE | | | $152,950.00 | 83439 | 98017885 |
| 8 | 08/25/1998 | WD | Warranty Deed | SWAN, FAM L | NW BUILDERS INC, | | | $30,000.00 | 83382 | 98017610 |
| 9 | 12/01/1996 | QCD | Quit Claim Deed | SWAN, NORMA - | SWAN, FAM L | | | $0.00 | 64544 | 96022029 |
| 10 | 11/01/1987 | QCD | Quit Claim Deed | SWAN, NORMA - | SWAN, NORMA - | | | $0.00 | 73657 | 87015914 |
| 11 | 10/01/1987 | QCD | Quit Claim Deed | SWAN, NORMA | SWAN, NORMA - | | | $0.00 | 73276 | 87014370 |
| 12 | 03/01/1983 | WD | Warranty Deed | SWAN, ALVIN E | SWAN, NORMA | | | $0.00 | 31207 | 409265 |
Payout Agreement
| No payout information available.. |