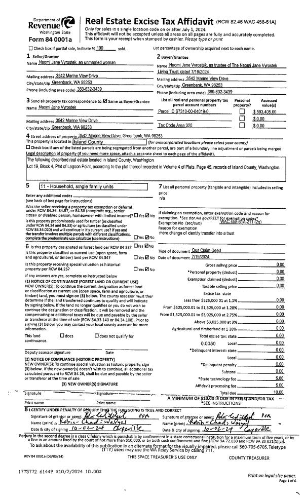
Property
Account |
| Property ID: | 21755 | Abbreviated Legal Description: | 36 - IN GL3:BG E/4 CR SEC 18 S88*W2139.32' TPB S300' W497.58' N300' TO NLN GL3 E497.58' TPB TGW EZ |
| Geographic ID: | R13218-250-2910 | Agent Code: | |
| Type: | Real | | |
| Tax Area: | 112 - APPRAISER-OH Schl Dist, outside OH, improved, greater than 1 acre | Land Use Code | 11 |
| Open Space: | N | DFL | N |
| Historic Property: | N | Remodel Property: | N |
| Multi-Family Redevelopment: | N | | |
| Township: | 32 | Section: | 18 |
| Range: | R1 |
Location |
| Address: | 1397 ZYLSTRA RD OAK HARBOR, WA 98277 | Mapsco: | |
| Neighborhood: | Cycle 1 | Map ID: | 138 |
| Neighborhood CD: | 1 |
Owner |
| Name: | SHIELDS, WILLIAM A | Owner ID: | 71044 |
| Mailing Address: | 4889 ALDER CREEK RD ST MARIES, ID 83861 | % Ownership: | 100.0000000000% |
| | | Exemptions: | |
Taxes and Assessment Details
Values
| (+) Improvement Homesite Value: | + | $0 | |
| (+) Improvement Non-Homesite Value: | + | $188,967 | |
| (+) Land Homesite Value: | + | $0 | |
| (+) Land Non-Homesite Value: | + | $290,000 | |
| (+) Curr Use (HS): | + | $0 | $0 |
| (+) Curr Use (NHS): | + | $0 | $0 |
| | | -------------------------- | |
| (=) Market Value: | = | $478,967 | |
| (–) Productivity Loss: | – | $0 | |
| | | -------------------------- | |
| (=) Subtotal: | = | $478,967 | |
| (+) Senior Appraised Value: | + | $0 | |
| (+) Non-Senior Appraised Value: | + | $478,967 | |
| | | -------------------------- | |
| (=) Total Appraised Value: | = | $478,967 | |
| (–) Senior Exemption Loss: | – | $0 | |
| (–) Exemption Loss: | – | $0 | |
| | | -------------------------- | |
| (=) Taxable Value: | = | $478,967 | |
Taxing Jurisdiction
| Owner: | SHIELDS, WILLIAM A | | |
| % Ownership: | 100.0000000000% | | |
| Total Value: | $478,967 | | |
| Tax Area: | 112 - APPRAISER-OH Schl Dist, outside OH, improved, greater than 1 acre |
| CF | Conservation Futures | 0.0316035091 | $478,967 | $478,967 | $15.14 | | |
| CEM1 | Cemetery #1 | 0.0040320932 | $478,967 | $478,967 | $1.93 | | |
| FIRE2 | Fire & Rescue Dist #2 N Whidbey GEN | 0.5475949600 | $478,967 | $478,967 | $262.28 | | |
| HOBOND | Hospital BOND | 0.1910887512 | $478,967 | $478,967 | $91.53 | | |
| HOGEN | Hospital GEN | 0.3902502903 | $478,967 | $478,967 | $186.92 | | |
| CE | County Current Expense | 0.3708482477 | $478,967 | $478,967 | $177.62 | | |
| CR | County Roads | 0.4584763726 | $478,967 | $478,967 | $219.60 | | |
| ISLANDEMS | Hospital GEN (EMS) | 0.5000000000 | $478,967 | $478,967 | $239.48 | | |
| LIB | Library Sno-Isle GEN | 0.3153421757 | $478,967 | $478,967 | $151.04 | | |
| NWHIDPRMT | P & R N Whidbey GEN | 0.2004466701 | $478,967 | $478,967 | $96.01 | | |
| SCH201MO | School 201 Enrichment | 1.8559231640 | $478,967 | $478,967 | $888.93 | | |
| ST | State School | 1.3035497053 | $478,967 | $478,967 | $624.36 | | |
| ST2 | State School Part 2 | 0.8169543533 | $478,967 | $478,967 | $391.29 | | |
| | Total Tax Rate: | 6.9861102925 | | | | | |
| | | | | Taxes w/Current Exemptions: | $3,346.13 | | |
| | | | | Taxes w/o Exemptions: | $3,346.13 | | |
Improvement / Building
| Improvement #1: | RESIDENTIAL | State Code: | Y | 1304.0 sqft | Value: | $188,967 |
| Bathrooms: | 1.5 | Bedrooms: | 3 | | Ceiling: | DRY WALL SPRAYED | Exterior Wall/Cover: | WOOD SIDING | | Floor Covering: | CARPET/VINYL 80-20 | Floor Structure: | WOOD W/SUBFLOOR | | Foundation: | CONCRETE | Heating: | BASEBOARD ELECTRIC | | Interior Finish: | DRYWALL PAINT | Plumbing Fixture Cnt: | 9 | | Roof Slope: | 4" IN 12" | Roof Structure/Cover: | CJ ASPHALT |
|
| | Type | Description | Class CD | Sub Class CD | Year Built | Area |
| | BAS | BASE/MAIN FLOOR | 3 | 0 | 1984 | 1304.0 |
| | OP2 | OPEN PORCH W/STEPS | 3 | 0 | 1984 | 24.0 |
| | AGR | ATTACHED GARAGE | 3 | 0 | 1984 | 576.0 |
| | CPD | OPEN CARPORT DIRT FLOOR | 3 | 0 | 1984 | 280.0 |
Sketch
Property Image
Land
| 1 | 32 | AC (03.01-09.99) | 3.4300 | 0.00 | 0.00 | 0.00 | 1.00 | $290,000 | $0 |
Roll Value History
| 2026 | N/A | N/A | N/A | N/A | N/A |
| 2025 | $188,967 | $290,000 | $0 | $478,967 | $478,967 |
| 2024 | $195,899 | $260,000 | $0 | $455,899 | $455,899 |
| 2023 | $195,899 | $250,000 | $0 | $445,899 | $445,899 |
| 2022 | $180,103 | $220,000 | $0 | $400,103 | $400,103 |
| 2021 | $158,981 | $190,000 | $0 | $348,981 | $348,981 |
| 2020 | $155,163 | $140,000 | $0 | $295,163 | $295,163 |
| 2019 | $111,378 | $200,000 | $0 | $311,378 | $311,378 |
| 2018 | $111,781 | $170,000 | $0 | $281,781 | $281,781 |
| 2017 | $100,453 | $160,000 | $0 | $260,453 | $260,453 |
| 2016 | $101,975 | $130,000 | $0 | $231,975 | $231,975 |
| 2015 | $103,497 | $100,000 | $0 | $203,497 | $203,497 |
| 2014 | $105,019 | $85,750 | $0 | $190,769 | $190,769 |
| 2013 | $106,541 | $83,349 | $0 | $189,890 | $189,890 |
| 2012 | $108,063 | $83,349 | $0 | $191,412 | $191,412 |
| 2011 | $111,147 | $92,610 | $0 | $203,757 | $203,757 |
| 2010 | $112,181 | $92,610 | $0 | $204,791 | $204,791 |
| 2009 | $117,156 | $120,050 | $0 | $237,206 | $237,206 |
| 2008 | $121,790 | $128,625 | $0 | $250,415 | $250,415 |
| 2007 | $123,334 | $128,625 | $0 | $251,959 | $251,959 |
Deed and Sales History
| 1 | 08/01/1994 | WD | Warranty Deed | SHIELDS, WILLIAM A | SHIELDS, WILLIAM A | | | $0.00 | 43347 | 94017848 |
| 2 | 01/01/1994 | QCD | Quit Claim Deed | KOETJE, GORDON H | SHIELDS, WILLIAM A | | | $0.00 | 40138 | 94000786 |
| 3 | 08/01/1984 | EZ | Easement | ANTRAM, DONALD L | KOETJE, GORDON H | | | $0.00 | 60739 | 423288 |
| 4 | 08/01/1984 | WD | Warranty Deed | KOETJE, GORDON H | ANTRAM, DONALD L | | | $78,000.00 | 42322 | 84001686 |
| 5 | 04/01/1984 | WD | Warranty Deed | OWENS, W C | KOETJE, GORDON H | | | $29,157.00 | 41001 | 423289 |
| 6 | 01/01/1900 | OTHER | Other - Misc. Documents | Unknown | OWENS, W C | | | $0.00 | 0 | 0 |
Payout Agreement
| No payout information available.. |