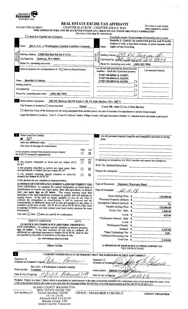
Property
Account |
| Property ID: | 217615 | Abbreviated Legal Description: | CCC 20 LOT 2 BLK 36 |
| Geographic ID: | S6250-20-36002-0 | Agent Code: | |
| Type: | Real | | |
| Tax Area: | 510 - APPRAISER-Stan/Cam Schl Dist, improved & 1 acre or less | Land Use Code | 11 |
| Open Space: | N | DFL | N |
| Historic Property: | N | Remodel Property: | N |
| Multi-Family Redevelopment: | N | | |
| Township: | | Section: | |
| Range: | |
Location |
| Address: | 1906 ELHARDT ST CAMANO ISLAND, WA 98282 | Mapsco: | |
| Neighborhood: | Cycle 5 | Map ID: | 933 |
| Neighborhood CD: | 5 |
Owner |
| Name: | DAVIS, DEBORAH R | Owner ID: | 287447 |
| Mailing Address: | BRIAN M OSHIE 1906 ELHARDT ST CAMANO ISLAND, WA 98282 | % Ownership: | 100.0000000000% |
| | | Exemptions: | |
Taxes and Assessment Details
Values
| (+) Improvement Homesite Value: | + | $0 | |
| (+) Improvement Non-Homesite Value: | + | $252,943 | |
| (+) Land Homesite Value: | + | $0 | |
| (+) Land Non-Homesite Value: | + | $250,000 | |
| (+) Curr Use (HS): | + | $0 | $0 |
| (+) Curr Use (NHS): | + | $0 | $0 |
| | | -------------------------- | |
| (=) Market Value: | = | $502,943 | |
| (–) Productivity Loss: | – | $0 | |
| | | -------------------------- | |
| (=) Subtotal: | = | $502,943 | |
| (+) Senior Appraised Value: | + | $0 | |
| (+) Non-Senior Appraised Value: | + | $502,943 | |
| | | -------------------------- | |
| (=) Total Appraised Value: | = | $502,943 | |
| (–) Senior Exemption Loss: | – | $0 | |
| (–) Exemption Loss: | – | $0 | |
| | | -------------------------- | |
| (=) Taxable Value: | = | $502,943 | |
Taxing Jurisdiction
| Owner: | DAVIS, DEBORAH R | | |
| % Ownership: | 100.0000000000% | | |
| Total Value: | $502,943 | | |
| Tax Area: | 510 - APPRAISER-Stan/Cam Schl Dist, improved & 1 acre or less |
| CF | Conservation Futures | 0.0316035091 | $502,943 | $502,943 | $15.89 | | |
| EMS1 | Fire & Rescue Dist #1 Camano GEN (EMS) | 0.3677864386 | $502,943 | $502,943 | $184.98 | | |
| FIRE1 | Fire & Rescue Dist #1 Camano GEN | 1.2502910536 | $502,943 | $502,943 | $628.83 | | |
| FIRE1BOND | Fire & Rescue Dist #1 Camano BOND | 0.1570001679 | $502,943 | $502,943 | $78.96 | | |
| CE | County Current Expense | 0.3708482477 | $502,943 | $502,943 | $186.52 | | |
| CR | County Roads | 0.4584763726 | $502,943 | $502,943 | $230.59 | | |
| LCIB | Library Sno-Isle BOND (Camano Island) | 0.0396325772 | $502,943 | $502,943 | $19.93 | | |
| LIB | Library Sno-Isle GEN | 0.3153421757 | $502,943 | $502,943 | $158.60 | | |
| SCH205_401 | School 205-401 Enrichment | 1.2698420524 | $502,943 | $502,943 | $638.66 | | |
| SCH205BOND | School 205-401 BOND | 0.9396497583 | $502,943 | $502,943 | $472.59 | | |
| ST | State School | 1.3035497053 | $502,943 | $502,943 | $655.61 | | |
| ST2 | State School Part 2 | 0.8169543533 | $502,943 | $502,943 | $410.88 | | |
| | Total Tax Rate: | 7.3209764117 | | | | | |
| | | | | Taxes w/Current Exemptions: | $3,682.04 | | |
| | | | | Taxes w/o Exemptions: | $3,682.04 | | |
Improvement / Building
| Improvement #1: | RESIDENTIAL | State Code: | Y | 1223.8 sqft | Value: | $252,943 |
| Bathrooms: | 2 | Bedrooms: | 3 | | Ceiling: | DRY WALL SPRAYED | Exterior Wall/Cover: | CEMENT FIBER | | Floor Covering: | CARPET/VINYL 20-80 | Floor Structure: | WOOD W/SUBFLOOR | | Foundation: | CONCRETE | Heating: | WALL HEAT ELECTRIC | | Interior Finish: | DRYWALL PAINT | Plumbing Fixture Cnt: | 9 | | Roof Slope: | 3" IN 12" | Roof Structure/Cover: | CJ ASPHALT |
|
| | Type | Description | Class CD | Sub Class CD | Year Built | Area |
| | BAS | BASE/MAIN FLOOR | 3 | 0 | 2002 | 1223.8 |
| | OP2 | OPEN PORCH W/STEPS | 3 | 0 | 2002 | 111.2 |
| | AGR | ATTACHED GARAGE | 3 | 0 | 2002 | 400.0 |
| | OWP | OPEN WOOD PORCH W/STEPS | 3 | 0 | 2002 | 120.0 |
Sketch
Property Image
Land
| 1 | 14 | SQ (08001-12000) | 0.0000 | 0.00 | 0.00 | 0.00 | 1.00 | $250,000 | $0 |
Roll Value History
| 2026 | N/A | N/A | N/A | N/A | N/A |
| 2025 | $252,943 | $250,000 | $0 | $502,943 | $502,943 |
| 2024 | $255,909 | $250,000 | $0 | $505,909 | $505,909 |
| 2023 | $258,877 | $210,000 | $0 | $468,877 | $468,877 |
| 2022 | $237,106 | $200,000 | $0 | $437,106 | $437,106 |
| 2021 | $201,501 | $140,000 | $0 | $341,501 | $341,501 |
| 2020 | $195,858 | $120,000 | $0 | $315,858 | $315,858 |
| 2019 | $138,990 | $170,000 | $0 | $308,990 | $308,990 |
| 2018 | $137,810 | $140,000 | $0 | $277,810 | $277,810 |
| 2017 | $138,525 | $90,000 | $0 | $228,525 | $228,525 |
| 2016 | $140,099 | $65,000 | $0 | $205,099 | $205,099 |
| 2015 | $136,750 | $50,000 | $0 | $186,750 | $186,750 |
| 2014 | $138,310 | $50,000 | $0 | $188,310 | $188,310 |
| 2013 | $139,871 | $50,000 | $0 | $189,871 | $189,871 |
| 2012 | $141,430 | $56,000 | $0 | $197,430 | $197,430 |
| 2011 | $142,991 | $70,000 | $0 | $212,991 | $212,991 |
| 2010 | $146,974 | $70,000 | $0 | $216,974 | $216,974 |
| 2009 | $147,100 | $90,000 | $0 | $237,100 | $237,100 |
| 2008 | $148,692 | $100,000 | $0 | $248,692 | $248,692 |
| 2007 | $151,838 | $100,000 | $0 | $251,838 | $251,838 |
Deed and Sales History
| 1 | 10/08/2018 | WD | Warranty Deed | FOX, GEORGE A | DAVIS, DEBORAH R | | | $315,000.00 | 36225 | 4453141 |
| 2 | 01/19/2011 | WD | Warranty Deed | US BANK NATIONAL ASSOCIATION ND | FOX, GEORGE A | | | $130,000.00 | 3491 | 4289651 |
| 3 | 09/10/2010 | TRUSTEED | Trustee's Deed | WARD, JASON C | US BANK NATIONAL ASSOCIATION ND | | | $0.00 | 2264 | 4280743 |
| 4 | 05/25/2007 | WD | Warranty Deed | BOUCHER, DONALD J | WARD, JASON C | | | $274,900.00 | 71824 | 4203467 |
| 5 | 07/22/2005 | WD | Warranty Deed | DILLON, TENNA | BOUCHER, DONALD J | | | $244,950.00 | 53682 | 4142547 |
| 6 | 09/01/2004 | WD | Warranty Deed | TING, ELISEO R | DILLON, TENNA | | | $172,600.00 | 44198 | 4112306 |
| 7 | 04/23/2002 | WD | Warranty Deed | SUNBERG HOMES, INC, | TING, ELISEO R | | | $159,450.00 | 21547 | 4018123 |
| 8 | 08/24/2001 | WD | Warranty Deed | TYPER, PAMELA N | SUNBERG HOMES, INC, | | | $33,000.00 | 13397 | 20041937 |
| 9 | 05/01/1989 | QCD | Quit Claim Deed | LINDSTROM, ELLEN L | TYPER, PAMELA N | | | $0.00 | 92674 | 89009041 |
| 10 | 09/01/1987 | QCD | Quit Claim Deed | LINDSTROM, JOHN E | LINDSTROM, ELLEN L | | | $0.00 | 92675 | 89009040 |
| 11 | 01/01/1900 | OTHER | Other - Misc. Documents | Unknown | LINDSTROM, JOHN E | | | $0.00 | 0 | 0 |
Payout Agreement
| No payout information available.. |