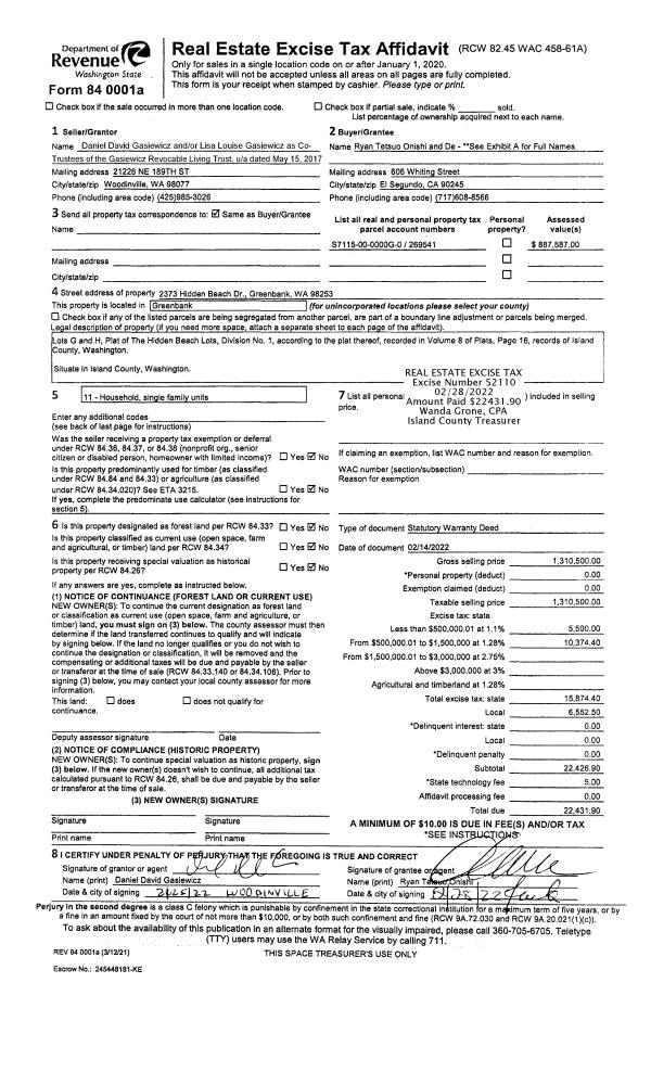
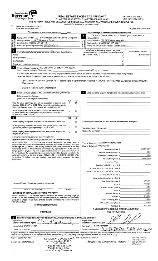
Property
Account |
| Property ID: | 217660 | Abbreviated Legal Description: | CCC 20 LOT 7 BLK 36 |
| Geographic ID: | S6250-20-36007-0 | Agent Code: | |
| Type: | Real | | |
| Tax Area: | 510 - APPRAISER-Stan/Cam Schl Dist, improved & 1 acre or less | Land Use Code | 11 |
| Open Space: | N | DFL | N |
| Historic Property: | N | Remodel Property: | N |
| Multi-Family Redevelopment: | N | | |
| Township: | | Section: | |
| Range: | |
Location |
| Address: | 1870 ELHARDT ST CAMANO ISLAND, WA 98282 | Mapsco: | |
| Neighborhood: | Cycle 5 | Map ID: | 933 |
| Neighborhood CD: | 5 |
Owner |
| Name: | WILKINS, TONYA KIM | Owner ID: | 301540 |
| Mailing Address: | 1870 ELHARDT ST CAMANO ISLAND, WA 98282 | % Ownership: | 100.0000000000% |
| | | Exemptions: | |
Taxes and Assessment Details
Values
| (+) Improvement Homesite Value: | + | $0 | |
| (+) Improvement Non-Homesite Value: | + | $199,650 | |
| (+) Land Homesite Value: | + | $0 | |
| (+) Land Non-Homesite Value: | + | $250,000 | |
| (+) Curr Use (HS): | + | $0 | $0 |
| (+) Curr Use (NHS): | + | $0 | $0 |
| | | -------------------------- | |
| (=) Market Value: | = | $449,650 | |
| (–) Productivity Loss: | – | $0 | |
| | | -------------------------- | |
| (=) Subtotal: | = | $449,650 | |
| (+) Senior Appraised Value: | + | $0 | |
| (+) Non-Senior Appraised Value: | + | $449,650 | |
| | | -------------------------- | |
| (=) Total Appraised Value: | = | $449,650 | |
| (–) Senior Exemption Loss: | – | $0 | |
| (–) Exemption Loss: | – | $0 | |
| | | -------------------------- | |
| (=) Taxable Value: | = | $449,650 | |
Taxing Jurisdiction
| Owner: | WILKINS, TONYA KIM | | |
| % Ownership: | 100.0000000000% | | |
| Total Value: | $449,650 | | |
| Tax Area: | 510 - APPRAISER-Stan/Cam Schl Dist, improved & 1 acre or less |
| CF | Conservation Futures | 0.0316035091 | $449,650 | $449,650 | $14.21 | | |
| EMS1 | Fire & Rescue Dist #1 Camano GEN (EMS) | 0.3677864386 | $449,650 | $449,650 | $165.38 | | |
| FIRE1 | Fire & Rescue Dist #1 Camano GEN | 1.2502910536 | $449,650 | $449,650 | $562.19 | | |
| FIRE1BOND | Fire & Rescue Dist #1 Camano BOND | 0.1570001679 | $449,650 | $449,650 | $70.60 | | |
| CE | County Current Expense | 0.3708482477 | $449,650 | $449,650 | $166.75 | | |
| CR | County Roads | 0.4584763726 | $449,650 | $449,650 | $206.15 | | |
| LCIB | Library Sno-Isle BOND (Camano Island) | 0.0396325772 | $449,650 | $449,650 | $17.82 | | |
| LIB | Library Sno-Isle GEN | 0.3153421757 | $449,650 | $449,650 | $141.79 | | |
| SCH205_401 | School 205-401 Enrichment | 1.2698420524 | $449,650 | $449,650 | $570.98 | | |
| SCH205BOND | School 205-401 BOND | 0.9396497583 | $449,650 | $449,650 | $422.51 | | |
| ST | State School | 1.3035497053 | $449,650 | $449,650 | $586.14 | | |
| ST2 | State School Part 2 | 0.8169543533 | $449,650 | $449,650 | $367.34 | | |
| | Total Tax Rate: | 7.3209764117 | | | | | |
| | | | | Taxes w/Current Exemptions: | $3,291.86 | | |
| | | | | Taxes w/o Exemptions: | $3,291.86 | | |
Improvement / Building
| Improvement #1: | RESIDENTIAL | State Code: | Y | 928.0 sqft | Value: | $199,650 |
| Bathrooms: | 2 | Bedrooms: | 2 | | Ceiling: | DRYWALL PAINTED | Exterior Wall/Cover: | CEMENT FIBER | | Floor Covering: | CERAMIC TILE/CPT 40-60 | Floor Structure: | WOOD W/SUBFLOOR | | Foundation: | CONCRETE | Heating: | WALL HEAT ELECTRIC | | Interior Finish: | DRYWALL PAINT | Plumbing Fixture Cnt: | 9 | | Roof Slope: | 5" IN 12" | Roof Structure/Cover: | CJ ASPHALT |
|
| | Type | Description | Class CD | Sub Class CD | Year Built | Area |
| | BAS | BASE/MAIN FLOOR | 3 | 0 | 1998 | 928.0 |
| | AGR | ATTACHED GARAGE | 3 | 0 | 1998 | 440.0 |
| | OWP | OPEN WOOD PORCH W/STEPS | 3 | 0 | 1998 | 270.0 |
Sketch
Property Image
Land
| 1 | 14 | SQ (08001-12000) | 0.0000 | 0.00 | 0.00 | 0.00 | 1.00 | $250,000 | $0 |
Roll Value History
| 2026 | N/A | N/A | N/A | N/A | N/A |
| 2025 | $199,650 | $250,000 | $0 | $449,650 | $449,650 |
| 2024 | $202,107 | $250,000 | $0 | $452,107 | $452,107 |
| 2023 | $204,565 | $210,000 | $0 | $414,565 | $414,565 |
| 2022 | $187,457 | $200,000 | $0 | $387,457 | $387,457 |
| 2021 | $157,670 | $140,000 | $0 | $297,670 | $297,670 |
| 2020 | $152,992 | $120,000 | $0 | $272,992 | $272,992 |
| 2019 | $103,144 | $170,000 | $0 | $273,144 | $273,144 |
| 2018 | $103,454 | $140,000 | $0 | $243,454 | $243,454 |
| 2017 | $104,073 | $90,000 | $0 | $194,073 | $194,073 |
| 2016 | $105,313 | $65,000 | $0 | $170,313 | $170,313 |
| 2015 | $101,820 | $50,000 | $0 | $151,820 | $151,820 |
| 2014 | $103,058 | $50,000 | $0 | $153,058 | $153,058 |
| 2013 | $104,293 | $50,000 | $0 | $154,293 | $154,293 |
| 2012 | $105,530 | $56,000 | $0 | $161,530 | $161,530 |
| 2011 | $106,765 | $70,000 | $0 | $176,765 | $176,765 |
| 2010 | $110,111 | $70,000 | $0 | $180,111 | $180,111 |
| 2009 | $104,746 | $90,000 | $0 | $194,746 | $194,746 |
| 2008 | $105,985 | $100,000 | $0 | $205,985 | $205,985 |
| 2007 | $107,214 | $100,000 | $0 | $207,214 | $207,214 |
Deed and Sales History
| 1 | 10/04/2021 | WD | Warranty Deed | ZEILER, JOHN PAUL | WILKINS, TONYA KIM | | | $400,000.00 | 50457 | 4531391 |
| 2 | 03/26/2020 | WD | Warranty Deed | SPANN, JAMES M | ZEILER, JOHN PAUL | | | $325,000.00 | 42597 | 4484353 |
| 3 | 07/18/2011 | QCD | Quit Claim Deed | SPANN, STACY L | SPANN, JAMES M | | | $64,977.00 | 6370 | 4306335 |
| 4 | 02/02/2000 | WD | Warranty Deed | GRAN, DOUGLAS A | SPANN, STACY L | | | $128,950.00 | 535 | 20002867 |
| 5 | 08/26/1998 | WD | Warranty Deed | WITHERS, JAYSON W/TONYA | GRAN, DOUGLAS A | | | $95,000.00 | 83459 | 98018060 |
| 6 | 04/21/1998 | WD | Warranty Deed | ANGELINI, RENATA R | WITHERS, JAYSON W/TONYA | | | $23,000.00 | 81632 | 98008725 |
| 7 | 09/01/1994 | QCD | Quit Claim Deed | ANGELINI, RENATA | ANGELINI, RENATA R | | | $0.00 | 43879 | 94020170 |
Payout Agreement
| No payout information available.. |