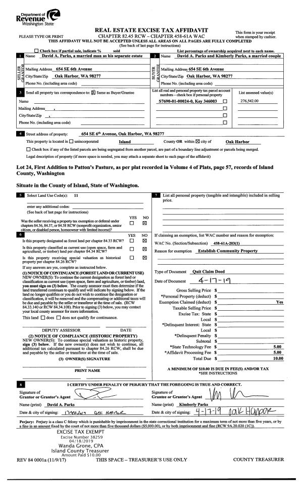
Property
Account |
| Property ID: | 217875 | Abbreviated Legal Description: | CCC 20 LOT 14 BLK 37 |
| Geographic ID: | S6250-20-37014-0 | Agent Code: | |
| Type: | Real | | |
| Tax Area: | 510 - APPRAISER-Stan/Cam Schl Dist, improved & 1 acre or less | Land Use Code | 11 |
| Open Space: | N | DFL | N |
| Historic Property: | N | Remodel Property: | N |
| Multi-Family Redevelopment: | N | | |
| Township: | | Section: | |
| Range: | |
Location |
| Address: | 1933 ELHARDT ST CAMANO ISLAND, WA 98282 | Mapsco: | |
| Neighborhood: | Cycle 5 | Map ID: | 933 |
| Neighborhood CD: | 5 |
Owner |
| Name: | TROUTVINE, JUSTIN | Owner ID: | 290809 |
| Mailing Address: | JULIE TROUTVINE 1933 ELHARDT ST CAMANO ISLAND, WA 98282 | % Ownership: | 100.0000000000% |
| | | Exemptions: | |
Taxes and Assessment Details
Values
| (+) Improvement Homesite Value: | + | $0 | |
| (+) Improvement Non-Homesite Value: | + | $310,797 | |
| (+) Land Homesite Value: | + | $0 | |
| (+) Land Non-Homesite Value: | + | $250,000 | |
| (+) Curr Use (HS): | + | $0 | $0 |
| (+) Curr Use (NHS): | + | $0 | $0 |
| | | -------------------------- | |
| (=) Market Value: | = | $560,797 | |
| (–) Productivity Loss: | – | $0 | |
| | | -------------------------- | |
| (=) Subtotal: | = | $560,797 | |
| (+) Senior Appraised Value: | + | $0 | |
| (+) Non-Senior Appraised Value: | + | $560,797 | |
| | | -------------------------- | |
| (=) Total Appraised Value: | = | $560,797 | |
| (–) Senior Exemption Loss: | – | $0 | |
| (–) Exemption Loss: | – | $0 | |
| | | -------------------------- | |
| (=) Taxable Value: | = | $560,797 | |
Taxing Jurisdiction
| Owner: | TROUTVINE, JUSTIN | | |
| % Ownership: | 100.0000000000% | | |
| Total Value: | $560,797 | | |
| Tax Area: | 510 - APPRAISER-Stan/Cam Schl Dist, improved & 1 acre or less |
| CF | Conservation Futures | 0.0316035091 | $560,797 | $560,797 | $17.72 | | |
| EMS1 | Fire & Rescue Dist #1 Camano GEN (EMS) | 0.3677864386 | $560,797 | $560,797 | $206.25 | | |
| FIRE1 | Fire & Rescue Dist #1 Camano GEN | 1.2502910536 | $560,797 | $560,797 | $701.16 | | |
| FIRE1BOND | Fire & Rescue Dist #1 Camano BOND | 0.1570001679 | $560,797 | $560,797 | $88.05 | | |
| CE | County Current Expense | 0.3708482477 | $560,797 | $560,797 | $207.97 | | |
| CR | County Roads | 0.4584763726 | $560,797 | $560,797 | $257.11 | | |
| LCIB | Library Sno-Isle BOND (Camano Island) | 0.0396325772 | $560,797 | $560,797 | $22.23 | | |
| LIB | Library Sno-Isle GEN | 0.3153421757 | $560,797 | $560,797 | $176.84 | | |
| SCH205_401 | School 205-401 Enrichment | 1.2698420524 | $560,797 | $560,797 | $712.12 | | |
| SCH205BOND | School 205-401 BOND | 0.9396497583 | $560,797 | $560,797 | $526.95 | | |
| ST | State School | 1.3035497053 | $560,797 | $560,797 | $731.03 | | |
| ST2 | State School Part 2 | 0.8169543533 | $560,797 | $560,797 | $458.15 | | |
| | Total Tax Rate: | 7.3209764117 | | | | | |
| | | | | Taxes w/Current Exemptions: | $4,105.58 | | |
| | | | | Taxes w/o Exemptions: | $4,105.58 | | |
Improvement / Building
| Improvement #1: | RESIDENTIAL | State Code: | Y | 1423.5 sqft | Value: | $310,797 |
| Bathrooms: | 2 | Bedrooms: | 3 | | Ceiling: | DRYWALL PAINTED | Exterior Wall/Cover: | CEMENT FIBER | | Floor Covering: | VINYL/HARDWOOD 60-40 | Floor Structure: | WOOD W/SUBFLOOR | | Foundation: | CONCRETE | Heating: | WALL HEAT ELECTRIC | | Interior Finish: | DRYWALL PAINT | Plumbing Fixture Cnt: | 10 | | Roof Slope: | 6" IN 12" | Roof Structure/Cover: | CJ ASPHALT |
|
| | Type | Description | Class CD | Sub Class CD | Year Built | Area |
| | BAS | BASE/MAIN FLOOR | 3 | 0 | 2015 | 1423.5 |
| | AGR | ATTACHED GARAGE | 3 | 0 | 2015 | 400.0 |
| | OWP | OPEN WOOD PORCH W/STEPS | 3 | 0 | 2015 | 100.0 |
| | OP2 | OPEN PORCH W/STEPS | 3 | 0 | 2015 | 82.5 |
Sketch
Property Image
Land
| 1 | 14 | SQ (08001-12000) | 0.0000 | 0.00 | 0.00 | 0.00 | 1.00 | $250,000 | $0 |
Roll Value History
| 2026 | N/A | N/A | N/A | N/A | N/A |
| 2025 | $310,797 | $250,000 | $0 | $560,797 | $560,797 |
| 2024 | $313,305 | $250,000 | $0 | $563,305 | $563,305 |
| 2023 | $315,811 | $210,000 | $0 | $525,811 | $525,811 |
| 2022 | $288,248 | $200,000 | $0 | $488,248 | $488,248 |
| 2021 | $244,725 | $140,000 | $0 | $384,725 | $384,725 |
| 2020 | $237,216 | $120,000 | $0 | $357,216 | $357,216 |
| 2019 | $173,273 | $170,000 | $0 | $343,273 | $343,273 |
| 2018 | $173,723 | $140,000 | $0 | $313,723 | $313,723 |
| 2017 | $174,623 | $90,000 | $0 | $264,623 | $264,623 |
| 2016 | $176,423 | $65,000 | $0 | $241,423 | $241,423 |
| 2015 | $116,758 | $45,000 | $0 | $161,758 | $161,758 |
| 2014 | $0 | $45,000 | $0 | $45,000 | $45,000 |
| 2013 | $0 | $46,000 | $0 | $46,000 | $46,000 |
| 2012 | $0 | $46,000 | $0 | $46,000 | $46,000 |
| 2011 | $0 | $46,000 | $0 | $46,000 | $46,000 |
| 2010 | $0 | $46,000 | $0 | $46,000 | $46,000 |
| 2009 | $0 | $50,000 | $0 | $50,000 | $50,000 |
| 2008 | $0 | $75,000 | $0 | $75,000 | $75,000 |
| 2007 | $0 | $85,000 | $0 | $85,000 | $85,000 |
Deed and Sales History
| 1 | 07/01/2019 | WD | Warranty Deed | CLARK, WILLIAM | TROUTVINE, JUSTIN | | | $360,000.00 | 39284 | 4466645 |
| 2 | 04/26/2018 | WD | Warranty Deed | DOWNING, MATTHEW | CLARK, WILLIAM | | | $330,000.00 | 33840 | 4443317 |
| 3 | 08/17/2015 | WD | Warranty Deed | SISCO, JARED | DOWNING, MATTHEW | | | $253,000.00 | 20999 | 4384413 |
| 4 | 04/22/2015 | WD | Warranty Deed | WORKMAN LIVING TRUST, ESTHER / WHITHAM | SISCO, JARED | | | $20,000.00 | 19333 | 4377342 |
| 5 | 03/04/1999 | QCD | Quit Claim Deed | WORKMAN, WHIT & | WORKMAN LIVING TRUST, ESTHER/W | | | $0.00 | 90818 | 99005749 |
| 6 | 12/01/1992 | QCD | Quit Claim Deed | PETTIBONE, JAMES W | WORKMAN, WHIT & | | | $2,725.00 | 24687 | 92023105 |
| 7 | 01/01/1900 | OTHER | Other - Misc. Documents | Unknown | PETTIBONE, JAMES W | | | $0.00 | 0 | 0 |
Payout Agreement
| No payout information available.. |