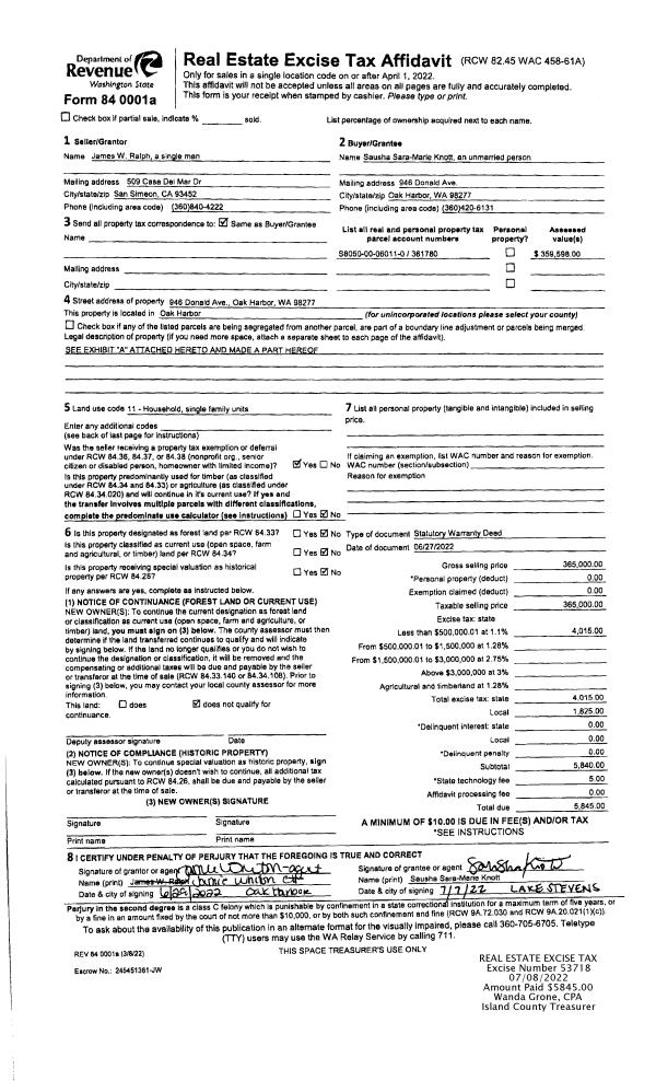
Property
Account |
| Property ID: | 217900 | Abbreviated Legal Description: | CCC 20 LOT 17 BLK 37 |
| Geographic ID: | S6250-20-37017-0 | Agent Code: | |
| Type: | Real | | |
| Tax Area: | 510 - APPRAISER-Stan/Cam Schl Dist, improved & 1 acre or less | Land Use Code | 11 |
| Open Space: | N | DFL | N |
| Historic Property: | N | Remodel Property: | N |
| Multi-Family Redevelopment: | N | | |
| Township: | | Section: | |
| Range: | |
Location |
| Address: | 1915 ELHARDT ST CAMANO ISLAND, WA 98282 | Mapsco: | |
| Neighborhood: | Cycle 5 | Map ID: | 933 |
| Neighborhood CD: | 5 |
Owner |
| Name: | KLAR, MARGIT C | Owner ID: | 269152 |
| Mailing Address: | 1915 ELHARDT ST CAMANO ISLAND, WA 98282 | % Ownership: | 100.0000000000% |
| | | Exemptions: | |
Taxes and Assessment Details
Values
| (+) Improvement Homesite Value: | + | $0 | |
| (+) Improvement Non-Homesite Value: | + | $292,706 | |
| (+) Land Homesite Value: | + | $0 | |
| (+) Land Non-Homesite Value: | + | $250,000 | |
| (+) Curr Use (HS): | + | $0 | $0 |
| (+) Curr Use (NHS): | + | $0 | $0 |
| | | -------------------------- | |
| (=) Market Value: | = | $542,706 | |
| (–) Productivity Loss: | – | $0 | |
| | | -------------------------- | |
| (=) Subtotal: | = | $542,706 | |
| (+) Senior Appraised Value: | + | $0 | |
| (+) Non-Senior Appraised Value: | + | $542,706 | |
| | | -------------------------- | |
| (=) Total Appraised Value: | = | $542,706 | |
| (–) Senior Exemption Loss: | – | $0 | |
| (–) Exemption Loss: | – | $0 | |
| | | -------------------------- | |
| (=) Taxable Value: | = | $542,706 | |
Taxing Jurisdiction
| Owner: | KLAR, MARGIT C | | |
| % Ownership: | 100.0000000000% | | |
| Total Value: | $542,706 | | |
| Tax Area: | 510 - APPRAISER-Stan/Cam Schl Dist, improved & 1 acre or less |
| CF | Conservation Futures | 0.0316035091 | $542,706 | $542,706 | $17.15 | | |
| EMS1 | Fire & Rescue Dist #1 Camano GEN (EMS) | 0.3677864386 | $542,706 | $542,706 | $199.60 | | |
| FIRE1 | Fire & Rescue Dist #1 Camano GEN | 1.2502910536 | $542,706 | $542,706 | $678.54 | | |
| FIRE1BOND | Fire & Rescue Dist #1 Camano BOND | 0.1570001679 | $542,706 | $542,706 | $85.20 | | |
| CE | County Current Expense | 0.3708482477 | $542,706 | $542,706 | $201.26 | | |
| CR | County Roads | 0.4584763726 | $542,706 | $542,706 | $248.82 | | |
| LCIB | Library Sno-Isle BOND (Camano Island) | 0.0396325772 | $542,706 | $542,706 | $21.51 | | |
| LIB | Library Sno-Isle GEN | 0.3153421757 | $542,706 | $542,706 | $171.14 | | |
| SCH205_401 | School 205-401 Enrichment | 1.2698420524 | $542,706 | $542,706 | $689.15 | | |
| SCH205BOND | School 205-401 BOND | 0.9396497583 | $542,706 | $542,706 | $509.95 | | |
| ST | State School | 1.3035497053 | $542,706 | $542,706 | $707.44 | | |
| ST2 | State School Part 2 | 0.8169543533 | $542,706 | $542,706 | $443.37 | | |
| | Total Tax Rate: | 7.3209764117 | | | | | |
| | | | | Taxes w/Current Exemptions: | $3,973.13 | | |
| | | | | Taxes w/o Exemptions: | $3,973.13 | | |
Improvement / Building
| Improvement #1: | RESIDENTIAL | State Code: | Y | 1296.0 sqft | Value: | $292,706 |
| Bathrooms: | 1.75 | Bedrooms: | 3 | | Ceiling: | DRYWALL PAINTED | Cooling: | HEAT PUMP/CONV/V | | Exterior Wall/Cover: | CEMENT FIBER | Floor Covering: | VINYL TILE/CARP 20-80 | | Floor Structure: | WOOD W/SUBFLOOR | Foundation: | CONCRETE | | Interior Finish: | DRYWALL PAINT | Plumbing Fixture Cnt: | 10 | | Roof Slope: | 5" IN 12" | Roof Structure/Cover: | CJ ASPHALT |
|
| | Type | Description | Class CD | Sub Class CD | Year Built | Area |
| | BAS | BASE/MAIN FLOOR | 3 | 0 | 2009 | 1296.0 |
| | AGR | ATTACHED GARAGE | 3 | 0 | 2009 | 400.0 |
| | OWP | OPEN WOOD PORCH W/STEPS | 3 | 0 | 2009 | 240.0 |
| | OWC | OPEN WOOD PORCH W/STEPS/ROOF/C | 3 | 0 | 2009 | 144.0 |
Sketch
Property Image
Land
| 1 | 14 | SQ (08001-12000) | 0.0000 | 0.00 | 0.00 | 0.00 | 1.00 | $250,000 | $0 |
Roll Value History
| 2026 | N/A | N/A | N/A | N/A | N/A |
| 2025 | $292,706 | $250,000 | $0 | $542,706 | $542,706 |
| 2024 | $294,962 | $250,000 | $0 | $544,962 | $544,962 |
| 2023 | $297,382 | $210,000 | $0 | $507,382 | $507,382 |
| 2022 | $271,469 | $200,000 | $0 | $471,469 | $471,469 |
| 2021 | $226,536 | $140,000 | $0 | $366,536 | $366,536 |
| 2020 | $219,519 | $120,000 | $0 | $339,519 | $339,519 |
| 2019 | $156,682 | $170,000 | $0 | $326,682 | $326,682 |
| 2018 | $157,111 | $140,000 | $0 | $297,111 | $297,111 |
| 2017 | $157,970 | $90,000 | $0 | $247,970 | $247,970 |
| 2016 | $159,688 | $65,000 | $0 | $224,688 | $224,688 |
| 2015 | $138,554 | $50,000 | $0 | $188,554 | $188,554 |
| 2014 | $140,010 | $50,000 | $0 | $190,010 | $190,010 |
| 2013 | $141,466 | $50,000 | $0 | $191,466 | $191,466 |
| 2012 | $142,922 | $56,000 | $0 | $198,922 | $198,922 |
| 2011 | $144,379 | $70,000 | $0 | $214,379 | $214,379 |
| 2010 | $149,384 | $70,000 | $0 | $219,384 | $219,384 |
| 2009 | $0 | $43,200 | $0 | $43,200 | $43,200 |
| 2008 | $0 | $75,000 | $0 | $75,000 | $75,000 |
| 2007 | $0 | $75,000 | $0 | $75,000 | $75,000 |
Deed and Sales History
| 1 | 01/28/2015 | WD | Warranty Deed | MOORE, JASON A | KLAR, MARGIT C | | | $230,000.00 | 18417 | 4372779 |
| 2 | 06/24/2014 | QCD | Quit Claim Deed | MOORE, JASON | MOORE, JASON A | | | $0.00 | 15854 | 4361702 |
| 3 | 05/20/2010 | WD | Warranty Deed | GOLDMARK ENTERPRISE INC, | MOORE, JASON | | | $207,950.00 | 1319 | 4274681 |
| 4 | 12/22/2009 | WD | Warranty Deed | CARTER, LEONARD A | GOLDMARK ENTERPRISE INC, | | | $34,000.00 | 93225 | 4266331 |
| 5 | 07/01/1985 | WD | Warranty Deed | ESTABROOK, GEORGE H | CARTER, LEONARD A | | | $2,450.00 | 52078 | 85008175 |
| 6 | 04/01/1979 | OTHER | Other - Misc. Documents | Unknown | ESTABROOK, GEORGE H | | | $2,500.00 | 91885 | 351358 |
Payout Agreement
| No payout information available.. |