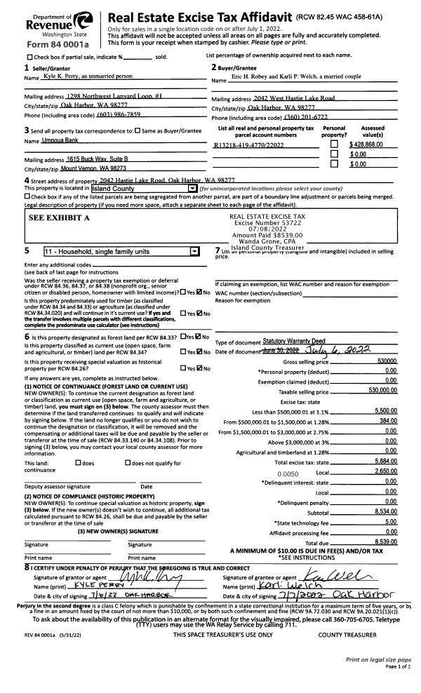
Property
Account |
| Property ID: | 217946 | Abbreviated Legal Description: | CCC 20 LOT 4 BLK 38 |
| Geographic ID: | S6250-20-38004-0 | Agent Code: | |
| Type: | Real | | |
| Tax Area: | 510 - APPRAISER-Stan/Cam Schl Dist, improved & 1 acre or less | Land Use Code | 11 |
| Open Space: | N | DFL | N |
| Historic Property: | N | Remodel Property: | N |
| Multi-Family Redevelopment: | N | | |
| Township: | | Section: | |
| Range: | |
Location |
| Address: | 1976 ELHARDT ST CAMANO ISLAND, WA 98282 | Mapsco: | |
| Neighborhood: | Cycle 5 | Map ID: | 933 |
| Neighborhood CD: | 5 |
Owner |
| Name: | SULLIVAN, KIMBERLY G | Owner ID: | 296946 |
| Mailing Address: | 1976 ELHARDT ST CAMANO ISLAND, WA 98282 | % Ownership: | 100.0000000000% |
| | | Exemptions: | |
Taxes and Assessment Details
Values
| (+) Improvement Homesite Value: | + | $0 | |
| (+) Improvement Non-Homesite Value: | + | $284,427 | |
| (+) Land Homesite Value: | + | $0 | |
| (+) Land Non-Homesite Value: | + | $250,000 | |
| (+) Curr Use (HS): | + | $0 | $0 |
| (+) Curr Use (NHS): | + | $0 | $0 |
| | | -------------------------- | |
| (=) Market Value: | = | $534,427 | |
| (–) Productivity Loss: | – | $0 | |
| | | -------------------------- | |
| (=) Subtotal: | = | $534,427 | |
| (+) Senior Appraised Value: | + | $0 | |
| (+) Non-Senior Appraised Value: | + | $534,427 | |
| | | -------------------------- | |
| (=) Total Appraised Value: | = | $534,427 | |
| (–) Senior Exemption Loss: | – | $0 | |
| (–) Exemption Loss: | – | $0 | |
| | | -------------------------- | |
| (=) Taxable Value: | = | $534,427 | |
Taxing Jurisdiction
| Owner: | SULLIVAN, KIMBERLY G | | |
| % Ownership: | 100.0000000000% | | |
| Total Value: | $534,427 | | |
| Tax Area: | 510 - APPRAISER-Stan/Cam Schl Dist, improved & 1 acre or less |
| CF | Conservation Futures | 0.0316035091 | $534,427 | $534,427 | $16.89 | | |
| EMS1 | Fire & Rescue Dist #1 Camano GEN (EMS) | 0.3677864386 | $534,427 | $534,427 | $196.56 | | |
| FIRE1 | Fire & Rescue Dist #1 Camano GEN | 1.2502910536 | $534,427 | $534,427 | $668.19 | | |
| FIRE1BOND | Fire & Rescue Dist #1 Camano BOND | 0.1570001679 | $534,427 | $534,427 | $83.91 | | |
| CE | County Current Expense | 0.3708482477 | $534,427 | $534,427 | $198.19 | | |
| CR | County Roads | 0.4584763726 | $534,427 | $534,427 | $245.02 | | |
| LCIB | Library Sno-Isle BOND (Camano Island) | 0.0396325772 | $534,427 | $534,427 | $21.18 | | |
| LIB | Library Sno-Isle GEN | 0.3153421757 | $534,427 | $534,427 | $168.53 | | |
| SCH205_401 | School 205-401 Enrichment | 1.2698420524 | $534,427 | $534,427 | $678.64 | | |
| SCH205BOND | School 205-401 BOND | 0.9396497583 | $534,427 | $534,427 | $502.17 | | |
| ST | State School | 1.3035497053 | $534,427 | $534,427 | $696.65 | | |
| ST2 | State School Part 2 | 0.8169543533 | $534,427 | $534,427 | $436.60 | | |
| | Total Tax Rate: | 7.3209764117 | | | | | |
| | | | | Taxes w/Current Exemptions: | $3,912.53 | | |
| | | | | Taxes w/o Exemptions: | $3,912.53 | | |
Improvement / Building
| Improvement #1: | RESIDENTIAL | State Code: | Y | 1306.0 sqft | Value: | $284,427 |
| Bathrooms: | 2 | Bedrooms: | 2 | | Ceiling: | DRYWALL PAINTED | Exterior Wall/Cover: | CEMENT FIBER | | Floor Covering: | CARPET/VINYL 80-20 | Floor Structure: | WOOD W/SUBFLOOR | | Foundation: | CONCRETE | Heating: | WALL HEAT ELECTRIC | | Interior Finish: | DRYWALL PAINT | Plumbing Fixture Cnt: | 9 | | Roof Slope: | 5" IN 12" | Roof Structure/Cover: | CJ ASPHALT |
|
| | Type | Description | Class CD | Sub Class CD | Year Built | Area |
| | BAS | BASE/MAIN FLOOR | 4 | 0 | 1993 | 1306.0 |
| | OP1 | OPEN PORCH SLAB | 4 | 0 | 1993 | 100.0 |
| | OP4 | OPEN PORCH W/CEILING-ROOF | 4 | 0 | 1993 | 42.0 |
| | AGR | ATTACHED GARAGE | 4 | 0 | 1993 | 440.0 |
Sketch
Property Image
Land
| 1 | 14 | SQ (08001-12000) | 0.0000 | 0.00 | 0.00 | 0.00 | 1.00 | $250,000 | $0 |
Roll Value History
| 2026 | N/A | N/A | N/A | N/A | N/A |
| 2025 | $284,427 | $250,000 | $0 | $534,427 | $534,427 |
| 2024 | $287,763 | $250,000 | $0 | $537,763 | $537,763 |
| 2023 | $291,099 | $210,000 | $0 | $501,099 | $501,099 |
| 2022 | $266,616 | $200,000 | $0 | $466,616 | $466,616 |
| 2021 | $234,463 | $140,000 | $0 | $374,463 | $374,463 |
| 2020 | $169,463 | $120,000 | $0 | $289,463 | $289,463 |
| 2019 | $121,183 | $170,000 | $0 | $291,183 | $291,183 |
| 2018 | $121,565 | $140,000 | $0 | $261,565 | $261,565 |
| 2017 | $122,330 | $90,000 | $0 | $212,330 | $212,330 |
| 2016 | $123,858 | $65,000 | $0 | $188,858 | $188,858 |
| 2015 | $113,216 | $50,000 | $0 | $163,216 | $163,216 |
| 2014 | $114,659 | $50,000 | $0 | $164,659 | $164,659 |
| 2013 | $116,102 | $50,000 | $0 | $166,102 | $166,102 |
| 2012 | $117,544 | $56,000 | $0 | $173,544 | $173,544 |
| 2011 | $118,986 | $70,000 | $0 | $188,986 | $188,986 |
| 2010 | $123,038 | $70,000 | $0 | $193,038 | $193,038 |
| 2009 | $137,370 | $90,000 | $0 | $227,370 | $227,370 |
| 2008 | $139,118 | $100,000 | $0 | $239,118 | $239,118 |
| 2007 | $140,845 | $100,000 | $0 | $240,845 | $240,845 |
Deed and Sales History
| 1 | 10/14/2020 | WD | Warranty Deed | HOSKINS, JEREMY CM | SULLIVAN, KIMBERLY G | | | $395,000.00 | 45241 | 4499496 |
| 2 | 07/01/2020 | BARGSLD | Bargain And Sale Deed | FEDERAL NATIONAL MORTGAGE ASSOCIATION | HOSKINS, JEREMY CM | | | $0.00 | 43646 | 4490419 |
| 3 | 10/02/2019 | SHERIFFD | Sheriff Deed | STONE TTEE, HAROLD | FEDERAL NATIONAL MORTGAGE ASSOCIATION | | | $0.00 | 40757 | 4473701 |
| 4 | 08/02/2007 | OTHER | Other - Misc. Documents | STONE, HAROLD E | STONE TTEE, HAROLD | | | $0.00 | 80288 | 0 |
| 5 | 09/01/1995 | QCD | Quit Claim Deed | STONE, HAROLD E | STONE, HAROLD E | | | $0.00 | 53367 | 95015526 |
| 6 | 03/01/1994 | WD | Warranty Deed | HILLS, GREGORY G | STONE, HAROLD E | | | $110,000.00 | 41173 | 94007513 |
| 7 | 05/01/1992 | QCD | Quit Claim Deed | HILLS, GREGORY G | HILLS, GREGORY G | | | $0.00 | 22037 | 92009725 |
| 8 | 12/01/1991 | QCD | Quit Claim Deed | KENNEDY, KATHLEEN | HILLS, GREGORY G | | | $0.00 | 20105 | 92000456 |
| 9 | 01/01/1990 | WD | Warranty Deed | MOGCK, OLIVER A | KENNEDY, KATHLEEN | | | $6,500.00 | 800 | 90002602 |
| 10 | 01/01/1900 | OTHER | Other - Misc. Documents | Unknown | MOGCK, OLIVER A | | | $0.00 | 0 | 0 |
Payout Agreement
| No payout information available.. |