Property
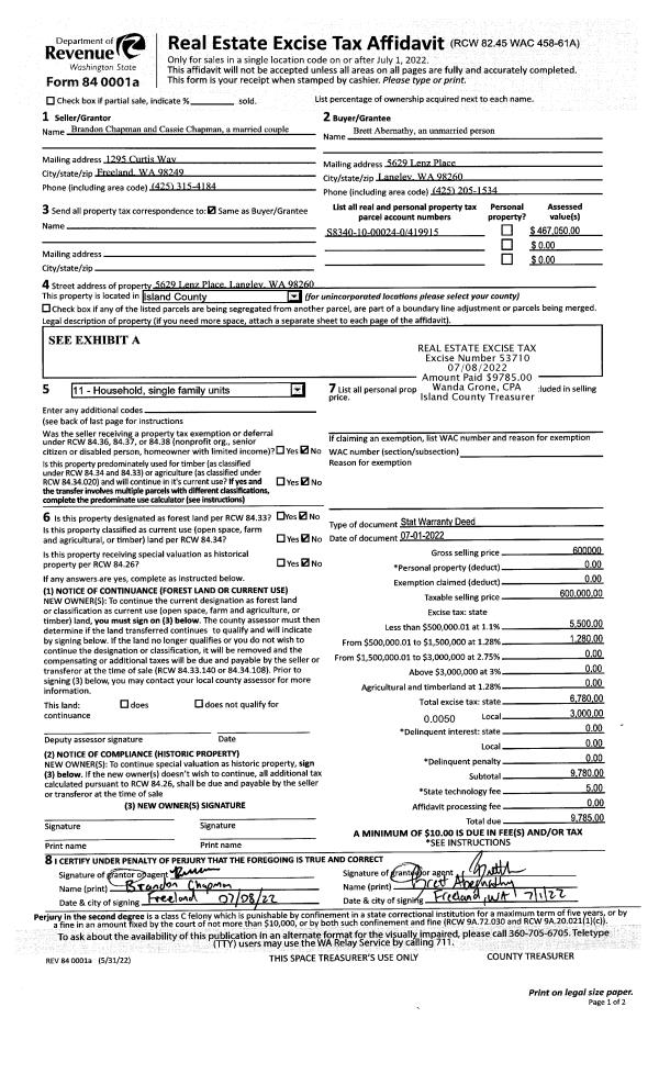
Account |
| Property ID: | 217973 | Abbreviated Legal Description: | CCC 20 LOT 7 BLK 38 |
| Geographic ID: | S6250-20-38007-0 | Agent Code: | |
| Type: | Real | | |
| Tax Area: | 510 - APPRAISER-Stan/Cam Schl Dist, improved & 1 acre or less | Land Use Code | 11 |
| Open Space: | N | DFL | N |
| Historic Property: | N | Remodel Property: | N |
| Multi-Family Redevelopment: | N | | |
| Township: | | Section: | |
| Range: | |
Location |
| Address: | 1962 ELHARDT ST CAMANO ISLAND, WA 98282 | Mapsco: | |
| Neighborhood: | Cycle 5 | Map ID: | 933 |
| Neighborhood CD: | 5 |
Owner |
| Name: | ROBINSON, JANE A | Owner ID: | 63286 |
| Mailing Address: | 1962 ELHARDT ST CAMANO ISLAND, WA 98282-8365 | % Ownership: | 100.0000000000% |
| | | Exemptions: | |
Taxes and Assessment Details
Values
| (+) Improvement Homesite Value: | + | $0 | |
| (+) Improvement Non-Homesite Value: | + | $291,336 | |
| (+) Land Homesite Value: | + | $0 | |
| (+) Land Non-Homesite Value: | + | $250,000 | |
| (+) Curr Use (HS): | + | $0 | $0 |
| (+) Curr Use (NHS): | + | $0 | $0 |
| | | -------------------------- | |
| (=) Market Value: | = | $541,336 | |
| (–) Productivity Loss: | – | $0 | |
| | | -------------------------- | |
| (=) Subtotal: | = | $541,336 | |
| (+) Senior Appraised Value: | + | $0 | |
| (+) Non-Senior Appraised Value: | + | $541,336 | |
| | | -------------------------- | |
| (=) Total Appraised Value: | = | $541,336 | |
| (–) Senior Exemption Loss: | – | $0 | |
| (–) Exemption Loss: | – | $0 | |
| | | -------------------------- | |
| (=) Taxable Value: | = | $541,336 | |
Taxing Jurisdiction
| Owner: | ROBINSON, JANE A | | |
| % Ownership: | 100.0000000000% | | |
| Total Value: | $541,336 | | |
| Tax Area: | 510 - APPRAISER-Stan/Cam Schl Dist, improved & 1 acre or less |
| CF | Conservation Futures | 0.0316035091 | $541,336 | $541,336 | $17.11 | | |
| EMS1 | Fire & Rescue Dist #1 Camano GEN (EMS) | 0.3677864386 | $541,336 | $541,336 | $199.10 | | |
| FIRE1 | Fire & Rescue Dist #1 Camano GEN | 1.2502910536 | $541,336 | $541,336 | $676.83 | | |
| FIRE1BOND | Fire & Rescue Dist #1 Camano BOND | 0.1570001679 | $541,336 | $541,336 | $84.99 | | |
| CE | County Current Expense | 0.3708482477 | $541,336 | $541,336 | $200.75 | | |
| CR | County Roads | 0.4584763726 | $541,336 | $541,336 | $248.19 | | |
| LCIB | Library Sno-Isle BOND (Camano Island) | 0.0396325772 | $541,336 | $541,336 | $21.45 | | |
| LIB | Library Sno-Isle GEN | 0.3153421757 | $541,336 | $541,336 | $170.71 | | |
| SCH205_401 | School 205-401 Enrichment | 1.2698420524 | $541,336 | $541,336 | $687.41 | | |
| SCH205BOND | School 205-401 BOND | 0.9396497583 | $541,336 | $541,336 | $508.67 | | |
| ST | State School | 1.3035497053 | $541,336 | $541,336 | $705.66 | | |
| ST2 | State School Part 2 | 0.8169543533 | $541,336 | $541,336 | $442.25 | | |
| | Total Tax Rate: | 7.3209764117 | | | | | |
| | | | | Taxes w/Current Exemptions: | $3,963.12 | | |
| | | | | Taxes w/o Exemptions: | $3,963.12 | | |
Improvement / Building
| Improvement #1: | RESIDENTIAL | State Code: | Y | 1679.0 sqft | Value: | $291,336 |
| Bathrooms: | 2 | Bedrooms: | 2 | | Ceiling: | DRYWALL PAINTED | Exterior Wall/Cover: | PLY/HARDBOARD T-111 | | Floor Covering: | CARPET/VINYL 80-20 | Floor Structure: | WOOD W/SUBFLOOR | | Foundation: | CONCRETE | Heating: | WALL HEAT ELECTRIC | | Interior Finish: | DRYWALL PAINT | Plumbing Fixture Cnt: | 10 | | Roof Slope: | 4" IN 12" | Roof Structure/Cover: | CJ ASPHALT |
|
| | Type | Description | Class CD | Sub Class CD | Year Built | Area |
| | BAS | BASE/MAIN FLOOR | 3 | 0 | 1991 | 1679.0 |
| | AGR | ATTACHED GARAGE | 3 | 0 | 1991 | 484.0 |
| | OWP | OPEN WOOD PORCH W/STEPS | 3 | 0 | 1991 | 264.0 |
| | OWC | OPEN WOOD PORCH W/STEPS/ROOF/C | 3 | 0 | 1991 | 28.0 |
| | ENP | ENCLOSED PORCH | 3 | 0 | 1991 | 63.0 |
Sketch
Property Image
Land
| 1 | 14 | SQ (08001-12000) | 0.0000 | 0.00 | 0.00 | 0.00 | 1.00 | $250,000 | $0 |
Roll Value History
| 2026 | N/A | N/A | N/A | N/A | N/A |
| 2025 | $291,336 | $250,000 | $0 | $541,336 | $541,336 |
| 2024 | $294,837 | $250,000 | $0 | $544,837 | $544,837 |
| 2023 | $298,335 | $210,000 | $0 | $508,335 | $508,335 |
| 2022 | $273,326 | $200,000 | $0 | $473,326 | $473,326 |
| 2021 | $212,865 | $140,000 | $0 | $352,865 | $352,865 |
| 2020 | $207,485 | $120,000 | $0 | $327,485 | $327,485 |
| 2019 | $151,562 | $170,000 | $0 | $321,562 | $321,562 |
| 2018 | $152,040 | $140,000 | $0 | $292,040 | $292,040 |
| 2017 | $152,997 | $90,000 | $0 | $242,997 | $242,997 |
| 2016 | $154,910 | $65,000 | $0 | $219,910 | $219,910 |
| 2015 | $143,435 | $50,000 | $0 | $193,435 | $193,435 |
| 2014 | $145,347 | $50,000 | $0 | $195,347 | $195,347 |
| 2013 | $147,261 | $50,000 | $0 | $197,261 | $197,261 |
| 2012 | $149,173 | $56,000 | $0 | $205,173 | $205,173 |
| 2011 | $151,085 | $70,000 | $0 | $221,085 | $221,085 |
| 2010 | $158,036 | $70,000 | $0 | $228,036 | $228,036 |
| 2009 | $175,147 | $90,000 | $0 | $265,147 | $265,147 |
| 2008 | $177,224 | $100,000 | $0 | $277,224 | $277,224 |
| 2007 | $179,355 | $100,000 | $0 | $279,355 | $279,355 |
Deed and Sales History
| 1 | 05/01/1990 | WD | Warranty Deed | WALTERS, FREDERICK E | ROBINSON, JANE A | | | $15,000.00 | 2851 | 90009284 |
| 2 | 01/01/1900 | OTHER | Other - Misc. Documents | Unknown | WALTERS, FREDERICK E | | | $0.00 | 0 | 0 |
Payout Agreement
| No payout information available.. |