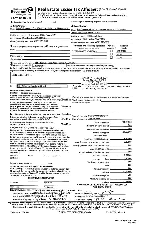
Property
Account |
| Property ID: | 218044 | Abbreviated Legal Description: | CCC 20 LOT 14 BLK 38 |
| Geographic ID: | S6250-20-38014-0 | Agent Code: | |
| Type: | Real | | |
| Tax Area: | 510 - APPRAISER-Stan/Cam Schl Dist, improved & 1 acre or less | Land Use Code | 11 |
| Open Space: | N | DFL | N |
| Historic Property: | N | Remodel Property: | N |
| Multi-Family Redevelopment: | N | | |
| Township: | | Section: | |
| Range: | |
Location |
| Address: | 498 DAN ST CAMANO ISLAND, WA 98282 | Mapsco: | |
| Neighborhood: | Cycle 5 | Map ID: | 933 |
| Neighborhood CD: | 5 |
Owner |
| Name: | MADONNA E DOCKEN AND ROGER D DOCKEN REVOCABLE LIVING TRUST | Owner ID: | 261156 |
| Mailing Address: | 254 N CAMANO RIDGE RD CAMANO ISLAND, WA 98282 | % Ownership: | 100.0000000000% |
| | | Exemptions: | |
Taxes and Assessment Details
Values
| (+) Improvement Homesite Value: | + | $0 | |
| (+) Improvement Non-Homesite Value: | + | $243,669 | |
| (+) Land Homesite Value: | + | $0 | |
| (+) Land Non-Homesite Value: | + | $250,000 | |
| (+) Curr Use (HS): | + | $0 | $0 |
| (+) Curr Use (NHS): | + | $0 | $0 |
| | | -------------------------- | |
| (=) Market Value: | = | $493,669 | |
| (–) Productivity Loss: | – | $0 | |
| | | -------------------------- | |
| (=) Subtotal: | = | $493,669 | |
| (+) Senior Appraised Value: | + | $0 | |
| (+) Non-Senior Appraised Value: | + | $493,669 | |
| | | -------------------------- | |
| (=) Total Appraised Value: | = | $493,669 | |
| (–) Senior Exemption Loss: | – | $0 | |
| (–) Exemption Loss: | – | $0 | |
| | | -------------------------- | |
| (=) Taxable Value: | = | $493,669 | |
Taxing Jurisdiction
| Owner: | MADONNA E DOCKEN AND ROGER D DOCKEN REVOCABLE LIVING TRUST | | |
| % Ownership: | 100.0000000000% | | |
| Total Value: | $493,669 | | |
| Tax Area: | 510 - APPRAISER-Stan/Cam Schl Dist, improved & 1 acre or less |
| CF | Conservation Futures | 0.0316035091 | $493,669 | $493,669 | $15.60 | | |
| EMS1 | Fire & Rescue Dist #1 Camano GEN (EMS) | 0.3677864386 | $493,669 | $493,669 | $181.56 | | |
| FIRE1 | Fire & Rescue Dist #1 Camano GEN | 1.2502910536 | $493,669 | $493,669 | $617.23 | | |
| FIRE1BOND | Fire & Rescue Dist #1 Camano BOND | 0.1570001679 | $493,669 | $493,669 | $77.51 | | |
| CE | County Current Expense | 0.3708482477 | $493,669 | $493,669 | $183.08 | | |
| CR | County Roads | 0.4584763726 | $493,669 | $493,669 | $226.34 | | |
| LCIB | Library Sno-Isle BOND (Camano Island) | 0.0396325772 | $493,669 | $493,669 | $19.57 | | |
| LIB | Library Sno-Isle GEN | 0.3153421757 | $493,669 | $493,669 | $155.67 | | |
| SCH205_401 | School 205-401 Enrichment | 1.2698420524 | $493,669 | $493,669 | $626.88 | | |
| SCH205BOND | School 205-401 BOND | 0.9396497583 | $493,669 | $493,669 | $463.88 | | |
| ST | State School | 1.3035497053 | $493,669 | $493,669 | $643.52 | | |
| ST2 | State School Part 2 | 0.8169543533 | $493,669 | $493,669 | $403.31 | | |
| | Total Tax Rate: | 7.3209764117 | | | | | |
| | | | | Taxes w/Current Exemptions: | $3,614.15 | | |
| | | | | Taxes w/o Exemptions: | $3,614.15 | | |
Improvement / Building
| Improvement #1: | RESIDENTIAL | State Code: | Y | 1344.0 sqft | Value: | $243,669 |
| Bathrooms: | 2 | Bedrooms: | 3 | | Ceiling: | DRYWALL PAINTED | Exterior Wall/Cover: | PLY/HARDBOARD T-111 | | Floor Covering: | CARPET/VINYL 80-20 | Floor Structure: | WOOD W/SUBFLOOR | | Foundation: | CONCRETE | Heating: | WALL HEAT ELECTRIC | | Interior Finish: | DRYWALL PAINT | Plumbing Fixture Cnt: | 9 | | Roof Slope: | 4" IN 12" | Roof Structure/Cover: | CJ ASPHALT |
|
| | Type | Description | Class CD | Sub Class CD | Year Built | Area |
| | BAS | BASE/MAIN FLOOR | 3 | 0 | 1995 | 1344.0 |
| | OP4 | OPEN PORCH W/CEILING-ROOF | 3 | 0 | 1995 | 138.0 |
| | AGR | ATTACHED GARAGE | 3 | 0 | 1995 | 462.0 |
Sketch
Property Image
Land
| 1 | 14 | SQ (08001-12000) | 0.0000 | 0.00 | 0.00 | 0.00 | 1.00 | $250,000 | $0 |
Roll Value History
| 2026 | N/A | N/A | N/A | N/A | N/A |
| 2025 | $243,669 | $250,000 | $0 | $493,669 | $493,669 |
| 2024 | $246,667 | $250,000 | $0 | $496,667 | $496,667 |
| 2023 | $249,665 | $210,000 | $0 | $459,665 | $459,665 |
| 2022 | $228,801 | $200,000 | $0 | $428,801 | $428,801 |
| 2021 | $188,642 | $140,000 | $0 | $328,642 | $328,642 |
| 2020 | $183,669 | $120,000 | $0 | $303,669 | $303,669 |
| 2019 | $131,736 | $170,000 | $0 | $301,736 | $301,736 |
| 2018 | $132,141 | $140,000 | $0 | $272,141 | $272,141 |
| 2017 | $132,951 | $90,000 | $0 | $222,951 | $222,951 |
| 2016 | $134,572 | $65,000 | $0 | $199,572 | $199,572 |
| 2015 | $120,517 | $50,000 | $0 | $170,517 | $170,517 |
| 2014 | $122,038 | $50,000 | $0 | $172,038 | $172,038 |
| 2013 | $123,558 | $50,000 | $0 | $173,558 | $173,558 |
| 2012 | $125,079 | $56,000 | $0 | $181,079 | $181,079 |
| 2011 | $126,599 | $70,000 | $0 | $196,599 | $196,599 |
| 2010 | $130,491 | $70,000 | $0 | $200,491 | $200,491 |
| 2009 | $146,600 | $90,000 | $0 | $236,600 | $236,600 |
| 2008 | $148,369 | $100,000 | $0 | $248,369 | $248,369 |
| 2007 | $150,178 | $100,000 | $0 | $250,178 | $250,178 |
Deed and Sales History
| 1 | 03/13/2013 | TRUSTEED | Trustee's Deed | DOCKEN, ROGER D / MADONNA C | MADONNA E DOCKEN AND ROGER D DOCKEN REVOCABLE LIVING TRUST | | | $0.00 | 10668 | 4335455 |
| 2 | 07/01/1992 | WD | Warranty Deed | FRANZEN, ROBERT F | DOCKEN, ROGER D | | | $13,800.00 | 23104 | 92015053 |
| 3 | 01/01/1900 | OTHER | Other - Misc. Documents | Unknown | FRANZEN, ROBERT F | | | $0.00 | 0 | 0 |
Payout Agreement
| No payout information available.. |