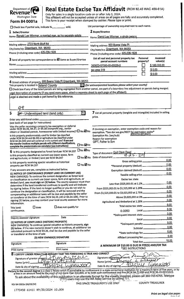
Property
Account |
| Property ID: | 21808 | Abbreviated Legal Description: | 45 - IN NW SW: BG NWCR LOT 1 BLK 4 PATTONS HIDE-AWAY 1 S0*E180'TPB S89*W150' S0*E 110' N89*E150'TO WLN LOT 3 BLK 4 PATTONS HIDE-AWAY 1 N0*W TPB TGW EZ 171D616 |
| Geographic ID: | R13218-254-0620 | Agent Code: | |
| Type: | Real | | |
| Tax Area: | 110 - APPRAISER-OH Schl Dist, outside OH, improved & 1 acre or less | Land Use Code | 12 |
| Open Space: | N | DFL | N |
| Historic Property: | N | Remodel Property: | N |
| Multi-Family Redevelopment: | N | | |
| Township: | 32 | Section: | 18 |
| Range: | R1 |
Location |
| Address: | 2357 WILLIAMS RD OAK HARBOR, WA 98277 | Mapsco: | |
| Neighborhood: | Cycle 1 | Map ID: | 137 |
| Neighborhood CD: | 1 |
Owner |
| Name: | SWACKHAMER, KEVIN | Owner ID: | 311401 |
| Mailing Address: | CARRIE SWACKHAMER 2357 WILLIAMS RD #6 OAK HARBOR, WA 98277 | % Ownership: | 100.0000000000% |
| | | Exemptions: | |
Taxes and Assessment Details
Values
| (+) Improvement Homesite Value: | + | $0 | |
| (+) Improvement Non-Homesite Value: | + | $402,819 | |
| (+) Land Homesite Value: | + | $0 | |
| (+) Land Non-Homesite Value: | + | $220,000 | |
| (+) Curr Use (HS): | + | $0 | $0 |
| (+) Curr Use (NHS): | + | $0 | $0 |
| | | -------------------------- | |
| (=) Market Value: | = | $622,819 | |
| (–) Productivity Loss: | – | $0 | |
| | | -------------------------- | |
| (=) Subtotal: | = | $622,819 | |
| (+) Senior Appraised Value: | + | $0 | |
| (+) Non-Senior Appraised Value: | + | $622,819 | |
| | | -------------------------- | |
| (=) Total Appraised Value: | = | $622,819 | |
| (–) Senior Exemption Loss: | – | $0 | |
| (–) Exemption Loss: | – | $0 | |
| | | -------------------------- | |
| (=) Taxable Value: | = | $622,819 | |
Taxing Jurisdiction
| Owner: | SWACKHAMER, KEVIN | | |
| % Ownership: | 100.0000000000% | | |
| Total Value: | $622,819 | | |
| Tax Area: | 110 - APPRAISER-OH Schl Dist, outside OH, improved & 1 acre or less |
| CF | Conservation Futures | 0.0316035091 | $622,819 | $622,819 | $19.68 | | |
| CEM1 | Cemetery #1 | 0.0040320932 | $622,819 | $622,819 | $2.51 | | |
| FIRE2 | Fire & Rescue Dist #2 N Whidbey GEN | 0.5475949600 | $622,819 | $622,819 | $341.05 | | |
| HOBOND | Hospital BOND | 0.1910887512 | $622,819 | $622,819 | $119.01 | | |
| HOGEN | Hospital GEN | 0.3902502903 | $622,819 | $622,819 | $243.06 | | |
| CE | County Current Expense | 0.3708482477 | $622,819 | $622,819 | $230.97 | | |
| CR | County Roads | 0.4584763726 | $622,819 | $622,819 | $285.55 | | |
| ISLANDEMS | Hospital GEN (EMS) | 0.5000000000 | $622,819 | $622,819 | $311.41 | | |
| LIB | Library Sno-Isle GEN | 0.3153421757 | $622,819 | $622,819 | $196.40 | | |
| NWHIDPRMT | P & R N Whidbey GEN | 0.2004466701 | $622,819 | $622,819 | $124.84 | | |
| SCH201MO | School 201 Enrichment | 1.8559231640 | $622,819 | $622,819 | $1,155.90 | | |
| ST | State School | 1.3035497053 | $622,819 | $622,819 | $811.88 | | |
| ST2 | State School Part 2 | 0.8169543533 | $622,819 | $622,819 | $508.81 | | |
| | Total Tax Rate: | 6.9861102925 | | | | | |
| | | | | Taxes w/Current Exemptions: | $4,351.07 | | |
| | | | | Taxes w/o Exemptions: | $4,351.07 | | |
Improvement / Building
| Improvement #1: | RESIDENTIAL | State Code: | A1 | 2636.0 sqft | Value: | $402,819 |
| Bathrooms: | 2.5 | Bedrooms: | 5 | | Ceiling: | DRY WALL SPRAYED | Exterior Wall/Cover: | PLY/HARDBOARD T-111 | | Floor Covering: | CARPET/VINYL 20-80 | Floor Structure: | WOOD W/SUBFLOOR | | Foundation: | CONCRETE | Heating: | BASEBOARD ELECTRIC | | Interior Finish: | DRYWALL PAINT | Plumbing Fixture Cnt: | 15 | | Roof Slope: | 3" IN 12" | Roof Structure/Cover: | CJ ALUMINIUM HEAVY |
|
| | Type | Description | Class CD | Sub Class CD | Year Built | Area |
| | BAS | BASE/MAIN FLOOR | 3 | 0 | 1968 | 2636.0 |
| | OP2 | OPEN PORCH W/STEPS | 3 | 0 | 1968 | 150.0 |
| | DGR | DETACHED GARAGE | 3 | 0 | 1968 | 960.0 |
| | UTY | STORAGE/UTILITY | 3 | 0 | 1968 | 308.0 |
Sketch
| No sketches available for this property. |
Property Image
Land
| 1 | 16 | AC (00.51-01.00) | 0.3800 | 16552.80 | 0.00 | 0.00 | 1.00 | $220,000 | $0 |
Roll Value History
| 2026 | N/A | N/A | N/A | N/A | N/A |
| 2025 | $402,819 | $220,000 | $0 | $622,819 | $622,819 |
| 2024 | $416,100 | $200,000 | $0 | $616,100 | $616,100 |
| 2023 | $322,335 | $200,000 | $0 | $522,335 | $522,335 |
| 2022 | $296,219 | $180,000 | $0 | $476,219 | $476,219 |
| 2021 | $261,367 | $125,000 | $0 | $386,367 | $386,367 |
| 2020 | $255,383 | $125,000 | $0 | $380,383 | $380,383 |
| 2019 | $188,676 | $180,000 | $0 | $368,676 | $368,676 |
| 2018 | $189,356 | $140,000 | $0 | $329,356 | $329,356 |
| 2017 | $177,116 | $120,000 | $0 | $297,116 | $297,116 |
| 2016 | $179,891 | $120,000 | $0 | $299,891 | $299,891 |
| 2015 | $182,667 | $75,000 | $0 | $257,667 | $257,667 |
| 2014 | $185,444 | $63,750 | $0 | $249,194 | $249,194 |
| 2013 | $188,220 | $63,750 | $0 | $251,970 | $251,970 |
| 2012 | $190,998 | $63,750 | $0 | $254,748 | $254,748 |
| 2011 | $206,355 | $75,000 | $0 | $281,355 | $281,355 |
| 2010 | $218,415 | $75,000 | $0 | $293,415 | $293,415 |
| 2009 | $227,681 | $90,000 | $0 | $317,681 | $317,681 |
| 2008 | $231,063 | $95,500 | $0 | $326,563 | $326,563 |
| 2007 | $234,443 | $95,450 | $0 | $329,893 | $329,893 |
Deed and Sales History
| 1 | 02/01/2024 | WD | Warranty Deed | WILLIAMS TTEE, ALMA B | SWACKHAMER, KEVIN | | | $689,000.00 | 59178 | 4569278 |
| 2 | 11/27/2019 | QCD | Quit Claim Deed | WILLIAMS, ALMA B | WILLIAMS TTEE, ALMA B | | | $0.00 | 41311 | 4476700 |
| 3 | 10/16/2019 | QCD | Quit Claim Deed | WILLIAMS, LLOYD A | WILLIAMS, ALMA B | | | $0.00 | 40721 | 4473546 |
| 4 | 01/01/1968 | TRUSTEED | Trustee's Deed | PATTON, LLOYD B | WILLIAMS, LLOYD A | | | $0.00 | 28882 | 0 |
| 5 | 01/01/1900 | OTHER | Other - Misc. Documents | Unknown | PATTON, LLOYD B | | | $0.00 | 0 | 0 |
Payout Agreement
| No payout information available.. |