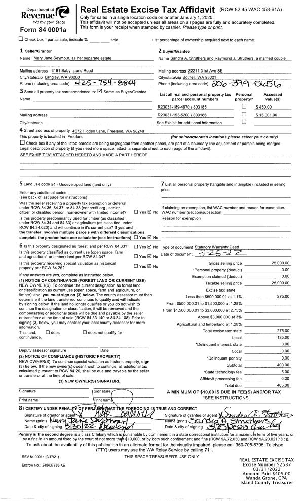
Property
Account |
| Property ID: | 218286 | Abbreviated Legal Description: | CCC 21 LOT 22 BLK 39 EX NELY 2' V6 SUR P205 AF#86016241 CC #86-2-00513-1 EX RAINBOW LANE |
| Geographic ID: | S6250-21-39022-0 | Agent Code: | |
| Type: | Real | | |
| Tax Area: | 510 - APPRAISER-Stan/Cam Schl Dist, improved & 1 acre or less | Land Use Code | 11 |
| Open Space: | N | DFL | N |
| Historic Property: | N | Remodel Property: | N |
| Multi-Family Redevelopment: | N | | |
| Township: | | Section: | |
| Range: | |
Location |
| Address: | 1453 CAROL ST CAMANO ISLAND, WA 98282 | Mapsco: | |
| Neighborhood: | Cycle 5 | Map ID: | 930 |
| Neighborhood CD: | 5 |
Owner |
| Name: | FOGLE TTEE, BARBARA DEAN | Owner ID: | 296873 |
| Mailing Address: | JOHN R MAY, TTEE 1453 CAROL ST CAMANO ISLAND, WA 98282 | % Ownership: | 100.0000000000% |
| | | Exemptions: | |
Taxes and Assessment Details
Values
| (+) Improvement Homesite Value: | + | $0 | |
| (+) Improvement Non-Homesite Value: | + | $475,734 | |
| (+) Land Homesite Value: | + | $0 | |
| (+) Land Non-Homesite Value: | + | $390,000 | |
| (+) Curr Use (HS): | + | $0 | $0 |
| (+) Curr Use (NHS): | + | $0 | $0 |
| | | -------------------------- | |
| (=) Market Value: | = | $865,734 | |
| (–) Productivity Loss: | – | $0 | |
| | | -------------------------- | |
| (=) Subtotal: | = | $865,734 | |
| (+) Senior Appraised Value: | + | $0 | |
| (+) Non-Senior Appraised Value: | + | $865,734 | |
| | | -------------------------- | |
| (=) Total Appraised Value: | = | $865,734 | |
| (–) Senior Exemption Loss: | – | $0 | |
| (–) Exemption Loss: | – | $0 | |
| | | -------------------------- | |
| (=) Taxable Value: | = | $865,734 | |
Taxing Jurisdiction
| Owner: | FOGLE TTEE, BARBARA DEAN | | |
| % Ownership: | 100.0000000000% | | |
| Total Value: | $865,734 | | |
| Tax Area: | 510 - APPRAISER-Stan/Cam Schl Dist, improved & 1 acre or less |
| CF | Conservation Futures | 0.0316035091 | $865,734 | $865,734 | $27.36 | | |
| EMS1 | Fire & Rescue Dist #1 Camano GEN (EMS) | 0.3677864386 | $865,734 | $865,734 | $318.41 | | |
| FIRE1 | Fire & Rescue Dist #1 Camano GEN | 1.2502910536 | $865,734 | $865,734 | $1,082.42 | | |
| FIRE1BOND | Fire & Rescue Dist #1 Camano BOND | 0.1570001679 | $865,734 | $865,734 | $135.92 | | |
| CE | County Current Expense | 0.3708482477 | $865,734 | $865,734 | $321.06 | | |
| CR | County Roads | 0.4584763726 | $865,734 | $865,734 | $396.92 | | |
| LCIB | Library Sno-Isle BOND (Camano Island) | 0.0396325772 | $865,734 | $865,734 | $34.31 | | |
| LIB | Library Sno-Isle GEN | 0.3153421757 | $865,734 | $865,734 | $273.00 | | |
| SCH205_401 | School 205-401 Enrichment | 1.2698420524 | $865,734 | $865,734 | $1,099.35 | | |
| SCH205BOND | School 205-401 BOND | 0.9396497583 | $865,734 | $865,734 | $813.49 | | |
| ST | State School | 1.3035497053 | $865,734 | $865,734 | $1,128.53 | | |
| ST2 | State School Part 2 | 0.8169543533 | $865,734 | $865,734 | $707.27 | | |
| | Total Tax Rate: | 7.3209764117 | | | | | |
| | | | | Taxes w/Current Exemptions: | $6,338.04 | | |
| | | | | Taxes w/o Exemptions: | $6,338.04 | | |
Improvement / Building
| Improvement #1: | RESIDENTIAL | State Code: | Y | 2187.9 sqft | Value: | $475,734 |
| Bathrooms: | 3 | Bedrooms: | 3 | | Ceiling: | DRYWALL PAINTED | Cooling: | HEAT PUMP/CONV/V | | Exterior Wall/Cover: | WOOD SIDING | Floor Covering: | HARDWOOD 100% | | Floor Structure: | WOOD W/SUBFLOOR | Foundation: | CONCRETE | | Interior Finish: | DRYWALL PAINT | Plumbing Fixture Cnt: | 12 | | Roof Slope: | 4" IN 12" | Roof Structure/Cover: | CJ ASPHALT |
|
| | Type | Description | Class CD | Sub Class CD | Year Built | Area |
| | BAS | BASE/MAIN FLOOR | 4 | 0 | 1987 | 1500.0 |
| | OP3 | OPEN PORCH W/ROOF | 4 | 0 | 1987 | 30.0 |
| | AGR | ATTACHED GARAGE | 4 | 0 | 1987 | 528.0 |
| | BGR | BASEMENT GARAGE | 4 | 0 | 1987 | 632.0 |
| | DWN | DOWNSTAIRS LIVING AREA | 4 | 0 | 1987 | 687.9 |
| | OWP | OPEN WOOD PORCH W/STEPS | 4 | 0 | 1987 | 448.0 |
Sketch
Property Image
Land
| 1 | 15 | SQ (12001-21780) | 0.0000 | 0.00 | 0.00 | 0.00 | 1.00 | $390,000 | $0 |
Roll Value History
| 2026 | N/A | N/A | N/A | N/A | N/A |
| 2025 | $475,734 | $390,000 | $0 | $865,734 | $865,734 |
| 2024 | $481,588 | $360,000 | $0 | $841,588 | $841,588 |
| 2023 | $487,443 | $330,000 | $0 | $817,443 | $817,443 |
| 2022 | $446,683 | $300,000 | $0 | $746,683 | $746,683 |
| 2021 | $370,928 | $200,000 | $0 | $570,928 | $570,928 |
| 2020 | $336,746 | $180,000 | $0 | $516,746 | $516,746 |
| 2019 | $255,059 | $230,000 | $0 | $485,059 | $485,059 |
| 2018 | $255,845 | $200,000 | $0 | $455,845 | $455,845 |
| 2017 | $257,481 | $200,000 | $0 | $457,481 | $457,481 |
| 2016 | $260,622 | $110,000 | $0 | $370,622 | $370,622 |
| 2015 | $258,815 | $80,000 | $0 | $338,815 | $338,815 |
| 2014 | $262,016 | $80,000 | $0 | $342,016 | $342,016 |
| 2013 | $265,217 | $80,000 | $0 | $345,217 | $345,217 |
| 2012 | $268,417 | $86,304 | $0 | $354,721 | $354,721 |
| 2011 | $271,618 | $107,880 | $0 | $379,498 | $379,498 |
| 2010 | $280,600 | $107,880 | $0 | $388,480 | $388,480 |
| 2009 | $289,100 | $130,000 | $0 | $419,100 | $419,100 |
| 2008 | $292,492 | $200,000 | $0 | $492,492 | $492,492 |
| 2007 | $274,995 | $125,000 | $0 | $399,995 | $399,995 |
Deed and Sales History
| 1 | 10/01/2020 | WD | Warranty Deed | SCISM, LYNN A | FOGLE TTEE, BARBARA DEAN | | | $613,000.00 | 45159 | 4498977 |
| 2 | 05/27/2003 | WD | Warranty Deed | JOHNSON, KLEMENS F | SCISM, LYNN A | | | $262,500.00 | 32338 | 4061251 |
| 3 | 02/01/1995 | OTHER | Other - Misc. Documents | JOHNSON, KLEMENS F | JOHNSON, KLEMENS F | | | $0.00 | 66284 | 0 |
| 4 | 01/01/1992 | QCD | Quit Claim Deed | JOHNSON, KLEMENS F | JOHNSON, KLEMENS F | | | $0.00 | 20348 | 92001617 |
| 5 | 05/01/1989 | WD | Warranty Deed | WESTERMAYER, SANDRO | JOHNSON, KLEMENS F | | | $175,000.00 | 91769 | 89006121 |
| 6 | 08/01/1986 | WD | Warranty Deed | RUSSELL, BRYANT W | WESTERMAYER, SANDRO | | | $19,000.00 | 62027 | 86009515 |
| 7 | 06/01/1979 | TRUSTEED | Trustee's Deed | PASCAL, PIERRE | RUSSELL, BRYANT W | | | $18,500.00 | 93492 | 355776 |
| 8 | 01/01/1900 | OTHER | Other - Misc. Documents | Unknown | PASCAL, PIERRE | | | $0.00 | 0 | 0 |
Payout Agreement
| No payout information available.. |