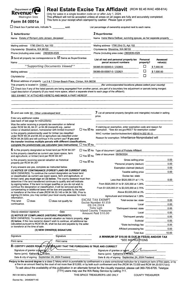
Property
Account |
| Property ID: | 218366 | Abbreviated Legal Description: | CCC 21 LOT 8 BLK 40 |
| Geographic ID: | S6250-21-40008-0 | Agent Code: | |
| Type: | Real | | |
| Tax Area: | 510 - APPRAISER-Stan/Cam Schl Dist, improved & 1 acre or less | Land Use Code | 11 |
| Open Space: | N | DFL | N |
| Historic Property: | N | Remodel Property: | N |
| Multi-Family Redevelopment: | N | | |
| Township: | | Section: | |
| Range: | |
Location |
| Address: | 1528 CAROL ST CAMANO ISLAND, WA 98282 | Mapsco: | |
| Neighborhood: | Cycle 5 | Map ID: | 930 |
| Neighborhood CD: | 5 |
Owner |
| Name: | BORCHERT, DEAN H | Owner ID: | 306679 |
| Mailing Address: | DEAN B. BORCHERT 1528 CAROL ST CAMANO ISLAND, WA 98282 | % Ownership: | 100.0000000000% |
| | | Exemptions: | |
Taxes and Assessment Details
Values
| (+) Improvement Homesite Value: | + | $0 | |
| (+) Improvement Non-Homesite Value: | + | $228,485 | |
| (+) Land Homesite Value: | + | $0 | |
| (+) Land Non-Homesite Value: | + | $250,000 | |
| (+) Curr Use (HS): | + | $0 | $0 |
| (+) Curr Use (NHS): | + | $0 | $0 |
| | | -------------------------- | |
| (=) Market Value: | = | $478,485 | |
| (–) Productivity Loss: | – | $0 | |
| | | -------------------------- | |
| (=) Subtotal: | = | $478,485 | |
| (+) Senior Appraised Value: | + | $0 | |
| (+) Non-Senior Appraised Value: | + | $478,485 | |
| | | -------------------------- | |
| (=) Total Appraised Value: | = | $478,485 | |
| (–) Senior Exemption Loss: | – | $0 | |
| (–) Exemption Loss: | – | $0 | |
| | | -------------------------- | |
| (=) Taxable Value: | = | $478,485 | |
Taxing Jurisdiction
| Owner: | BORCHERT, DEAN H | | |
| % Ownership: | 100.0000000000% | | |
| Total Value: | $478,485 | | |
| Tax Area: | 510 - APPRAISER-Stan/Cam Schl Dist, improved & 1 acre or less |
| CF | Conservation Futures | 0.0316035091 | $478,485 | $478,485 | $15.12 | | |
| EMS1 | Fire & Rescue Dist #1 Camano GEN (EMS) | 0.3677864386 | $478,485 | $478,485 | $175.98 | | |
| FIRE1 | Fire & Rescue Dist #1 Camano GEN | 1.2502910536 | $478,485 | $478,485 | $598.25 | | |
| FIRE1BOND | Fire & Rescue Dist #1 Camano BOND | 0.1570001679 | $478,485 | $478,485 | $75.12 | | |
| CE | County Current Expense | 0.3708482477 | $478,485 | $478,485 | $177.45 | | |
| CR | County Roads | 0.4584763726 | $478,485 | $478,485 | $219.37 | | |
| LCIB | Library Sno-Isle BOND (Camano Island) | 0.0396325772 | $478,485 | $478,485 | $18.96 | | |
| LIB | Library Sno-Isle GEN | 0.3153421757 | $478,485 | $478,485 | $150.89 | | |
| SCH205_401 | School 205-401 Enrichment | 1.2698420524 | $478,485 | $478,485 | $607.60 | | |
| SCH205BOND | School 205-401 BOND | 0.9396497583 | $478,485 | $478,485 | $449.61 | | |
| ST | State School | 1.3035497053 | $478,485 | $478,485 | $623.73 | | |
| ST2 | State School Part 2 | 0.8169543533 | $478,485 | $478,485 | $390.90 | | |
| | Total Tax Rate: | 7.3209764117 | | | | | |
| | | | | Taxes w/Current Exemptions: | $3,502.98 | | |
| | | | | Taxes w/o Exemptions: | $3,502.98 | | |
Improvement / Building
| Improvement #1: | RESIDENTIAL | State Code: | Y | 1496.0 sqft | Value: | $228,485 |
| Bathrooms: | 2 | Bedrooms: | 2 | | Ceiling: | DRYWALL PAINTED | Exterior Wall/Cover: | PLY/HARDBOARD T-111 | | Floor Covering: | CARPET/VINYL 80-20 | Floor Structure: | WOOD W/SUBFLOOR | | Foundation: | CONCRETE | Heating: | WALL HEAT ELECTRIC | | Interior Finish: | DRYWALL PAINT | Plumbing Fixture Cnt: | 9 | | Roof Slope: | 5" IN 12" | Roof Structure/Cover: | CJ ASPHALT |
|
| | Type | Description | Class CD | Sub Class CD | Year Built | Area |
| | BAS | BASE/MAIN FLOOR | 3 | 0 | 1990 | 1496.0 |
| | OWP | OPEN WOOD PORCH W/STEPS | 3 | 0 | 1990 | 80.0 |
| | OWP | OPEN WOOD PORCH W/STEPS | 3 | 0 | 1990 | 120.0 |
| | ENP | ENCLOSED PORCH | 3 | 0 | 1990 | 272.0 |
| | UTY | STORAGE/UTILITY | 3 | 0 | 1990 | 160.0 |
Sketch
Property Image
Land
| 1 | 14 | SQ (08001-12000) | 0.0000 | 0.00 | 0.00 | 0.00 | 1.00 | $250,000 | $0 |
Roll Value History
| 2026 | N/A | N/A | N/A | N/A | N/A |
| 2025 | $228,485 | $250,000 | $0 | $478,485 | $478,485 |
| 2024 | $231,523 | $250,000 | $0 | $481,523 | $481,523 |
| 2023 | $234,559 | $210,000 | $0 | $444,559 | $444,559 |
| 2022 | $215,149 | $200,000 | $0 | $415,149 | $415,149 |
| 2021 | $184,689 | $140,000 | $0 | $324,689 | $324,689 |
| 2020 | $180,027 | $120,000 | $0 | $300,027 | $300,027 |
| 2019 | $129,300 | $170,000 | $0 | $299,300 | $299,300 |
| 2018 | $129,709 | $140,000 | $0 | $269,709 | $269,709 |
| 2017 | $130,524 | $90,000 | $0 | $220,524 | $220,524 |
| 2016 | $132,156 | $65,000 | $0 | $197,156 | $197,156 |
| 2015 | $125,135 | $50,000 | $0 | $175,135 | $175,135 |
| 2014 | $126,811 | $50,000 | $0 | $176,811 | $176,811 |
| 2013 | $128,486 | $50,000 | $0 | $178,486 | $178,486 |
| 2012 | $130,160 | $56,000 | $0 | $186,160 | $186,160 |
| 2011 | $131,835 | $70,000 | $0 | $201,835 | $201,835 |
| 2010 | $138,901 | $70,000 | $0 | $208,901 | $208,901 |
| 2009 | $139,357 | $90,000 | $0 | $229,357 | $229,357 |
| 2008 | $141,156 | $118,000 | $0 | $259,156 | $259,156 |
| 2007 | $142,954 | $118,000 | $0 | $260,954 | $260,954 |
Deed and Sales History
| 1 | 11/08/2022 | QCD | Quit Claim Deed | BORCHERT, DEAN H | BORCHERT, DEAN H | | | $0.00 | 55147 | 4553800 |
Payout Agreement
| No payout information available.. |