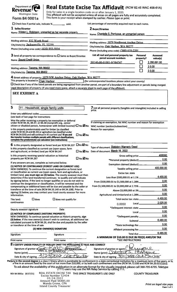
Property
Account |
| Property ID: | 218730 | Abbreviated Legal Description: | CCC 22 LOT 6 BLK 43 |
| Geographic ID: | S6250-22-43006-0 | Agent Code: | |
| Type: | Real | | |
| Tax Area: | 510 - APPRAISER-Stan/Cam Schl Dist, improved & 1 acre or less | Land Use Code | 11 |
| Open Space: | N | DFL | N |
| Historic Property: | N | Remodel Property: | N |
| Multi-Family Redevelopment: | N | | |
| Township: | | Section: | |
| Range: | |
Location |
| Address: | 1545 WATKINS DR CAMANO ISLAND, WA 98282 | Mapsco: | |
| Neighborhood: | Cycle 5 | Map ID: | 930 |
| Neighborhood CD: | 5 |
Owner |
| Name: | MECKNA, PAULA M | Owner ID: | 63360 |
| Mailing Address: | 1545 WATKINS DR CAMANO ISLAND, WA 98282 | % Ownership: | 100.0000000000% |
| | | Exemptions: | |
Taxes and Assessment Details
Values
| (+) Improvement Homesite Value: | + | $0 | |
| (+) Improvement Non-Homesite Value: | + | $326,742 | |
| (+) Land Homesite Value: | + | $0 | |
| (+) Land Non-Homesite Value: | + | $310,000 | |
| (+) Curr Use (HS): | + | $0 | $0 |
| (+) Curr Use (NHS): | + | $0 | $0 |
| | | -------------------------- | |
| (=) Market Value: | = | $636,742 | |
| (–) Productivity Loss: | – | $0 | |
| | | -------------------------- | |
| (=) Subtotal: | = | $636,742 | |
| (+) Senior Appraised Value: | + | $0 | |
| (+) Non-Senior Appraised Value: | + | $636,742 | |
| | | -------------------------- | |
| (=) Total Appraised Value: | = | $636,742 | |
| (–) Senior Exemption Loss: | – | $0 | |
| (–) Exemption Loss: | – | $0 | |
| | | -------------------------- | |
| (=) Taxable Value: | = | $636,742 | |
Taxing Jurisdiction
| Owner: | MECKNA, PAULA M | | |
| % Ownership: | 100.0000000000% | | |
| Total Value: | $636,742 | | |
| Tax Area: | 510 - APPRAISER-Stan/Cam Schl Dist, improved & 1 acre or less |
| CF | Conservation Futures | 0.0316035091 | $636,742 | $636,742 | $20.12 | | |
| EMS1 | Fire & Rescue Dist #1 Camano GEN (EMS) | 0.3677864386 | $636,742 | $636,742 | $234.19 | | |
| FIRE1 | Fire & Rescue Dist #1 Camano GEN | 1.2502910536 | $636,742 | $636,742 | $796.11 | | |
| FIRE1BOND | Fire & Rescue Dist #1 Camano BOND | 0.1570001679 | $636,742 | $636,742 | $99.97 | | |
| CE | County Current Expense | 0.3708482477 | $636,742 | $636,742 | $236.13 | | |
| CR | County Roads | 0.4584763726 | $636,742 | $636,742 | $291.93 | | |
| LCIB | Library Sno-Isle BOND (Camano Island) | 0.0396325772 | $636,742 | $636,742 | $25.24 | | |
| LIB | Library Sno-Isle GEN | 0.3153421757 | $636,742 | $636,742 | $200.79 | | |
| SCH205_401 | School 205-401 Enrichment | 1.2698420524 | $636,742 | $636,742 | $808.56 | | |
| SCH205BOND | School 205-401 BOND | 0.9396497583 | $636,742 | $636,742 | $598.31 | | |
| ST | State School | 1.3035497053 | $636,742 | $636,742 | $830.02 | | |
| ST2 | State School Part 2 | 0.8169543533 | $636,742 | $636,742 | $520.19 | | |
| | Total Tax Rate: | 7.3209764117 | | | | | |
| | | | | Taxes w/Current Exemptions: | $4,661.56 | | |
| | | | | Taxes w/o Exemptions: | $4,661.56 | | |
Improvement / Building
| Improvement #1: | RESIDENTIAL | State Code: | Y | 1694.9 sqft | Value: | $326,742 |
| Bathrooms: | 2 | Bedrooms: | 2 | | Ceiling: | DRYWALL PAINTED | Cooling: | HEAT PUMP/CONV/V | | Exterior Wall/Cover: | WOOD SIDING | Floor Covering: | CARPET/VINYL 80-20 | | Floor Structure: | WOOD W/SUBFLOOR | Foundation: | CONCRETE | | Interior Finish: | DRYWALL PAINT | Plumbing Fixture Cnt: | 10 | | Roof Slope: | 3" IN 12" | Roof Structure/Cover: | CJ ASPHALT |
|
| | Type | Description | Class CD | Sub Class CD | Year Built | Area |
| | BAS | BASE/MAIN FLOOR | 4 | 0 | 1995 | 1093.9 |
| | OP1 | OPEN PORCH SLAB | 4 | 0 | 1995 | 160.0 |
| | BIG | BUILT IN GARAGE | 4 | 0 | 1995 | 440.0 |
| | OWP | OPEN WOOD PORCH W/STEPS | 4 | 0 | 1995 | 60.0 |
| | OWC | OPEN WOOD PORCH W/STEPS/ROOF/C | 4 | 0 | 1995 | 198.5 |
| | DWN | DOWNSTAIRS LIVING AREA | 4 | 0 | 1995 | 601.0 |
| | UTY | STORAGE/UTILITY | 4 | 0 | 1995 | 171.5 |
| | OWP | OPEN WOOD PORCH W/STEPS | 4 | 0 | 1995 | 77.9 |
| | ENP | ENCLOSED PORCH | 4 | 0 | 1995 | 52.0 |
Sketch
Property Image
Land
| 1 | 14 | SQ (08001-12000) | 0.0000 | 0.00 | 0.00 | 0.00 | 1.00 | $310,000 | $0 |
Roll Value History
| 2026 | N/A | N/A | N/A | N/A | N/A |
| 2025 | $326,742 | $310,000 | $0 | $636,742 | $636,742 |
| 2024 | $331,081 | $280,000 | $0 | $611,081 | $611,081 |
| 2023 | $335,426 | $275,000 | $0 | $610,426 | $610,426 |
| 2022 | $307,665 | $250,000 | $0 | $557,665 | $557,665 |
| 2021 | $235,431 | $180,000 | $0 | $415,431 | $415,431 |
| 2020 | $229,636 | $150,000 | $0 | $379,636 | $379,636 |
| 2019 | $168,518 | $200,000 | $0 | $368,518 | $368,518 |
| 2018 | $169,049 | $170,000 | $0 | $339,049 | $339,049 |
| 2017 | $170,044 | $125,000 | $0 | $295,044 | $295,044 |
| 2016 | $172,169 | $90,000 | $0 | $262,169 | $262,169 |
| 2015 | $168,582 | $60,000 | $0 | $228,582 | $228,582 |
| 2014 | $170,676 | $60,000 | $0 | $230,676 | $230,676 |
| 2013 | $172,771 | $60,000 | $0 | $232,771 | $232,771 |
| 2012 | $174,865 | $60,000 | $0 | $234,865 | $234,865 |
| 2011 | $176,958 | $75,000 | $0 | $251,958 | $251,958 |
| 2010 | $185,653 | $75,000 | $0 | $260,653 | $260,653 |
| 2009 | $190,564 | $90,000 | $0 | $280,564 | $280,564 |
| 2008 | $192,867 | $118,000 | $0 | $310,867 | $310,867 |
| 2007 | $195,171 | $118,000 | $0 | $313,171 | $313,171 |
Deed and Sales History
| 1 | 04/08/2004 | WD | Warranty Deed | LASH, MARIAN K | MECKNA, PAULA M | | | $237,500.00 | 41754 | 4098959 |
| 2 | 09/01/1994 | WD | Warranty Deed | CHAMBERS, WILLIAM H | LASH, MARIAN K | | | $37,000.00 | 44036 | 94020811 |
| 3 | 10/01/1978 | OTHER | Other - Misc. Documents | Unknown | CHAMBERS, WILLIAM H | | | $15,500.00 | 85400 | 342383 |
Payout Agreement
| No payout information available.. |