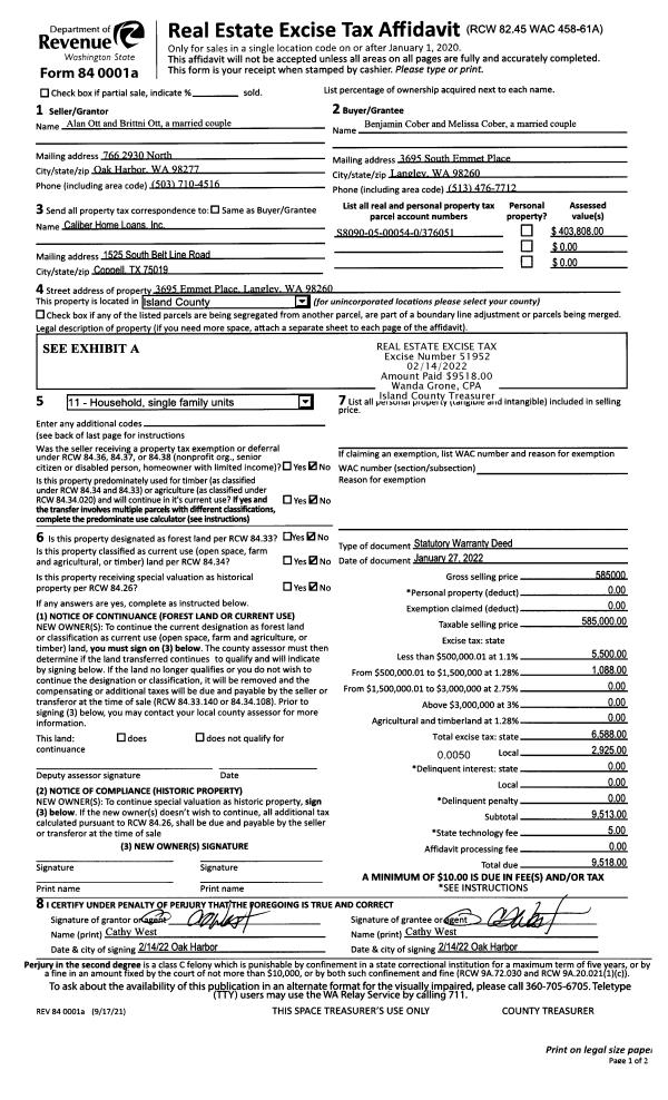
Property
Account |
| Property ID: | 218838 | Abbreviated Legal Description: | CCC 22 LOT 16 BLK 43 |
| Geographic ID: | S6250-22-43016-0 | Agent Code: | |
| Type: | Real | | |
| Tax Area: | 510 - APPRAISER-Stan/Cam Schl Dist, improved & 1 acre or less | Land Use Code | 11 |
| Open Space: | N | DFL | N |
| Historic Property: | N | Remodel Property: | N |
| Multi-Family Redevelopment: | N | | |
| Township: | | Section: | |
| Range: | |
Location |
| Address: | 1492 THOMPSON DR CAMANO ISLAND, WA 98282 | Mapsco: | |
| Neighborhood: | Cycle 5 | Map ID: | 930 |
| Neighborhood CD: | 5 |
Owner |
| Name: | BEATTIE, TERESA | Owner ID: | 289050 |
| Mailing Address: | JOSEPH BEATTIE 530 NE 131ST PL SEATTLE, WA 98125 | % Ownership: | 100.0000000000% |
| | | Exemptions: | |
Taxes and Assessment Details
Values
| (+) Improvement Homesite Value: | + | $0 | |
| (+) Improvement Non-Homesite Value: | + | $269,181 | |
| (+) Land Homesite Value: | + | $0 | |
| (+) Land Non-Homesite Value: | + | $390,000 | |
| (+) Curr Use (HS): | + | $0 | $0 |
| (+) Curr Use (NHS): | + | $0 | $0 |
| | | -------------------------- | |
| (=) Market Value: | = | $659,181 | |
| (–) Productivity Loss: | – | $0 | |
| | | -------------------------- | |
| (=) Subtotal: | = | $659,181 | |
| (+) Senior Appraised Value: | + | $0 | |
| (+) Non-Senior Appraised Value: | + | $659,181 | |
| | | -------------------------- | |
| (=) Total Appraised Value: | = | $659,181 | |
| (–) Senior Exemption Loss: | – | $0 | |
| (–) Exemption Loss: | – | $0 | |
| | | -------------------------- | |
| (=) Taxable Value: | = | $659,181 | |
Taxing Jurisdiction
| Owner: | BEATTIE, TERESA | | |
| % Ownership: | 100.0000000000% | | |
| Total Value: | $659,181 | | |
| Tax Area: | 510 - APPRAISER-Stan/Cam Schl Dist, improved & 1 acre or less |
| CF | Conservation Futures | 0.0316035091 | $659,181 | $659,181 | $20.83 | | |
| EMS1 | Fire & Rescue Dist #1 Camano GEN (EMS) | 0.3677864386 | $659,181 | $659,181 | $242.44 | | |
| FIRE1 | Fire & Rescue Dist #1 Camano GEN | 1.2502910536 | $659,181 | $659,181 | $824.17 | | |
| FIRE1BOND | Fire & Rescue Dist #1 Camano BOND | 0.1570001679 | $659,181 | $659,181 | $103.49 | | |
| CE | County Current Expense | 0.3708482477 | $659,181 | $659,181 | $244.46 | | |
| CR | County Roads | 0.4584763726 | $659,181 | $659,181 | $302.22 | | |
| LCIB | Library Sno-Isle BOND (Camano Island) | 0.0396325772 | $659,181 | $659,181 | $26.13 | | |
| LIB | Library Sno-Isle GEN | 0.3153421757 | $659,181 | $659,181 | $207.87 | | |
| SCH205_401 | School 205-401 Enrichment | 1.2698420524 | $659,181 | $659,181 | $837.06 | | |
| SCH205BOND | School 205-401 BOND | 0.9396497583 | $659,181 | $659,181 | $619.40 | | |
| ST | State School | 1.3035497053 | $659,181 | $659,181 | $859.28 | | |
| ST2 | State School Part 2 | 0.8169543533 | $659,181 | $659,181 | $538.52 | | |
| | Total Tax Rate: | 7.3209764117 | | | | | |
| | | | | Taxes w/Current Exemptions: | $4,825.87 | | |
| | | | | Taxes w/o Exemptions: | $4,825.87 | | |
Improvement / Building
| Improvement #1: | RESIDENTIAL | State Code: | Y | 1596.0 sqft | Value: | $269,181 |
| Bathrooms: | 2 | Bedrooms: | 2 | | Ceiling: | DRYWALL PAINTED | Exterior Wall/Cover: | PLY/HARDBOARD T-111 | | Floor Covering: | CARPET/VINYL 20-80 | Floor Structure: | WOOD W/SUBFLOOR | | Foundation: | CONCRETE | Heating: | WALL HEAT ELECTRIC | | Interior Finish: | DRYWALL PAINT | Plumbing Fixture Cnt: | 9 | | Roof Slope: | 4" IN 12" | Roof Structure/Cover: | CJ ASPHALT |
|
| | Type | Description | Class CD | Sub Class CD | Year Built | Area |
| | BAS | BASE/MAIN FLOOR | 3 | 0 | 1993 | 1596.0 |
| | AGR | ATTACHED GARAGE | 3 | 0 | 1993 | 230.0 |
| | UTY | STORAGE/UTILITY | 3 | 0 | 1993 | 128.0 |
| | OWP | OPEN WOOD PORCH W/STEPS | 3 | 0 | 1993 | 88.0 |
| | OWP | OPEN WOOD PORCH W/STEPS | 3 | 0 | 1993 | 55.0 |
Sketch
Property Image
Land
| 1 | 14 | SQ (08001-12000) | 0.0000 | 0.00 | 0.00 | 0.00 | 1.00 | $390,000 | $0 |
Roll Value History
| 2026 | N/A | N/A | N/A | N/A | N/A |
| 2025 | $269,181 | $390,000 | $0 | $659,181 | $659,181 |
| 2024 | $272,578 | $360,000 | $0 | $632,578 | $632,578 |
| 2023 | $275,975 | $330,000 | $0 | $605,975 | $605,975 |
| 2022 | $252,964 | $300,000 | $0 | $552,964 | $552,964 |
| 2021 | $210,124 | $200,000 | $0 | $410,124 | $410,124 |
| 2020 | $204,863 | $180,000 | $0 | $384,863 | $384,863 |
| 2019 | $149,644 | $230,000 | $0 | $379,644 | $379,644 |
| 2018 | $150,106 | $200,000 | $0 | $350,106 | $57,598 |
| 2017 | $151,026 | $200,000 | $0 | $351,026 | $57,598 |
| 2016 | $152,867 | $110,000 | $0 | $262,867 | $57,598 |
| 2015 | $135,955 | $80,000 | $0 | $215,955 | $57,598 |
| 2014 | $137,697 | $80,000 | $0 | $217,697 | $57,598 |
| 2013 | $139,440 | $80,000 | $0 | $219,440 | $57,598 |
| 2012 | $141,184 | $86,304 | $0 | $227,488 | $57,598 |
| 2011 | $142,928 | $107,880 | $0 | $250,808 | $57,598 |
| 2010 | $149,786 | $107,880 | $0 | $257,666 | $57,598 |
| 2009 | $159,541 | $130,000 | $0 | $289,541 | $57,598 |
| 2008 | $161,478 | $146,000 | $0 | $307,478 | $57,598 |
| 2007 | $163,414 | $146,000 | $0 | $309,414 | $57,598 |
Deed and Sales History
| 1 | 03/06/2019 | WD | Warranty Deed | MORGENSTERN, WAYNE / KARIN | BEATTIE, TERESA | | | $360,000.00 | 37808 | 4460221 |
| 2 | 09/01/1994 | WD | Warranty Deed | DIEL, STEPHEN A | MORGENSTERN, WAYNE/KARIN | | | $86,000.00 | 43683 | 94019432 |
| 3 | 05/01/1992 | WD | Warranty Deed | PLATTER, DAVID & | DIEL, STEPHEN A | | | $37,500.00 | 22147 | 92010247 |
| 4 | 04/01/1992 | WD | Warranty Deed | MITCHELL, JOHN A | PLATTER, DAVID & | | | $6,500.00 | 22009 | 92009598 |
| 5 | 01/01/1900 | OTHER | Other - Misc. Documents | Unknown | MITCHELL, JOHN A | | | $0.00 | 0 | 0 |
Payout Agreement
| No payout information available.. |