Property
Account |
| Property ID: | 218927 | Abbreviated Legal Description: | CCC 22 LOT 25 BLK 43 |
| Geographic ID: | S6250-22-43025-0 | Agent Code: | |
| Type: | Real | | |
| Tax Area: | 510 - APPRAISER-Stan/Cam Schl Dist, improved & 1 acre or less | Land Use Code | 11 |
| Open Space: | N | DFL | N |
| Historic Property: | N | Remodel Property: | N |
| Multi-Family Redevelopment: | N | | |
| Township: | | Section: | |
| Range: | |
Location |
| Address: | 1536 THOMPSON DR CAMANO ISLAND, WA 98282 | Mapsco: | |
| Neighborhood: | Cycle 5 | Map ID: | 930 |
| Neighborhood CD: | 5 |
Owner |
| Name: | ORWILER, TERESA L | Owner ID: | 63379 |
| Mailing Address: | 1536 THOMPSON DR CAMANO ISLAND, WA 98282 | % Ownership: | 100.0000000000% |
| | | Exemptions: | |
Taxes and Assessment Details
Values
| (+) Improvement Homesite Value: | + | $0 | |
| (+) Improvement Non-Homesite Value: | + | $220,732 | |
| (+) Land Homesite Value: | + | $0 | |
| (+) Land Non-Homesite Value: | + | $310,000 | |
| (+) Curr Use (HS): | + | $0 | $0 |
| (+) Curr Use (NHS): | + | $0 | $0 |
| | | -------------------------- | |
| (=) Market Value: | = | $530,732 | |
| (–) Productivity Loss: | – | $0 | |
| | | -------------------------- | |
| (=) Subtotal: | = | $530,732 | |
| (+) Senior Appraised Value: | + | $0 | |
| (+) Non-Senior Appraised Value: | + | $530,732 | |
| | | -------------------------- | |
| (=) Total Appraised Value: | = | $530,732 | |
| (–) Senior Exemption Loss: | – | $0 | |
| (–) Exemption Loss: | – | $0 | |
| | | -------------------------- | |
| (=) Taxable Value: | = | $530,732 | |
Taxing Jurisdiction
| Owner: | ORWILER, TERESA L | | |
| % Ownership: | 100.0000000000% | | |
| Total Value: | $530,732 | | |
| Tax Area: | 510 - APPRAISER-Stan/Cam Schl Dist, improved & 1 acre or less |
| CF | Conservation Futures | 0.0316035091 | $530,732 | $530,732 | $16.77 | | |
| EMS1 | Fire & Rescue Dist #1 Camano GEN (EMS) | 0.3677864386 | $530,732 | $530,732 | $195.20 | | |
| FIRE1 | Fire & Rescue Dist #1 Camano GEN | 1.2502910536 | $530,732 | $530,732 | $663.57 | | |
| FIRE1BOND | Fire & Rescue Dist #1 Camano BOND | 0.1570001679 | $530,732 | $530,732 | $83.33 | | |
| CE | County Current Expense | 0.3708482477 | $530,732 | $530,732 | $196.82 | | |
| CR | County Roads | 0.4584763726 | $530,732 | $530,732 | $243.33 | | |
| LCIB | Library Sno-Isle BOND (Camano Island) | 0.0396325772 | $530,732 | $530,732 | $21.03 | | |
| LIB | Library Sno-Isle GEN | 0.3153421757 | $530,732 | $530,732 | $167.36 | | |
| SCH205_401 | School 205-401 Enrichment | 1.2698420524 | $530,732 | $530,732 | $673.95 | | |
| SCH205BOND | School 205-401 BOND | 0.9396497583 | $530,732 | $530,732 | $498.70 | | |
| ST | State School | 1.3035497053 | $530,732 | $530,732 | $691.84 | | |
| ST2 | State School Part 2 | 0.8169543533 | $530,732 | $530,732 | $433.58 | | |
| | Total Tax Rate: | 7.3209764117 | | | | | |
| | | | | Taxes w/Current Exemptions: | $3,885.48 | | |
| | | | | Taxes w/o Exemptions: | $3,885.48 | | |
Improvement / Building
| Improvement #1: | RESIDENTIAL | State Code: | Y | 1390.0 sqft | Value: | $220,732 |
| Bathrooms: | 2 | Bedrooms: | 2 | | Ceiling: | DRYWALL PAINTED | Exterior Wall/Cover: | PLY/HARDBOARD T-111 | | Floor Covering: | CARPET/VINYL 80-20 | Floor Structure: | WOOD W/SUBFLOOR | | Foundation: | CONCRETE | Heating: | WALL HEAT ELECTRIC | | Interior Finish: | DRYWALL PAINT | Plumbing Fixture Cnt: | 9 | | Roof Slope: | 5" IN 12" | Roof Structure/Cover: | CJ ASPHALT |
|
| | Type | Description | Class CD | Sub Class CD | Year Built | Area |
| | BAS | BASE/MAIN FLOOR | 3 | 0 | 1991 | 1390.0 |
| | AGR | ATTACHED GARAGE | 3 | 0 | 1991 | 400.0 |
| | OWP | OPEN WOOD PORCH W/STEPS | 3 | 0 | 1991 | 124.0 |
| | OWP | OPEN WOOD PORCH W/STEPS | 3 | 0 | 1991 | 48.0 |
| | OWC | OPEN WOOD PORCH W/STEPS/ROOF/C | 3 | 0 | 1991 | 125.0 |
Sketch
Property Image
Land
| 1 | 14 | SQ (08001-12000) | 0.0000 | 0.00 | 0.00 | 0.00 | 1.00 | $310,000 | $0 |
Roll Value History
| 2026 | N/A | N/A | N/A | N/A | N/A |
| 2025 | $220,732 | $310,000 | $0 | $530,732 | $530,732 |
| 2024 | $223,590 | $280,000 | $0 | $503,590 | $503,590 |
| 2023 | $226,447 | $275,000 | $0 | $501,447 | $501,447 |
| 2022 | $207,632 | $250,000 | $0 | $457,632 | $457,632 |
| 2021 | $173,807 | $180,000 | $0 | $353,807 | $353,807 |
| 2020 | $169,334 | $150,000 | $0 | $319,334 | $319,334 |
| 2019 | $120,714 | $200,000 | $0 | $320,714 | $320,714 |
| 2018 | $121,093 | $170,000 | $0 | $291,093 | $291,093 |
| 2017 | $121,855 | $125,000 | $0 | $246,855 | $246,855 |
| 2016 | $123,378 | $90,000 | $0 | $213,378 | $213,378 |
| 2015 | $115,814 | $60,000 | $0 | $175,814 | $175,814 |
| 2014 | $117,338 | $60,000 | $0 | $177,338 | $177,338 |
| 2013 | $118,862 | $60,000 | $0 | $178,862 | $178,862 |
| 2012 | $120,384 | $60,000 | $0 | $180,384 | $180,384 |
| 2011 | $121,908 | $75,000 | $0 | $196,908 | $196,908 |
| 2010 | $128,077 | $75,000 | $0 | $203,077 | $203,077 |
| 2009 | $143,991 | $130,000 | $0 | $273,991 | $273,991 |
| 2008 | $145,691 | $125,000 | $0 | $270,691 | $270,691 |
| 2007 | $147,430 | $125,000 | $0 | $272,430 | $272,430 |
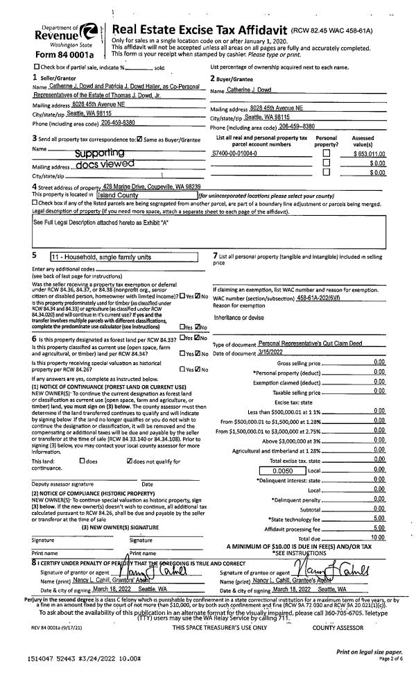
Deed and Sales History
| 1 | 07/16/2009 | WD | Warranty Deed | ANDERSON, DAVID L | ORWILER, TERESA L | | | $235,000.00 | 91669 | 4257017 |
| 2 | 07/01/1993 | WD | Warranty Deed | FISHER, SID | ANDERSON, DAVID L | | | $125,000.00 | 32679 | 93013855 |
| 3 | 04/01/1990 | WD | Warranty Deed | DUNCAN, LOUISA W | FISHER, SID | | | $25,000.00 | 2556 | 90008253 |
| 4 | 01/01/1900 | OTHER | Other - Misc. Documents | Unknown | DUNCAN, LOUISA W | | | $0.00 | 0 | 0 |
Payout Agreement
| No payout information available.. |