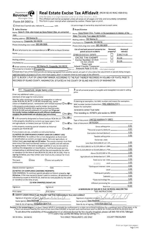
Property
Account |
| Property ID: | 219187 | Abbreviated Legal Description: | CCC 22 LOT 4 BLK 45 |
| Geographic ID: | S6250-22-45004-0 | Agent Code: | |
| Type: | Real | | |
| Tax Area: | 510 - APPRAISER-Stan/Cam Schl Dist, improved & 1 acre or less | Land Use Code | 11 |
| Open Space: | N | DFL | N |
| Historic Property: | N | Remodel Property: | N |
| Multi-Family Redevelopment: | N | | |
| Township: | | Section: | |
| Range: | |
Location |
| Address: | 1473 CRESTVIEW DR CAMANO ISLAND, WA 98282 | Mapsco: | |
| Neighborhood: | Cycle 5 | Map ID: | 930 |
| Neighborhood CD: | 5 |
Owner |
| Name: | SCHMIDT, CATHERINE | Owner ID: | 311312 |
| Mailing Address: | 1473 CRESTVIEW DR CAMANO ISLAND, WA 98282 | % Ownership: | 100.0000000000% |
| | | Exemptions: | |
Taxes and Assessment Details
Values
| (+) Improvement Homesite Value: | + | $0 | |
| (+) Improvement Non-Homesite Value: | + | $329,858 | |
| (+) Land Homesite Value: | + | $0 | |
| (+) Land Non-Homesite Value: | + | $390,000 | |
| (+) Curr Use (HS): | + | $0 | $0 |
| (+) Curr Use (NHS): | + | $0 | $0 |
| | | -------------------------- | |
| (=) Market Value: | = | $719,858 | |
| (–) Productivity Loss: | – | $0 | |
| | | -------------------------- | |
| (=) Subtotal: | = | $719,858 | |
| (+) Senior Appraised Value: | + | $0 | |
| (+) Non-Senior Appraised Value: | + | $719,858 | |
| | | -------------------------- | |
| (=) Total Appraised Value: | = | $719,858 | |
| (–) Senior Exemption Loss: | – | $0 | |
| (–) Exemption Loss: | – | $0 | |
| | | -------------------------- | |
| (=) Taxable Value: | = | $719,858 | |
Taxing Jurisdiction
| Owner: | SCHMIDT, CATHERINE | | |
| % Ownership: | 100.0000000000% | | |
| Total Value: | $719,858 | | |
| Tax Area: | 510 - APPRAISER-Stan/Cam Schl Dist, improved & 1 acre or less |
| CF | Conservation Futures | 0.0316035091 | $719,858 | $719,858 | $22.75 | | |
| EMS1 | Fire & Rescue Dist #1 Camano GEN (EMS) | 0.3677864386 | $719,858 | $719,858 | $264.75 | | |
| FIRE1 | Fire & Rescue Dist #1 Camano GEN | 1.2502910536 | $719,858 | $719,858 | $900.03 | | |
| FIRE1BOND | Fire & Rescue Dist #1 Camano BOND | 0.1570001679 | $719,858 | $719,858 | $113.02 | | |
| CE | County Current Expense | 0.3708482477 | $719,858 | $719,858 | $266.96 | | |
| CR | County Roads | 0.4584763726 | $719,858 | $719,858 | $330.04 | | |
| LCIB | Library Sno-Isle BOND (Camano Island) | 0.0396325772 | $719,858 | $719,858 | $28.53 | | |
| LIB | Library Sno-Isle GEN | 0.3153421757 | $719,858 | $719,858 | $227.00 | | |
| SCH205_401 | School 205-401 Enrichment | 1.2698420524 | $719,858 | $719,858 | $914.11 | | |
| SCH205BOND | School 205-401 BOND | 0.9396497583 | $719,858 | $719,858 | $676.41 | | |
| ST | State School | 1.3035497053 | $719,858 | $719,858 | $938.37 | | |
| ST2 | State School Part 2 | 0.8169543533 | $719,858 | $719,858 | $588.09 | | |
| | Total Tax Rate: | 7.3209764117 | | | | | |
| | | | | Taxes w/Current Exemptions: | $5,270.06 | | |
| | | | | Taxes w/o Exemptions: | $5,270.06 | | |
Improvement / Building
| Improvement #1: | RESIDENTIAL | State Code: | Y | 1882.0 sqft | Value: | $329,858 |
| Bathrooms: | 1.75 | Bedrooms: | 2 | | Ceiling: | DRY WALL SPRAYED | Cooling: | HEAT PUMP/CONV/V | | Exterior Wall/Cover: | PLY/HARDBOARD T-111 | Floor Covering: | CARPET/VINYL 20-80 | | Floor Structure: | WOOD W/SUBFLOOR | Foundation: | CONCRETE | | Interior Finish: | DRYWALL PAINT | Plumbing Fixture Cnt: | 9 | | Roof Slope: | 4" IN 12" | Roof Structure/Cover: | BEAM ROLL COMPOSITION |
|
| | Type | Description | Class CD | Sub Class CD | Year Built | Area |
| | BAS | BASE/MAIN FLOOR | 3 | 0 | 1976 | 1882.0 |
| | OP4 | OPEN PORCH W/CEILING-ROOF | 3 | 0 | 1976 | 24.0 |
| | OWP | OPEN WOOD PORCH W/STEPS | 3 | 0 | 1976 | 984.0 |
| | AGR | ATTACHED GARAGE | 3 | 0 | 1976 | 576.0 |
Sketch
Property Image
Land
| 1 | 15 | SQ (12001-21780) | 0.0000 | 0.00 | 0.00 | 0.00 | 1.00 | $390,000 | $0 |
Roll Value History
| 2026 | N/A | N/A | N/A | N/A | N/A |
| 2025 | $329,858 | $390,000 | $0 | $719,858 | $719,858 |
| 2024 | $333,639 | $360,000 | $0 | $693,639 | $693,639 |
| 2023 | $322,298 | $330,000 | $0 | $652,298 | $652,298 |
| 2022 | $295,272 | $300,000 | $0 | $595,272 | $595,272 |
| 2021 | $242,884 | $200,000 | $0 | $442,884 | $442,884 |
| 2020 | $236,918 | $180,000 | $0 | $416,918 | $416,918 |
| 2019 | $178,206 | $230,000 | $0 | $408,206 | $408,206 |
| 2018 | $178,742 | $200,000 | $0 | $378,742 | $378,742 |
| 2017 | $179,813 | $200,000 | $0 | $379,813 | $379,813 |
| 2016 | $181,952 | $130,000 | $0 | $311,952 | $311,952 |
| 2015 | $144,826 | $130,000 | $0 | $274,826 | $274,826 |
| 2014 | $147,090 | $130,000 | $0 | $277,090 | $277,090 |
| 2013 | $149,352 | $130,000 | $0 | $279,352 | $279,352 |
| 2012 | $151,615 | $138,384 | $0 | $289,999 | $289,999 |
| 2011 | $153,878 | $172,980 | $0 | $326,858 | $326,858 |
| 2010 | $163,629 | $172,980 | $0 | $336,609 | $336,609 |
| 2009 | $173,354 | $200,000 | $0 | $373,354 | $373,354 |
| 2008 | $175,815 | $230,000 | $0 | $405,815 | $405,815 |
| 2007 | $178,275 | $146,000 | $0 | $324,275 | $324,275 |
Deed and Sales History
| 1 | 01/29/2024 | WD | Warranty Deed | OLSON, SCOTT | SCHMIDT, CATHERINE | | | $842,000.00 | 59110 | 4568999 |
| 2 | 02/23/2016 | WD | Warranty Deed | MURESAN, DAVID D | OLSON, SCOTT | | | $323,000.00 | 23345 | 4395016 |
| 3 | 01/13/2006 | ESTSEPPROP | Establish Separate Property | MURESAN, DAVID M | MURESAN, DAVID M | | | $0.00 | 60316 | 4160635 |
| 4 | 01/13/2006 | WD | Warranty Deed | MURESAN, DAVID | MURESAN, DAVID M | | | $350,000.00 | 60315 | 4160634 |
| 5 | 05/25/1999 | WD | Warranty Deed | AXELSON, LILLIAN E | MURESAN, DAVID | | | $195,000.00 | 92037 | 99012869 |
| 6 | 04/01/1986 | OTHER | Other - Misc. Documents | AXELSON, CLIFFORD M | AXELSON, LILLIAN E | | | $0.00 | 61594 | 0 |
| 7 | 01/01/1900 | OTHER | Other - Misc. Documents | Unknown | AXELSON, CLIFFORD M | | | $0.00 | 0 | 0 |
Payout Agreement
| No payout information available.. |