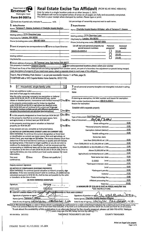
Property
Account |
| Property ID: | 219212 | Abbreviated Legal Description: | CCC 22 LOT 7 BLK 45 |
| Geographic ID: | S6250-22-45007-0 | Agent Code: | |
| Type: | Real | | |
| Tax Area: | 510 - APPRAISER-Stan/Cam Schl Dist, improved & 1 acre or less | Land Use Code | 11 |
| Open Space: | N | DFL | N |
| Historic Property: | N | Remodel Property: | N |
| Multi-Family Redevelopment: | N | | |
| Township: | | Section: | |
| Range: | |
Location |
| Address: | 1457 CRESTVIEW DR CAMANO ISLAND, WA 98282 | Mapsco: | |
| Neighborhood: | Cycle 5 | Map ID: | 930 |
| Neighborhood CD: | 5 |
Owner |
| Name: | MAMOLITO, SAMUEL P | Owner ID: | 256455 |
| Mailing Address: | PO BOX 927 STANWOOD, WA 98292 | % Ownership: | 100.0000000000% |
| | | Exemptions: | SNR/DSBL |
Taxes and Assessment Details
Values
| (+) Improvement Homesite Value: | + | $187,270 | |
| (+) Improvement Non-Homesite Value: | + | $0 | |
| (+) Land Homesite Value: | + | $390,000 | |
| (+) Land Non-Homesite Value: | + | $0 | |
| (+) Curr Use (HS): | + | $0 | $0 |
| (+) Curr Use (NHS): | + | $0 | $0 |
| | | -------------------------- | |
| (=) Market Value: | = | $577,270 | |
| (–) Productivity Loss: | – | $0 | |
| | | -------------------------- | |
| (=) Subtotal: | = | $577,270 | |
| (+) Senior Appraised Value: | + | $249,562 | |
| (+) Non-Senior Appraised Value: | + | $0 | |
| | | -------------------------- | |
| (=) Total Appraised Value: | = | $249,562 | |
| (–) Senior Exemption Loss: | – | $149,737 | |
| (–) Exemption Loss: | – | $0 | |
| | | -------------------------- | |
| (=) Taxable Value: | = | $99,825 | |
Taxing Jurisdiction
| Owner: | MAMOLITO, SAMUEL P | | |
| % Ownership: | 100.0000000000% | | |
| Total Value: | $577,270 | | |
| Tax Area: | 510 - APPRAISER-Stan/Cam Schl Dist, improved & 1 acre or less |
| CF | Conservation Futures | 0.0316035091 | $577,270 | $99,825 | $3.15 | | |
| EMS1 | Fire & Rescue Dist #1 Camano GEN (EMS) | 0.3677864386 | $577,270 | $99,825 | $36.71 | | |
| FIRE1 | Fire & Rescue Dist #1 Camano GEN | 1.2502910536 | $577,270 | $99,825 | $124.81 | | |
| FIRE1BOND | Fire & Rescue Dist #1 Camano BOND | 0.0000000000 | $577,270 | $0 | $0.00 | | |
| CE | County Current Expense | 0.3708482477 | $577,270 | $99,825 | $37.02 | | |
| CR | County Roads | 0.4584763726 | $577,270 | $99,825 | $45.77 | | |
| LCIB | Library Sno-Isle BOND (Camano Island) | 0.0000000000 | $577,270 | $0 | $0.00 | | |
| LIB | Library Sno-Isle GEN | 0.3153421757 | $577,270 | $99,825 | $31.48 | | |
| SCH205_401 | School 205-401 Enrichment | 0.0000000000 | $577,270 | $0 | $0.00 | | |
| SCH205BOND | School 205-401 BOND | 0.0000000000 | $577,270 | $0 | $0.00 | | |
| ST | State School | 1.3035497053 | $577,270 | $99,825 | $130.13 | | |
| ST2 | State School Part 2 | 0.0000000000 | $577,270 | $0 | $0.00 | | |
| | Total Tax Rate: | 4.0978975026 | | | | | |
| | | | | Taxes w/Current Exemptions: | $409.07 | | |
| | | | | Taxes w/o Exemptions: | $4,226.17 | | |
Improvement / Building
| Improvement #1: | RESIDENTIAL | State Code: | Y | 1234.0 sqft | Value: | $187,270 |
| Bathrooms: | 1 | Bedrooms: | 1 | | Ceiling: | DRY WALL SPRAYED | Exterior Wall/Cover: | PLY/HARDBOARD T-111 | | Floor Covering: | HARDWOOD 100% | Floor Structure: | WOOD W/SUBFLOOR | | Foundation: | CONCRETE | Heating: | BASEBOARD ELECTRIC | | Interior Finish: | DRYWALL PAINT | Plumbing Fixture Cnt: | 6 | | Roof Slope: | 4" IN 12" | Roof Structure/Cover: | CJ ASPHALT |
|
| | Type | Description | Class CD | Sub Class CD | Year Built | Area |
| | BAS | BASE/MAIN FLOOR | 3 | 0 | 1972 | 1234.0 |
| | UB8 | BASEMENT UNFINISHED 8" | 3 | 0 | 1972 | 1234.0 |
| | OP1 | OPEN PORCH SLAB | 3 | 0 | 1972 | 408.0 |
| | OP4 | OPEN PORCH W/CEILING-ROOF | 3 | 0 | 1972 | 65.0 |
| | DGR | DETACHED GARAGE | 3 | 0 | 1972 | 660.0 |
| | OP4 | OPEN PORCH W/CEILING-ROOF | 3 | 0 | 1972 | 14.0 |
| | OWP | OPEN WOOD PORCH W/STEPS | 3 | 0 | 1972 | 288.0 |
Sketch
Property Image
Land
| 1 | 15 | SQ (12001-21780) | 0.0000 | 0.00 | 0.00 | 0.00 | 1.00 | $390,000 | $0 |
Roll Value History
| 2026 | N/A | N/A | N/A | N/A | N/A |
| 2025 | $187,270 | $390,000 | $0 | $577,270 | $99,825 |
| 2024 | $194,583 | $360,000 | $0 | $554,583 | $99,825 |
| 2023 | $198,044 | $330,000 | $0 | $528,044 | $99,825 |
| 2022 | $182,469 | $300,000 | $0 | $482,469 | $179,562 |
| 2021 | $147,531 | $200,000 | $0 | $347,531 | $179,562 |
| 2020 | $144,865 | $180,000 | $0 | $324,865 | $179,562 |
| 2019 | $104,878 | $230,000 | $0 | $334,878 | $179,562 |
| 2018 | $105,336 | $200,000 | $0 | $305,336 | $179,562 |
| 2017 | $106,251 | $200,000 | $0 | $306,251 | $179,562 |
| 2016 | $108,083 | $130,000 | $0 | $238,083 | $168,083 |
| 2015 | $105,526 | $130,000 | $0 | $235,526 | $165,526 |
| 2014 | $107,410 | $130,000 | $0 | $237,410 | $237,410 |
| 2013 | $109,295 | $130,000 | $0 | $239,295 | $239,295 |
| 2012 | $111,178 | $138,384 | $0 | $249,562 | $249,562 |
| 2011 | $125,433 | $172,980 | $0 | $298,413 | $298,413 |
| 2010 | $136,632 | $172,980 | $0 | $309,612 | $309,612 |
| 2009 | $142,723 | $200,000 | $0 | $342,723 | $342,723 |
| 2008 | $144,772 | $230,000 | $0 | $374,772 | $374,772 |
| 2007 | $146,822 | $146,000 | $0 | $292,822 | $292,822 |
Deed and Sales History
| 1 | 12/13/2011 | WD | Warranty Deed | WALSH, MARTIN J | MAMOLITO, SAMUEL P | | | $163,200.00 | 6450 | 4306850 |
| 2 | 01/31/2008 | QCD | Quit Claim Deed | WALSH, SHERRY S | WALSH, MARTIN J | | | $0.00 | 80285 | 4221120 |
| 3 | 02/01/1982 | REC | Real Estate Contract | REINHOLT, PAUL K | WALSH, SHERRY S | | | $1.00 | 20334 | 393091 |
| 4 | 01/01/1900 | OTHER | Other - Misc. Documents | Unknown | REINHOLT, PAUL K | | | $0.00 | 0 | 0 |
Payout Agreement
| No payout information available.. |